Kohteen esittely
Puistojen välissä sijaitseva kerrostalokohde Leppävaarassa. Osassa asuntoja on parveke, yksiöitä isommissa myös sauna. Autot voi pysäköidä asukkaiden parkkihalliin.
Lähellä on neuvola, useampi päiväkoti, koulu ja kaikki kauppakeskus Sellon palvelut. Ulkoilemaan kutsuu läheiset puistot, Säterinmetsä ja Säterinniityn urheilupaikat. Kesällä uimaan pääsee Leppävaaran maauimalaan. Erinomaiset liikenneyhteydet: Sellon toiselta puolelta olevalta Leppävaaran asemalta kulkee junia lyhyillä vuoroväleillä. Nopeat kulkuyhteydet myös omalla autolla.
Miksi Asuntosäätiö?
Me uskomme, että onnellinen koti ja laadukas asuminen kuuluvat kaikille. Emme tavoittele voittoa, vaan käytämme kaikki vastikkeista ja vuokrista saadut tulot toimintamme kehittämiseen. Jo yli 33 000 suomalaista on valinnut Asuntosäätiön tarjoaman kodin. Tiesithän, että myös lemmikit ovat tervetulleita kaikkiin koteihimme!
Rakennuksen tiedot
- Asumismuoto Asokoti
- Keskimääräinen asumisoikeusmaksu / jm² 524,42€
- Hissit 2
- Talosauna Ei
- Kuivaushuone Kyllä
- Asuntoja 32
- Asuinrakennuksia 1
- Käyttövastike / kk / jm² 16,12€
- Valmistumisvuosi 2004
- Porrashuoneet 2
- Energialuokka E2018
- Lämmitysmuoto Kauko
- Autopaikat 12
- Askarteluhuone 1
- Laajakaista DNA Welho
- Antennijärjestelmä Kaapeli
- KaapeliTV DNA
- Kattomateriaali Tiili
- Runkomateriaali Betoni
- Lemmikit Sallittu
Huoneistot ja pohjakuvat: Leppäviita 13, Kerrostalo, Piharakennus
Lisää hakemukselle kaikki haluamasi asuntotyypit. Mahdollisuutesi asunnon saamiseksi paranevat, kun voimme tarjota sinulle kaikkia valitsemasi asuntotyypin asuntoja, jotka mahdollisesti vapautuvat myöhemmin tästä kohteesta. Olet automaattisesti näiden asuntotyyppien hakuprosessissa.
Leppäviita 13 A 14
1h+kk
, Kerrostalo
32 m2
6/6
Leppäviita 13 A 14
1h+kk
, Kerrostalo
32 m2
Kerros 6/6
Leppäviita 13 A 8
1h+kk
, Kerrostalo
32 m2
4/6
Leppäviita 13 A 8
1h+kk
, Kerrostalo
32 m2
Kerros 4/6
Leppäviita 13 A 11
1h+kk
, Kerrostalo
32 m2
5/6
Leppäviita 13 A 11
1h+kk
, Kerrostalo
32 m2
Kerros 5/6
Leppäviita 13 A 2
1h+kk
, Kerrostalo
32 m2
2/6
Leppäviita 13 A 2
1h+kk
, Kerrostalo
32 m2
Kerros 2/6
Leppäviita 13 A 5
1h+kk
, Kerrostalo
32 m2
3/6
Leppäviita 13 A 5
1h+kk
, Kerrostalo
32 m2
Kerros 3/6
Leppäviita 13 A 15
2h+k+s
, Kerrostalo
53.5 m2
6/6
Leppäviita 13 A 15
2h+k+s
, Kerrostalo
53.5 m2
Kerros 6/6
Leppäviita 13 B 24
2h+k+s
, Kerrostalo
53.5 m2
4/6
Leppäviita 13 B 24
2h+k+s
, Kerrostalo
53.5 m2
Kerros 4/6
Leppäviita 13 B 30
2h+k+s
, Kerrostalo
53.5 m2
6/6
Leppäviita 13 B 30
2h+k+s
, Kerrostalo
53.5 m2
Kerros 6/6
Leppäviita 13 A 9
2h+k+s
, Kerrostalo
53.5 m2
4/6
Leppäviita 13 A 9
2h+k+s
, Kerrostalo
53.5 m2
Kerros 4/6
Leppäviita 13 A 12
2h+k+s
, Kerrostalo
53.5 m2
5/6
Leppäviita 13 A 12
2h+k+s
, Kerrostalo
53.5 m2
Kerros 5/6
Leppäviita 13 A 3
2h+k+s
, Kerrostalo
53.5 m2
Kerros 2/6
Leppäviita 13 A 6
2h+k+s
, Kerrostalo
53.5 m2
3/6
Leppäviita 13 A 6
2h+k+s
, Kerrostalo
53.5 m2
Kerros 3/6
Leppäviita 13 B 27
2h+k+s
, Kerrostalo
53.5 m2
5/6
Leppäviita 13 B 27
2h+k+s
, Kerrostalo
53.5 m2
Kerros 5/6
Leppäviita 13 B 18
2h+k+s
, Kerrostalo
53.5 m2
2/6
Leppäviita 13 B 18
2h+k+s
, Kerrostalo
53.5 m2
Kerros 2/6
Leppäviita 13 B 21
2h+k+s
, Kerrostalo
53.5 m2
Kerros 3/6
Leppäviita 13 B 26
2h+k+s
, Kerrostalo
59 m2
4/6
Leppäviita 13 B 26
2h+k+s
, Kerrostalo
59 m2
Kerros 4/6
Leppäviita 13 B 32
2h+k+s
, Kerrostalo
59 m2
6/6
Leppäviita 13 B 32
2h+k+s
, Kerrostalo
59 m2
Kerros 6/6
Leppäviita 13 B 29
2h+k+s
, Kerrostalo
59 m2
5/6
Leppäviita 13 B 29
2h+k+s
, Kerrostalo
59 m2
Kerros 5/6
Leppäviita 13 B 20
2h+k+s
, Kerrostalo
59 m2
2/6
Leppäviita 13 B 20
2h+k+s
, Kerrostalo
59 m2
Kerros 2/6
Leppäviita 13 B 23
2h+k+s
, Kerrostalo
59 m2
3/6
Leppäviita 13 B 23
2h+k+s
, Kerrostalo
59 m2
Kerros 3/6
Leppäviita 13 B 16
2h+kk+s
, Kerrostalo
41.5 m2
1/6
Leppäviita 13 B 16
2h+kk+s
, Kerrostalo
41.5 m2
Kerros 1/6
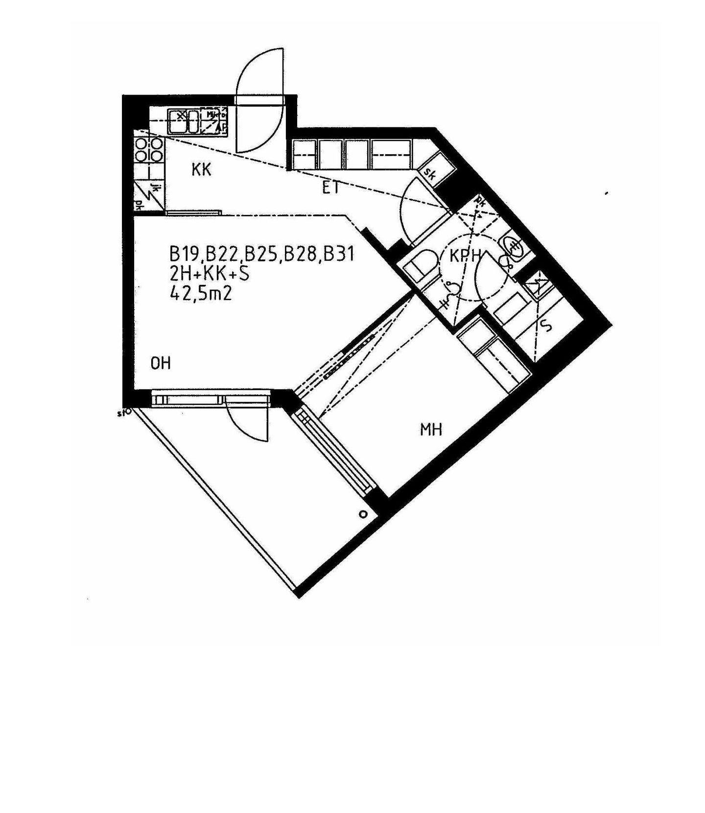
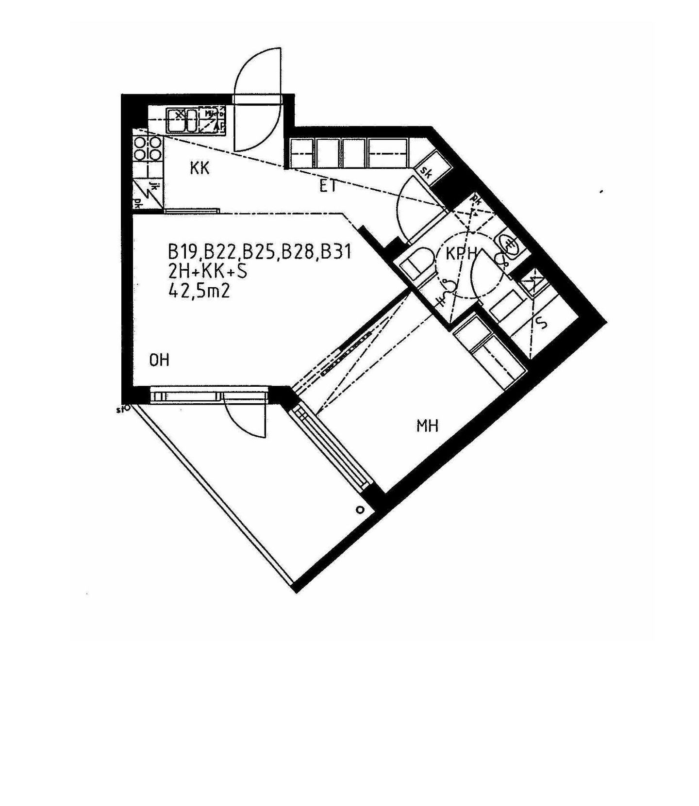
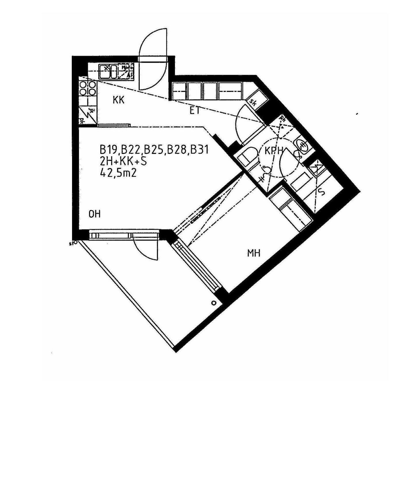
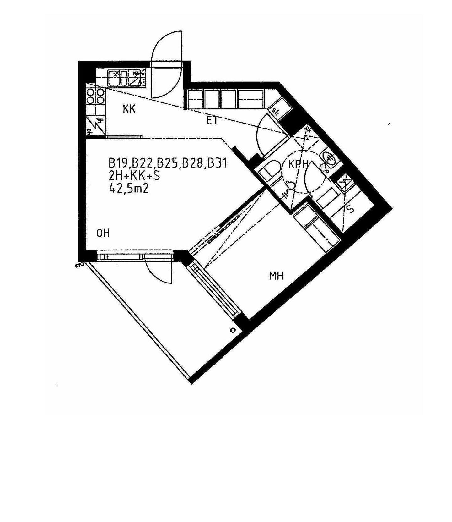
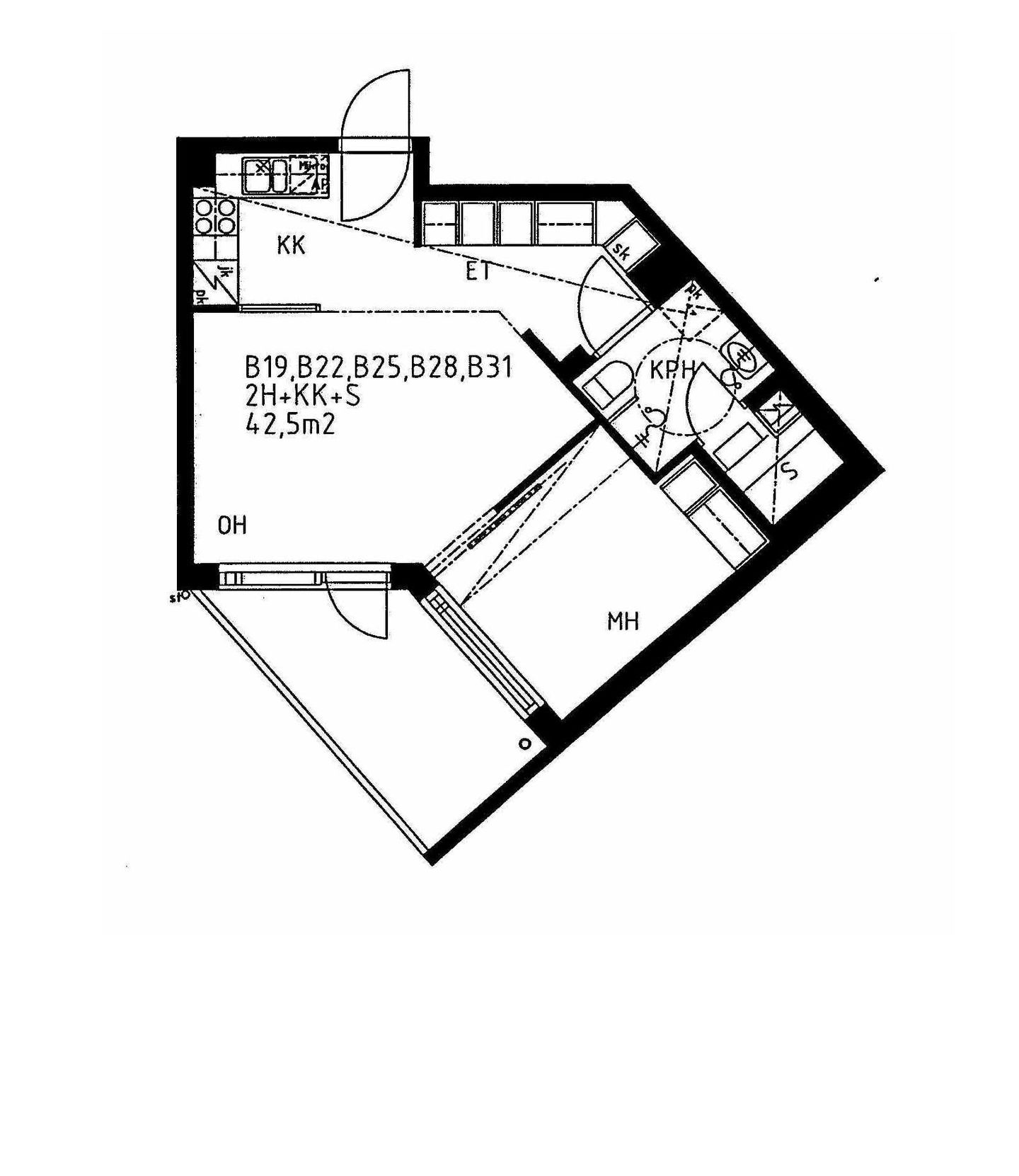
Leppäviita 13 B 19
2h+kk+s
, Kerrostalo
42.5 m2
2/6
Leppäviita 13 B 19
2h+kk+s
, Kerrostalo
42.5 m2
Kerros 2/6
Leppäviita 13 B 31
2h+kk+s
, Kerrostalo
42.5 m2
6/6
Leppäviita 13 B 31
2h+kk+s
, Kerrostalo
42.5 m2
Kerros 6/6
Leppäviita 13 B 25
2h+kk+s
, Kerrostalo
42.5 m2
4/6
Leppäviita 13 B 25
2h+kk+s
, Kerrostalo
42.5 m2
Kerros 4/6
Leppäviita 13 B 17
2h+kk+s
, Kerrostalo
42.5 m2
1/6
Leppäviita 13 B 17
2h+kk+s
, Kerrostalo
42.5 m2
Kerros 1/6
Leppäviita 13 B 22
2h+kk+s
, Kerrostalo
42.5 m2
3/6
Leppäviita 13 B 22
2h+kk+s
, Kerrostalo
42.5 m2
Kerros 3/6
Leppäviita 13 B 28
2h+kk+s
, Kerrostalo
42.5 m2
5/6
Leppäviita 13 B 28
2h+kk+s
, Kerrostalo
42.5 m2
Kerros 5/6
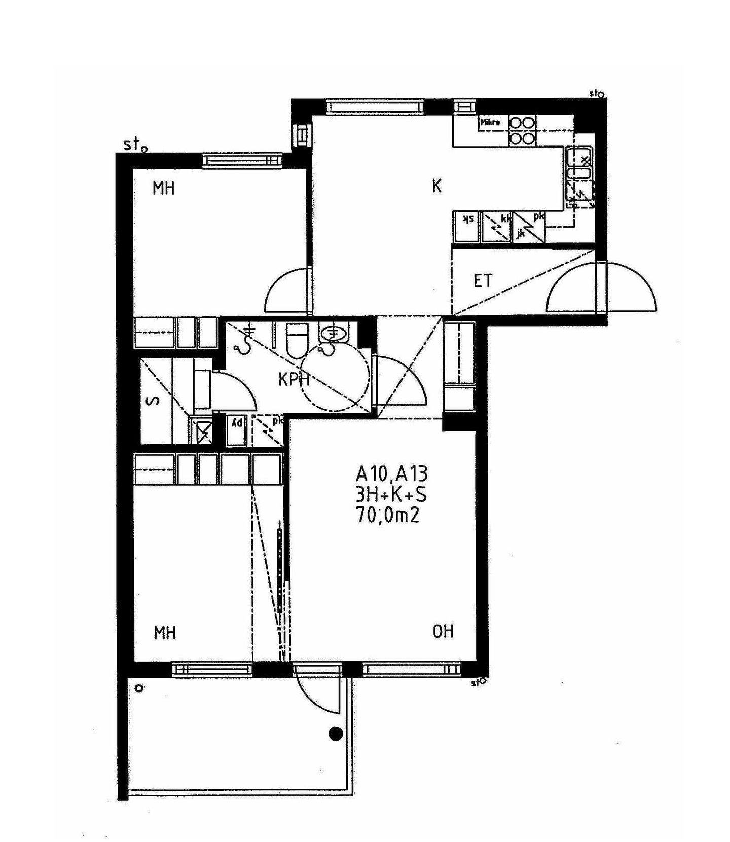
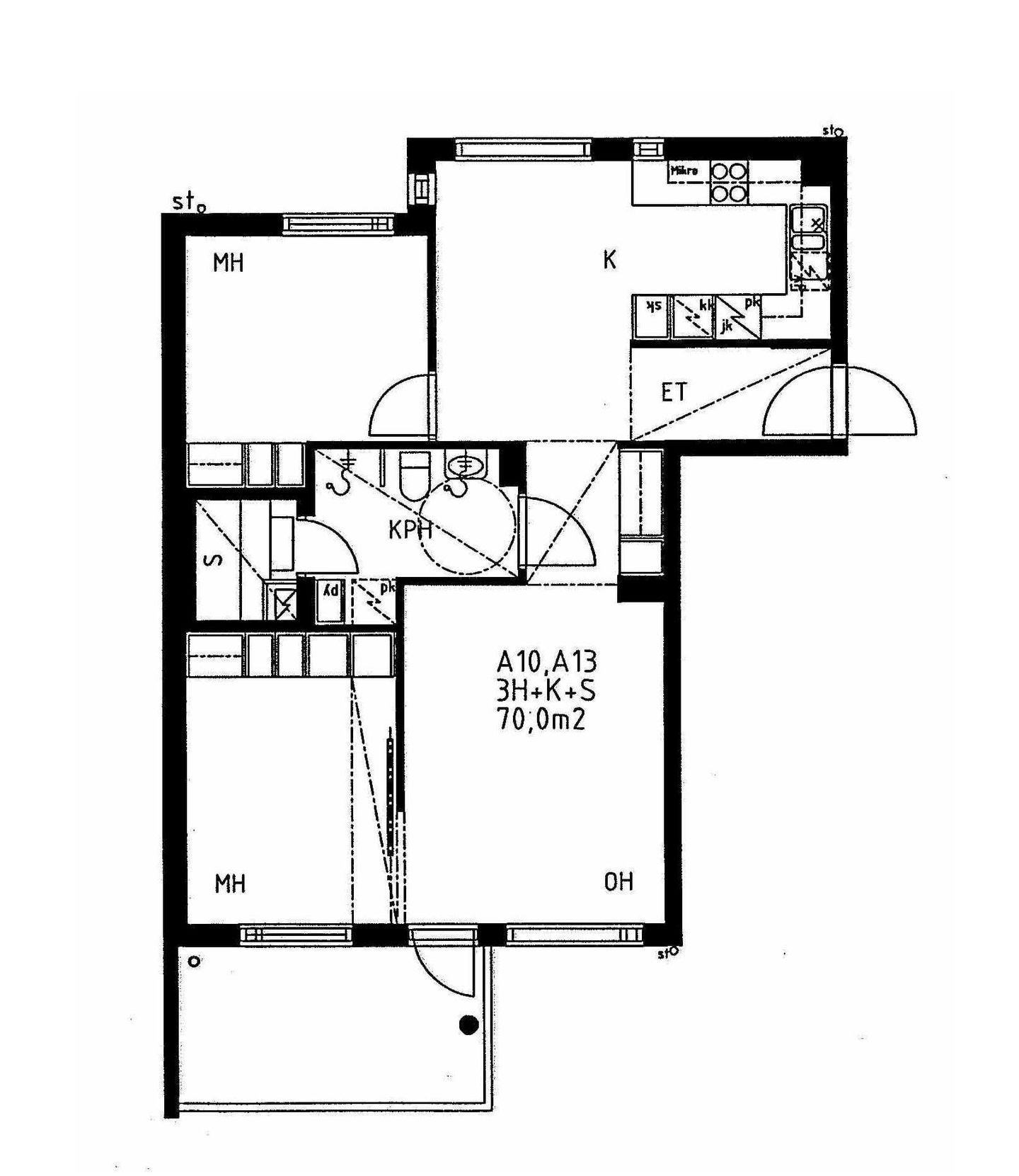
Leppäviita 13 A 13
3h+k+s
, Kerrostalo
70 m2
6/6
Leppäviita 13 A 13
3h+k+s
, Kerrostalo
70 m2
Kerros 6/6
Leppäviita 13 A 4
3h+k+s
, Kerrostalo
70 m2
3/6
Leppäviita 13 A 4
3h+k+s
, Kerrostalo
70 m2
Kerros 3/6
Leppäviita 13 A 1
3h+k+s
, Kerrostalo
70 m2
2/6
Leppäviita 13 A 1
3h+k+s
, Kerrostalo
70 m2
Kerros 2/6
Leppäviita 13 A 10
3h+k+s
, Kerrostalo
70 m2
5/6
Leppäviita 13 A 10
3h+k+s
, Kerrostalo
70 m2
Kerros 5/6
Leppäviita 13 A 7
3h+k+s
, Kerrostalo
70 m2
4/6
Leppäviita 13 A 7
3h+k+s
, Kerrostalo
70 m2
Kerros 4/6