Kohteen esittely
Espoon Lintukorven pientaloalueella sijaitseva Lintukorvenkuja 3 on viihtyisä kolmen asuinrakennuksen rivitalokohde. Kohteeseen kuuluu 11 asuinrakennusta, joiden huoneistojen koot vaihtelevat kolmioista viisiöihin, 82,5 – 104 m2. Huoneistoissa on saunat sekä omat aidatut pihat. Kohde on savuton. Kohteessa on omatoimiviherhoito.
Lintukorpi on lapsiystävällinen alue lähellä Leppävaaran keskustan palveluita. Alueella on useita mukavia leikkialueita lapsille. Alueella on myös kauppa ja päiväkoti.
Miksi Asuntosäätiö?
Me uskomme, että onnellinen koti ja laadukas asuminen kuuluvat kaikille. Emme tavoittele voittoa, vaan käytämme kaikki vastikkeista ja vuokrista saadut tulot toimintamme kehittämiseen. Jo yli 33 000 suomalaista on valinnut Asuntosäätiön tarjoaman kodin. Tiesithän, että myös lemmikit ovat tervetulleita kaikkiin koteihimme!
Rakennuksen tiedot
- Asumismuoto Asokoti
- Keskimääräinen asumisoikeusmaksu / jm² 399,83€
- Hissit Ei
- Talosauna Ei
- Asuntoja 11
- Asuinrakennuksia 3
- Käyttövastike / kk / jm² 15,1€
- Valmistumisvuosi 1998
- Energialuokka D
- Lämmitysmuoto Kauko
- Autopaikat 16
- Laajakaista DNA Welho
- Antennijärjestelmä Kaapeli
- KaapeliTV DNA
- Kattomateriaali Tiili
- Runkomateriaali Betoni
- Lemmikit Sallittu
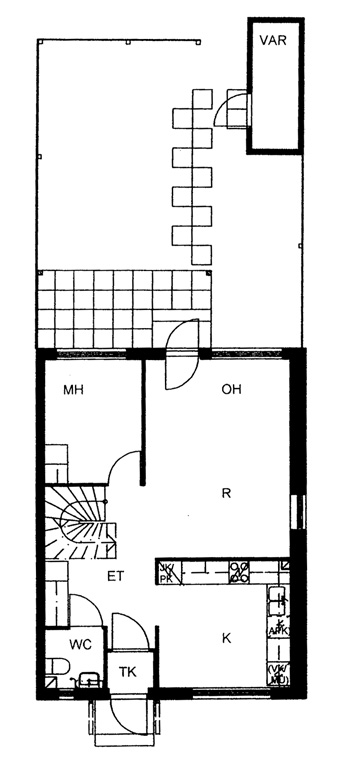
Huoneistot ja pohjakuvat: Lintukorvenkuja 3, Rivitalo, Piharakennus
Lisää hakemukselle kaikki haluamasi asuntotyypit. Mahdollisuutesi asunnon saamiseksi paranevat, kun voimme tarjota sinulle kaikkia valitsemasi asuntotyypin asuntoja, jotka mahdollisesti vapautuvat myöhemmin tästä kohteesta. Olet automaattisesti näiden asuntotyyppien hakuprosessissa.
Lintukorvenkuja 3 B 5
3h+k+s
, Rivitalo
82.5 m2
1-2/2
Lintukorvenkuja 3 B 5
3h+k+s
, Rivitalo
82.5 m2
Kerros 1-2/2
Lintukorvenkuja 3 B 8
3h+k+s
, Rivitalo
82.5 m2
1-2/2
Lintukorvenkuja 3 B 8
3h+k+s
, Rivitalo
82.5 m2
Kerros 1-2/2
Lintukorvenkuja 3 B 7
4h+k+s
, Rivitalo
92.5 m2
1-2/2
Lintukorvenkuja 3 B 7
4h+k+s
, Rivitalo
92.5 m2
Kerros 1-2/2
Lintukorvenkuja 3 B 6
4h+k+s
, Rivitalo
92.5 m2
1-2/2
Lintukorvenkuja 3 B 6
4h+k+s
, Rivitalo
92.5 m2
Kerros 1-2/2
Lintukorvenkuja 3 C 10
4h+k+s
, Rivitalo
92.5 m2
1-2/2
Lintukorvenkuja 3 C 10
4h+k+s
, Rivitalo
92.5 m2
Kerros 1-2/2
Lintukorvenkuja 3 A 2
4h+k+s
, Rivitalo
93 m2
1-2/2
Lintukorvenkuja 3 A 2
4h+k+s
, Rivitalo
93 m2
Kerros 1-2/2
Lintukorvenkuja 3 A 3
4h+k+s
, Rivitalo
93 m2
1-2/2
Lintukorvenkuja 3 A 3
4h+k+s
, Rivitalo
93 m2
Kerros 1-2/2
Lintukorvenkuja 3 C 11
4h+k+s
, Rivitalo
93 m2
1-2/2
Lintukorvenkuja 3 C 11
4h+k+s
, Rivitalo
93 m2
Kerros 1-2/2
Lintukorvenkuja 3 A 4
5h+k+s
, Rivitalo
104 m2
1-2/2
Lintukorvenkuja 3 A 4
5h+k+s
, Rivitalo
104 m2
Kerros 1-2/2
Lintukorvenkuja 3 A 1
5h+k+s
, Rivitalo
104 m2
1-2/2
Lintukorvenkuja 3 A 1
5h+k+s
, Rivitalo
104 m2
Kerros 1-2/2
Lintukorvenkuja 3 C 9
5h+k+s
, Rivitalo
104 m2
1-2/2
Lintukorvenkuja 3 C 9
5h+k+s
, Rivitalo
104 m2
Kerros 1-2/2