Kohteen esittely
Kerrostalokohde metsän vieressä Saunalahdessa. Kaikissa asunnoissa on oma sauna ja osassa myös parveke.
Alueella on päiväkodit ja koulu. Saunalahden 2012 valmistuneessa koulussa painotetaan kestävää kehitystä Vihreä Lippu -kouluna sekä taito- ja taideaineita osana erilaisia oppimisprosesseja. Nämä asiat on huomioitu erityisesti tilojen suunnittelussa. Myös ruokakauppa on lähellä. Saunalahti sijaitsee kätevästi Länsiväylän ja Kauklahdenväylän tuntumassa.
Miksi Asuntosäätiö?
Me uskomme, että onnellinen koti ja laadukas asuminen kuuluvat kaikille. Emme tavoittele voittoa, vaan käytämme kaikki vastikkeista ja vuokrista saadut tulot toimintamme kehittämiseen. Jo yli 33 000 suomalaista on valinnut Asuntosäätiön tarjoaman kodin. Tiesithän, että myös lemmikit ovat tervetulleita kaikkiin koteihimme!
Rakennuksen tiedot
- Asumismuoto Asokoti
- Keskimääräinen asumisoikeusmaksu / jm² 561,18€
- Hissit 1
- Talosauna Ei
- Kuivaushuone Kyllä
- Asuntoja 29
- Asuinrakennuksia 1
- Käyttövastike / kk / jm² 15,23€
- Valmistumisvuosi 2009
- Porrashuoneet 1
- Energialuokka D2018
- Lämmitysmuoto Kauko
- Autopaikat 33
- Laajakaista DNA Welho
- Antennijärjestelmä Kaapeli
- KaapeliTV DNA
- Kattomateriaali Huopa
- Runkomateriaali Betoni
- Lemmikit Sallittu
Huoneistot ja pohjakuvat: Saunalahdenkatu 14, Piharakennus, Kerrostalo
Lisää hakemukselle kaikki haluamasi asuntotyypit. Mahdollisuutesi asunnon saamiseksi paranevat, kun voimme tarjota sinulle kaikkia valitsemasi asuntotyypin asuntoja, jotka mahdollisesti vapautuvat myöhemmin tästä kohteesta. Olet automaattisesti näiden asuntotyyppien hakuprosessissa.
Saunalahdenkatu 14 A 11
2h+k+s
, Kerrostalo
50 m2
3/7
Saunalahdenkatu 14 A 11
2h+k+s
, Kerrostalo
50 m2
Kerros 3/7
Saunalahdenkatu 14 A 16
2h+k+s
, Kerrostalo
50 m2
4/7
Saunalahdenkatu 14 A 16
2h+k+s
, Kerrostalo
50 m2
Kerros 4/7
Saunalahdenkatu 14 A 6
2h+k+s
, Kerrostalo
50 m2
2/7
Saunalahdenkatu 14 A 6
2h+k+s
, Kerrostalo
50 m2
Kerros 2/7
Saunalahdenkatu 14 A 21
2h+k+s
, Kerrostalo
50 m2
5/7
Saunalahdenkatu 14 A 21
2h+k+s
, Kerrostalo
50 m2
Kerros 5/7
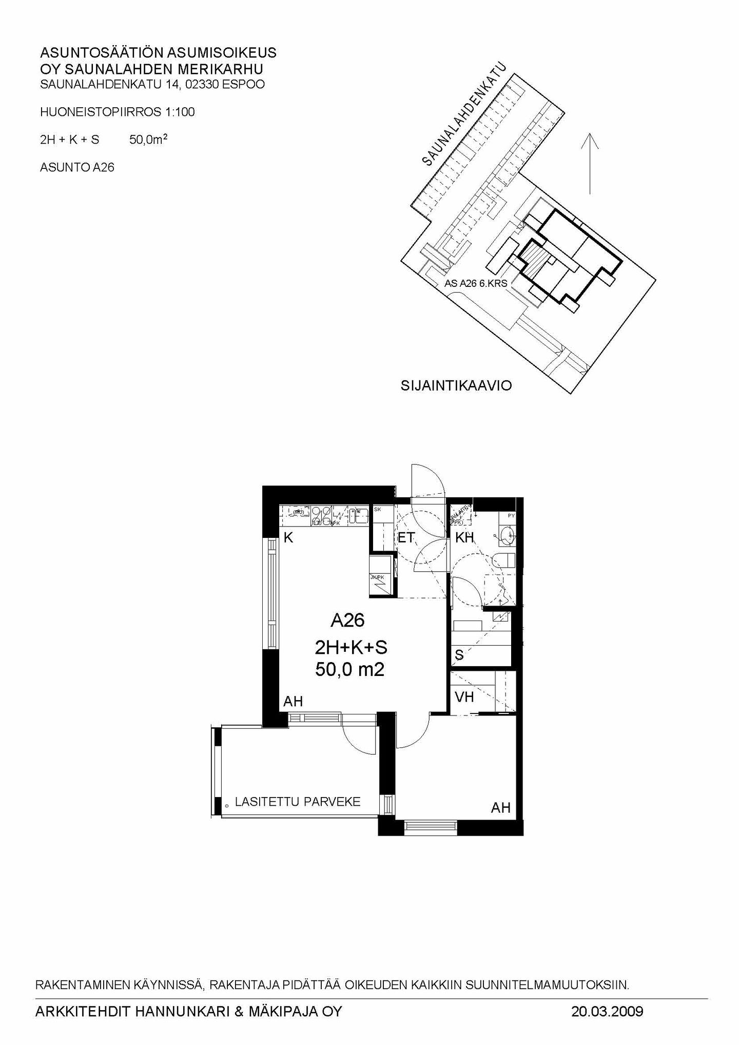
Saunalahdenkatu 14 A 26
2h+k+s
, Kerrostalo
50 m2
6/7
Saunalahdenkatu 14 A 26
2h+k+s
, Kerrostalo
50 m2
Kerros 6/7
Saunalahdenkatu 14 A 15
2h+kk+s
, Kerrostalo
52 m2
4/7
Saunalahdenkatu 14 A 15
2h+kk+s
, Kerrostalo
52 m2
Kerros 4/7
Saunalahdenkatu 14 A 5
2h+kk+s
, Kerrostalo
52 m2
Kerros 2/7
Saunalahdenkatu 14 A 10
2h+kk+s
, Kerrostalo
52 m2
3/7
Saunalahdenkatu 14 A 10
2h+kk+s
, Kerrostalo
52 m2
Kerros 3/7
Saunalahdenkatu 14 A 20
2h+kk+s
, Kerrostalo
52 m2
Kerros 5/7
Saunalahdenkatu 14 A 25
2h+kk+s
, Kerrostalo
52 m2
6/7
Saunalahdenkatu 14 A 25
2h+kk+s
, Kerrostalo
52 m2
Kerros 6/7
Saunalahdenkatu 14 A 1
2h+kk+s
, Kerrostalo
62 m2
1/7
Saunalahdenkatu 14 A 1
2h+kk+s
, Kerrostalo
62 m2
Kerros 1/7
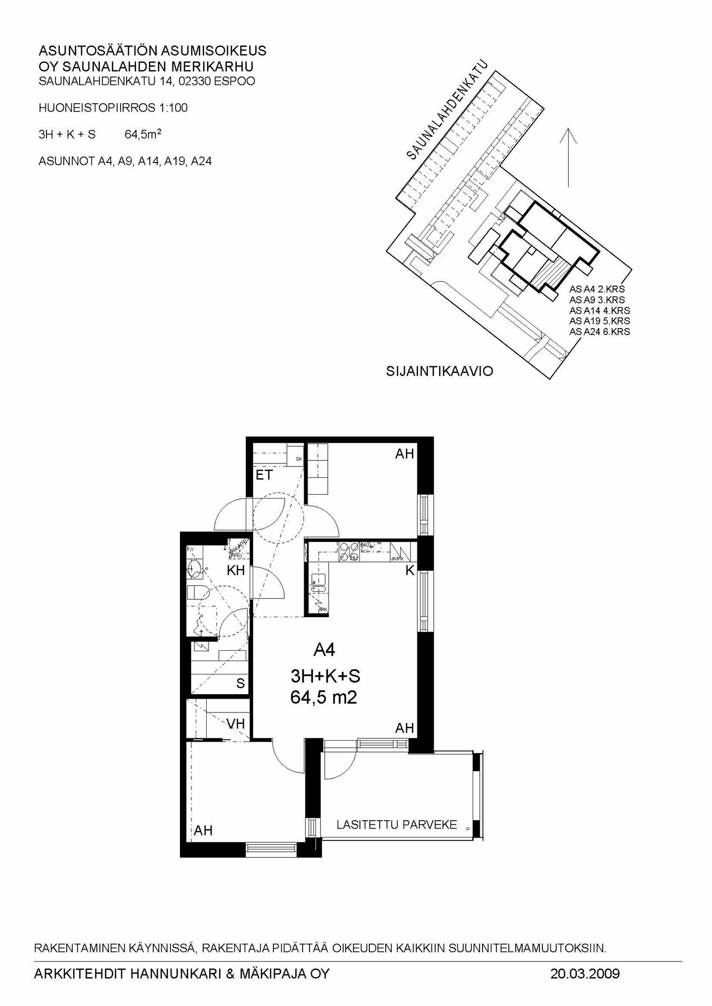
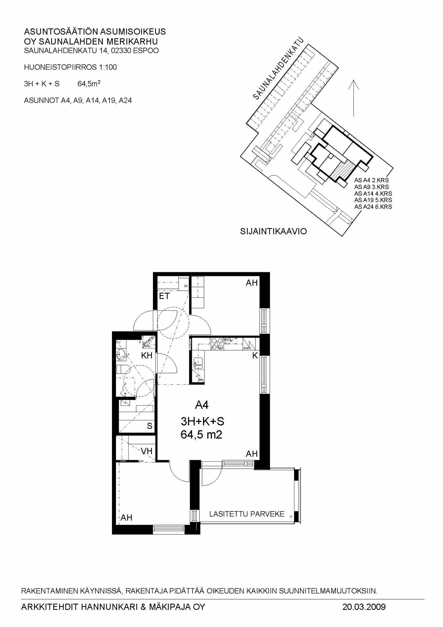
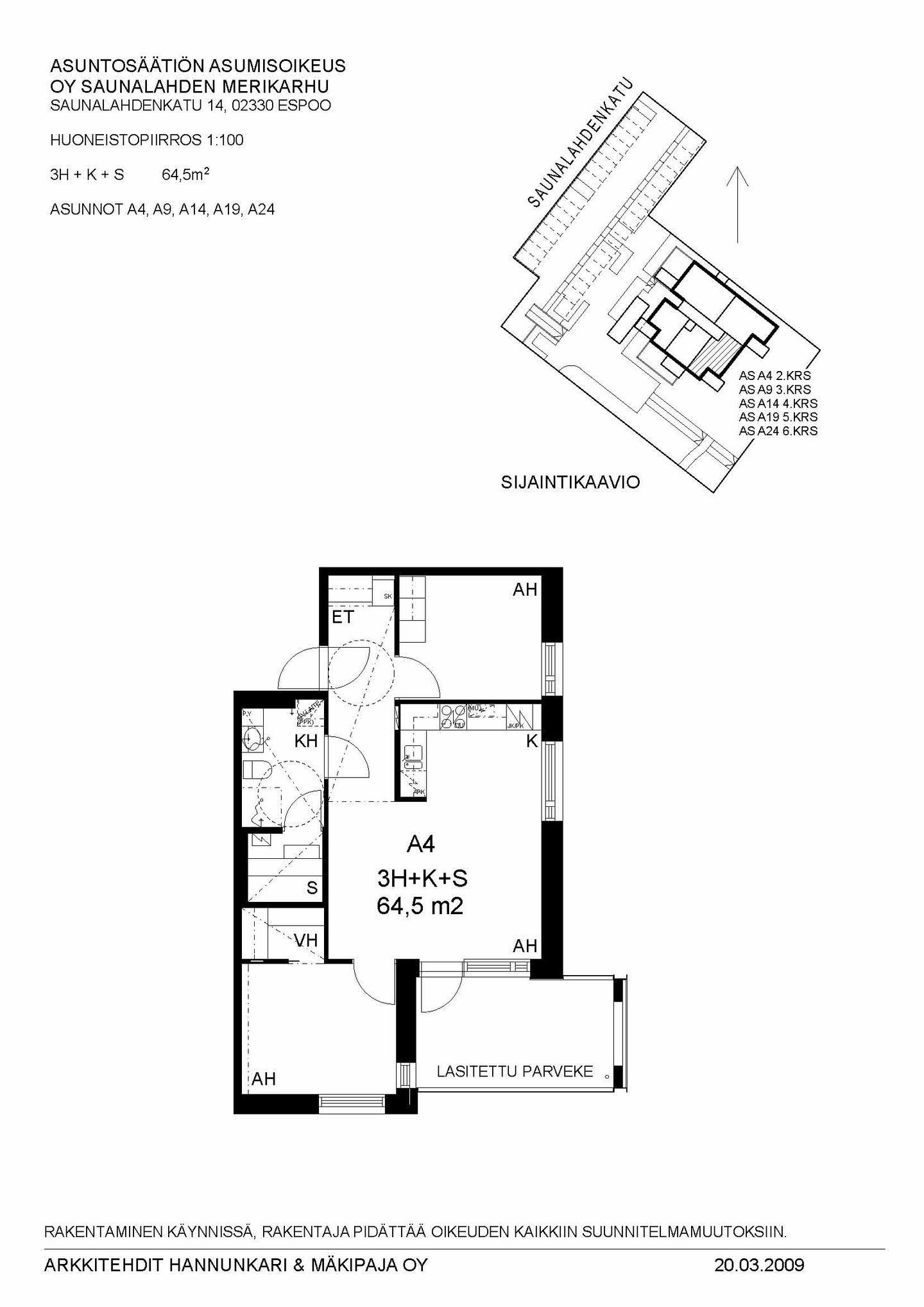
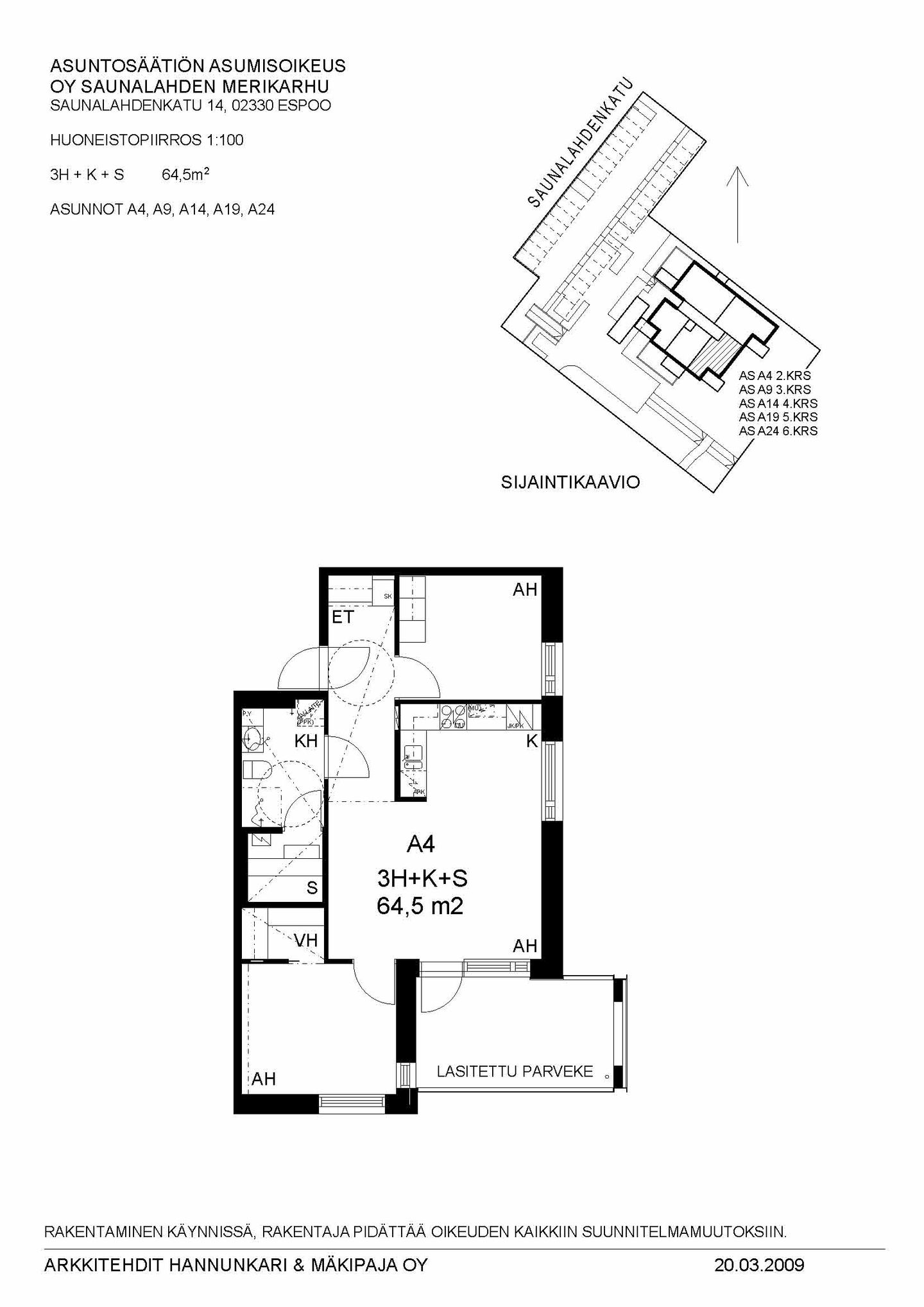
Saunalahdenkatu 14 A 24
3h+k+s
, Kerrostalo
64.5 m2
6/7
Saunalahdenkatu 14 A 24
3h+k+s
, Kerrostalo
64.5 m2
Kerros 6/7
Saunalahdenkatu 14 A 19
3h+k+s
, Kerrostalo
64.5 m2
5/7
Saunalahdenkatu 14 A 19
3h+k+s
, Kerrostalo
64.5 m2
Kerros 5/7
Saunalahdenkatu 14 A 14
3h+k+s
, Kerrostalo
64.5 m2
4/7
Saunalahdenkatu 14 A 14
3h+k+s
, Kerrostalo
64.5 m2
Kerros 4/7
Saunalahdenkatu 14 A 9
3h+k+s
, Kerrostalo
64.5 m2
3/7
Saunalahdenkatu 14 A 9
3h+k+s
, Kerrostalo
64.5 m2
Kerros 3/7
Saunalahdenkatu 14 A 4
3h+k+s
, Kerrostalo
64.5 m2
2/7
Saunalahdenkatu 14 A 4
3h+k+s
, Kerrostalo
64.5 m2
Kerros 2/7
Saunalahdenkatu 14 A 8
3h+k+s
, Kerrostalo
78.5 m2
3/7
Saunalahdenkatu 14 A 8
3h+k+s
, Kerrostalo
78.5 m2
Kerros 3/7
Saunalahdenkatu 14 A 23
3h+k+s
, Kerrostalo
78.5 m2
6/7
Saunalahdenkatu 14 A 23
3h+k+s
, Kerrostalo
78.5 m2
Kerros 6/7
Saunalahdenkatu 14 A 18
3h+k+s
, Kerrostalo
78.5 m2
5/7
Saunalahdenkatu 14 A 18
3h+k+s
, Kerrostalo
78.5 m2
Kerros 5/7
Saunalahdenkatu 14 A 13
3h+k+s
, Kerrostalo
78.5 m2
4/7
Saunalahdenkatu 14 A 13
3h+k+s
, Kerrostalo
78.5 m2
Kerros 4/7
Saunalahdenkatu 14 A 3
3h+k+s
, Kerrostalo
78.5 m2
2/7
Saunalahdenkatu 14 A 3
3h+k+s
, Kerrostalo
78.5 m2
Kerros 2/7
Saunalahdenkatu 14 A 28
3h+k+s
, Kerrostalo
107.5 m2
7/7
Saunalahdenkatu 14 A 28
3h+k+s
, Kerrostalo
107.5 m2
Kerros 7/7
Saunalahdenkatu 14 A 29
3h+k+s
, Kerrostalo
130.5 m2
7/7
Saunalahdenkatu 14 A 29
3h+k+s
, Kerrostalo
130.5 m2
Kerros 7/7
Saunalahdenkatu 14 A 27
4h+k+s
, Kerrostalo
92 m2
6/7
Saunalahdenkatu 14 A 27
4h+k+s
, Kerrostalo
92 m2
Kerros 6/7
Saunalahdenkatu 14 A 7
4h+k+s
, Kerrostalo
92 m2
2/7
Saunalahdenkatu 14 A 7
4h+k+s
, Kerrostalo
92 m2
Kerros 2/7
Saunalahdenkatu 14 A 22
4h+k+s
, Kerrostalo
92 m2
5/7
Saunalahdenkatu 14 A 22
4h+k+s
, Kerrostalo
92 m2
Kerros 5/7
Saunalahdenkatu 14 A 2
4h+k+s
, Kerrostalo
92 m2
1/7
Saunalahdenkatu 14 A 2
4h+k+s
, Kerrostalo
92 m2
Kerros 1/7
Saunalahdenkatu 14 A 17
4h+k+s
, Kerrostalo
92 m2
4/7
Saunalahdenkatu 14 A 17
4h+k+s
, Kerrostalo
92 m2
Kerros 4/7
Saunalahdenkatu 14 A 12
4h+k+s
, Kerrostalo
92 m2
3/7
Saunalahdenkatu 14 A 12
4h+k+s
, Kerrostalo
92 m2
Kerros 3/7


