Kohteen esittely
Rivitalot ovat kolmioita ja neliöitä ja pihapiiristä löytyy ihana yhteinen grillialue sekä lapsille pihapiiristä leikkipaikka. Kohteessa on omatoimiviherhoito.
Sipoon Nikkilässä löytyy päivittäistavarakauppoja ja kunnan palvelut kävelymatkan päästä. Alueella on myös kouluja ja päiväkoteja.
Miksi Asuntosäätiö?
Me uskomme, että onnellinen koti ja laadukas asuminen kuuluvat kaikille. Emme tavoittele voittoa, vaan käytämme kaikki vastikkeista ja vuokrista saadut tulot toimintamme kehittämiseen. Jo yli 33 000 suomalaista on valinnut Asuntosäätiön tarjoaman kodin. Tiesithän, että myös lemmikit ovat tervetulleita kaikkiin koteihimme!
Rakennuksen tiedot
- Asumismuoto Asokoti
- Keskimääräinen asumisoikeusmaksu / jm² 392,73€
- Hissit Ei
- Talosauna Ei
- Asuntoja 14
- Asuinrakennuksia 3
- Käyttövastike / kk / jm² 13,42€
- Valmistumisvuosi 2002
- Energialuokka D
- Lämmitysmuoto Kauko
- Autopaikat 21
- Laajakaista Elisa
- Antennijärjestelmä Kaapeli
- KaapeliTV Elisa
- Kattomateriaali Tiili
- Runkomateriaali Betoni
- Lemmikit Sallittu
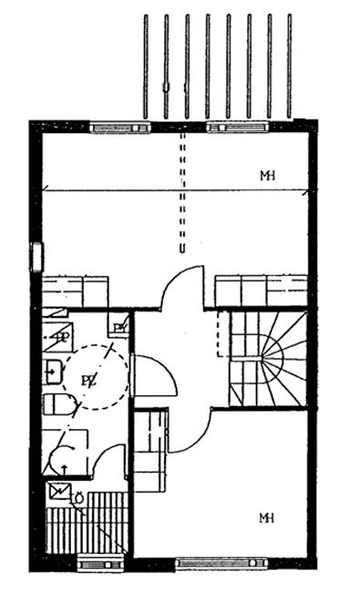
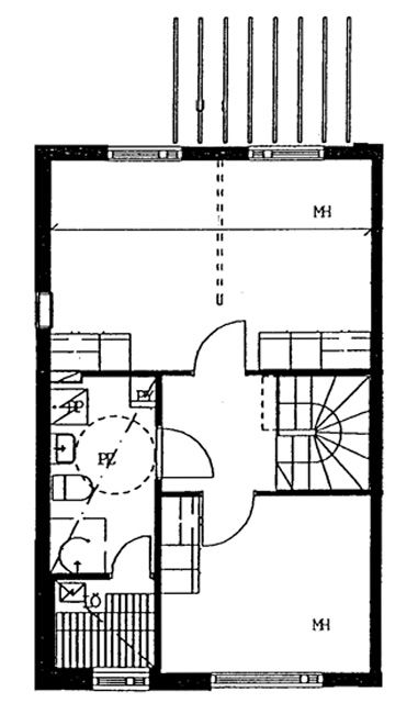
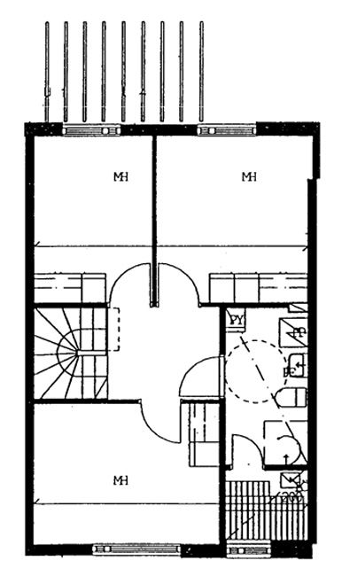
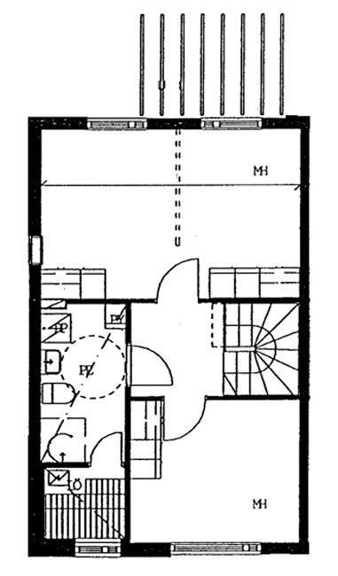
Huoneistot ja pohjakuvat: Lehtimäenkuja 4, Rivitalo, Piharakennus
Lisää hakemukselle kaikki haluamasi asuntotyypit. Mahdollisuutesi asunnon saamiseksi paranevat, kun voimme tarjota sinulle kaikkia valitsemasi asuntotyypin asuntoja, jotka mahdollisesti vapautuvat myöhemmin tästä kohteesta. Olet automaattisesti näiden asuntotyyppien hakuprosessissa.
Lehtimäenkuja 4 A 4
3h+k+s
, Rivitalo
84.5 m2
1-2/2
Lehtimäenkuja 4 A 4
3h+k+s
, Rivitalo
84.5 m2
Kerros 1-2/2
Lehtimäenkuja 4 A 1
3h+k+s
, Rivitalo
84.5 m2
1-2/2
Lehtimäenkuja 4 A 1
3h+k+s
, Rivitalo
84.5 m2
Kerros 1-2/2
Lehtimäenkuja 4 B 5
3h+k+s
, Rivitalo
84.5 m2
1-2/2
Lehtimäenkuja 4 B 5
3h+k+s
, Rivitalo
84.5 m2
Kerros 1-2/2
Lehtimäenkuja 4 B 10
3h+k+s
, Rivitalo
84.5 m2
1-2/2
Lehtimäenkuja 4 B 10
3h+k+s
, Rivitalo
84.5 m2
Kerros 1-2/2
Lehtimäenkuja 4 C 11
3h+k+s
, Rivitalo
84.5 m2
1-2/2
Lehtimäenkuja 4 C 11
3h+k+s
, Rivitalo
84.5 m2
Kerros 1-2/2
Lehtimäenkuja 4 C 14
3h+k+s
, Rivitalo
84.5 m2
1-2/2
Lehtimäenkuja 4 C 14
3h+k+s
, Rivitalo
84.5 m2
Kerros 1-2/2
Lehtimäenkuja 4 B 7
4h+k+s
, Rivitalo
93 m2
1-2/2
Lehtimäenkuja 4 B 7
4h+k+s
, Rivitalo
93 m2
Kerros 1-2/2
Lehtimäenkuja 4 B 6
4h+k+s
, Rivitalo
93 m2
1-2/2
Lehtimäenkuja 4 B 6
4h+k+s
, Rivitalo
93 m2
Kerros 1-2/2
Lehtimäenkuja 4 C 13
4h+k+s
, Rivitalo
93 m2
1-2/2
Lehtimäenkuja 4 C 13
4h+k+s
, Rivitalo
93 m2
Kerros 1-2/2
Lehtimäenkuja 4 A 2
4h+k+s
, Rivitalo
93 m2
1-2/2
Lehtimäenkuja 4 A 2
4h+k+s
, Rivitalo
93 m2
Kerros 1-2/2
Lehtimäenkuja 4 B 8
4h+k+s
, Rivitalo
93 m2
1-2/2
Lehtimäenkuja 4 B 8
4h+k+s
, Rivitalo
93 m2
Kerros 1-2/2
Lehtimäenkuja 4 B 9
4h+k+s
, Rivitalo
93 m2
1-2/2
Lehtimäenkuja 4 B 9
4h+k+s
, Rivitalo
93 m2
Kerros 1-2/2
Lehtimäenkuja 4 C 12
4h+k+s
, Rivitalo
93 m2
1-2/2
Lehtimäenkuja 4 C 12
4h+k+s
, Rivitalo
93 m2
Kerros 1-2/2
