Kohteen esittely
Miksi Asuntosäätiö?
Me uskomme, että onnellinen koti ja laadukas asuminen kuuluvat kaikille. Emme tavoittele voittoa, vaan käytämme kaikki vastikkeista ja vuokrista saadut tulot toimintamme kehittämiseen. Jo yli 33 000 suomalaista on valinnut Asuntosäätiön tarjoaman kodin. Tiesithän, että myös lemmikit ovat tervetulleita kaikkiin koteihimme!
Rakennuksen tiedot
- Asumismuoto Asokoti
- Keskimääräinen asumisoikeusmaksu / jm² 367,09€
- Hissit Ei
- Talosauna Ei
- Asuntoja 8
- Asuinrakennuksia 8
- Käyttövastike / kk / jm² 13,66€
- Valmistumisvuosi 1996
- Peruskorjattu 2021
- Energialuokka D
- Lämmitysmuoto Sähkö
- Autopaikat 14
- Laajakaista DNA 4G
- Antennijärjestelmä Harava
- Kattomateriaali Pelti
- Runkomateriaali Puu
- Lemmikit Sallittu
Huoneistot ja pohjakuvat: Tuomirinne 4 ja 6, Piharakennus, Omakotitalo
Lisää hakemukselle kaikki haluamasi asuntotyypit. Mahdollisuutesi asunnon saamiseksi paranevat, kun voimme tarjota sinulle kaikkia valitsemasi asuntotyypin asuntoja, jotka mahdollisesti vapautuvat myöhemmin tästä kohteesta. Olet automaattisesti näiden asuntotyyppien hakuprosessissa.
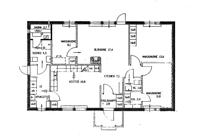
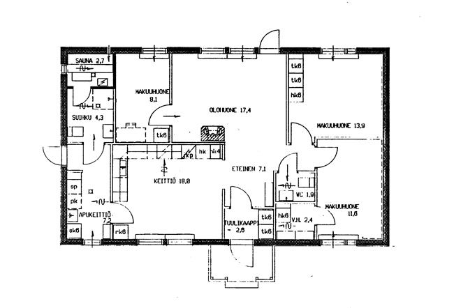
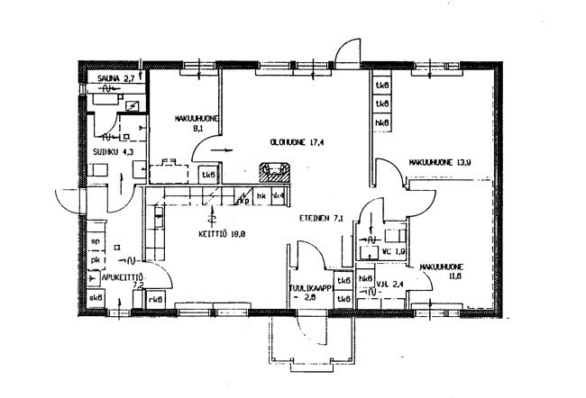
Tuomirinne 4 B 2
4h+k+s
, Omakotitalo
101.5 m2
1/1
Tuomirinne 4 B 2
4h+k+s
, Omakotitalo
101.5 m2
Kerros 1/1
Tuomirinne 4 D 4
4h+k+s
, Omakotitalo
101.5 m2
1/1
Tuomirinne 4 D 4
4h+k+s
, Omakotitalo
101.5 m2
Kerros 1/1
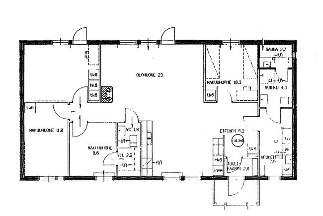
Tuomirinne 4 A 1
4h+k+s
, Omakotitalo
101.5 m2
1/1
Tuomirinne 4 A 1
4h+k+s
, Omakotitalo
101.5 m2
Kerros 1/1
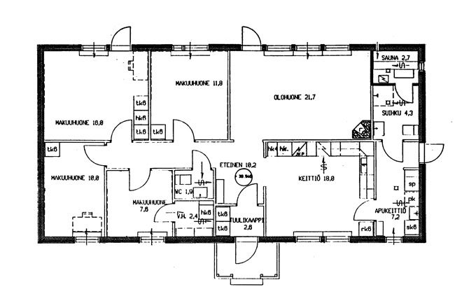
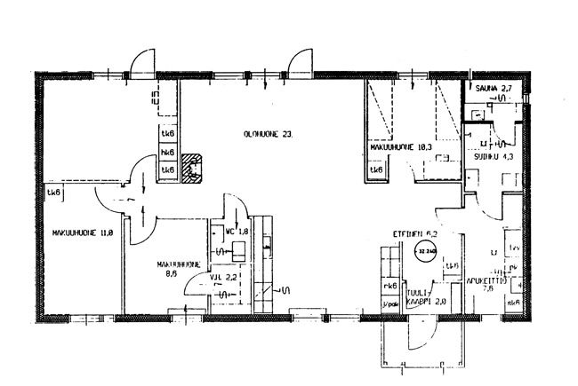
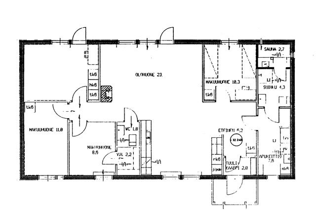
Tuomirinne 4 E 5
5h+k+s
, Omakotitalo
121.5 m2
1/1
Tuomirinne 4 E 5
5h+k+s
, Omakotitalo
121.5 m2
Kerros 1/1
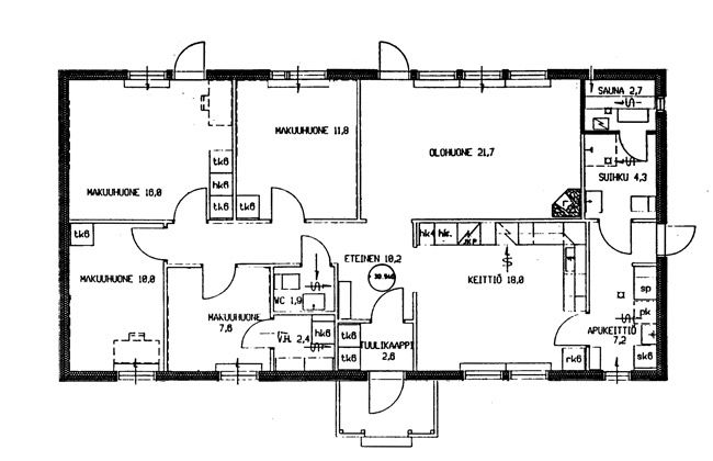
Tuomirinne 4 H 8
5h+k+s
, Omakotitalo
121.5 m2
1/1
Tuomirinne 4 H 8
5h+k+s
, Omakotitalo
121.5 m2
Kerros 1/1
Tuomirinne 4 F 6
5h+k+s
, Omakotitalo
121.5 m2
1/1
Tuomirinne 4 F 6
5h+k+s
, Omakotitalo
121.5 m2
Kerros 1/1
Tuomirinne 4 C 3
5h+k+s
, Omakotitalo
121.5 m2
1/1
Tuomirinne 4 C 3
5h+k+s
, Omakotitalo
121.5 m2
Kerros 1/1
Tuomirinne 4 G 7
5h+k+s
, Omakotitalo
121.5 m2
1/1
Tuomirinne 4 G 7
5h+k+s
, Omakotitalo
121.5 m2
Kerros 1/1