Kohteen esittely
Rauhallinen rivitalokohde päättyvän tien päässä viihtyisällä pientaloalueella. Asunnot 3-4 huoneen ja keittiön huoneistoja, joissa on oma sauna ja piha. Kohteessa on sähkölämmitys.
Lähellä on useita päiväkoteja ja kouluja. Alueella on hyvät ulkoilumahdollisuudet, puistoja ja koirapuistoja. Hyvät liikenneyhteydet sekä omalla autolla että julkisilla.
Miksi Asuntosäätiö?
Me uskomme, että onnellinen koti ja laadukas asuminen kuuluvat kaikille. Emme tavoittele voittoa, vaan käytämme kaikki vastikkeista ja vuokrista saadut tulot toimintamme kehittämiseen. Jo yli 33 000 suomalaista on valinnut Asuntosäätiön tarjoaman kodin. Tiesithän, että myös lemmikit ovat tervetulleita kaikkiin koteihimme!
Rakennuksen tiedot
- Asumismuoto Asokoti
- Keskimääräinen asumisoikeusmaksu / jm² 431,18€
- Hissit Ei
- Talosauna Ei
- Asuntoja 9
- Asuinrakennuksia 3
- Käyttövastike / kk / jm² 13,88€
- Valmistumisvuosi 2000
- Energialuokka E
- Lämmitysmuoto Sähkö
- Autopaikat 9
- Laajakaista DNA 4G
- Antennijärjestelmä Harava
- Kattomateriaali Tiili
- Runkomateriaali Puu
- Lemmikit Sallittu
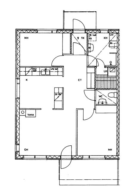
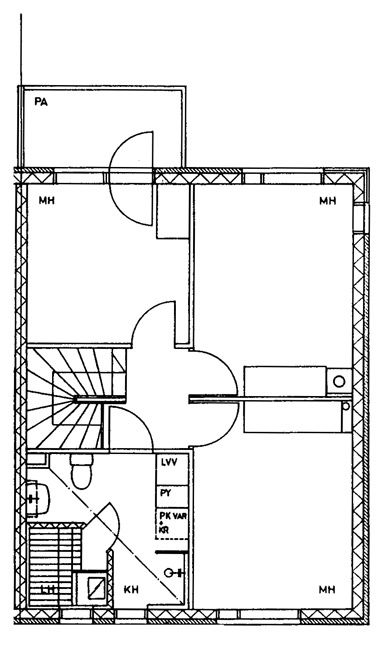
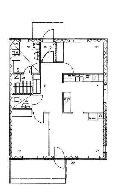
Huoneistot ja pohjakuvat: Pyörätie 50, Rivitalo, Piharakennus
Lisää hakemukselle kaikki haluamasi asuntotyypit. Mahdollisuutesi asunnon saamiseksi paranevat, kun voimme tarjota sinulle kaikkia valitsemasi asuntotyypin asuntoja, jotka mahdollisesti vapautuvat myöhemmin tästä kohteesta. Olet automaattisesti näiden asuntotyyppien hakuprosessissa.
Pyörätie 50 C 9
3h+k+s
, Rivitalo
72.5 m2
1/1
Pyörätie 50 C 9
3h+k+s
, Rivitalo
72.5 m2
Kerros 1/1
Pyörätie 50 C 7
3h+k+s
, Rivitalo
72.5 m2
1/1
Pyörätie 50 C 7
3h+k+s
, Rivitalo
72.5 m2
Kerros 1/1
Pyörätie 50 C 8
3h+k+s
, Rivitalo
75.5 m2
1/1
Pyörätie 50 C 8
3h+k+s
, Rivitalo
75.5 m2
Kerros 1/1
Pyörätie 50 B 5
4h+k+s
, Rivitalo
91 m2
1-2/2
Pyörätie 50 B 5
4h+k+s
, Rivitalo
91 m2
Kerros 1-2/2
Pyörätie 50 B 4
4h+k+s
, Rivitalo
91.5 m2
1-2/2
Pyörätie 50 B 4
4h+k+s
, Rivitalo
91.5 m2
Kerros 1-2/2
Pyörätie 50 B 6
4h+k+s
, Rivitalo
91.5 m2
1-2/2
Pyörätie 50 B 6
4h+k+s
, Rivitalo
91.5 m2
Kerros 1-2/2
Pyörätie 50 A 3
4h+k+s
, Rivitalo
91.5 m2
1-2/2
Pyörätie 50 A 3
4h+k+s
, Rivitalo
91.5 m2
Kerros 1-2/2

