Kohteen esittely
Vehreässä ympäristössä sijaitseva paritalokohde Koivukylän palveluiden tuntumassa. Asunnot ovat yhdessä tasossa ja niillä on omat pihat.
Alueella on päiväkodit ja koulut sekä laajat päivittäistavarakaupat. Hyvät liikenneyhteydet: Bussipysäkki lähes vieressä, juna-asema noin kilometrin päässä.
Miksi Asuntosäätiö?
Me uskomme, että onnellinen koti ja laadukas asuminen kuuluvat kaikille. Emme tavoittele voittoa, vaan käytämme kaikki vastikkeista ja vuokrista saadut tulot toimintamme kehittämiseen. Jo yli 33 000 suomalaista on valinnut Asuntosäätiön tarjoaman kodin. Tiesithän, että myös lemmikit ovat tervetulleita kaikkiin koteihimme!
Rakennuksen tiedot
- Asumismuoto Asokoti
- Keskimääräinen asumisoikeusmaksu / jm² 427,54€
- Hissit Ei
- Talosauna Ei
- Asuntoja 6
- Asuinrakennuksia 3
- Käyttövastike / kk / jm² 15,74€
- Valmistumisvuosi 2000
- Energialuokka D
- Lämmitysmuoto Kauko
- Autopaikat 13
- Laajakaista DNA 4G
- Antennijärjestelmä Harava
- Kattomateriaali Pelti
- Runkomateriaali Puu
- Lemmikit Sallittu
Huoneistot ja pohjakuvat: Kustaantie 2A, Piharakennus, Paritalo
Lisää hakemukselle kaikki haluamasi asuntotyypit. Mahdollisuutesi asunnon saamiseksi paranevat, kun voimme tarjota sinulle kaikkia valitsemasi asuntotyypin asuntoja, jotka mahdollisesti vapautuvat myöhemmin tästä kohteesta. Olet automaattisesti näiden asuntotyyppien hakuprosessissa.
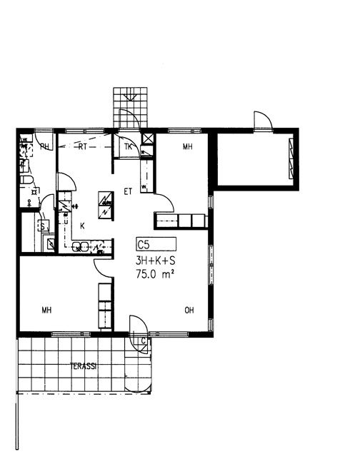
Kustaantie 2A C 5
3h+k+s
, Paritalo
75 m2
1/1
Kustaantie 2A C 5
3h+k+s
, Paritalo
75 m2
Kerros 1/1
Kustaantie 2A B 3
3h+k+s+ash
, Paritalo
75 m2
1/1
Kustaantie 2A B 3
3h+k+s+ash
, Paritalo
75 m2
Kerros 1/1
Kustaantie 2A A 1
3h+k+s+ash
, Paritalo
75 m2
1/1
Kustaantie 2A A 1
3h+k+s+ash
, Paritalo
75 m2
Kerros 1/1
Kustaantie 2A B 4
5h+k+s
, Paritalo
105 m2
1/1
Kustaantie 2A B 4
5h+k+s
, Paritalo
105 m2
Kerros 1/1
Kustaantie 2A C 6
5h+k+s
, Paritalo
105 m2
1/1
Kustaantie 2A C 6
5h+k+s
, Paritalo
105 m2
Kerros 1/1
Kustaantie 2A A 2
5h+k+s
, Paritalo
105 m2
1/1
Kustaantie 2A A 2
5h+k+s
, Paritalo
105 m2
Kerros 1/1