Kohteen esittely
Mukava lapsiystävällinen alue lähellä järveä. Hanko-Hyvinkää-tie mahdollistaa hyvät yhteydet moneen suuntaan. Nämä rivitalokodit on suunniteltua perheiden tarpeita silmälläpitäen. Tällä mukavalla pientalo-ja rivitaloalueella viihdyt varmasti.
Miksi Asuntosäätiö?
Me uskomme, että onnellinen koti ja laadukas asuminen kuuluvat kaikille. Emme tavoittele voittoa, vaan käytämme kaikki vastikkeista ja vuokrista saadut tulot toimintamme kehittämiseen. Jo yli 33 000 suomalaista on valinnut Asuntosäätiön tarjoaman kodin. Tiesithän, että myös lemmikit ovat tervetulleita kaikkiin koteihimme!
Rakennuksen tiedot
- Asumismuoto Asokoti
- Keskimääräinen asumisoikeusmaksu / jm² 359,27€
- Hissit Ei
- Talosauna Ei
- Asuntoja 14
- Asuinrakennuksia 6
- Käyttövastike / kk / jm² 10,29€
- Valmistumisvuosi 2001
- Energialuokka B
- Lämmitysmuoto Maalämpö
- Autopaikat 29
- Laajakaista DNA Welho
- Antennijärjestelmä Kaapeli
- KaapeliTV DNA
- Kattomateriaali Tiili
- Runkomateriaali Betoni
- Lemmikit Sallittu
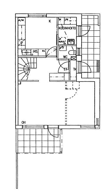
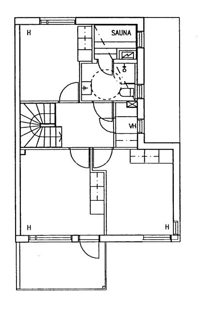
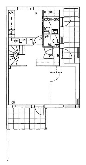
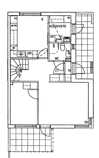
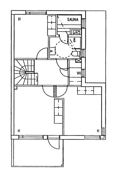
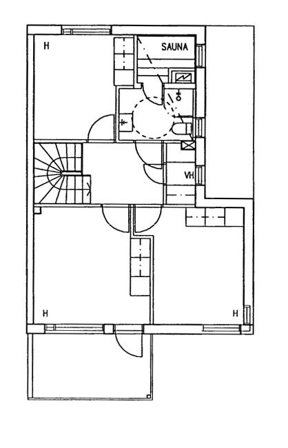
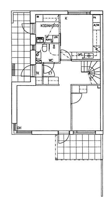
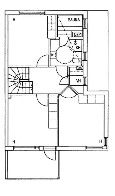
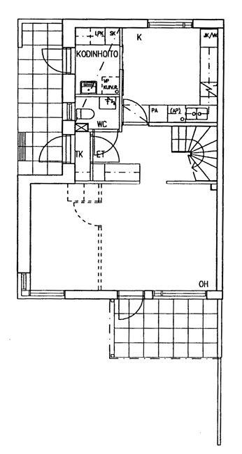
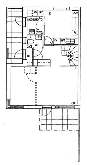
Huoneistot ja pohjakuvat: Jahtimiehentie 5-7, Rivitalo, Piharakennus, Paritalo
Lisää hakemukselle kaikki haluamasi asuntotyypit. Mahdollisuutesi asunnon saamiseksi paranevat, kun voimme tarjota sinulle kaikkia valitsemasi asuntotyypin asuntoja, jotka mahdollisesti vapautuvat myöhemmin tästä kohteesta. Olet automaattisesti näiden asuntotyyppien hakuprosessissa.
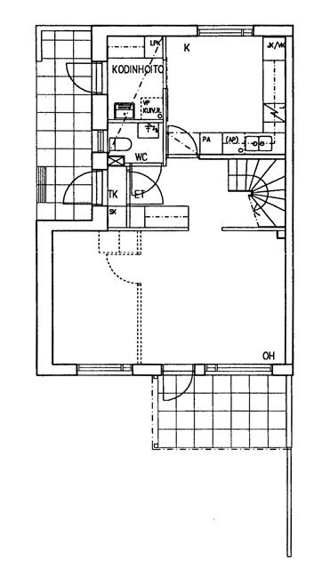
Jahtimiehentie 5-7 C 6
3h+k+s
, Rivitalo
83 m2
I-II/2
Jahtimiehentie 5-7 C 6
3h+k+s
, Rivitalo
83 m2
Kerros I-II/2
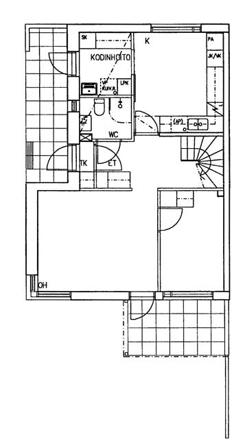
Jahtimiehentie 5-7 F 13
3h+k+s
, Rivitalo
83 m2
I-II/2
Jahtimiehentie 5-7 F 13
3h+k+s
, Rivitalo
83 m2
Kerros I-II/2
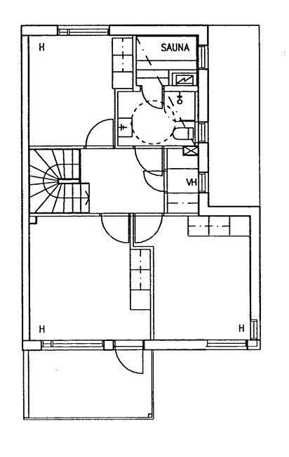
Jahtimiehentie 5-7 C 5
4h+k+s
, Rivitalo
96 m2
I-II/2
Jahtimiehentie 5-7 C 5
4h+k+s
, Rivitalo
96 m2
Kerros I-II/2
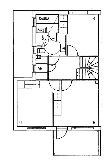
Jahtimiehentie 5-7 C 7
4h+k+s
, Rivitalo
96 m2
I-II/2
Jahtimiehentie 5-7 C 7
4h+k+s
, Rivitalo
96 m2
Kerros I-II/2
Jahtimiehentie 5-7 F 14
4h+k+s
, Rivitalo
96 m2
I-II/2
Jahtimiehentie 5-7 F 14
4h+k+s
, Rivitalo
96 m2
Kerros I-II/2
Jahtimiehentie 5-7 F 12
4h+k+s
, Rivitalo
96 m2
I-II/2
Jahtimiehentie 5-7 F 12
4h+k+s
, Rivitalo
96 m2
Kerros I-II/2
Jahtimiehentie 5-7 E 10
4h+k+s
, Paritalo
96 m2
I-II/2
Jahtimiehentie 5-7 E 10
4h+k+s
, Paritalo
96 m2
Kerros I-II/2
Jahtimiehentie 5-7 E 11
4h+k+s
, Paritalo
96 m2
I-II/2
Jahtimiehentie 5-7 E 11
4h+k+s
, Paritalo
96 m2
Kerros I-II/2
Jahtimiehentie 5-7 B 3
4h+k+s
, Paritalo
96 m2
I-II/2
Jahtimiehentie 5-7 B 3
4h+k+s
, Paritalo
96 m2
Kerros I-II/2
Jahtimiehentie 5-7 B 4
4h+k+s
, Paritalo
96 m2
I-II/2
Jahtimiehentie 5-7 B 4
4h+k+s
, Paritalo
96 m2
Kerros I-II/2
Jahtimiehentie 5-7 D 9
5h+k+s
, Paritalo
107 m2
I-II/2
Jahtimiehentie 5-7 D 9
5h+k+s
, Paritalo
107 m2
Kerros I-II/2
Jahtimiehentie 5-7 D 8
5h+k+s
, Paritalo
107 m2
I-II/2
Jahtimiehentie 5-7 D 8
5h+k+s
, Paritalo
107 m2
Kerros I-II/2
Jahtimiehentie 5-7 A 1
5h+k+s
, Paritalo
107 m2
Kerros I-II/2
Jahtimiehentie 5-7 A 2
5h+k+s
, Paritalo
107 m2
I-II/2
Jahtimiehentie 5-7 A 2
5h+k+s
, Paritalo
107 m2
Kerros I-II/2
