Skip to content

Nallenmäentie 5 B B 4, Helsinki, MALMI

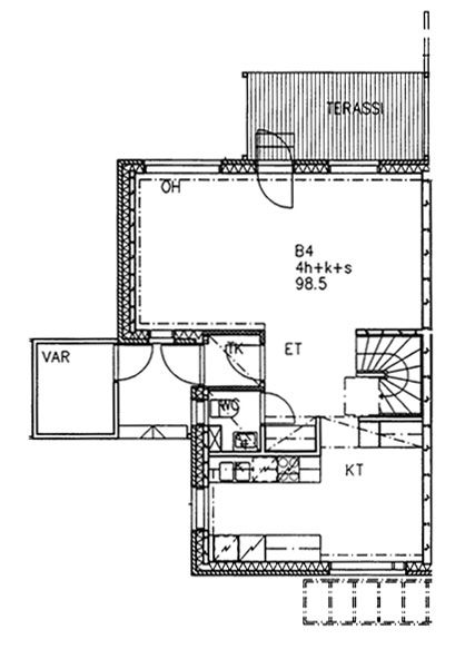
98,5 m2, 4H+K+S

Sales agent

Saana Hintsanen

Unelmoitko perheystävällisestä kodista, jossa on tilaa elämälle ja oma piha arjen rentoutumiseen? Tämä Nallenmäellä sijaitseva paritalokoti tarjoaa kaikki toivomasi mukavuudet – erinomainen pohjaratkaisu, oma sauna ja viihtyisä takapiha tekevät tästä kodista täydellisen valinnan perheellesi.

Toimivat tilaratkaisut kaikenkokoisille perheille:

If you would like to receive more information about this apartment, please contact our salesperson.

Welcome to your future home!

Unelmoitko perheystävällisestä kodista, jossa on tilaa elämälle ja oma piha arjen rentoutumiseen? Tämä Nallenmäellä sijaitseva paritalokoti tarjoaa kaikki toivomasi mukavuudet – erinomainen pohjaratkaisu, oma sauna ja viihtyisä takapiha tekevät tästä kodista täydellisen valinnan perheellesi. Toimivat tilaratkaisut kaikenkokoisille perheille: - Avara ja valoisa pohjaratkaisu tukee arkea ja tuo toimivuutta jokaiseen päivään. - Tilava olohuone on kodin sydän - Kolme reilunkokoista makuuhuonetta – jokaiselle perheenjäsenelle oma rauhallinen tila. - Oma sauna tarjoaa rentouttavat hetket kiireisen päivän päätteeksi. Takapihalla nautit oman pihan rauhasta ja vehreydestä – täydellinen paikka lasten leikeille, grilli-illallisille tai rentouttavalle aamukahville. Ota yhteyttä ja varaa yksityisesittely jo tänään! Asunto on vaihtoehtoisesti mahdollista vuokrata, mutta asuntoa tarjotaan ensisijaisesti asumisoikeusasiakkaille. Olethan yhteydessä kohteen myyjään, jos vuokraaminen kiinnostaa saana.hintsanen@asuntosaatio.fi ja lähetä hakemus sivuiltamme www.asuntosaatio.fi This apartment is also available for rent, but it is primarily offered to right-occupancy customers. Please contact the seller of the property if you are interested of renting ; saana.hintsanen@asuntosaatio.fi and submit an application through our website www.asuntosaatio.fi.

If you would like to receive more information about this apartment, please contact our salesperson.

Apartment info

Housing costs

  • Rent 1750€
  • Security deposit 1750€
  • Water fee Is included in the rent
  • Parking fees
    • — Autopaikkamaksu 1 5,00€

Apartment basic info

  • Housing type Duplex
  • Energy class D
  • Apartment type 4H+K+S
  • Living area 98.50 m²
  • Floor 1-2
  • Balcony 1
  • Own sauna Yes
  • Separate toilet Yes
  • Elevator No
  • Available Available now
  • Condition Good
  • Pets Allowed
  • Broadband DNA 4G

Extra info

Smoking in our apartments

It has been a long-term policy of ours to make all of our new residential properties completely non-smoking. We are gradually making all of our apartments non-smoking; the agreements of new residents will forbid smoking in the apartments and on the balconies from 1 January 2021 onwards. The property may not be completely non-smoking due to other apartments that may be subject to old agreements with no smoking prohibitions.

Alterations made to this home

2016 Lieden uusiminen, Liesi, RKK5070

Property Introduction

Rivitalokohde pientaloalueella Nallenmäessä. Omat, suojaisat pihat vihreässä ympäristössä. Kaukolämpö.

Lähellä Longinojan varren ulkoilualueet, jossa mm. koirapuisto. Lyhyen kävelymatkan päässä Malmin juna-asemalta, josta pääsee nopeasti niin Helsingin keskustaan kuin Vantaan suuntaankin. Ruokaostokset pääsee hoitamaan aseman yhteydessä olevissa isoissa marketeissa. Alueella on päiväkoti ja koulut ammattikorkeakouluun saakka.

Why Asuntosäätiö?

We believe that a happy home and quality living are for everyone. We do not seek immediate profit or financial benefit. We use the assets gained from our operations to develop our real estate. Over 33,000 Finns have already chosen a home offered by Asuntosäätiö. Pets are also welcome in all our homes.

Property Introduction

Rivitalokohde pientaloalueella Nallenmäessä. Omat, suojaisat pihat vihreässä ympäristössä. Kaukolämpö. Lähellä Longinojan varren ulkoilualueet, jossa mm. koirapuisto. Lyhyen kävelymatkan päässä Malmin juna-asemalta, josta pääsee nopeasti niin Helsingin keskustaan kuin Vantaan suuntaankin. Ruokaostokset pääsee hoitamaan aseman yhteydessä olevissa isoissa marketeissa. Alueella on päiväkoti ja koulut ammattikorkeakouluun saakka.

Basic house info

  • Form of housing Rental home
  • Elevators No
  • House sauna No
  • Apartment count 5
  • Building count 3
  • Construction year 1997

Apartments and floor plans: Nallenmäentie 5 ja Nallenmäenrinne 4, Paritalo, Piharakennus, Omakotitalo

Apply for apartment type

Nallenmäentie 5 B B 4

4h+k+s

, Paritalo

98.5 m2

Floor 1-2/2