Skip to content
Renovated

Kultasepänkatu 1 A 13, Kerava, SAMPOLA

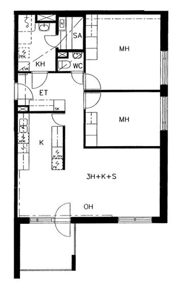
80 m2, 3H+K+S

Sales agent

Raija Saario

Ylimmän kerroksen tilava kolmio jossa on lasitettu parveke Sampolankadun ja Kultasepänkadun risteyksen suuntaan. Keittiö ja olohuone muodostavat toimivan ja avonaisen kokonaisuuden. Asunto ja taloyhtiö on juuri peruskorjattu! Autopaikka on tarvittaessa saatavilla.

Tässä asunnossa on myös vuokraus mahdollisuus (1190 €/kk). Asunto on tarkoitettu ensisijaisesti asumisoikeusasumiseen ja asuntoa tarjotaan aina ensisijaisesti asumisoikeuden hakijoille. Mikäli asuntoon ei ole asumisoikeushakijoita tulemme olemaan erikseen yhteydessä vuokrahakemuksen jättäneisiin hakijoihin joille asuntoa voidaan tarjota (ei tulo/varallisuusrajoja). Hakemus ei ole sitova eikä asuntoa myydä vuokrasopimuksen voimassaolon aikana. Vuokrasopimus on voimassa toistaiseksi eikä sido määräaikaisuuteen (irtisanomisaika vuokralaisella 1 kk) Kiinnostuitko vuokra-/asumisoikeusasumisesta?

If you would like to receive more information about this apartment, please contact our salesperson.

Welcome to your future home!

Ylimmän kerroksen tilava kolmio jossa on lasitettu parveke Sampolankadun ja Kultasepänkadun risteyksen suuntaan. Keittiö ja olohuone muodostavat toimivan ja avonaisen kokonaisuuden. Asunto ja taloyhtiö on juuri peruskorjattu! Autopaikka on tarvittaessa saatavilla. Tässä asunnossa on myös vuokraus mahdollisuus (1190 €/kk). Asunto on tarkoitettu ensisijaisesti asumisoikeusasumiseen ja asuntoa tarjotaan aina ensisijaisesti asumisoikeuden hakijoille. Mikäli asuntoon ei ole asumisoikeushakijoita tulemme olemaan erikseen yhteydessä vuokrahakemuksen jättäneisiin hakijoihin joille asuntoa voidaan tarjota (ei tulo/varallisuusrajoja). Hakemus ei ole sitova eikä asuntoa myydä vuokrasopimuksen voimassaolon aikana. Vuokrasopimus on voimassa toistaiseksi eikä sido määräaikaisuuteen (irtisanomisaika vuokralaisella 1 kk) Kiinnostuitko vuokra-/asumisoikeusasumisesta? Täytä aso- tai vuokrahakemus sivuillamme: www.asuntosaatio.fi ja ota yhteyttä: raija.saario(at)asuntosaatio.fi

If you would like to receive more information about this apartment, please contact our salesperson.

Apartment info

Housing costs

  • Rent 1190€
  • Security deposit 250€
  • Water fee/person/month 25€
  • Parking fees
    • — Autokatos 1 25,00€
    • — Autohallimaksu 1 34,00€
    • — Autopaikkamaksu 1 16,00€

Apartment basic info

  • Housing type Apartment house
  • Energy class D
  • Apartment type 3H+K+S
  • Living area 80.00 m²
  • Floor 4
  • Balcony 1
  • Own sauna Yes
  • Separate toilet Yes
  • Elevator Yes
  • Available Available now
  • Condition Good
  • Pets Allowed
  • Broadband Elisa

Extra info

Smoking in our apartments

It has been a long-term policy of ours to make all of our new residential properties completely non-smoking. We are gradually making all of our apartments non-smoking; the agreements of new residents will forbid smoking in the apartments and on the balconies from 1 January 2021 onwards. The property may not be completely non-smoking due to other apartments that may be subject to old agreements with no smoking prohibitions.

Alterations made to this home

2012 parvekelasitus

Property Introduction

Keravan keskustan tuntumassa nelikerroksinen hissillinen kerrostalo. Kaikissa asunnoissa on oma sauna.

Keskustan kaupat ja juna-asema kävelymatkan päässä.

Talon on peruskorjauksessa vuonna 2025 uusittiin mittavasti asuntojen pintoja, kalusteita ja kodinkoneita. Kaikkiin asuntoihin on asennettu myös astianpesukoneet. Parvekelasitukset ja sälekaihtimet eivät sisältyneet urakkaan, mutta aikaisemmin asennetut on jätetty paikoilleen ja ovat asukkaan kunnossapitovastuulla.

Why Asuntosäätiö?

We believe that a happy home and quality living are for everyone. We do not seek immediate profit or financial benefit. We use the assets gained from our operations to develop our real estate. Over 33,000 Finns have already chosen a home offered by Asuntosäätiö. Pets are also welcome in all our homes.

Property Introduction

Keravan keskustan tuntumassa nelikerroksinen hissillinen kerrostalo. Kaikissa asunnoissa on oma sauna. Keskustan kaupat ja juna-asema kävelymatkan päässä. Talon on peruskorjauksessa vuonna 2025 uusittiin mittavasti asuntojen pintoja, kalusteita ja kodinkoneita. Kaikkiin asuntoihin on asennettu myös astianpesukoneet. Parvekelasitukset ja sälekaihtimet eivät sisältyneet urakkaan, mutta aikaisemmin asennetut on jätetty paikoilleen ja ovat asukkaan kunnossapitovastuulla.

Basic house info

  • Form of housing Rental home
  • Elevators 1
  • House sauna No
  • Apartment count 15
  • Building count 1
  • Construction year 1995

Apartments and floor plans: Kultasepänkatu 1, Piharakennus, Kerrostalo

Apply for apartment type

Kultasepänkatu 1 A 13

3h+k+s

, Kerrostalo

80 m2

Floor 4/4

Kultasepänkatu 1 A 9

3h+k+s

, Kerrostalo

80 m2

Floor 3/4