Skip to content

Taapelikatu 6 A 31, Lahti, ANKKURI

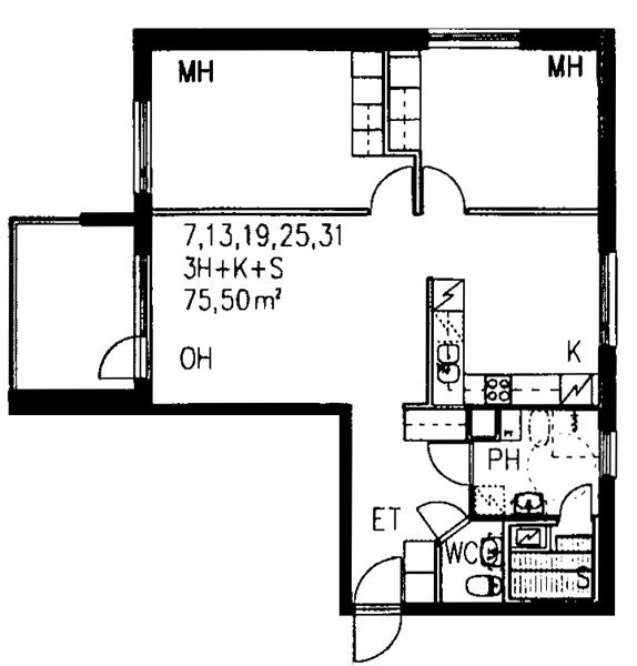
75,5 m2, 3H+K+S

Sales agent

Tanja Ollinaho

Kartanon puistomaisella ja vehreällä alueella kuudennen kerroksen viihtyisä ja tilava, saunallinen kolmio. Lasitettu parveke Vesijärvensuuntaan. Asuntoon kuuluu lisäksi mm. huoneistokohtainen häkkivarasto, taloyhtiön pyörävarasto sekä pesula kuivaushuoneineen. Taloyhtiölaajakaista 50M sisältyy vastikkeeseen. Lemmikit ovat tervetulleita. Asunnon peruskorjaus valmistuu alustavasti 19.05.2026. Kiinnostuitko, tee hakemus asuntosaatio.fi.

Asuntoa tarjotaan myös vuokralle. Vuokrasopimukset toistaiseksi voimassa olevia. Vakuus 250 €. Vuokrahakemukset tulee jättää osoitteessa asuntosaatio.fi, kiitos.

If you would like to receive more information about this apartment, please contact our salesperson.

Welcome to your future home!

Kartanon puistomaisella ja vehreällä alueella kuudennen kerroksen viihtyisä ja tilava, saunallinen kolmio. Lasitettu parveke Vesijärvensuuntaan. Asuntoon kuuluu lisäksi mm. huoneistokohtainen häkkivarasto, taloyhtiön pyörävarasto sekä pesula kuivaushuoneineen. Taloyhtiölaajakaista 50M sisältyy vastikkeeseen. Lemmikit ovat tervetulleita. Asunnon peruskorjaus valmistuu alustavasti 19.05.2026. Kiinnostuitko, tee hakemus asuntosaatio.fi. Asuntoa tarjotaan myös vuokralle. Vuokrasopimukset toistaiseksi voimassa olevia. Vakuus 250 €. Vuokrahakemukset tulee jättää osoitteessa asuntosaatio.fi, kiitos.

If you would like to receive more information about this apartment, please contact our salesperson.

Apartment info

Housing costs

  • Rent 1100€
  • Security deposit 250€
  • Water fee/person/month 20€
  • Parking fees
    • — Autopaikkamaksu 1 10,00€
    • — Autokatos 1 16,00€

Apartment basic info

  • Housing type Apartment house
  • Energy class E
  • Apartment type 3H+K+S
  • Living area 75.50 m²
  • Floor 6
  • Balcony 1
  • Own sauna Yes
  • Separate toilet Yes
  • Elevator Yes
  • Available 07.03.2026
  • Condition Satisfactory
  • Pets Allowed
  • Broadband DNA Welho

Extra info

Smoking in our apartments

It has been a long-term policy of ours to make all of our new residential properties completely non-smoking. We are gradually making all of our apartments non-smoking; the agreements of new residents will forbid smoking in the apartments and on the balconies from 1 January 2021 onwards. The property may not be completely non-smoking due to other apartments that may be subject to old agreements with no smoking prohibitions.

Alterations made to this home

1999 Astianpesukone 2000 Sälekaihtimet 2001 Sälekaihtimet 1998 Parketti 2004 Parvekelasit Nika-järjestelmällä 2007 seinäkaappi 2007 kukkalauta 2007 kylpyhuoneen allaskaappi ja wc:n allaskaappi 2007 asianpesukone

Property Introduction

Seitsemänkerroksinen kerrostalo Ankkurissa päättyvällä kadulla. Valoisien kotien koko vaihtelee 42 m2 kaksioista aina 91 m2 neljään huoneeseen ja keittiöön. Suojaisa piha-alue kesällä kukkivine puine ja pensaineen kutsuu viettämään aikaa ulkona.

Lyhyt kävelymatka Vesijärven rantaan vuodenaikoja ihailemaan, Sibeliustalolle kulttuuria harrastamaan ja vehreään Lanupuistoon ulkoilemaan. Lähellä myös ruokakauppa ja uimahalli. Keskustan palvelut pyörämatkan päässä. Noin kilometrin säteellä myös koulut alakoulusta aina lukioon saakka.

Why Asuntosäätiö?

We believe that a happy home and quality living are for everyone. We do not seek immediate profit or financial benefit. We use the assets gained from our operations to develop our real estate. Over 33,000 Finns have already chosen a home offered by Asuntosäätiö. Pets are also welcome in all our homes.

Property Introduction

Seitsemänkerroksinen kerrostalo Ankkurissa päättyvällä kadulla. Valoisien kotien koko vaihtelee 42 m2 kaksioista aina 91 m2 neljään huoneeseen ja keittiöön. Suojaisa piha-alue kesällä kukkivine puine ja pensaineen kutsuu viettämään aikaa ulkona. Lyhyt kävelymatka Vesijärven rantaan vuodenaikoja ihailemaan, Sibeliustalolle kulttuuria harrastamaan ja vehreään Lanupuistoon ulkoilemaan. Lähellä myös ruokakauppa ja uimahalli. Keskustan palvelut pyörämatkan päässä. Noin kilometrin säteellä myös koulut alakoulusta aina lukioon saakka.

Basic house info

  • Form of housing Rental home
  • Elevators 1
  • House sauna No
  • Laundry room Yes
  • Drying room Yes
  • Apartment count 36

Apartments and floor plans: Taapelikatu 6, Kerrostalo

Apply for apartment type

Taapelikatu 6 A 31

3h+k+s

, Kerrostalo

75.5 m2

Floor 6/7

Will be available 07.03.2026