Skip to content

Kangastuvankatu 8 A 15, Lappeenranta, HARAPAINEN

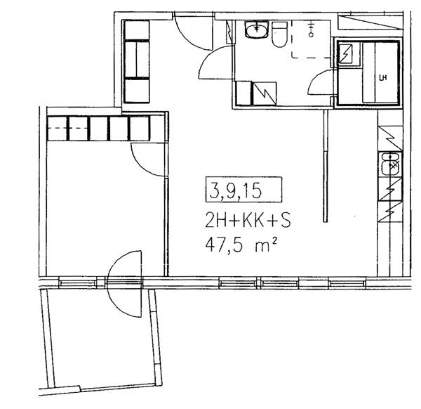
47,5 m2, 2H+KK+S

Sales agent

Jussi Jaakkola

Ylimmän kolmannen kerroksen pikkukoti hissitalossa. Olohuone ja keittiö yhdistyy tässä asunnossa tehokkaasti. Reilun kokoinen makuuhuone, jossa mukavasti kaappitilaa. Makuuhuoneesta on myös käynti asunnon lasitetulle parvekkeelle. Asunnon kylpyhuoneen lisäksi tässä asunnossa on myös sauna. Vastike sisäl

If you would like to receive more information about this apartment, please contact our salesperson.

Welcome to your future home!

Ylimmän kolmannen kerroksen pikkukoti hissitalossa. Olohuone ja keittiö yhdistyy tässä asunnossa tehokkaasti. Reilun kokoinen makuuhuone, jossa mukavasti kaappitilaa. Makuuhuoneesta on myös käynti asunnon lasitetulle parvekkeelle. Asunnon kylpyhuoneen lisäksi tässä asunnossa on myös sauna. Vastike sisältää myös kaapelilaajakaistan 50M! Asunto on tarkoitettu ensisijaisesti asumisoikeusasumiseen ja asuntoa tarjotaan aina ensisijaisesti asumisoikeuden hakijoille (mikäli asuntoon ei ole asumisoikeushakijoita tulemme olemaan erikseen yhteydessä vuokrahakemuksen jättäneisiin). Jätä vuokra- tai asumisoikeushakemus sivuillemme www.asuntosaatio.fi. Hakemus ei ole sitova eikä asuntoa myydä vuokrasopimuksen voimassaolon aikana. Vuokrasopimus on voimassa toistaiseksi eikä sido määräaikaisuuteen (irtisanomisaika vuokralaisella 1 kk) Kiinnostuitko vuokra-/asumisoikeusasumisesta? Lisätietoja jussi.jaakkola@asuntosaatio.fi

If you would like to receive more information about this apartment, please contact our salesperson.

Apartment info

Housing costs

  • Rent 715€
  • Security deposit 250€
  • Water fee/person/month 25€
  • Parking fees
    • — Autopaikkamaksu 1 15,00€

Apartment basic info

  • Housing type Apartment house
  • Energy class D
  • Apartment type 2H+KK+S
  • Living area 47.50 m²
  • Floor 3
  • Balcony 1
  • Own sauna Yes
  • Elevator Yes
  • Available Available now
  • Condition Good
  • Pets Allowed
  • Broadband Elisa

Extra info

Smoking in our apartments

It has been a long-term policy of ours to make all of our new residential properties completely non-smoking. We are gradually making all of our apartments non-smoking; the agreements of new residents will forbid smoking in the apartments and on the balconies from 1 January 2021 onwards. The property may not be completely non-smoking due to other apartments that may be subject to old agreements with no smoking prohibitions.

Property Introduction

Kävelymatkan päässä keskustasta rauhallinen kolmekerroksinen hissitalo Harapaisen kaupunginosassa. Kaikissa asunnoissa sauna ja lasitetut parvekkeet. Kohteessa käytetään hiilineutraalia kaukolämpöä.

Lähipalveluista S-Market, apteekki, Rahulan Rehu, leipomo muutaman sadan metrin päässä. Alakylän päiväkoti löytyy kiven heiton päästä, mutta koulut keskustassa tai Kaukaalla. Hyvät kulkuyhteydet keskustaan ja 6-tielle. Rautatieasema löytyy myös muutaman minuutin kävelymatkan takaa.

Why Asuntosäätiö?

We believe that a happy home and quality living are for everyone. We do not seek immediate profit or financial benefit. We use the assets gained from our operations to develop our real estate. Over 33,000 Finns have already chosen a home offered by Asuntosäätiö. Pets are also welcome in all our homes.

Property Introduction

Kävelymatkan päässä keskustasta rauhallinen kolmekerroksinen hissitalo Harapaisen kaupunginosassa. Kaikissa asunnoissa sauna ja lasitetut parvekkeet. Kohteessa käytetään hiilineutraalia kaukolämpöä. Lähipalveluista S-Market, apteekki, Rahulan Rehu, leipomo muutaman sadan metrin päässä. Alakylän päiväkoti löytyy kiven heiton päästä, mutta koulut keskustassa tai Kaukaalla. Hyvät kulkuyhteydet keskustaan ja 6-tielle. Rautatieasema löytyy myös muutaman minuutin kävelymatkan takaa.

Basic house info

  • Form of housing Rental home
  • Elevators 1
  • House sauna No
  • Drying room Yes
  • Apartment count 18
  • Building count 1

Apartments and floor plans: Kangastuvankatu 8, Kerrostalo, Piharakennus

Apply for apartment type

Kangastuvankatu 8 A 15

2h+kk+s

, Kerrostalo

47.5 m2

Floor 3/3