Skip to content

Metsolankuja 4 D 10, Lohja, GUNNARLA

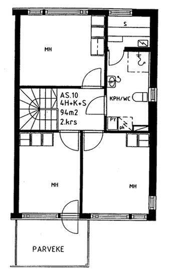
94 m2, 4H+K+S

Sales agent

Ida Aalto

Kaksi kerroksinen rivitalokoti etsii uusia asukkaita.

Asunnon yläkerrassa on kolme makuuhuonetta sekä saunallinen kylpyhuone ja alakerrasta löytyy keittiö, erillis wc sekä olohuone, josta on käynti omalle pihalle.

If you would like to receive more information about this apartment, please contact our salesperson.

Welcome to your future home!

Kaksi kerroksinen rivitalokoti etsii uusia asukkaita. Asunnon yläkerrassa on kolme makuuhuonetta sekä saunallinen kylpyhuone ja alakerrasta löytyy keittiö, erillis wc sekä olohuone, josta on käynti omalle pihalle. Asunnossa remontoidaan kylpyhuone ja sauna ennen uuden asukkaan sisään muuttoa. Uusi asukas pääsee uuteen kotiin helmikuun 2026 lopussa. Asunto myydään ensisijaisesti asumisoikeutena, mutta se on mahdollista myös vuokrata. Jätäthän hakemuksen asuntosaatio.fi- sivulla.

If you would like to receive more information about this apartment, please contact our salesperson.

Apartment info

Housing costs

  • Rent 1300€
  • Security deposit 1300€
  • Water fee Is included in the rent
  • Parking fees
    • — Autopaikkamaksu 1 8,00€

Apartment basic info

  • Housing type Terraced house
  • Energy class D
  • Apartment type 4H+K+S
  • Living area 94.00 m²
  • Floor 1-2
  • Balcony 1
  • Own sauna Yes
  • Separate toilet Yes
  • Elevator No
  • Available Available now
  • Condition Good
  • Pets Sallittu
  • Broadband DNA Welho

Extra info

Smoking in our apartments

It has been a long-term policy of ours to make all of our new residential properties completely non-smoking. We are gradually making all of our apartments non-smoking; the agreements of new residents will forbid smoking in the apartments and on the balconies from 1 January 2021 onwards. The property may not be completely non-smoking due to other apartments that may be subject to old agreements with no smoking prohibitions.

Alterations made to this home

2011 Keraamisen lieden hankinta Tila: Keittiö (Asoetu) 2015 Astianpesukoneen ja suojakaukalon hankinta Tila: Keittiö (Asoetu) 2015 Seinien maalaus Tila: Keittiö (Asoetu)

Property Introduction

Viihtyisä rivitalokoti rauhalliselta ja lapsiystävälliseltä Gunnarlan alueelta. Asunnot ovat saunallisia 3-4 huoneen ja keittiön asuntoja.

Koulut ja päiväkoti ovat lähietäisyydellä, uimahalliin lyhyehkö matka. Tervetuloa viihtymään Gunnarlaan.

Why Asuntosäätiö?

We believe that a happy home and quality living are for everyone. We do not seek immediate profit or financial benefit. We use the assets gained from our operations to develop our real estate. Over 33,000 Finns have already chosen a home offered by Asuntosäätiö. Pets are also welcome in all our homes.

Property Introduction

Viihtyisä rivitalokoti rauhalliselta ja lapsiystävälliseltä Gunnarlan alueelta. Asunnot ovat saunallisia 3-4 huoneen ja keittiön asuntoja. Koulut ja päiväkoti ovat lähietäisyydellä, uimahalliin lyhyehkö matka. Tervetuloa viihtymään Gunnarlaan.

Basic house info

  • Form of housing Rental home
  • Elevators No
  • House sauna No
  • Apartment count 12
  • Building count 4
  • Construction year 1999

Apartments and floor plans: Metsolankuja 4, Rivitalo, Piharakennus, Paritalo

Apply for apartment type

Metsolankuja 4 D 10

4h+k+s

, Rivitalo

94 m2

Floor 1-2/2