Skip to content

Krakantie 2B B 47, Vantaa, PAKKALA

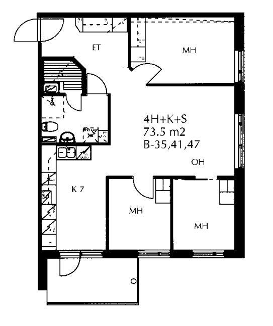
73,5 m2, 3H+K+S

Sales agent

Jemina Jalonen

Valoisa ja hyväkuntoinen kolmio Pakkalassa! Tässä 3h+k-asunnossa on vaalea laminaattilattia, tilavat makuuhuoneet runsaalla kaappitilalla sekä päivitetty keittiö. Pohjaratkaisu on selkeä ja käytännöllinen – tilava olohuone yhdistyy keittiöön, ja suuret ikkunat tuovat runsaasti luonnonvaloa. Huomioith

If you would like to receive more information about this apartment, please contact our salesperson.

Welcome to your future home!

Valoisa ja hyväkuntoinen kolmio Pakkalassa! Tässä 3h+k-asunnossa on vaalea laminaattilattia, tilavat makuuhuoneet runsaalla kaappitilalla sekä päivitetty keittiö. Pohjaratkaisu on selkeä ja käytännöllinen – tilava olohuone yhdistyy keittiöön, ja suuret ikkunat tuovat runsaasti luonnonvaloa. Huomioithan, että pohjakuvasta poiketen huoneisto on 3h+k+s. Hyvä valinta viihtyisää ja toimivaa kotia etsivälle!

If you would like to receive more information about this apartment, please contact our salesperson.

Apartment info

Housing costs

  • Rent 1130€
  • Security deposit 1130€
  • Water fee/person/month 20€
  • Parking fees
    • — Autopaikkamaksu 1 12,00€

Apartment basic info

  • Housing type Apartment house
  • Energy class E
  • Apartment type 3H+K+S
  • Living area 73.50 m²
  • Floor 4
  • Balcony 1
  • Own sauna Yes
  • Elevator Yes
  • Available Available now
  • Condition Good
  • Pets Allowed
  • Broadband DNA Welho

Extra info

Smoking in our apartments

It has been a long-term policy of ours to make all of our new residential properties completely non-smoking. We are gradually making all of our apartments non-smoking; the agreements of new residents will forbid smoking in the apartments and on the balconies from 1 January 2021 onwards. The property may not be completely non-smoking due to other apartments that may be subject to old agreements with no smoking prohibitions.

Alterations made to this home

2001 sälekaihtimet 2001 keittiökaappien ovet, astianpesukone 2014 Astianpesukoneen ja suojakaukalon hankinta, Sandstorm dish 7 PR 45db 2020 Astianpesukoneen uusiminen 2017 Parvekelasitus

Property Introduction

Valoisa kerrostalokohde Pakkalassa. Kaikissa asunnoissa on oma sauna ja osassa myös parveke. Kohteessa on omatoimiviherhoito.

Lähellä on päiväkoteja, Krakanpuisto koirapuistoineen ja Kauppakeskus Jumbon palvelut. Hyvät liikenneyhteydet valtaväylien läheisyydessä.

Why Asuntosäätiö?

We believe that a happy home and quality living are for everyone. We do not seek immediate profit or financial benefit. We use the assets gained from our operations to develop our real estate. Over 33,000 Finns have already chosen a home offered by Asuntosäätiö. Pets are also welcome in all our homes.

Property Introduction

Valoisa kerrostalokohde Pakkalassa. Kaikissa asunnoissa on oma sauna ja osassa myös parveke. Kohteessa on omatoimiviherhoito. Lähellä on päiväkoteja, Krakanpuisto koirapuistoineen ja Kauppakeskus Jumbon palvelut. Hyvät liikenneyhteydet valtaväylien läheisyydessä.

Basic house info

  • Form of housing Rental home
  • Elevators 2
  • House sauna No
  • Drying room Yes
  • Apartment count 52
  • Building count 2

Apartments and floor plans: Krakantie 2 B, Kerrostalo, Piharakennus

Apply for apartment type

Krakantie 2B B 47

3h+k+s

, Kerrostalo

73.5 m2

Floor 4/5

Available now