Skip to content

Pellonkulmantie 12 C 24, Järvenpää, PELLONKULMA

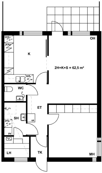
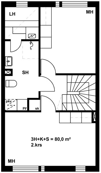
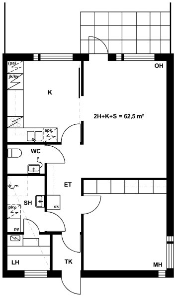
80 m2, 3H+K+S

Sales agent

Hannele Nybergh

Huoneisto on heti vapaana. Asuntoon asennettu laminaattilattia ja seiniä maalattu. Voit jättää hakemuksen tähän kohteeseen asuntosaatio.fi sivujen kautta.

If you would like to receive more information about this apartment, please contact our salesperson.

Welcome to your future home!

Huoneisto on heti vapaana. Asuntoon asennettu laminaattilattia ja seiniä maalattu. Voit jättää hakemuksen tähän kohteeseen asuntosaatio.fi sivujen kautta.

If you would like to receive more information about this apartment, please contact our salesperson.

Apartment info

Housing costs

  • Right-of-occupancy payment 15217,97€
    • — Original right-of-occupancy payment 8052,84€
    • — Index adjustment 7165,13€
  • Residence charge 984,36€
    • — Basic charge 705,12€
    • — Communal charge 279,24€
  • Security deposit 250€
  • Water fee/person/month 15€
  • Parking fees
    • — Autopaikkamaksu 1 15,00€

Apartment basic info

  • Housing type Terraced house
  • Energy class D
  • Apartment type 3H+K+S
  • Living area 80.00 m²
  • Floor 1-2
  • Own sauna Yes
  • Separate toilet Yes
  • Elevator No
  • Available Available now
  • Condition Good
  • Pets Allowed
  • Broadband Elisa

Extra info

Smoking in our apartments

It has been a long-term policy of ours to make all of our new residential properties completely non-smoking. We are gradually making all of our apartments non-smoking; the agreements of new residents will forbid smoking in the apartments and on the balconies from 1 January 2021 onwards. The property may not be completely non-smoking due to other apartments that may be subject to old agreements with no smoking prohibitions.

Alterations made to this home

2010 Kylmäkalusteiden uusiminen Tila: Keittiö (Asoetu) 2010 Keraamisen lieden hankinta Tila: Keittiö (Asoetu)

Property Introduction

Rivitaloyhtiö Pellonkulman pientaloalueella. Talossa on asuntoja pienistä kaksioista neliöihin, osa asunnoista on luhtitalossa. Yhtiössä on tehty keittiöiden ja kylpyhuoneiden perusparannuksia 2018- 2019. Asukkaiden käytössä on mm. pesutupa.

Lähikauppa aivan vieressä. Haarajoen juna-asemalle alle kilometrin matka.

Why Asuntosäätiö?

We believe that a happy home and quality living are for everyone. We do not seek immediate profit or financial benefit. We use the assets gained from our operations to develop our real estate. Over 33,000 Finns have already chosen a home offered by Asuntosäätiö. Pets are also welcome in all our homes.

Property Introduction

Rivitaloyhtiö Pellonkulman pientaloalueella. Talossa on asuntoja pienistä kaksioista neliöihin, osa asunnoista on luhtitalossa. Yhtiössä on tehty keittiöiden ja kylpyhuoneiden perusparannuksia 2018- 2019. Asukkaiden käytössä on mm. pesutupa. Lähikauppa aivan vieressä. Haarajoen juna-asemalle alle kilometrin matka.

Basic house info

  • Form of housing Right-of-occupancy
  • Average right-of-occupancy payment / jm² 196,2€
  • Elevators No
  • House sauna No
  • Laundry room Yes
  • Drying room Yes

Apartments and floor plans: Pellonkulmantie 12, Luhtikäytävätalo, Rivitalo, Piharakennus

Add all the apartment types you want to your application. Your opportunity to get an apartment increases when we are able to offer you all of the apartment types that may be available later on in this property. You are automatically in queue for these apartment types.

Apply for apartment type

Pellonkulmantie 12 B 15

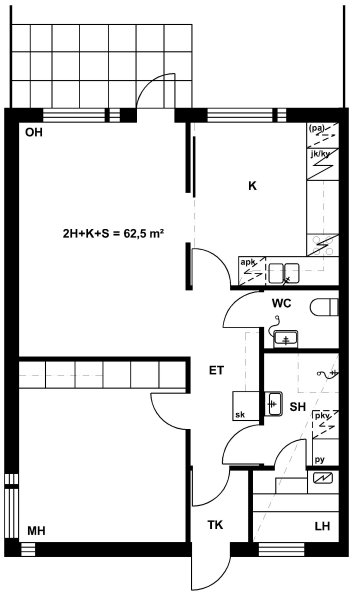
2h+k+s

, Rivitalo

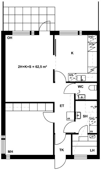
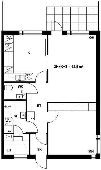
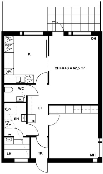
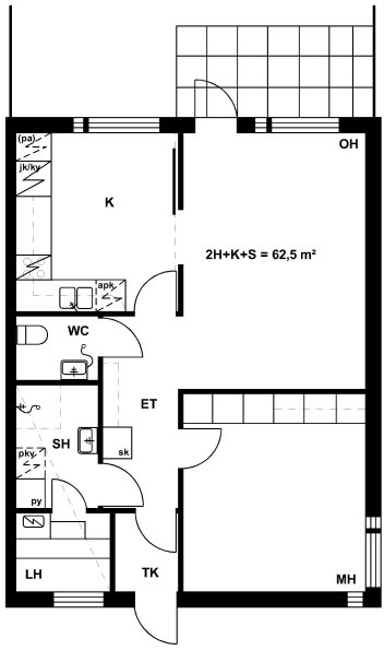
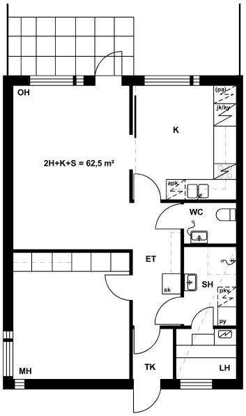
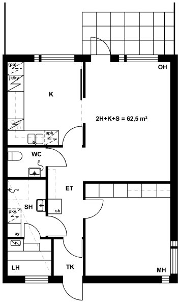
62.5 m2

Floor 1/1

Pellonkulmantie 12 B 12

2h+k+s

, Rivitalo

62.5 m2

Floor 1/1

Pellonkulmantie 12 B 13

2h+k+s

, Rivitalo

62.5 m2

Floor 1/1

Pellonkulmantie 12 B 14

2h+k+s

, Rivitalo

62.5 m2

Floor 1/1

Pellonkulmantie 12 B 16

2h+k+s

, Rivitalo

62.5 m2

Floor 1/1

Pellonkulmantie 12 B 11

2h+k+s

, Rivitalo

62.5 m2

Floor 1/1

Pellonkulmantie 12 C 20

2h+k+s

, Rivitalo

62.5 m2

Floor 1/2

Pellonkulmantie 12 C 17

2h+k+s

, Rivitalo

62.5 m2

Floor 1/2

Pellonkulmantie 12 C 19

2h+k+s

, Rivitalo

62.5 m2

Floor 1/2

Pellonkulmantie 12 C 18

2h+k+s

, Rivitalo

62.5 m2

Floor 1/2

Pellonkulmantie 12 D 25

2h+k+s

, Luhtikäytävätalo

62.5 m2

Floor 1/2

Pellonkulmantie 12 D 28

2h+k+s

, Luhtikäytävätalo

62.5 m2

Floor 2/2

Pellonkulmantie 12 D 27

2h+k+s

, Luhtikäytävätalo

62.5 m2

Floor 2/2

Pellonkulmantie 12 D 26

2h+k+s

, Luhtikäytävätalo

62.5 m2

Floor 1/2

Pellonkulmantie 12 A 9

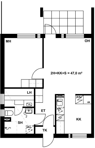
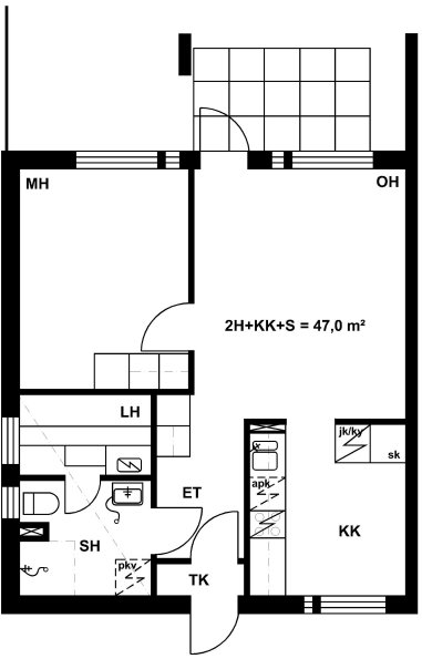
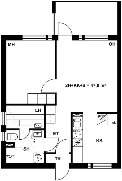
2h+kk+s

, Luhtikäytävätalo

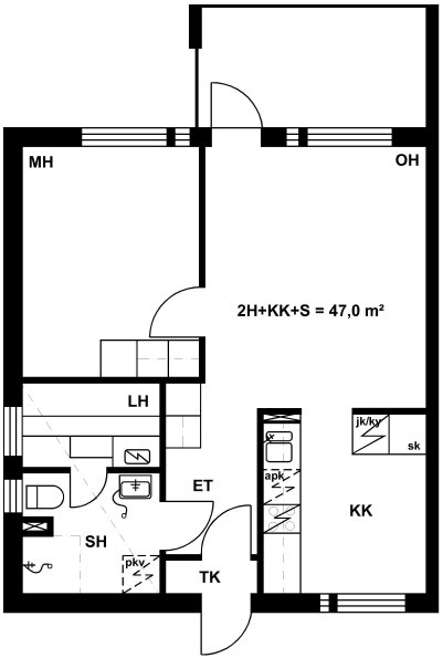
47 m2

Floor 2/2

Pellonkulmantie 12 A 1

2h+kk+s

, Luhtikäytävätalo

47 m2

Floor 1/2

Pellonkulmantie 12 A 5

2h+kk+s

, Luhtikäytävätalo

47 m2

Floor 1/2

Pellonkulmantie 12 A 4

2h+kk+s

, Luhtikäytävätalo

47 m2

Floor 1/2

Pellonkulmantie 12 A 3

2h+kk+s

, Luhtikäytävätalo

47 m2

Floor 1/2

Pellonkulmantie 12 A 10

2h+kk+s

, Luhtikäytävätalo

47 m2

Floor 2/2

Pellonkulmantie 12 A 6

2h+kk+s

, Luhtikäytävätalo

47 m2

Floor 2/2

Pellonkulmantie 12 A 2

2h+kk+s

, Luhtikäytävätalo

47 m2

Floor 1/2

Pellonkulmantie 12 A 7

2h+kk+s

, Luhtikäytävätalo

47 m2

Floor 2/2

Pellonkulmantie 12 A 8

2h+kk+s

, Luhtikäytävätalo

47 m2

Floor 2/2

Apply for apartment type

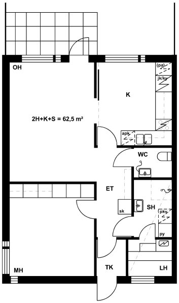
Pellonkulmantie 12 C 24

3h+k+s

, Rivitalo

80 m2

Floor 1-2/2

Pellonkulmantie 12 C 22

3h+k+s

, Rivitalo

80 m2

Floor 1-2/2

Pellonkulmantie 12 C 21

3h+k+s

, Rivitalo

80 m2

Floor 1-2/2

Pellonkulmantie 12 C 23

3h+k+s

, Rivitalo

80 m2

Floor 1-2/2

Pellonkulmantie 12 E 30

3h+k+s

, Rivitalo

80 m2

Floor 1-2/2

Pellonkulmantie 12 E 32

3h+k+s

, Rivitalo

80 m2

Floor 1-2/2

Pellonkulmantie 12 E 31

3h+k+s

, Rivitalo

80 m2

Floor 1-2/2

Apply for apartment type

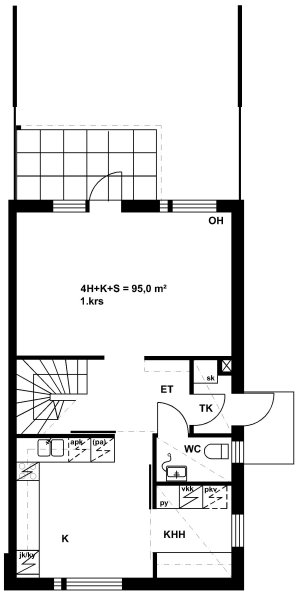
Pellonkulmantie 12 E 33

4h+k+s

, Rivitalo

95 m2

Floor 1-2/2

Pellonkulmantie 12 E 29

4h+k+s

, Rivitalo

95 m2

Floor 1-2/2