Property Introduction
Rauhallisella ja lapsiystävällisellä alueella sijaitseva rivitalokohde Simonkylässä.
Tikkurilan pohjoispuolelle sijoittuva Simonkylä tarjoaa loistavat puitteet ulkoilua rakastaville. Kesäisin Malminiitynpuistossa pääsee pelaamaan frisbeegolfia. Läheisen Simonkylänpuiston virkistysalueen lenkkipolut muuttuvat talven myötä hiihtoladuiksi siinä missä Hiiriharjun tekomäki, Möskäri, tarjoaa oivat puitteet pulkkamäessä iloitteluun. Hiirilammilla voi testata kalaonneaan ja Kylmäohjan puro virtaa läpi Simonkylänpuiston.
Peruspalvelut, kuten lähikaupat, apteekki, päiväkodit ja ala-aste löytyvät kävelymatkan päästä. Leinelän juna-asema sijaitsee kilometrin päässä, josta kulkee alle kymmenessä minuutissa niin lentokentälle kuin Tikkurilaan ja noin puolessa tunnissa Helsingin keskustaan.
Why Asuntosäätiö?
We believe that a happy home and quality living are for everyone. We do not seek immediate profit or financial benefit. We use the assets gained from our operations to develop our real estate. Over 33,000 Finns have already chosen a home offered by Asuntosäätiö. Pets are also welcome in all our homes.
Basic house info
- Form of housing Right-of-occupancy
- Average right-of-occupancy payment / jm² 387,24€
- Elevators No
- House sauna No
- Apartment count 12
- Building count 3
- Residence charge / month / jm² 14,63€
- Construction year 1997
- Energy class D
- Heating Kauko
- Parking spaces 16
- Broadband DNA 4G
- TV-antenna system Harava
- Roof material Tiili
- House frame material Puu
- Pets Allowed
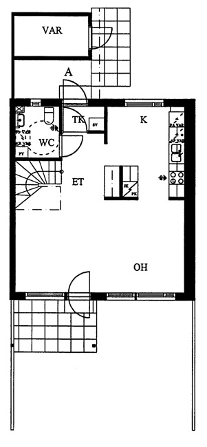
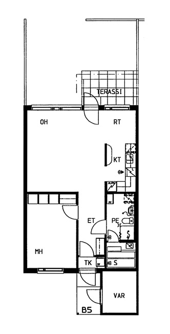
Apartments and floor plans: Vanha Soratie 5 ja 9, Piharakennus, Rivitalo
Add all the apartment types you want to your application. Your opportunity to get an apartment increases when we are able to offer you all of the apartment types that may be available later on in this property. You are automatically in queue for these apartment types.
Vanha Soratie 9 B 4
2h+k+s
, Rivitalo
58 m2
1/1
Vanha Soratie 9 B 4
2h+k+s
, Rivitalo
58 m2
Floor 1/1
Vanha Soratie 9 B 6
2h+k+s
, Rivitalo
58 m2
1/1
Vanha Soratie 9 B 6
2h+k+s
, Rivitalo
58 m2
Floor 1/1
Vanha Soratie 9 B 5
2h+k+s
, Rivitalo
58 m2
1/1
Vanha Soratie 9 B 5
2h+k+s
, Rivitalo
58 m2
Floor 1/1
Vanha Soratie 9 B 8
3h+k+s
, Rivitalo
78 m2
1/1
Vanha Soratie 9 B 8
3h+k+s
, Rivitalo
78 m2
Floor 1/1
Vanha Soratie 9 B 7
3h+k+s
, Rivitalo
78 m2
1/1
Vanha Soratie 9 B 7
3h+k+s
, Rivitalo
78 m2
Floor 1/1
Vanha Soratie 9 A 2
4h+k+s
, Rivitalo
89 m2
1-2/2
Vanha Soratie 9 A 2
4h+k+s
, Rivitalo
89 m2
Floor 1-2/2
Vanha Soratie 9 A 1
4h+k+s
, Rivitalo
89 m2
1-2/2
Vanha Soratie 9 A 1
4h+k+s
, Rivitalo
89 m2
Floor 1-2/2
Vanha Soratie 5 B
4h+k+s
, Rivitalo
91 m2
1-2/2
Vanha Soratie 5 B
4h+k+s
, Rivitalo
91 m2
Floor 1-2/2
Vanha Soratie 5 C
4h+k+s
, Rivitalo
91 m2
1-2/2
Vanha Soratie 5 C
4h+k+s
, Rivitalo
91 m2
Floor 1-2/2
Vanha Soratie 5 A
4h+k+s
, Rivitalo
92 m2
1-2/2
Vanha Soratie 5 A
4h+k+s
, Rivitalo
92 m2
Floor 1-2/2
Vanha Soratie 5 D
4h+k+s
, Rivitalo
92 m2
1-2/2
Vanha Soratie 5 D
4h+k+s
, Rivitalo
92 m2
Floor 1-2/2
Vanha Soratie 9 A 3
5h+k+s
, Rivitalo
103 m2
1-2/2
Vanha Soratie 9 A 3
5h+k+s
, Rivitalo
103 m2
Floor 1-2/2