Siirry sisältöön
Peruskorjattu

Lue lisää asumismukavuutta lisäävistä peruskorjauksistamme.

Kyyhkysmäki 7 C 34, Espoo, LEPPÄVAARA

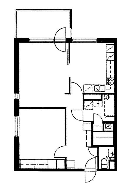
61,5 m2, 2H+K+S

Asuntomyyjä

Ida Aalto

Nyt vapautumassa ihastuttava, tilava toisen kerroksen kaksio. Asunnossa tilava makuuhuone, olohuone ja saunallinen kylpyhuone sekä lasitettu parveke. Asunto myydään ensisijaisesti asumisoikeutena, mutta se on mahdollista myös vuokrata. Jätäthän hakemuksen asuntosaatio.fi- sivulla.

Jos haluat saada lisätietoja tästä asunnosta, otathan yhteyttä myyjäämme.

Tervetuloa tulevaisuuden kotiisi!

Nyt vapautumassa ihastuttava, tilava toisen kerroksen kaksio. Asunnossa tilava makuuhuone, olohuone ja saunallinen kylpyhuone sekä lasitettu parveke. Asunto myydään ensisijaisesti asumisoikeutena, mutta se on mahdollista myös vuokrata. Jätäthän hakemuksen asuntosaatio.fi- sivulla.

Jos haluat saada lisätietoja tästä asunnosta, otathan yhteyttä myyjäämme.

Asunnon tiedot

Asuinkustannukset

  • Vuokra 1035€
  • Vakuusmaksu 1035€
  • Vesimaksu/henkilö/kk 25€
  • Autopaikkamaksut
    • — Autopaikkamaksu 1 8,00€

Perustiedot asunnosta

  • Talotyyppi Kerrostalo
  • Energialuokka E
  • Huoneistotyyppi 2H+K+S
  • Pinta-ala 61.50 m²
  • Kerros 2
  • Parveke 1
  • Oma sauna Kyllä
  • Erillinen wc Kyllä
  • Hissi Kyllä
  • Vapautuu Heti vapaa
  • Kunto Hyvä
  • Lemmikit Sallittu
  • Laajakaista DNA Welho

Lisätietoja

Tupakointi asunnoissamme

Kaikki uudet asuinkiinteistömme ovat olleet jo pitkään täysin savuttomia heti valmistumisestaan lähtien. Muutumme vähitellen savuttomiksi kaikkien asuntojemme osalta: uusien asukkaiden sopimukset ovat kieltäneet tupakoinnin huoneistoissa ja parvekkeilla 1.1.2021 alkaen. Kiinteistö ei ole välttämättä savuton muiden huoneistojen osalta, koska niissä voi olla vanhoja sopimuksia, joissa ei ole tupakointikieltoa.

Tehdyt muutostyöt

2019 Maalaus (Asoetu) 2023 Sälekaihtimet (valkoiset tai vaaleanharmaat)(Asoetu)

Kohteen esittely

Kerrostalokohde vehreillä näkymillä Lintuvaaran vieressä. Kaikissa asunnoissa on oma sauna ja osassa myös parveke. A-rapussa ei ole hissiä.

Lähellä on useampi päiväkoti, koulu, ruokakauppa, Angry Birds-leikkipuisto ja uimahalli sekä maauimala. Monikonpuron luonnonsuojelualue ja alueen useat puistot kutsuvat ulkoilemaan. Lisää palveluita löytyy alle kilometrin päässä olevasta Sellon kauppakeskuksesta.

Miksi Asuntosäätiö?

Me uskomme, että onnellinen koti ja laadukas asuminen kuuluvat kaikille. Emme tavoittele voittoa, vaan käytämme kaikki vastikkeista ja vuokrista saadut tulot toimintamme kehittämiseen. Jo yli 33 000 suomalaista on valinnut Asuntosäätiön tarjoaman kodin. Tiesithän, että myös lemmikit ovat tervetulleita kaikkiin koteihimme!

Kohteen esittely

Kerrostalokohde vehreillä näkymillä Lintuvaaran vieressä. Kaikissa asunnoissa on oma sauna ja osassa myös parveke. A-rapussa ei ole hissiä. Lähellä on useampi päiväkoti, koulu, ruokakauppa, Angry Birds-leikkipuisto ja uimahalli sekä maauimala. Monikonpuron luonnonsuojelualue ja alueen useat puistot kutsuvat ulkoilemaan. Lisää palveluita löytyy alle kilometrin päässä olevasta Sellon kauppakeskuksesta.

Rakennuksen tiedot

  • Asumismuoto Vuokrakoti
  • Hissit 2
  • Talosauna Ei
  • Pyykkitupa Kyllä
  • Kuivaushuone Kyllä
  • Asuntoja 48

Huoneistot ja pohjakuvat: Kyyhkysmäki 7, Piharakennus, Kerrostalo

Hae asuntotyyppiä

Kyyhkysmäki 7 C 34

2h+k+s

, Kerrostalo

61.5 m2

Kerros 2/5

Hae asuntotyyppiä

Kyyhkysmäki 7 B 17

3h+k+s

, Kerrostalo

76.5 m2

Kerros 2/5