Siirry sisältöön

Hiomotie 24 As 8, Helsinki, PITÄJÄNMÄKI

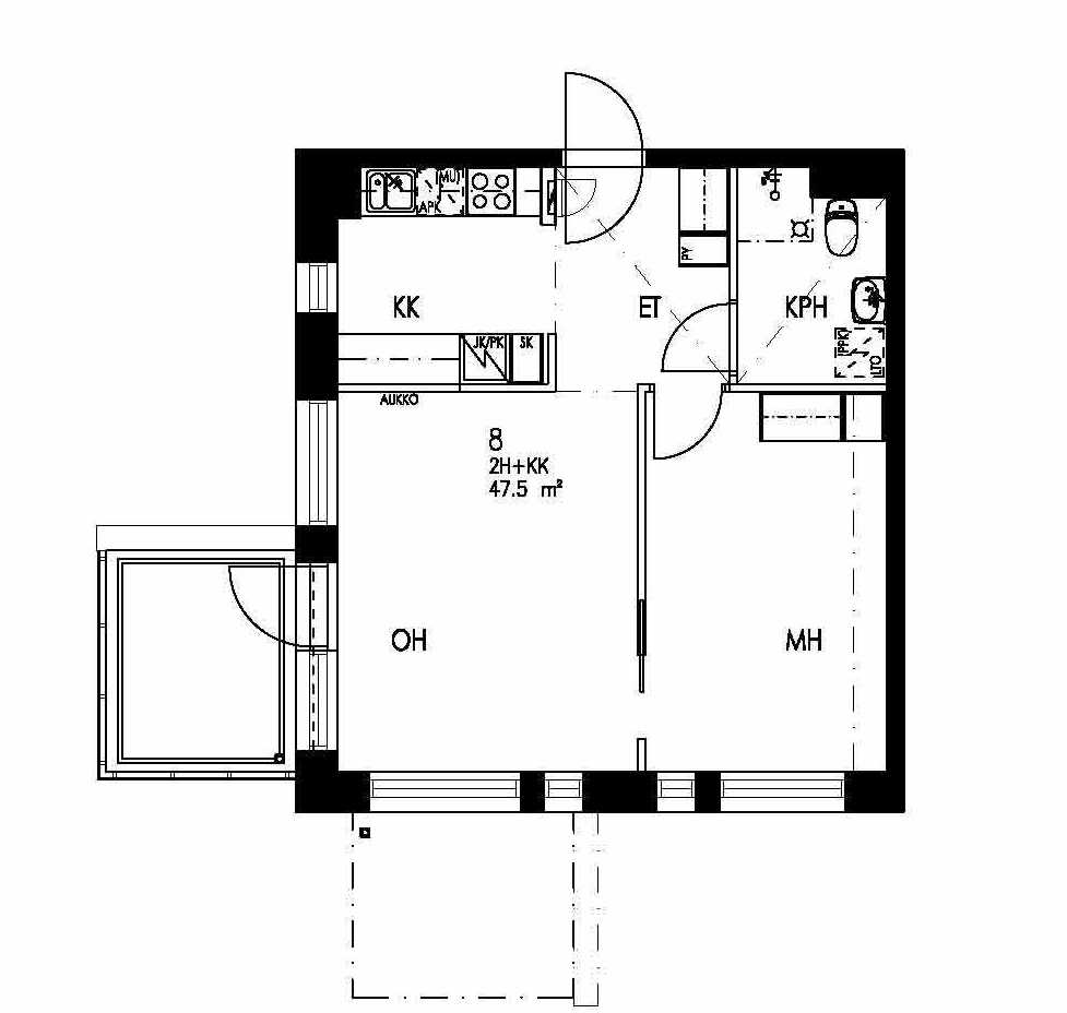
47,5 m2, 2H+KK

Asuntomyyjä

Sanni Heikkinen

Valoisa ja toimiva kaksio keittokomerolla. Suuret ikkunat tuovat runsaasti valoa asuntoon, ja olohuoneesta on käynti omalle parvekkeelle tuoden lisätilaa arkeen.

Jos haluat saada lisätietoja tästä asunnosta, otathan yhteyttä myyjäämme.

Tervetuloa tulevaisuuden kotiisi!

Valoisa ja toimiva kaksio keittokomerolla. Suuret ikkunat tuovat runsaasti valoa asuntoon, ja olohuoneesta on käynti omalle parvekkeelle tuoden lisätilaa arkeen.

Jos haluat saada lisätietoja tästä asunnosta, otathan yhteyttä myyjäämme.

Asunnon tiedot

Asuinkustannukset

  • Vuokra 1050€
  • Vakuusmaksu 1050€
  • Vesimaksu/henkilö/kk 16€
  • Autopaikkamaksut
    • — Autopaikkamaksu 1 15,00€
  • Saunamaksu 20,00€

Perustiedot asunnosta

  • Talotyyppi Kerrostalo
  • Energialuokka D
  • Huoneistotyyppi 2H+KK
  • Pinta-ala 47.50 m²
  • Kerros 3
  • Parveke 1
  • Oma sauna Ei
  • Hissi Kyllä
  • Vapautuu Heti vapaa
  • Kunto Erinomainen
  • Lemmikit Sallittu
  • Laajakaista DNA Welho

Lisätietoja

Tupakointi asunnoissamme

Kaikki uudet asuinkiinteistömme ovat olleet jo pitkään täysin savuttomia heti valmistumisestaan lähtien. Muutumme vähitellen savuttomiksi kaikkien asuntojemme osalta: uusien asukkaiden sopimukset ovat kieltäneet tupakoinnin huoneistoissa ja parvekkeilla 1.1.2021 alkaen. Kiinteistö ei ole välttämättä savuton muiden huoneistojen osalta, koska niissä voi olla vanhoja sopimuksia, joissa ei ole tupakointikieltoa.

Tehdyt muutostyöt

2013 Sälekaihtimet

Kohteen esittely

Tämä viihtyisä ja savuton kerrostalokohde sijaitsee rauhallisella Valimon yritysalueella, Helsingin Pitäjänmäessä. Alue tarjoaa erinomaiset liikenneyhteydet, monipuoliset palvelut ja ulkoiluun erinomaisen ympäristön. Rauhallisessa ja hyvin hoidetussa talossa kaikissa asunnoissa on oma parveke, ja isommista asunnoista löytyy lisäksi oma sauna. Asukkaiden yhteisessä käytössä ovat viihtyisä talosauna ja kerhotila, kuivaushuone sekä ulkoiluvälinevarasto. Jokaiselle asunnolle kuuluu lisäksi oma huoneistokohtainen irtainvarasto.

Pitäjänmäki tarjoaa erinomaiset liikenneyhteydet ja kattavat palvelut, jotka tekevät arjesta sujuvaa ja mukavaa. Valimon juna-asema löytyy vain 5 minuutin kävelymatkan päästä, ja sen kautta pääset nopeasti Helsingin keskustaan, Espooseen tai lentokentälle. Alueen poikki kulkeva pikaratikka (Raide-Jokeri) mahdollistaa liikkumisen Helsingin Itäkeskuksesta Espoon Keilanimeen asti. Lähin pikaratikkapysäkki sijaitsee vain muutaman minuutin kävelymatkan päässä talosta, ja aivan sen vieressä sijaitsevat bussipysäkit tarjoavat sujuvat yhteydet eri puolille pääkaupunkiseutua. Alue tarjoaa, myös erinomaiset mahdollisuudet pyöräilyyn. Kattava verkosto hyvin hoidettuja reittejä ja suunnitteilla oleva Pitäjänmäenbaana parantavat yhteyksiä entisestään sekä tekevät pyöräilystä sujuvampaa.

Miksi Asuntosäätiö?

Me uskomme, että onnellinen koti ja laadukas asuminen kuuluvat kaikille. Emme tavoittele voittoa, vaan käytämme kaikki vastikkeista ja vuokrista saadut tulot toimintamme kehittämiseen. Jo yli 33 000 suomalaista on valinnut Asuntosäätiön tarjoaman kodin. Tiesithän, että myös lemmikit ovat tervetulleita kaikkiin koteihimme!

Kohteen esittely

Tämä viihtyisä ja savuton kerrostalokohde sijaitsee rauhallisella Valimon yritysalueella, Helsingin Pitäjänmäessä. Alue tarjoaa erinomaiset liikenneyhteydet, monipuoliset palvelut ja ulkoiluun erinomaisen ympäristön. Rauhallisessa ja hyvin hoidetussa talossa kaikissa asunnoissa on oma parveke, ja isommista asunnoista löytyy lisäksi oma sauna. Asukkaiden yhteisessä käytössä ovat viihtyisä talosauna ja kerhotila, kuivaushuone sekä ulkoiluvälinevarasto. Jokaiselle asunnolle kuuluu lisäksi oma huoneistokohtainen irtainvarasto. Pitäjänmäki tarjoaa erinomaiset liikenneyhteydet ja kattavat palvelut, jotka tekevät arjesta sujuvaa ja mukavaa. Valimon juna-asema löytyy vain 5 minuutin kävelymatkan päästä, ja sen kautta pääset nopeasti Helsingin keskustaan, Espooseen tai lentokentälle. Alueen poikki kulkeva pikaratikka (Raide-Jokeri) mahdollistaa liikkumisen Helsingin Itäkeskuksesta Espoon Keilanimeen asti. Lähin pikaratikkapysäkki sijaitsee vain muutaman minuutin kävelymatkan päässä talosta, ja aivan sen vieressä sijaitsevat bussipysäkit tarjoavat sujuvat yhteydet eri puolille pääkaupunkiseutua. Alue tarjoaa, myös erinomaiset mahdollisuudet pyöräilyyn. Kattava verkosto hyvin hoidettuja reittejä ja suunnitteilla oleva Pitäjänmäenbaana parantavat yhteyksiä entisestään sekä tekevät pyöräilystä sujuvampaa. Kohteen läheisyydessä sijaitsevat päiväkoti Mestari, Strömbergin ala-aste sekä lukio The English School (High School), joka tarjoaa suomalaisen opetussuunnitelman mukaisen koulutuksen suomeksi ja englanniksi. Aivan naapurista löytyy Valiomestarin puisto, joka yhdistyy Strömbergin puistoon. Puistot mahdollistavat ulkona liikkumisen, mutta myös leikkipaikkoja perheen pienemmille. Talin siirtolapuutarha ja sitä ympäröivät laajat viheralueet ja metsät tarjoavat upeat puitteet kävelyyn, juoksuun ja luonnosta nauttimiseen. Alueella on hyvin merkittyjä ulkoilureittejä, ja Talin golfkenttä sekä frisbeegolf-rata tarjoavat monipuolisia harrastusmahdollisuuksia kaikenikäisille.

Rakennuksen tiedot

  • Asumismuoto Vuokrakoti
  • Hissit 1
  • Talosauna 1
  • Kuivaushuone Kyllä
  • Asuntoja 25
  • Asuinrakennuksia 1

Huoneistot ja pohjakuvat: Hiomotie 24, Kerrostalo

Hae asuntotyyppiä

Hiomotie 24 As 11

2h+kk

, Kerrostalo

47 m2

Kerros 4/7

Hiomotie 24 As 8

2h+kk

, Kerrostalo

47.5 m2

Kerros 3/7