Siirry sisältöön

Porttirinteenpolku 1 B 3, Helsinki, SUURMETSÄ

104 m2, 4H+K+S

Asuntomyyjä

Jemina Jalonen

Tervetuloa tutustumaan tähän kauniiseen ja tilavaan paritaloon Suurmetsän rauhallisessa ja viihtyisässä asuinalueessa!

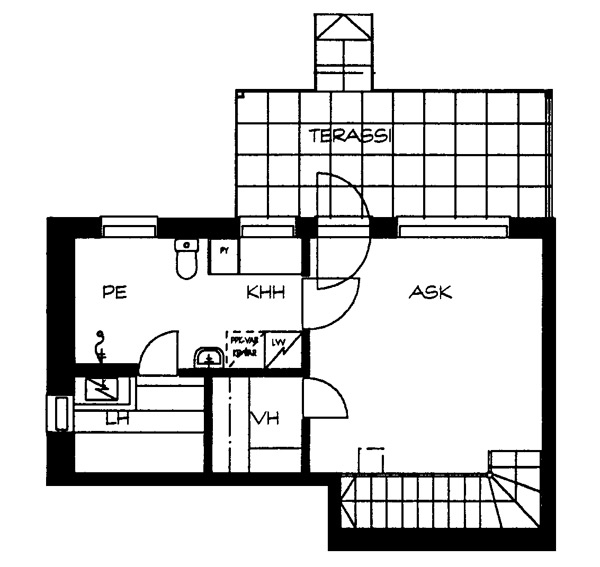
Asunnon yläkerrassa sijaitsevat keittiö, jossa on runsaasti kaappitilaa, erillinen ruokailutila ja tilava olohuone, jotka yhdistyvät saumattomasti yhdeksi avoimeksi tilaksi. Yläkerrasta löytyvät asunnon kaksi makuuhuonetta. Lisäksi löydät yläkerrasta wc/suihkutilan.

Jos haluat saada lisätietoja tästä asunnosta, otathan yhteyttä myyjäämme.

Tervetuloa tulevaisuuden kotiisi!

Tervetuloa tutustumaan tähän kauniiseen ja tilavaan paritaloon Suurmetsän rauhallisessa ja viihtyisässä asuinalueessa! Asunnon yläkerrassa sijaitsevat keittiö, jossa on runsaasti kaappitilaa, erillinen ruokailutila ja tilava olohuone, jotka yhdistyvät saumattomasti yhdeksi avoimeksi tilaksi. Yläkerrasta löytyvät asunnon kaksi makuuhuonetta. Lisäksi löydät yläkerrasta wc/suihkutilan. Alakerrassa on tilava askarteluhuone joka muuntautuu helposti isommaksi makuu- tai vierashuoneeksi, miksei myös työtilaksi. Alakerrasta löytyy myös tilava kylpyhuone ja sauna, sekä käynti takapihalle vilvoittelemaan saunan jälkeen. Asunnon sijainti on erinomainen, sillä se sijaitsee vain muutaman minuutin ajomatkan päässä Tikkurilan monipuolisista palveluista. Tikkurilan juna-asema tarjoaa kätevät yhteydet niin pääkaupunkiseudulle kuin lentokentällekin. Lähialueella on myös useita päiväkoteja, kouluja ja ulkoilumahdollisuuksia. Tervetuloa tutustumaan tähän kauniiseen kotiin Suurmetsän rauhallisessa ympäristössä!

Jos haluat saada lisätietoja tästä asunnosta, otathan yhteyttä myyjäämme.

Asunnon tiedot

Asuinkustannukset

  • Vuokra 1590€
  • Vakuusmaksu 1590€
  • Vesimaksu/henkilö/kk 10,5€

Perustiedot asunnosta

  • Talotyyppi Paritalo
  • Energialuokka E
  • Huoneistotyyppi 4H+K+S
  • Pinta-ala 104.00 m²
  • Kerros 1-2
  • Oma sauna Kyllä
  • Erillinen wc Kyllä
  • Hissi Ei
  • Vapautuu Heti vapaa
  • Kunto Hyvä
  • Lemmikit Sallittu
  • Laajakaista DNA 4G

Lisätietoja

Tupakointi asunnoissamme

Kaikki uudet asuinkiinteistömme ovat olleet jo pitkään täysin savuttomia heti valmistumisestaan lähtien. Muutumme vähitellen savuttomiksi kaikkien asuntojemme osalta: uusien asukkaiden sopimukset ovat kieltäneet tupakoinnin huoneistoissa ja parvekkeilla 1.1.2021 alkaen. Kiinteistö ei ole välttämättä savuton muiden huoneistojen osalta, koska niissä voi olla vanhoja sopimuksia, joissa ei ole tupakointikieltoa.

Tehdyt muutostyöt

2014 Ilmalämpöpumppu FH 25 2009 Laminaatti

Kohteen esittely

Suurmetsässä sijaitseva pieni paritaloyhtiö, valtaväylien varrella, Tikkurilan ja Tapulikaupungin palvelut lähettyvillä. Kohteessa on sähkölämmitys

Miksi Asuntosäätiö?

Me uskomme, että onnellinen koti ja laadukas asuminen kuuluvat kaikille. Emme tavoittele voittoa, vaan käytämme kaikki vastikkeista ja vuokrista saadut tulot toimintamme kehittämiseen. Jo yli 33 000 suomalaista on valinnut Asuntosäätiön tarjoaman kodin. Tiesithän, että myös lemmikit ovat tervetulleita kaikkiin koteihimme!

Kohteen esittely

Suurmetsässä sijaitseva pieni paritaloyhtiö, valtaväylien varrella, Tikkurilan ja Tapulikaupungin palvelut lähettyvillä. Kohteessa on sähkölämmitys

Rakennuksen tiedot

  • Asumismuoto Vuokrakoti
  • Hissit Ei
  • Talosauna Ei
  • Asuntoja 4
  • Asuinrakennuksia 2
  • Valmistumisvuosi 2000

Huoneistot ja pohjakuvat: Porttirinne 6, Piharakennus, Paritalo

Hae asuntotyyppiä

Porttirinteenpolku 1 B 3

4h+k+s

, Paritalo

104 m2

Kerros 1-2/2