Siirry sisältöön
Peruskorjattu

Lue lisää asumismukavuutta lisäävistä peruskorjauksistamme.

Rapolantie 8-10 A 1, Helsinki, VESALA

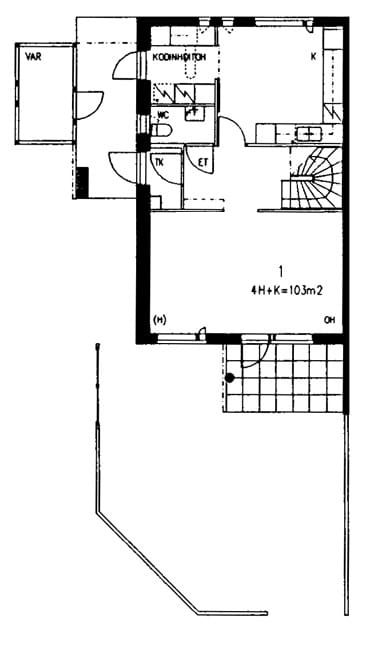
103 m2, 4H+K+S

Asuntomyyjä

Saana Hintsanen

Kodikas, juuri peruskorjattu paritaloasunto rauhallisella paikalla. Tämä reilun kokoisella 103 m² pinta-alalla varustettu asunto tarjoaa tilaa niin perheelle kuin muullekin elämälle. Pohjaratkaisu ja huoneiden määrä antavat loistavan mahdollisuuden esimerkiksi lapsiperheelle, työ-/harrastetiloille tai vie

Jos haluat saada lisätietoja tästä asunnosta, otathan yhteyttä myyjäämme.

Tervetuloa tulevaisuuden kotiisi!

Kodikas, juuri peruskorjattu paritaloasunto rauhallisella paikalla. Tämä reilun kokoisella 103 m² pinta-alalla varustettu asunto tarjoaa tilaa niin perheelle kuin muullekin elämälle. Pohjaratkaisu ja huoneiden määrä antavat loistavan mahdollisuuden esimerkiksi lapsiperheelle, työ-/harrastetiloille tai vierashuoneelle. Asunto on heti vapaa, joten muuttamaan pääsee joustavasti! Sovi oma esittelyaikasi myyjän kanssa!

Jos haluat saada lisätietoja tästä asunnosta, otathan yhteyttä myyjäämme.

Asunnon tiedot

Asuinkustannukset

  • Vuokra 1680€
  • Vakuusmaksu 1680€
  • Vesimaksuennakko/hlö/kk 8€
  • Autopaikkamaksut
    • — Autopaikkamaksu 1 10,00€
    • — Autopaikka ilman sähköä 5,00€

Perustiedot asunnosta

  • Talotyyppi Paritalo
  • Energialuokka D
  • Huoneistotyyppi 4H+K+S
  • Pinta-ala 103.00 m²
  • Kerros 1-2
  • Parveke 1
  • Oma sauna Kyllä
  • Erillinen wc Kyllä
  • Hissi Ei
  • Vapautuu Heti vapaa
  • Kunto Hyvä
  • Lemmikit Sallittu
  • Laajakaista DNA Welho

Lisätietoja

Tupakointi asunnoissamme

Kaikki uudet asuinkiinteistömme ovat olleet jo pitkään täysin savuttomia heti valmistumisestaan lähtien. Muutumme vähitellen savuttomiksi kaikkien asuntojemme osalta: uusien asukkaiden sopimukset ovat kieltäneet tupakoinnin huoneistoissa ja parvekkeilla 1.1.2021 alkaen. Kiinteistö ei ole välttämättä savuton muiden huoneistojen osalta, koska niissä voi olla vanhoja sopimuksia, joissa ei ole tupakointikieltoa.

Tehdyt muutostyöt

2025 Kodinkoneiden tason korotus (Asoetu) 2020 Liukuovet (Asoetu)

Kohteen esittely

Paritalokohde Helsingin Vesalassa. Kaukolämmitys.

Miksi Asuntosäätiö?

Me uskomme, että onnellinen koti ja laadukas asuminen kuuluvat kaikille. Emme tavoittele voittoa, vaan käytämme kaikki vastikkeista ja vuokrista saadut tulot toimintamme kehittämiseen. Jo yli 33 000 suomalaista on valinnut Asuntosäätiön tarjoaman kodin. Tiesithän, että myös lemmikit ovat tervetulleita kaikkiin koteihimme!

Kohteen esittely

Paritalokohde Helsingin Vesalassa. Kaukolämmitys.

Rakennuksen tiedot

  • Asumismuoto Vuokrakoti
  • Hissit Ei
  • Talosauna Ei
  • Asuntoja 17
  • Asuinrakennuksia 6
  • Valmistumisvuosi 1996

Huoneistot ja pohjakuvat: Rapolantie 8-10, Paritalo, Rivitalo

Hae asuntotyyppiä

Rapolantie 8-10 A 1

4h+k+s

, Paritalo

103 m2

Kerros 1-2/2