Siirry sisältöön
Peruskorjattu

Lue lisää asumismukavuutta lisäävistä peruskorjauksistamme.

Vedenottamontie 12 C 22, Helsinki, VUOSAARI

79 m2, 3H+K+S

Asuntomyyjä

Bertta Gyldén

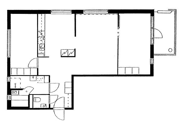
Vuonna 2023 peruskorjattu viihtyisä koti. Asunnossa on kaksi tilavaa makuuhuonetta, joista molemmista löytyy runsaasti säilytystilaa. Avara olohuone tarjoaa hyvin tilaa oleskeluun ja yhdessäoloon. Keittiöön mahtuu kätevästi ruokailuryhmä, ja eteisessä on erinomaiset säilytystilat arjen sujuvuutta tukemaan. Kodin oma sauna tuo rentouttavaa mukavuutta, ja erillinen wc lisää asumisen sujuvuutta.

Asunnossa on lasitettu parveke, josta näkymä on rauhalliselle sisäpihalle.

Jos haluat saada lisätietoja tästä asunnosta, otathan yhteyttä myyjäämme.

Tervetuloa tulevaisuuden kotiisi!

Vuonna 2023 peruskorjattu viihtyisä koti. Asunnossa on kaksi tilavaa makuuhuonetta, joista molemmista löytyy runsaasti säilytystilaa. Avara olohuone tarjoaa hyvin tilaa oleskeluun ja yhdessäoloon. Keittiöön mahtuu kätevästi ruokailuryhmä, ja eteisessä on erinomaiset säilytystilat arjen sujuvuutta tukemaan. Kodin oma sauna tuo rentouttavaa mukavuutta, ja erillinen wc lisää asumisen sujuvuutta. Asunnossa on lasitettu parveke, josta näkymä on rauhalliselle sisäpihalle. Tässä rapussa ei ole hissiä. Tutustu asuntoon ja jätä hakemus osoitteessa www.asuntosaatio.fi sekä sovi esittelystä sähköpostitse bertta.gylden@asuntosaatio.fi

Jos haluat saada lisätietoja tästä asunnosta, otathan yhteyttä myyjäämme.

Asunnon tiedot

Asuinkustannukset

  • Vuokra 1280€
  • Vakuusmaksu 1280€
  • Vesimaksuennakko/jyvm2/kk 28,84€

Perustiedot asunnosta

  • Talotyyppi Kerrostalo
  • Energialuokka D
  • Huoneistotyyppi 3H+K+S
  • Pinta-ala 79.00 m²
  • Kerros 2
  • Oma sauna Kyllä
  • Erillinen wc Kyllä
  • Hissi Ei
  • Vapautuu Heti vapaa
  • Kunto Hyvä
  • Lemmikit Sallittu
  • Laajakaista DNA Welho

Lisätietoja

Tupakointi asunnoissamme

Kaikki uudet asuinkiinteistömme ovat olleet jo pitkään täysin savuttomia heti valmistumisestaan lähtien. Muutumme vähitellen savuttomiksi kaikkien asuntojemme osalta: uusien asukkaiden sopimukset ovat kieltäneet tupakoinnin huoneistoissa ja parvekkeilla 1.1.2021 alkaen. Kiinteistö ei ole välttämättä savuton muiden huoneistojen osalta, koska niissä voi olla vanhoja sopimuksia, joissa ei ole tupakointikieltoa.

Kohteen esittely

Vedenottamontie 12 on viihtyisä kerrostalokohde vehreän Mustankiven puiston alueella. Kohteessa on 90 asuntoa, joiden koot vaihtelevat yksiöistä neljän huoneen asuntoihin, 40–87,5 m². Kohteessa on 3 hissiä. Asukkailla on käytössään pyykkitupa, kuivaushuone sekä kerhotila. Kohteeseen on tehty peruskorjaus 2023.

Koulut, päiväkodit ja palvelut ovat kohteessa lähellä. Kauppakeskus Columbuksen päivittäispalvelut sekä Vuosaaren metro sijaitsevat alle kilometrin päässä kohteesta. Alue tarjoaa myös monipuolisia mahdollisuuksia ulkoiluun ja liikuntaan, sillä kohteen lähettyvillä on useita urheilukenttiä, liikuntahalleja sekä ulkoilureittejä.

Miksi Asuntosäätiö?

Me uskomme, että onnellinen koti ja laadukas asuminen kuuluvat kaikille. Emme tavoittele voittoa, vaan käytämme kaikki vastikkeista ja vuokrista saadut tulot toimintamme kehittämiseen. Jo yli 33 000 suomalaista on valinnut Asuntosäätiön tarjoaman kodin. Tiesithän, että myös lemmikit ovat tervetulleita kaikkiin koteihimme!

Kohteen esittely

Vedenottamontie 12 on viihtyisä kerrostalokohde vehreän Mustankiven puiston alueella. Kohteessa on 90 asuntoa, joiden koot vaihtelevat yksiöistä neljän huoneen asuntoihin, 40–87,5 m². Kohteessa on 3 hissiä. Asukkailla on käytössään pyykkitupa, kuivaushuone sekä kerhotila. Kohteeseen on tehty peruskorjaus 2023. Koulut, päiväkodit ja palvelut ovat kohteessa lähellä. Kauppakeskus Columbuksen päivittäispalvelut sekä Vuosaaren metro sijaitsevat alle kilometrin päässä kohteesta. Alue tarjoaa myös monipuolisia mahdollisuuksia ulkoiluun ja liikuntaan, sillä kohteen lähettyvillä on useita urheilukenttiä, liikuntahalleja sekä ulkoilureittejä.

Rakennuksen tiedot

  • Asumismuoto Vuokrakoti
  • Hissit 3
  • Talosauna Ei
  • Pyykkitupa Kyllä
  • Kuivaushuone Kyllä
  • Asuntoja 90

Huoneistot ja pohjakuvat: Vedenottamontie 12, Kerrostalo, Piharakennus

Hae asuntotyyppiä

Vedenottamontie 12 C 22

3h+k+s

, Kerrostalo

79 m2

Kerros 2/3

Vedenottamontie 12 B 16

3h+k+s

, Kerrostalo

80 m2

Kerros 3/3