Siirry sisältöön

Sariolantie 1 A 5, Kerava, KESKUSTA

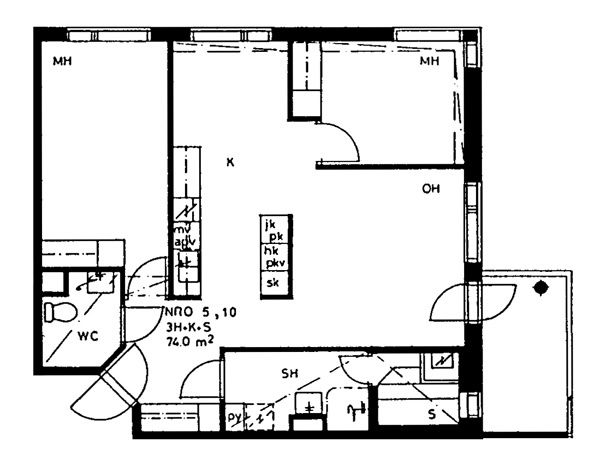
74 m2, 3H+K+S

Asuntomyyjä

Raija Saario

Siisti ja valoisa 1. kerroksen kulmahuoneisto jossa on lasitettu parveke Sibeliuksentien puolelle. Asuintiloissa on laminaattilattia ja kylpyhuone on remontoitu muutama vuosi sitten. Autolle on saatavilla katospaikka ja vesi sisältyy vastikkeeseen/vuokraan!

Lyhyt matka keskustan palveluihin ja juna-asemalle.

Jos haluat saada lisätietoja tästä asunnosta, otathan yhteyttä myyjäämme.

Tervetuloa tulevaisuuden kotiisi!

Siisti ja valoisa 1. kerroksen kulmahuoneisto jossa on lasitettu parveke Sibeliuksentien puolelle. Asuintiloissa on laminaattilattia ja kylpyhuone on remontoitu muutama vuosi sitten. Autolle on saatavilla katospaikka ja vesi sisältyy vastikkeeseen/vuokraan! Lyhyt matka keskustan palveluihin ja juna-asemalle. Tässä asunnossa on myös vuokraus mahdollisuus (1200 €/kk). Asunto on tarkoitettu ensisijaisesti asumisoikeusasumiseen ja asuntoa tarjotaan aina ensisijaisesti asumisoikeuden hakijoille. Mikäli asuntoon ei ole asumisoikeushakijoita tulemme olemaan erikseen yhteydessä vuokrahakemuksen jättäneisiin hakijoihin joille asuntoa voidaan tarjota. Hakemus ei ole sitova eikä asuntoa myydä vuokrasopimuksen voimassaolon aikana. Vuokrasopimus on voimassa toistaiseksi eikä sido määräaikaisuuteen (irtisanomisaika vuokralaisella 1 kk) Kiinnostuitko vuokra-/asumisoikeusasumisesta? Täytä aso- tai vuokrahakemus sivuillamme: www.asuntosaatio.fi ja ota yhteyttä: raija.saario(at)asuntosaatio.fi

Jos haluat saada lisätietoja tästä asunnosta, otathan yhteyttä myyjäämme.

Asunnon tiedot

Asuinkustannukset

  • Vuokra 1200€
  • Vakuusmaksu 250€
  • Vesimaksu Sisältyy vuokraan
  • Autopaikkamaksut
    • — Autopaikkamaksu 1 15,00€

Perustiedot asunnosta

  • Talotyyppi Kerrostalo
  • Energialuokka E
  • Huoneistotyyppi 3H+K+S
  • Pinta-ala 74.00 m²
  • Kerros 1
  • Parveke 1
  • Oma sauna Kyllä
  • Erillinen wc Kyllä
  • Hissi Ei
  • Vapautuu Heti vapaa
  • Kunto Hyvä
  • Lemmikit Sallittu
  • Laajakaista Elisa

Lisätietoja

Tupakointi asunnoissamme

Kaikki uudet asuinkiinteistömme ovat olleet jo pitkään täysin savuttomia heti valmistumisestaan lähtien. Muutumme vähitellen savuttomiksi kaikkien asuntojemme osalta: uusien asukkaiden sopimukset ovat kieltäneet tupakoinnin huoneistoissa ja parvekkeilla 1.1.2021 alkaen. Kiinteistö ei ole välttämättä savuton muiden huoneistojen osalta, koska niissä voi olla vanhoja sopimuksia, joissa ei ole tupakointikieltoa.

Tehdyt muutostyöt

2013 Lattiapäällysteen vaihtaminen laminaattilattiaksi Tila: Keittiö (Asoetu) 2016 Keraamisen lieden hankinta Tila: Keittiö (Asoetu) 2023 Ilmalämpöpumppu 2022 Parvekelasitus

Kohteen esittely

Pienkerrostalokohde, jonka asunnot ovat valoisia. Kaikissa asunnoissa on oma sauna ja parveke. Autopaikat ovat katoksen alla. Taloon on haettu terveysviranomaiselta päätös tupakoinnin kieltämisestä huoneistoparvekkeilla.

Koulut ja päiväkodit sekä Keravan Urheilupuisto ovat pienen kävelymatkan päässä. Kaikki keskustan palvelut todella lähellä!

Miksi Asuntosäätiö?

Me uskomme, että onnellinen koti ja laadukas asuminen kuuluvat kaikille. Emme tavoittele voittoa, vaan käytämme kaikki vastikkeista ja vuokrista saadut tulot toimintamme kehittämiseen. Jo yli 33 000 suomalaista on valinnut Asuntosäätiön tarjoaman kodin. Tiesithän, että myös lemmikit ovat tervetulleita kaikkiin koteihimme!

Kohteen esittely

Pienkerrostalokohde, jonka asunnot ovat valoisia. Kaikissa asunnoissa on oma sauna ja parveke. Autopaikat ovat katoksen alla. Taloon on haettu terveysviranomaiselta päätös tupakoinnin kieltämisestä huoneistoparvekkeilla. Koulut ja päiväkodit sekä Keravan Urheilupuisto ovat pienen kävelymatkan päässä. Kaikki keskustan palvelut todella lähellä!

Rakennuksen tiedot

  • Asumismuoto Vuokrakoti
  • Hissit Ei
  • Talosauna Ei
  • Kuivaushuone Kyllä
  • Asuntoja 13
  • Asuinrakennuksia 1

Huoneistot ja pohjakuvat: Sariolantie 1, Kerrostalo

Hae asuntotyyppiä

Sariolantie 1 A 5

3h+k+s

, Kerrostalo

74 m2

Kerros 1/3

Vapautuu 08.02.2026