KAMPANJA: Nyt valikoiduissa asumisoikeusasunnoissa 2 kk vastike 0 €, kun teet sopimuksen 1.4.-31.5.2026 aikana. Toimi pian >

Siirry sisältöön

Kangastuvankatu 3 A 7, Lappeenranta, HARAPAINEN

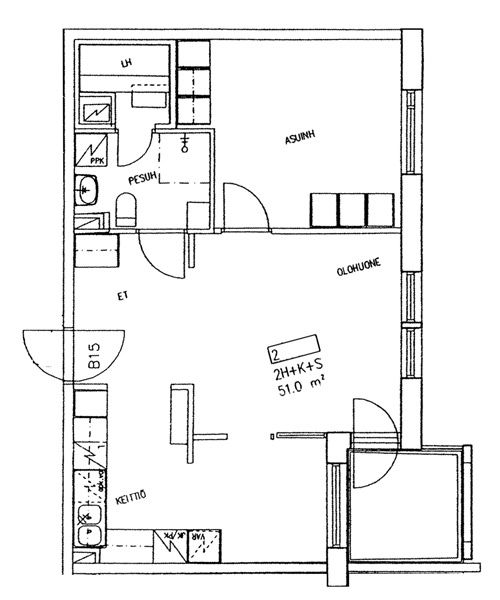
51 m2, 2H+K+S

Asuntomyyjä

Jussi Jaakkola

Saunallinen kaksio, kerrostalon 2 kerros! Aivan huikea pohjaratkaisu, jossa olohuone ja keittiö sulautuvat mukavasti yhteen. Tämä tarjoaa mahdollisuuden vaihtaa ajatuksia perheen ja vieraiden kanssa, vaikka askareiden lomassa! Asunnon olohuoneesta on myös käynti asunnon parvekkeelle! Tilava makuuhuone, jossa

Jos haluat saada lisätietoja tästä asunnosta, otathan yhteyttä myyjäämme.

Tervetuloa tulevaisuuden kotiisi!

Saunallinen kaksio, kerrostalon 2 kerros! Aivan huikea pohjaratkaisu, jossa olohuone ja keittiö sulautuvat mukavasti yhteen. Tämä tarjoaa mahdollisuuden vaihtaa ajatuksia perheen ja vieraiden kanssa, vaikka askareiden lomassa! Asunnon olohuoneesta on myös käynti asunnon parvekkeelle! Tilava makuuhuone, jossa mukavasti kaappitilaa. Kylpyhuone, jonka yhteydessä on oma sauna! Asunto on tarkoitettu ensisijaisesti asumisoikeusasumiseen ja asuntoa tarjotaan aina ensisijaisesti asumisoikeuden hakijoille (mikäli asuntoon ei ole asumisoikeushakijoita tulemme olemaan erikseen yhteydessä vuokrahakemuksen jättäneisiin). Jätä vuokra- tai asumisoikeushakemus sivuillemme www.asuntosaatio.fi. Hakemus ei ole sitova eikä asuntoa myydä vuokrasopimuksen voimassaolon aikana. Vuokrasopimus on voimassa toistaiseksi eikä sido määräaikaisuuteen (irtisanomisaika vuokralaisella 1 kk) Kiinnostuitko vuokra-/asumisoikeusasumisesta? Lisätietoja jussi.jaakkola@asuntosaatio.fi

Jos haluat saada lisätietoja tästä asunnosta, otathan yhteyttä myyjäämme.

Asunnon tiedot

Asuinkustannukset

  • Vuokra 770€
  • Vakuusmaksu 250€
  • Vesimaksu/henkilö/kk 25€
  • Autopaikkamaksut
    • — Autopaikkamaksu 1 15,00€

Perustiedot asunnosta

  • Talotyyppi Kerrostalo
  • Energialuokka D
  • Huoneistotyyppi 2H+K+S
  • Pinta-ala 51.00 m²
  • Kerros 2
  • Parveke 1
  • Oma sauna Kyllä
  • Hissi Kyllä
  • Vapautuu Heti vapaa
  • Kunto Hyvä
  • Lemmikit Sallittu
  • Laajakaista Elisa

Lisätietoja

Tupakointi asunnoissamme

Kaikki uudet asuinkiinteistömme ovat olleet jo pitkään täysin savuttomia heti valmistumisestaan lähtien. Muutumme vähitellen savuttomiksi kaikkien asuntojemme osalta: uusien asukkaiden sopimukset ovat kieltäneet tupakoinnin huoneistoissa ja parvekkeilla 1.1.2021 alkaen. Kiinteistö ei ole välttämättä savuton muiden huoneistojen osalta, koska niissä voi olla vanhoja sopimuksia, joissa ei ole tupakointikieltoa.

Tehdyt muutostyöt

1998 KOIVUPARKETTI UPOFLOOR 1998 KYLPYHUONEEN JA SAUNAN LATTIALAATOITUS 2010 Astianpesukoneen uusiminen Tila: Keittiö 2011 Turvalukon asennus Tila: Muut tilat

Kohteen esittely

Kävelymatkan päässä keskustasta rauhallinen kolmekerroksinen hissitalo Harapaisen kaupunginosassa. Kaikissa asunnoissa omat saunat ja parvekkeet. Kohteessa käytetään hiilineutraalia kaukolämpöä.

Muutaman sadan metrin päästä löydät mm S-Marketin, apteekin, Rahulan Rehun ja aidon leipomon! Koulut keskustassa, mutta Alakylän päiväkoti kiven heiton päässä. Hyvät kulkuyhteydet keskustaan ja 6-tielle. Rautatieasemakin löytyy muutaman minuutin kävelymatkan päästä!

Miksi Asuntosäätiö?

Me uskomme, että onnellinen koti ja laadukas asuminen kuuluvat kaikille. Emme tavoittele voittoa, vaan käytämme kaikki vastikkeista ja vuokrista saadut tulot toimintamme kehittämiseen. Jo yli 33 000 suomalaista on valinnut Asuntosäätiön tarjoaman kodin. Tiesithän, että myös lemmikit ovat tervetulleita kaikkiin koteihimme!

Kohteen esittely

Kävelymatkan päässä keskustasta rauhallinen kolmekerroksinen hissitalo Harapaisen kaupunginosassa. Kaikissa asunnoissa omat saunat ja parvekkeet. Kohteessa käytetään hiilineutraalia kaukolämpöä. Muutaman sadan metrin päästä löydät mm S-Marketin, apteekin, Rahulan Rehun ja aidon leipomon! Koulut keskustassa, mutta Alakylän päiväkoti kiven heiton päässä. Hyvät kulkuyhteydet keskustaan ja 6-tielle. Rautatieasemakin löytyy muutaman minuutin kävelymatkan päästä!

Rakennuksen tiedot

  • Asumismuoto Vuokrakoti
  • Hissit 1
  • Talosauna Ei
  • Kuivaushuone Kyllä
  • Asuntoja 17
  • Asuinrakennuksia 1

Huoneistot ja pohjakuvat: Kangastuvankatu 3, Piharakennus, Kerrostalo

Hae asuntotyyppiä

Kangastuvankatu 3 A 7

2h+k+s

, Kerrostalo

51 m2

Kerros 2/3