Property Introduction
Viihtyisä kerrostalokohde Ison Omenan välittömässä yhteydessä lukuisien palvelujen ja hyvien kulkuyhteyksien äärellä. Asunnoista on kulkuyhteys kauppakeskukseen ja paikoitustaloon katettua käytävää pitkin.
Asuntojen lattiat ovat parkettia, kosteat tilat on laatoitettu. Keittiöstä löytyy myös astianpesukone. Parveke on lasitettu. Lemmikit sallittu.
Asuntosäätiön asumisoikeus- ja vuokra-asukkaana voit asua kodissasi turvallisin mielin. Me huolehdimme ammattitaidolla asuntojen ja kiinteistöjen ylläpidosta, korjauksista ja remonteista. Asukkaana voit ottaa aina tarvittaessa yhteyttä Palvelukeskukseemme, joka palvelee vuoden jokaisena tuntina. Lisäksi voit halutessasi hyödyntää esimerkiksi asumiseen ja vapaa-aikaan liittyviä asiakasetuja. Tervetuloa kotiin!
Why Asuntosäätiö?
We believe that a happy home and quality living are for everyone. We do not seek immediate profit or financial benefit. We use the assets gained from our operations to develop our real estate. Over 33,000 Finns have already chosen a home offered by Asuntosäätiö. Pets are also welcome in all our homes.
Basic house info
- Form of housing Rental home
- Elevators 3
- House sauna No
- Apartment count 13
- Building count 3
- Average rent 1150,00 - 1506,22€
- Construction year 2001
- Staircases 3
- Energy class D
- Heating Kaukolämpö
- Parking spaces 10
- TV-antenna system Kaapeli
- CableTV Ei tiedossa
- Pets Allowed
Apartments and floor plans: Piispansilta 15-19, Kerrostalo
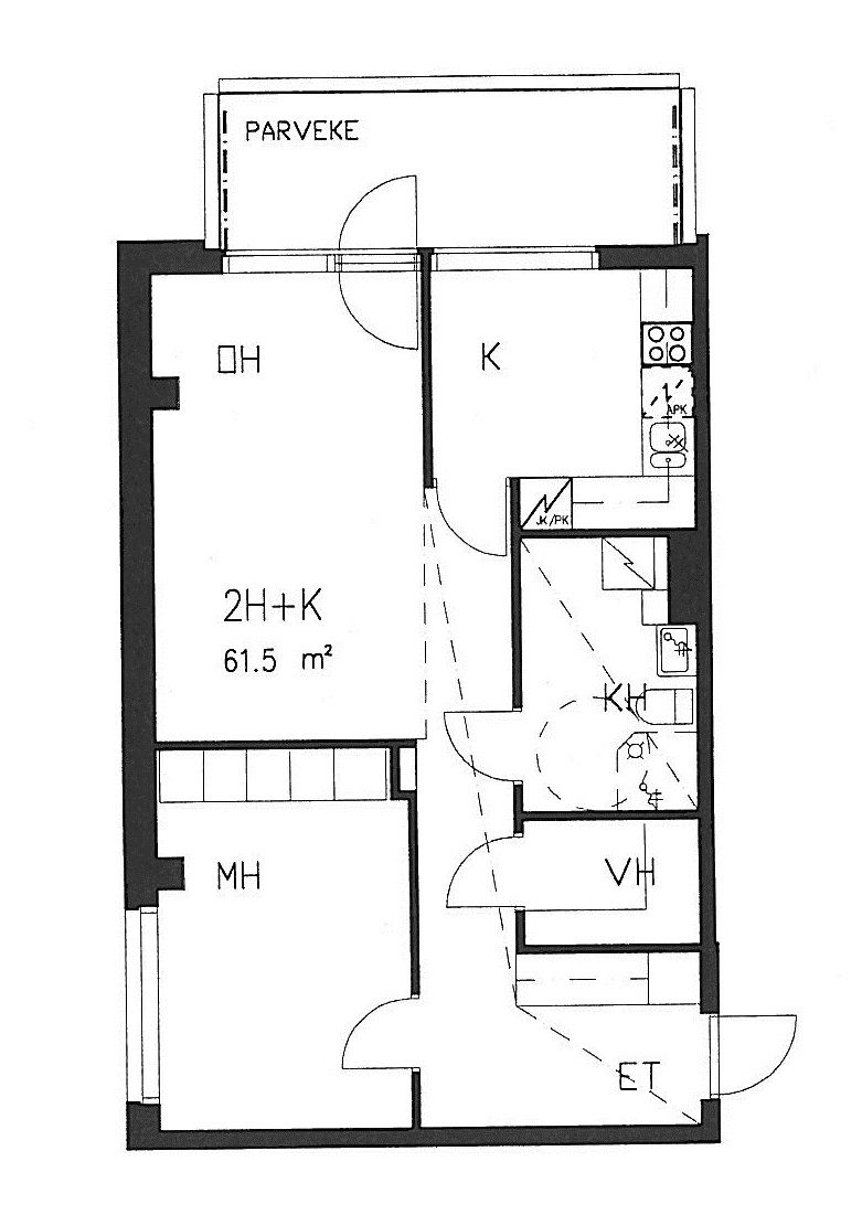
Piispansilta 15 C 67
2h+k+parv
, Kerrostalo
61.5 m2
3/8
Piispansilta 15 C 67
2h+k+parv
, Kerrostalo
61.5 m2
Floor 3/8
Piispansilta 17 B 37
2h+k+parv
, Kerrostalo
61.5 m2
3/8
Piispansilta 17 B 37
2h+k+parv
, Kerrostalo
61.5 m2
Floor 3/8
Piispansilta 17 B 42
2h+k+parv
, Kerrostalo
61.5 m2
4/8
Piispansilta 17 B 42
2h+k+parv
, Kerrostalo
61.5 m2
Floor 4/8
Piispansilta 15 C 75
3h+k+parv
, Kerrostalo
74.5 m2
4/8
Piispansilta 15 C 75
3h+k+parv
, Kerrostalo
74.5 m2
Floor 4/8
Piispansilta 17 B 45
3h+k+parv
, Kerrostalo
74.5 m2
4/8
Piispansilta 17 B 45
3h+k+parv
, Kerrostalo
74.5 m2
Floor 4/8
Piispansilta 17 B 40
3h+k+parv
, Kerrostalo
74.5 m2
3/8
Piispansilta 17 B 40
3h+k+parv
, Kerrostalo
74.5 m2
Floor 3/8
Piispansilta 17 B 50
3h+k+parv
, Kerrostalo
74.5 m2
5/8
Piispansilta 17 B 50
3h+k+parv
, Kerrostalo
74.5 m2
Floor 5/8
Piispansilta 17 B 38
3h+k+parv
, Kerrostalo
76 m2
3/8
Piispansilta 17 B 38
3h+k+parv
, Kerrostalo
76 m2
Floor 3/8
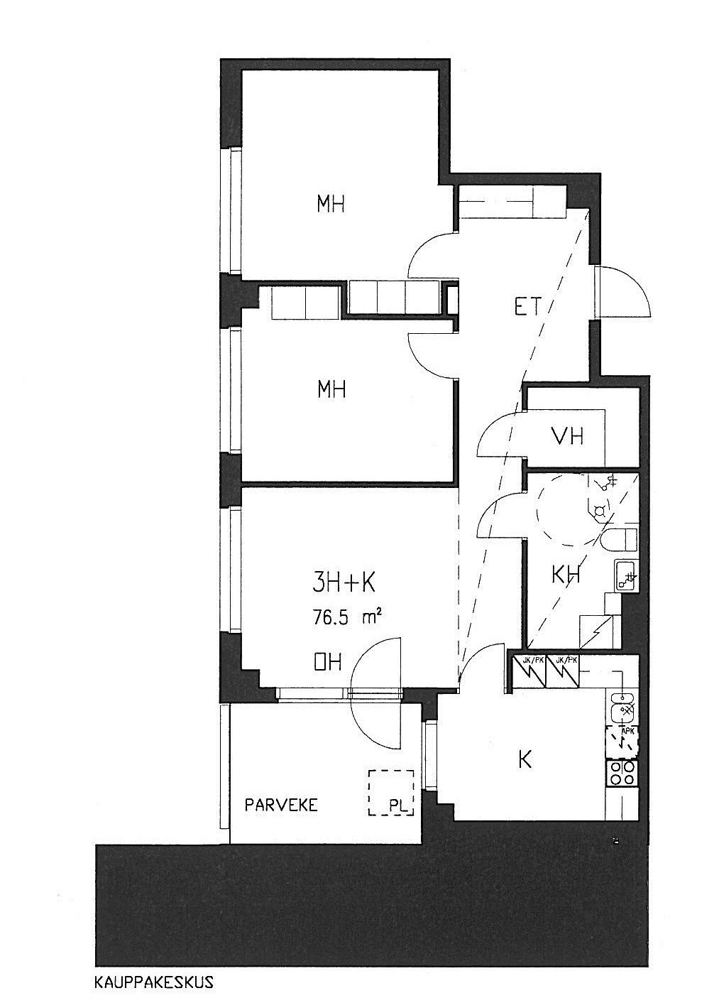
Piispansilta 19 A 9
3h+k+parv
, Kerrostalo
76.5 m2
3/8
Piispansilta 19 A 9
3h+k+parv
, Kerrostalo
76.5 m2
Floor 3/8
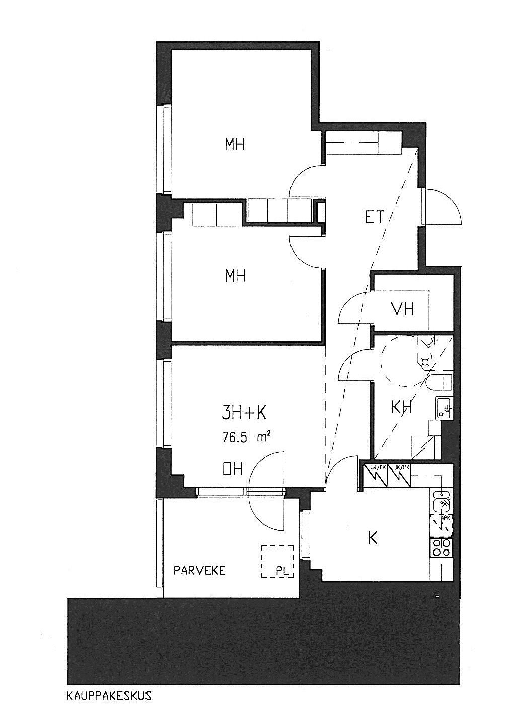
Piispansilta 15 C 76
3h+k+parv
, Kerrostalo
76.5 m2
4/8
Piispansilta 15 C 76
3h+k+parv
, Kerrostalo
76.5 m2
Floor 4/8
Piispansilta 17 B 51
3h+k+parv
, Kerrostalo
76.5 m2
5/8
Piispansilta 17 B 51
3h+k+parv
, Kerrostalo
76.5 m2
Floor 5/8
Piispansilta 17 B 41
3h+k+parv
, Kerrostalo
76.5 m2
3/8
Piispansilta 17 B 41
3h+k+parv
, Kerrostalo
76.5 m2
Floor 3/8
Piispansilta 17 B 36
3h+k+parv
, Kerrostalo
80 m2
2/8
Piispansilta 17 B 36
3h+k+parv
, Kerrostalo
80 m2
Floor 2/8