Property Introduction
Valoisia vuokrakoteja alueen eteläosassa rauhallisella paikalla. Asunnot ovat kolmekerroksisia huoneistoja, joissa on mm. takkahuone ja suuri lasitettu kattoterassi. Asuintilojen lattiat parkettia, kylpyhuoneet laatoitettu. Keittiöissä on mm. astianpesukone ja keraaminen liesi.
Klaavonkallio sijaitsee aivan Hyrylän keskustan tuntumassa. Kaikki peruspalvelut, kuten päiväkodit, koulut ja terveyspalvelut, ovat kävelyetäisyydellä, kuten myös Tuusulanjärvi, joka tarjoaa upeat kulttuurimaisemat.
Asuntosäätiön asumisoikeus- ja vuokra-asukkaana voit asua kodissasi turvallisin mielin. Me huolehdimme ammattitaidolla asuntojen ja kiinteistöjen ylläpidosta, korjauksista ja remonteista. Asukkaana voit ottaa aina tarvittaessa yhteyttä Palvelukeskukseemme, joka palvelee vuoden jokaisena tuntina. Lisäksi voit halutessasi hyödyntää esimerkiksi asumiseen ja vapaa-aikaan liittyviä asiakasetuja. Tervetuloa kotiin!
Why Asuntosäätiö?
We believe that a happy home and quality living are for everyone. We do not seek immediate profit or financial benefit. We use the assets gained from our operations to develop our real estate. Over 33,000 Finns have already chosen a home offered by Asuntosäätiö. Pets are also welcome in all our homes.
Basic house info
- Form of housing Rental home
- Elevators No
- House sauna No
- Apartment count 5
- Building count 1
- Average rent 1650,00 - 1929,03€
- Construction year 2007
- Energy class D2007
- Heating Kaukolämpö
- Parking spaces 8
- TV-antenna system Kaapeli
- CableTV Elisa
- House frame material Betoni
- Pets Allowed
Apartments and floor plans: Tuuliviirinkuja 1, Rivitalo
Tuuliviirinkuja 1 A 5
4h+k+s+parv
, Rivitalo
107 m2
1-3/3
Tuuliviirinkuja 1 A 5
4h+k+s+parv
, Rivitalo
107 m2
Floor 1-3/3
Tuuliviirinkuja 1 A 4
4h+k+s+parv
, Rivitalo
117 m2
1-3/3
Tuuliviirinkuja 1 A 4
4h+k+s+parv
, Rivitalo
117 m2
Floor 1-3/3
Tuuliviirinkuja 1 A 1
4h+k+s+parv
, Rivitalo
117 m2
1-3/3
Tuuliviirinkuja 1 A 1
4h+k+s+parv
, Rivitalo
117 m2
Floor 1-3/3
Tuuliviirinkuja 1 A 2
5h+k+s+parv
, Rivitalo
133 m2
1-3/3
Tuuliviirinkuja 1 A 2
5h+k+s+parv
, Rivitalo
133 m2
Floor 1-3/3
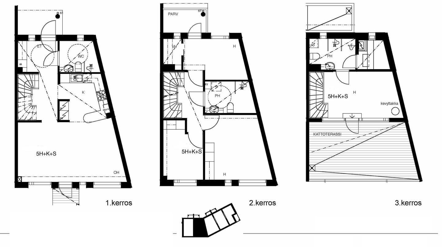
Tuuliviirinkuja 1 A 3
5h+k+s+parv
, Rivitalo
133 m2
1-3/3
Tuuliviirinkuja 1 A 3
5h+k+s+parv
, Rivitalo
133 m2
Floor 1-3/3