Property Introduction
Pienkerrostalokohde Martissa. Kaikissa asunnoissa on oma sauna. Osassa asuntoja aidattu pieni piha-alue, toisen kerroksen asunnoissa on parvekkeet. Yhtiöllä on pesutupa ja grillikatos asukkaiden käytössä.
Lähikauppaan noin 300 metrin kävelymatka.
Why Asuntosäätiö?
We believe that a happy home and quality living are for everyone. We do not seek immediate profit or financial benefit. We use the assets gained from our operations to develop our real estate. Over 33,000 Finns have already chosen a home offered by Asuntosäätiö. Pets are also welcome in all our homes.
Basic house info
- Form of housing Right-of-occupancy
- Average right-of-occupancy payment / jm² 211,28€
- Elevators No
- House sauna No
- Laundry room Yes
- Drying room Yes
- Apartment count 39
- Building count 5
- Residence charge / month / jm² 13,12€
- Construction year 1992
- Renovated 2023
- Staircases 5
- Energy class D
- Heating Kauko
- Parking spaces 39
- Hobby room 1
- Broadband Elisa
- TV-antenna system Kaapeli
- CableTV Elisa
- Roof material Tiili
- House frame material Betoni
- Pets Allowed
Apartments and floor plans: Takaniityntie 3, Pienkerrostalo, Piharakennus
Add all the apartment types you want to your application. Your opportunity to get an apartment increases when we are able to offer you all of the apartment types that may be available later on in this property. You are automatically in queue for these apartment types.
Takaniityntie 3 D 29
1h+tk+s
, Pienkerrostalo
37.5 m2
2/2
Takaniityntie 3 D 29
1h+tk+s
, Pienkerrostalo
37.5 m2
Floor 2/2
Takaniityntie 3 D 25
1h+tk+s
, Pienkerrostalo
37.5 m2
1/2
Takaniityntie 3 D 25
1h+tk+s
, Pienkerrostalo
37.5 m2
Floor 1/2
Takaniityntie 3 D 26
1h+tk+s
, Pienkerrostalo
37.5 m2
1/2
Takaniityntie 3 D 26
1h+tk+s
, Pienkerrostalo
37.5 m2
Floor 1/2
Takaniityntie 3 D 30
1h+tk+s
, Pienkerrostalo
37.5 m2
2/2
Takaniityntie 3 D 30
1h+tk+s
, Pienkerrostalo
37.5 m2
Floor 2/2
Takaniityntie 3 E 33
1h+tk+s
, Pienkerrostalo
37.5 m2
1/2
Takaniityntie 3 E 33
1h+tk+s
, Pienkerrostalo
37.5 m2
Floor 1/2
Takaniityntie 3 E 37
1h+tk+s
, Pienkerrostalo
37.5 m2
2/2
Takaniityntie 3 E 37
1h+tk+s
, Pienkerrostalo
37.5 m2
Floor 2/2
Takaniityntie 3 E 38
1h+tk+s
, Pienkerrostalo
37.5 m2
2/2
Takaniityntie 3 E 38
1h+tk+s
, Pienkerrostalo
37.5 m2
Floor 2/2
Takaniityntie 3 E 34
1h+tk+s
, Pienkerrostalo
37.5 m2
1/2
Takaniityntie 3 E 34
1h+tk+s
, Pienkerrostalo
37.5 m2
Floor 1/2
Takaniityntie 3 A 6
1h+tk+s
, Pienkerrostalo
37.5 m2
2/2
Takaniityntie 3 A 6
1h+tk+s
, Pienkerrostalo
37.5 m2
Floor 2/2
Takaniityntie 3 A 2
1h+tk+s
, Pienkerrostalo
37.5 m2
1/2
Takaniityntie 3 A 2
1h+tk+s
, Pienkerrostalo
37.5 m2
Floor 1/2
Takaniityntie 3 A 7
1h+tk+s
, Pienkerrostalo
37.5 m2
2/2
Takaniityntie 3 A 7
1h+tk+s
, Pienkerrostalo
37.5 m2
Floor 2/2
Takaniityntie 3 A 3
1h+tk+s
, Pienkerrostalo
37.5 m2
1/2
Takaniityntie 3 A 3
1h+tk+s
, Pienkerrostalo
37.5 m2
Floor 1/2
Takaniityntie 3 B 13
2h+k+s
, Pienkerrostalo
60 m2
2/2
Takaniityntie 3 B 13
2h+k+s
, Pienkerrostalo
60 m2
Floor 2/2
Takaniityntie 3 B 16
2h+k+s
, Pienkerrostalo
60 m2
2/2
Takaniityntie 3 B 16
2h+k+s
, Pienkerrostalo
60 m2
Floor 2/2
Takaniityntie 3 B 12
2h+k+s
, Pienkerrostalo
60 m2
1/2
Takaniityntie 3 B 12
2h+k+s
, Pienkerrostalo
60 m2
Floor 1/2
Takaniityntie 3 C 20
2h+k+s
, Pienkerrostalo
60 m2
2/2
Takaniityntie 3 C 20
2h+k+s
, Pienkerrostalo
60 m2
Floor 2/2
Takaniityntie 3 C 23
2h+k+s
, Pienkerrostalo
60 m2
2/2
Takaniityntie 3 C 23
2h+k+s
, Pienkerrostalo
60 m2
Floor 2/2
Takaniityntie 3 B 11
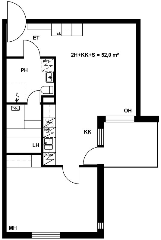
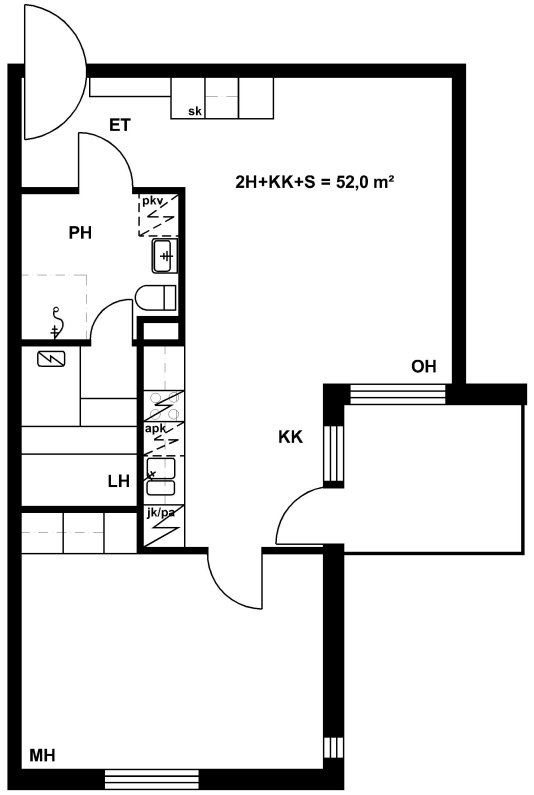
2h+kk+s
, Pienkerrostalo
52 m2
1/2
Takaniityntie 3 B 11
2h+kk+s
, Pienkerrostalo
52 m2
Floor 1/2
Takaniityntie 3 B 14
2h+kk+s
, Pienkerrostalo
52 m2
2/2
Takaniityntie 3 B 14
2h+kk+s
, Pienkerrostalo
52 m2
Floor 2/2
Takaniityntie 3 B 15
2h+kk+s
, Pienkerrostalo
52 m2
2/2
Takaniityntie 3 B 15
2h+kk+s
, Pienkerrostalo
52 m2
Floor 2/2
Takaniityntie 3 B 10
2h+kk+s
, Pienkerrostalo
52 m2
1/2
Takaniityntie 3 B 10
2h+kk+s
, Pienkerrostalo
52 m2
Floor 1/2
Takaniityntie 3 C 22
2h+kk+s
, Pienkerrostalo
52 m2
2/2
Takaniityntie 3 C 22
2h+kk+s
, Pienkerrostalo
52 m2
Floor 2/2
Takaniityntie 3 C 18
2h+kk+s
, Pienkerrostalo
52 m2
1/2
Takaniityntie 3 C 18
2h+kk+s
, Pienkerrostalo
52 m2
Floor 1/2
Takaniityntie 3 C 19
2h+kk+s
, Pienkerrostalo
52 m2
1/2
Takaniityntie 3 C 19
2h+kk+s
, Pienkerrostalo
52 m2
Floor 1/2
Takaniityntie 3 C 21
2h+kk+s
, Pienkerrostalo
52 m2
2/2
Takaniityntie 3 C 21
2h+kk+s
, Pienkerrostalo
52 m2
Floor 2/2
Takaniityntie 3 B 9
2h+kk+s
, Pienkerrostalo
53 m2
1/2
Takaniityntie 3 B 9
2h+kk+s
, Pienkerrostalo
53 m2
Floor 1/2
Takaniityntie 3 C 17
2h+kk+s
, Pienkerrostalo
53 m2
1/2
Takaniityntie 3 C 17
2h+kk+s
, Pienkerrostalo
53 m2
Floor 1/2
Takaniityntie 3 D 28
3h+k+s
, Pienkerrostalo
75.5 m2
2/2
Takaniityntie 3 D 28
3h+k+s
, Pienkerrostalo
75.5 m2
Floor 2/2
Takaniityntie 3 A 8
3h+k+s
, Pienkerrostalo
75.5 m2
2/2
Takaniityntie 3 A 8
3h+k+s
, Pienkerrostalo
75.5 m2
Floor 2/2
Takaniityntie 3 A 1
3h+k+s
, Pienkerrostalo
75.5 m2
1/2
Takaniityntie 3 A 1
3h+k+s
, Pienkerrostalo
75.5 m2
Floor 1/2
Takaniityntie 3 A 5
3h+k+s
, Pienkerrostalo
75.5 m2
2/2
Takaniityntie 3 A 5
3h+k+s
, Pienkerrostalo
75.5 m2
Floor 2/2
Takaniityntie 3 A 4
3h+k+s
, Pienkerrostalo
75.5 m2
1/2
Takaniityntie 3 A 4
3h+k+s
, Pienkerrostalo
75.5 m2
Floor 1/2
Takaniityntie 3 D 31
3h+k+s
, Pienkerrostalo
75.5 m2
2/2
Takaniityntie 3 D 31
3h+k+s
, Pienkerrostalo
75.5 m2
Floor 2/2
Takaniityntie 3 D 27
3h+k+s
, Pienkerrostalo
75.5 m2
1/2
Takaniityntie 3 D 27
3h+k+s
, Pienkerrostalo
75.5 m2
Floor 1/2
Takaniityntie 3 D 24
3h+k+s
, Pienkerrostalo
75.5 m2
1/2
Takaniityntie 3 D 24
3h+k+s
, Pienkerrostalo
75.5 m2
Floor 1/2
Takaniityntie 3 E 35
3h+k+s
, Pienkerrostalo
75.5 m2
1/2
Takaniityntie 3 E 35
3h+k+s
, Pienkerrostalo
75.5 m2
Floor 1/2
Takaniityntie 3 E 32
3h+k+s
, Pienkerrostalo
75.5 m2
1/2
Takaniityntie 3 E 32
3h+k+s
, Pienkerrostalo
75.5 m2
Floor 1/2
Takaniityntie 3 E 39
3h+k+s
, Pienkerrostalo
75.5 m2
2/2
Takaniityntie 3 E 39
3h+k+s
, Pienkerrostalo
75.5 m2
Floor 2/2
Takaniityntie 3 E 36
3h+k+s
, Pienkerrostalo
75.5 m2
2/2
Takaniityntie 3 E 36
3h+k+s
, Pienkerrostalo
75.5 m2
Floor 2/2