Property Introduction
Kohteeseen kuuluu kaksi 4-kerroksista hissillistä kerrostaloa. Metsäiset maisemat.
Lähellä ruokakauppa, päiväkoti ja leikkipuisto. Rauhallinen ja luonnonkaunis alue, jossa kulkee mm. valaistu kuntopolku, palstaviljelypaikka ja Hiirosenoja. Hyvät kulkuyhteydet: Keskustaan on noin 4 kilometriä ja isoille teille ei luonnonläheisestä sijainnista huolimatta ole pitkä matka.
Why Asuntosäätiö?
We believe that a happy home and quality living are for everyone. We do not seek immediate profit or financial benefit. We use the assets gained from our operations to develop our real estate. Over 33,000 Finns have already chosen a home offered by Asuntosäätiö. Pets are also welcome in all our homes.
Basic house info
- Form of housing Right-of-occupancy
- Average right-of-occupancy payment / jm² 320,03€
- Elevators 2
- House sauna No
- Laundry room Yes
- Drying room Yes
- Apartment count 38
- Building count 2
- Residence charge / month / jm² 11,82€
- Construction year 2000
- Staircases 2
- Energy class D
- Heating Kauko
- Parking spaces 36
- Broadband DNA Welho
- TV-antenna system Kaapeli
- CableTV DNA
- Roof material Pelti
- House frame material Betoni
- Pets Allowed
Apartments and floor plans: Metsänkuninkaantie 11, Erillistalo, Piharakennus, Kerrostalo
Add all the apartment types you want to your application. Your opportunity to get an apartment increases when we are able to offer you all of the apartment types that may be available later on in this property. You are automatically in queue for these apartment types.
Metsänkuninkaantie 11 A 16
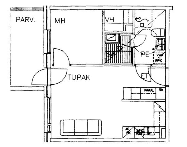
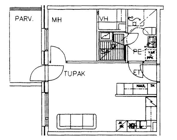
1h+tk+s
, Kerrostalo
38 m2
3/4
Metsänkuninkaantie 11 A 16
1h+tk+s
, Kerrostalo
38 m2
Floor 3/4
Metsänkuninkaantie 11 A 4
1h+tk+s
, Kerrostalo
38 m2
1/4
Metsänkuninkaantie 11 A 4
1h+tk+s
, Kerrostalo
38 m2
Floor 1/4
Metsänkuninkaantie 11 A 10
1h+tk+s
, Kerrostalo
38 m2
2/4
Metsänkuninkaantie 11 A 10
1h+tk+s
, Kerrostalo
38 m2
Floor 2/4
Metsänkuninkaantie 11 A 22
1h+tk+s
, Kerrostalo
38 m2
4/4
Metsänkuninkaantie 11 A 22
1h+tk+s
, Kerrostalo
38 m2
Floor 4/4
Metsänkuninkaantie 11 A 21
1h+tk+s
, Kerrostalo
38 m2
4/4
Metsänkuninkaantie 11 A 21
1h+tk+s
, Kerrostalo
38 m2
Floor 4/4
Metsänkuninkaantie 11 A 9
1h+tk+s
, Kerrostalo
38 m2
2/4
Metsänkuninkaantie 11 A 9
1h+tk+s
, Kerrostalo
38 m2
Floor 2/4
Metsänkuninkaantie 11 A 15
1h+tk+s
, Kerrostalo
38 m2
3/4
Metsänkuninkaantie 11 A 15
1h+tk+s
, Kerrostalo
38 m2
Floor 3/4
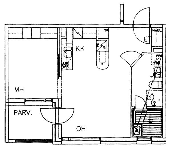
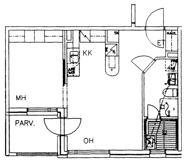
Metsänkuninkaantie 11 A 6
2h+k+s
, Kerrostalo
55 m2
2/4
Metsänkuninkaantie 11 A 6
2h+k+s
, Kerrostalo
55 m2
Floor 2/4
Metsänkuninkaantie 11 A 18
2h+k+s
, Kerrostalo
55 m2
4/4
Metsänkuninkaantie 11 A 18
2h+k+s
, Kerrostalo
55 m2
Floor 4/4
Metsänkuninkaantie 11 A 1
2h+k+s
, Kerrostalo
55 m2
1/4
Metsänkuninkaantie 11 A 1
2h+k+s
, Kerrostalo
55 m2
Floor 1/4
Metsänkuninkaantie 11 A 12
2h+k+s
, Kerrostalo
55 m2
3/4
Metsänkuninkaantie 11 A 12
2h+k+s
, Kerrostalo
55 m2
Floor 3/4
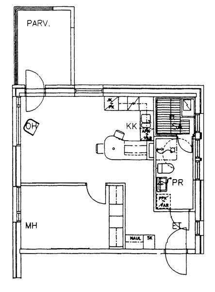
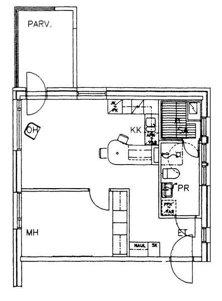
Metsänkuninkaantie 11 B 29
2h+kk+s
, Kerrostalo
44 m2
2/4
Metsänkuninkaantie 11 B 29
2h+kk+s
, Kerrostalo
44 m2
Floor 2/4
Metsänkuninkaantie 11 B 25
2h+kk+s
, Kerrostalo
44 m2
1/4
Metsänkuninkaantie 11 B 25
2h+kk+s
, Kerrostalo
44 m2
Floor 1/4
Metsänkuninkaantie 11 B 37
2h+kk+s
, Kerrostalo
44 m2
4/4
Metsänkuninkaantie 11 B 37
2h+kk+s
, Kerrostalo
44 m2
Floor 4/4
Metsänkuninkaantie 11 B 33
2h+kk+s
, Kerrostalo
44 m2
3/4
Metsänkuninkaantie 11 B 33
2h+kk+s
, Kerrostalo
44 m2
Floor 3/4
Metsänkuninkaantie 11 B 36
2h+kk+s
, Kerrostalo
44 m2
4/4
Metsänkuninkaantie 11 B 36
2h+kk+s
, Kerrostalo
44 m2
Floor 4/4
Metsänkuninkaantie 11 B 32
2h+kk+s
, Kerrostalo
44 m2
3/4
Metsänkuninkaantie 11 B 32
2h+kk+s
, Kerrostalo
44 m2
Floor 3/4
Metsänkuninkaantie 11 B 28
2h+kk+s
, Kerrostalo
44 m2
2/4
Metsänkuninkaantie 11 B 28
2h+kk+s
, Kerrostalo
44 m2
Floor 2/4
Metsänkuninkaantie 11 A 5
2h+kk+s
, Kerrostalo
44.5 m2
1/4
Metsänkuninkaantie 11 A 5
2h+kk+s
, Kerrostalo
44.5 m2
Floor 1/4
Metsänkuninkaantie 11 A 17
2h+kk+s
, Kerrostalo
48.5 m2
3/4
Metsänkuninkaantie 11 A 17
2h+kk+s
, Kerrostalo
48.5 m2
Floor 3/4
Metsänkuninkaantie 11 A 11
2h+kk+s
, Kerrostalo
48.5 m2
2/4
Metsänkuninkaantie 11 A 11
2h+kk+s
, Kerrostalo
48.5 m2
Floor 2/4
Metsänkuninkaantie 11 A 23
2h+kk+s
, Kerrostalo
48.5 m2
4/4
Metsänkuninkaantie 11 A 23
2h+kk+s
, Kerrostalo
48.5 m2
Floor 4/4
Metsänkuninkaantie 11 A 2
2h+kk+s
, Kerrostalo
49 m2
1/4
Metsänkuninkaantie 11 A 2
2h+kk+s
, Kerrostalo
49 m2
Floor 1/4
Metsänkuninkaantie 11 A 19
2h+kk+s
, Kerrostalo
49 m2
4/4
Metsänkuninkaantie 11 A 19
2h+kk+s
, Kerrostalo
49 m2
Floor 4/4
Metsänkuninkaantie 11 A 13
2h+kk+s
, Kerrostalo
49 m2
3/4
Metsänkuninkaantie 11 A 13
2h+kk+s
, Kerrostalo
49 m2
Floor 3/4
Metsänkuninkaantie 11 A 7
2h+kk+s
, Kerrostalo
49 m2
2/4
Metsänkuninkaantie 11 A 7
2h+kk+s
, Kerrostalo
49 m2
Floor 2/4
Metsänkuninkaantie 11 B 24
2h+tk+s
, Kerrostalo
62.5 m2
1/4
Metsänkuninkaantie 11 B 24
2h+tk+s
, Kerrostalo
62.5 m2
Floor 1/4
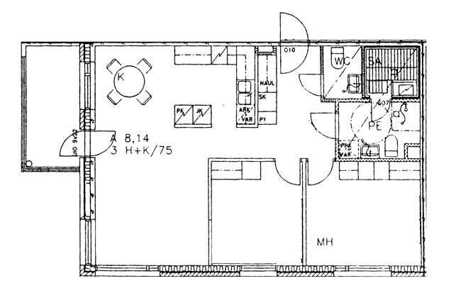
Metsänkuninkaantie 11 B 35
3h+k+s
, Kerrostalo
72 m2
4/4
Metsänkuninkaantie 11 B 35
3h+k+s
, Kerrostalo
72 m2
Floor 4/4
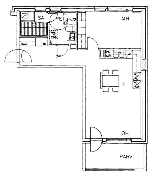
Metsänkuninkaantie 11 B 27
3h+k+s
, Kerrostalo
72 m2
2/4
Metsänkuninkaantie 11 B 27
3h+k+s
, Kerrostalo
72 m2
Floor 2/4
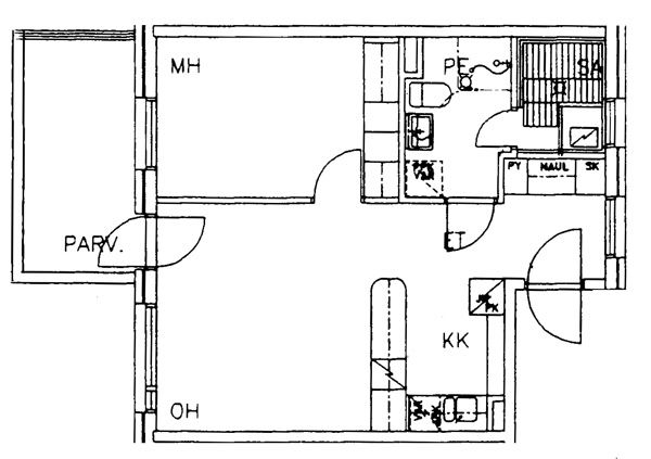
Metsänkuninkaantie 11 B 38
3h+k+s
, Kerrostalo
72 m2
4/4
Metsänkuninkaantie 11 B 38
3h+k+s
, Kerrostalo
72 m2
Floor 4/4
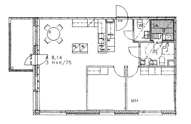
Metsänkuninkaantie 11 B 30
3h+k+s
, Kerrostalo
72 m2
2/4
Metsänkuninkaantie 11 B 30
3h+k+s
, Kerrostalo
72 m2
Floor 2/4
Metsänkuninkaantie 11 B 34
3h+k+s
, Kerrostalo
72 m2
/4
Metsänkuninkaantie 11 B 34
3h+k+s
, Kerrostalo
72 m2
Floor /4
Metsänkuninkaantie 11 B 26
3h+k+s
, Kerrostalo
72 m2
1/4
Metsänkuninkaantie 11 B 26
3h+k+s
, Kerrostalo
72 m2
Floor 1/4
Metsänkuninkaantie 11 B 31
3h+k+s
, Kerrostalo
72 m2
3./4
Metsänkuninkaantie 11 B 31
3h+k+s
, Kerrostalo
72 m2
Floor 3./4
Metsänkuninkaantie 11 A 14
3h+k+s
, Kerrostalo
75 m2
4/4
Metsänkuninkaantie 11 A 14
3h+k+s
, Kerrostalo
75 m2
Floor 4/4
Metsänkuninkaantie 11 A 8
3h+k+s
, Kerrostalo
75 m2
2/4
Metsänkuninkaantie 11 A 8
3h+k+s
, Kerrostalo
75 m2
Floor 2/4
Metsänkuninkaantie 11 A 20
3h+k+s
, Kerrostalo
75 m2
4/4
Metsänkuninkaantie 11 A 20
3h+k+s
, Kerrostalo
75 m2
Floor 4/4
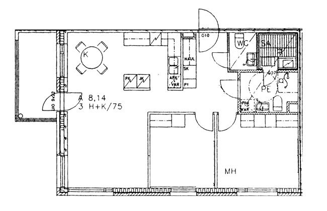
Metsänkuninkaantie 11 A 3
3h+k+s
, Kerrostalo
75 m2
1./4
Metsänkuninkaantie 11 A 3
3h+k+s
, Kerrostalo
75 m2
Floor 1./4