Property Introduction
Tämä kohde on rakennettu 2015. Asunnot ovat valoisia ja avaria. Kolmiot on kahdessa tasossa, jossa eteinen alakerrassa ja muut huoneet yläkerroksessa. Kaksiot on yhdessä tasossa alakerroksessa.
Klaavonkallio sijaitsee aivan Hyrylän keskustan tuntumassa. Kaikki peruspalvelut, kuten päiväkoti, koulu ja terveyspalvelut, ovat kävelyetäisyydellä. Tuusulanjärven ympäristö tarjoaa upeat kulttuurimaisemat ja hyvät ulkoilumahdillisuudet.
Tervetuloa asumaan Keski-Uudenmaan vetovoimaisimpaan taajamaan! Nopea yhteys pääkaupunkiseudulle ja kuitenkin asumisen viihtyisyys ja kustannustaso on omaa luokkaansa. Kunnassa on peruspalveluihin panostettu viime vuosina merkittävästi, ja uusia kouluja ja päiväkoteja on valmistunut useita. Tuusulan kunta myöntää myös kuntalisän pieniä lapsia kotona hoitaville vanhemmille. Kuntalaiset arvostavat ennen kaikkea rauhallista ja turvallista asuinympäristöä jossa on tilaa liikkua ja harrastaa.
Why Asuntosäätiö?
We believe that a happy home and quality living are for everyone. We do not seek immediate profit or financial benefit. We use the assets gained from our operations to develop our real estate. Over 33,000 Finns have already chosen a home offered by Asuntosäätiö. Pets are also welcome in all our homes.
Basic house info
- Form of housing Right-of-occupancy
- Average right-of-occupancy payment / jm² 612,26€
- Elevators No
- House sauna No
- Apartment count 19
- Building count 5
- Residence charge / month / jm² 14,89€
- Construction year 2015
- Energy class A
- Heating Kauko
- Parking spaces 15
- Broadband Elisa
- TV-antenna system Kaapeli
- Roof material Tiili
- House frame material Betoni
- Pets Allowed
Apartments and floor plans: Hyökkäläntie 18, Pienkerrostalo, Piharakennus
Add all the apartment types you want to your application. Your opportunity to get an apartment increases when we are able to offer you all of the apartment types that may be available later on in this property. You are automatically in queue for these apartment types.
Hyökkäläntie 18 E 17
2h+k+s
, Pienkerrostalo
52.5 m2
1/2
Hyökkäläntie 18 E 17
2h+k+s
, Pienkerrostalo
52.5 m2
Floor 1/2
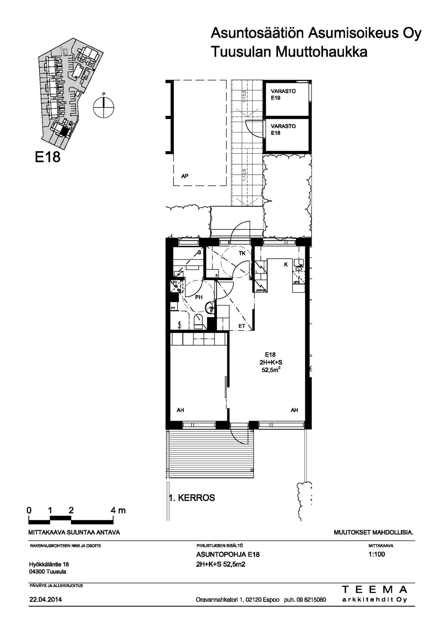
Hyökkäläntie 18 E 18
2h+k+s
, Pienkerrostalo
52.5 m2
1/2
Hyökkäläntie 18 E 18
2h+k+s
, Pienkerrostalo
52.5 m2
Floor 1/2
Hyökkäläntie 18 B 6
2h+k+s
, Pienkerrostalo
52.5 m2
1/2
Hyökkäläntie 18 B 6
2h+k+s
, Pienkerrostalo
52.5 m2
Floor 1/2
Hyökkäläntie 18 B 5
2h+k+s
, Pienkerrostalo
52.5 m2
1/2
Hyökkäläntie 18 B 5
2h+k+s
, Pienkerrostalo
52.5 m2
Floor 1/2
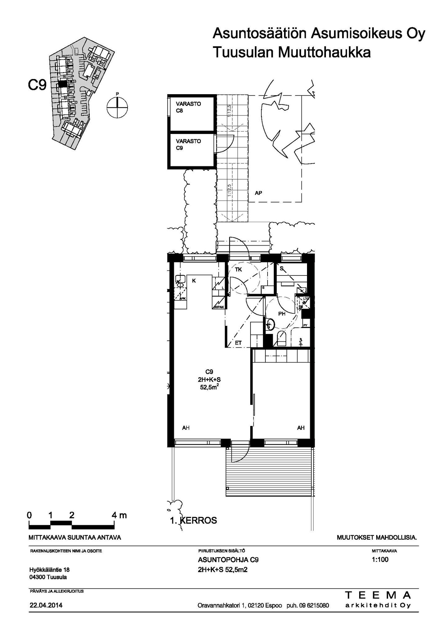
Hyökkäläntie 18 C 9
2h+k+s
, Pienkerrostalo
52.5 m2
1/2
Hyökkäläntie 18 C 9
2h+k+s
, Pienkerrostalo
52.5 m2
Floor 1/2
Hyökkäläntie 18 C 10
2h+k+s
, Pienkerrostalo
52.5 m2
1/2
Hyökkäläntie 18 C 10
2h+k+s
, Pienkerrostalo
52.5 m2
Floor 1/2
Hyökkäläntie 18 D 14
2h+k+s
, Pienkerrostalo
52.5 m2
1/2
Hyökkäläntie 18 D 14
2h+k+s
, Pienkerrostalo
52.5 m2
Floor 1/2
Hyökkäläntie 18 D 13
2h+k+s
, Pienkerrostalo
52.5 m2
1/2
Hyökkäläntie 18 D 13
2h+k+s
, Pienkerrostalo
52.5 m2
Floor 1/2
Hyökkäläntie 18 E 19
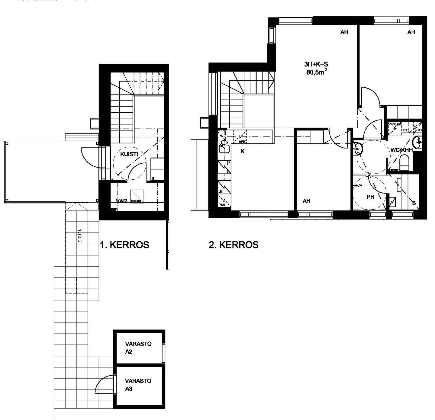
3h+k+s
, Pienkerrostalo
80.5 m2
2/2
Hyökkäläntie 18 E 19
3h+k+s
, Pienkerrostalo
80.5 m2
Floor 2/2
Hyökkäläntie 18 E 16
3h+k+s
, Pienkerrostalo
80.5 m2
2/2
Hyökkäläntie 18 E 16
3h+k+s
, Pienkerrostalo
80.5 m2
Floor 2/2
Hyökkäläntie 18 A 3
3h+k+s
, Pienkerrostalo
80.5 m2
2/2
Hyökkäläntie 18 A 3
3h+k+s
, Pienkerrostalo
80.5 m2
Floor 2/2
Hyökkäläntie 18 B 4
3h+k+s
, Pienkerrostalo
80.5 m2
Floor 2/2
Hyökkäläntie 18 B 7
3h+k+s
, Pienkerrostalo
80.5 m2
2/2
Hyökkäläntie 18 B 7
3h+k+s
, Pienkerrostalo
80.5 m2
Floor 2/2
Hyökkäläntie 18 C 11
3h+k+s
, Pienkerrostalo
80.5 m2
2/2
Hyökkäläntie 18 C 11
3h+k+s
, Pienkerrostalo
80.5 m2
Floor 2/2
Hyökkäläntie 18 C 8
3h+k+s
, Pienkerrostalo
80.5 m2
2/2
Hyökkäläntie 18 C 8
3h+k+s
, Pienkerrostalo
80.5 m2
Floor 2/2
Hyökkäläntie 18 D 15
3h+k+s
, Pienkerrostalo
80.5 m2
2/2
Hyökkäläntie 18 D 15
3h+k+s
, Pienkerrostalo
80.5 m2
Floor 2/2
Hyökkäläntie 18 D 12
3h+k+s
, Pienkerrostalo
80.5 m2
2/2
Hyökkäläntie 18 D 12
3h+k+s
, Pienkerrostalo
80.5 m2
Floor 2/2
Hyökkäläntie 18 A 1
4h+k+s
, Pienkerrostalo
92 m2
1-2/2
Hyökkäläntie 18 A 1
4h+k+s
, Pienkerrostalo
92 m2
Floor 1-2/2
Hyökkäläntie 18 A 2
4h+k+s
, Pienkerrostalo
94 m2
1/2
Hyökkäläntie 18 A 2
4h+k+s
, Pienkerrostalo
94 m2
Floor 1/2
