Property Introduction
Viihtyisiä paritaloja päättyvän kadun päässä rauhallisella pientaloalueella. Asunnot ovat kaksioita ja neljän huoneen ja keittiön asuntoja, kooltaan 53,5- 92 m2. Asuntoihin kuuluu omat, suojaisat pihat. Kohteessa on kaukolämmitys. Kohde on peruskorjattu.
Alueella on hyvät päivittäistavarakaupat, päiväkoteja ja koulu. Laajat ulkoilualueet esimerkiksi Leppäkorven pururadalle alkavat noin puolen kilometrin päästä.
Hyvät liikenneyhteydet niin omalla autolla kuin julkisilla kulkuvälineilläkin: lähimmälle juna-asemalle on alle kilometrin matka, bussipysäkkejä muutaman sadan metrin päässä.
Why Asuntosäätiö?
We believe that a happy home and quality living are for everyone. We do not seek immediate profit or financial benefit. We use the assets gained from our operations to develop our real estate. Over 33,000 Finns have already chosen a home offered by Asuntosäätiö. Pets are also welcome in all our homes.
Basic house info
- Form of housing Right-of-occupancy
- Average right-of-occupancy payment / jm² 397,18€
- Elevators No
- House sauna No
- Apartment count 4
- Building count 2
- Residence charge / month / jm² 14,99€
- Construction year 1995
- Renovated 2024
- Energy class D
- Heating Kauko
- Parking spaces 4
- Broadband DNA Welho
- TV-antenna system Kaapeli
- CableTV DNA
- Roof material Tiili
- House frame material Betoni
- Pets Allowed
Apartments and floor plans: Pikkusiilinkuja 6, Piharakennus, Paritalo
Add all the apartment types you want to your application. Your opportunity to get an apartment increases when we are able to offer you all of the apartment types that may be available later on in this property. You are automatically in queue for these apartment types.
Pikkusiilinkuja 6 A 2
2h+k+s
, Paritalo
53.5 m2
1/1
Pikkusiilinkuja 6 A 2
2h+k+s
, Paritalo
53.5 m2
Floor 1/1
Pikkusiilinkuja 6 A 1
2h+k+s
, Paritalo
53.5 m2
1/1
Pikkusiilinkuja 6 A 1
2h+k+s
, Paritalo
53.5 m2
Floor 1/1
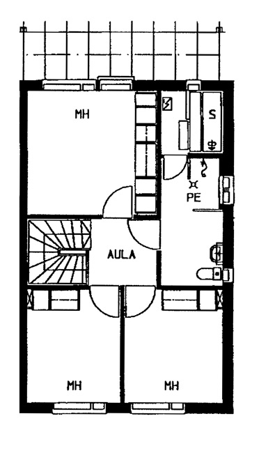
Pikkusiilinkuja 6 B 4
4h+k+s
, Paritalo
92 m2
1-2/2
Pikkusiilinkuja 6 B 4
4h+k+s
, Paritalo
92 m2
Floor 1-2/2
Pikkusiilinkuja 6 B 3
4h+k+s
, Paritalo
92 m2
1-2/2
Pikkusiilinkuja 6 B 3
4h+k+s
, Paritalo
92 m2
Floor 1-2/2