Property Introduction
Kodikkaita vuokra-asuntoja 50-luvulla rakennetussa, vuonna 2008 täysin peruskorjatussa kiinteistössä Tapiolassa rauhallisella alueella.
Asuntojen lattiat ovat laminaattia, kosteat tilat on laatoitettu.
Vuokra sisältää 25M taloyhtiölaajakaistan. LTO-kojeen sähkönkulutus menee asukkaan sähköön. Myös lemmikit ovat tervetulleita!
Why Asuntosäätiö?
We believe that a happy home and quality living are for everyone. We do not seek immediate profit or financial benefit. We use the assets gained from our operations to develop our real estate. Over 33,000 Finns have already chosen a home offered by Asuntosäätiö. Pets are also welcome in all our homes.
Basic house info
- Form of housing Rental home
- Elevators No
- House sauna 1
- Laundry room Yes
- Apartment count 16
- Building count 1
- Average rent 957,02 - 1388,57€
- Construction year 1957
- Staircases 1
- Energy class D
- Heating Kaukolämpö
- Parking spaces 11
- Broadband Included in the rent
- TV-antenna system Kaapeli
- CableTV DNA
- House frame material Kivi
- Pets Allowed
Apartments and floor plans: Aarnivalkeantie 3, Kerrostalo
Aarnivalkeantie 3 A 13
2h+k+parv
, Kerrostalo
45 m2
4/5
Aarnivalkeantie 3 A 13
2h+k+parv
, Kerrostalo
45 m2
Floor 4/5
Aarnivalkeantie 3 A 1
2h+k+parv
, Kerrostalo
45 m2
1/5
Aarnivalkeantie 3 A 1
2h+k+parv
, Kerrostalo
45 m2
Floor 1/5
Aarnivalkeantie 3 A 12
2h+k+parv
, Kerrostalo
45 m2
3/5
Aarnivalkeantie 3 A 12
2h+k+parv
, Kerrostalo
45 m2
Floor 3/5
Aarnivalkeantie 3 A 16
2h+k+parv
, Kerrostalo
45 m2
4/5
Aarnivalkeantie 3 A 16
2h+k+parv
, Kerrostalo
45 m2
Floor 4/5
Aarnivalkeantie 3 A 5
2h+k+parv
, Kerrostalo
45 m2
2/5
Aarnivalkeantie 3 A 5
2h+k+parv
, Kerrostalo
45 m2
Floor 2/5
Aarnivalkeantie 3 A 9
2h+k+parv
, Kerrostalo
45 m2
3/5
Aarnivalkeantie 3 A 9
2h+k+parv
, Kerrostalo
45 m2
Floor 3/5
Aarnivalkeantie 3 A 8
2h+k+parv
, Kerrostalo
45 m2
2/5
Aarnivalkeantie 3 A 8
2h+k+parv
, Kerrostalo
45 m2
Floor 2/5
Aarnivalkeantie 3 A 4
2h+k+parv
, Kerrostalo
45 m2
1/5
Aarnivalkeantie 3 A 4
2h+k+parv
, Kerrostalo
45 m2
Floor 1/5
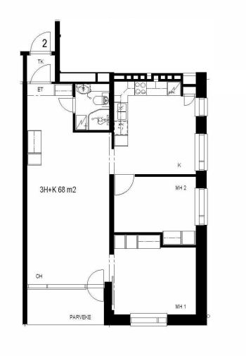
Aarnivalkeantie 3 A 3
3h+k+parv
, Kerrostalo
68 m2
1/5
Aarnivalkeantie 3 A 3
3h+k+parv
, Kerrostalo
68 m2
Floor 1/5
Aarnivalkeantie 3 A 7
3h+k+parv
, Kerrostalo
68 m2
2/5
Aarnivalkeantie 3 A 7
3h+k+parv
, Kerrostalo
68 m2
Floor 2/5
Aarnivalkeantie 3 A 11
3h+k+parv
, Kerrostalo
68 m2
3/5
Aarnivalkeantie 3 A 11
3h+k+parv
, Kerrostalo
68 m2
Floor 3/5
Aarnivalkeantie 3 A 10
3h+k+parv
, Kerrostalo
68 m2
3/5
Aarnivalkeantie 3 A 10
3h+k+parv
, Kerrostalo
68 m2
Floor 3/5
Aarnivalkeantie 3 A 14
3h+k+parv
, Kerrostalo
68 m2
4/5
Aarnivalkeantie 3 A 14
3h+k+parv
, Kerrostalo
68 m2
Floor 4/5
Aarnivalkeantie 3 A 6
3h+k+parv
, Kerrostalo
68 m2
2/5
Aarnivalkeantie 3 A 6
3h+k+parv
, Kerrostalo
68 m2
Floor 2/5
Aarnivalkeantie 3 A 2
3h+k+parv
, Kerrostalo
68 m2
1/5
Aarnivalkeantie 3 A 2
3h+k+parv
, Kerrostalo
68 m2
Floor 1/5
Aarnivalkeantie 3 A 15
3h+k+parv
, Kerrostalo
68 m2
4/5
Aarnivalkeantie 3 A 15
3h+k+parv
, Kerrostalo
68 m2
Floor 4/5