Property Introduction
Valoisa kerrostalokohde keskeisellä sijainnilla. Hyvät pohjaratkaisut, jotka mahdollistavat huoneiden sisustamisen useammalla tavalla. Kaikissa asunnoissa on oma sauna ja parveke.
Trillapuisto leikkipaikkoineen kadun toisella puolella. Lähellä myös ruokakauppa, päiväkoti, koulu ja terveysasema. Erinomaiset liikenneyhteydet: Kilon juna-asemalle parinsadan metrin kävelymatka, bussipysäkki lähes talon edessä. Lisäksi pysäköintitalossa on Asuntosäätiölle varatut kiintiöpaikat.
Why Asuntosäätiö?
We believe that a happy home and quality living are for everyone. We do not seek immediate profit or financial benefit. We use the assets gained from our operations to develop our real estate. Over 33,000 Finns have already chosen a home offered by Asuntosäätiö. Pets are also welcome in all our homes.
Basic house info
- Form of housing Right-of-occupancy
- Average right-of-occupancy payment / jm² 409,75€
- Elevators 4
- House sauna No
- Laundry room Yes
- Drying room Yes
- Apartment count 58
- Building count 2
- Residence charge / month / jm² 14,29€
- Construction year 1998
- Staircases 4
- Energy class F
- Heating Kauko
- Parking spaces 58
- Broadband DNA Welho
- TV-antenna system Kaapeli
- CableTV DNA
- Roof material Tiili
- House frame material Betoni
- Pets Allowed
Apartments and floor plans: Trillakatu 2, , Kerrostalo
Add all the apartment types you want to your application. Your opportunity to get an apartment increases when we are able to offer you all of the apartment types that may be available later on in this property. You are automatically in queue for these apartment types.
Trillakatu 2 A 9
1h+kk+s
, Kerrostalo
36 m2
3/4
Trillakatu 2 A 9
1h+kk+s
, Kerrostalo
36 m2
Floor 3/4
Trillakatu 2 A 5
1h+kk+s
, Kerrostalo
36 m2
2/4
Trillakatu 2 A 5
1h+kk+s
, Kerrostalo
36 m2
Floor 2/4
Trillakatu 2 A 1
1h+kk+s
, Kerrostalo
36 m2
1/4
Trillakatu 2 A 1
1h+kk+s
, Kerrostalo
36 m2
Floor 1/4
Trillakatu 2 A 13
1h+kk+s
, Kerrostalo
36 m2
4/4
Trillakatu 2 A 13
1h+kk+s
, Kerrostalo
36 m2
Floor 4/4
Trillakatu 2 C 33
1h+kk+s
, Kerrostalo
36.5 m2
2/4
Trillakatu 2 C 33
1h+kk+s
, Kerrostalo
36.5 m2
Floor 2/4
Trillakatu 2 C 29
1h+kk+s
, Kerrostalo
36.5 m2
1/4
Trillakatu 2 C 29
1h+kk+s
, Kerrostalo
36.5 m2
Floor 1/4
Trillakatu 2 C 41
1h+kk+s
, Kerrostalo
36.5 m2
4/4
Trillakatu 2 C 41
1h+kk+s
, Kerrostalo
36.5 m2
Floor 4/4
Trillakatu 2 C 37
1h+kk+s
, Kerrostalo
36.5 m2
3/4
Trillakatu 2 C 37
1h+kk+s
, Kerrostalo
36.5 m2
Floor 3/4
Trillakatu 2 D 54
2h+k+s
, Kerrostalo
56 m2
3/4
Trillakatu 2 D 54
2h+k+s
, Kerrostalo
56 m2
Floor 3/4
Trillakatu 2 D 50
2h+k+s
, Kerrostalo
56 m2
2/4
Trillakatu 2 D 50
2h+k+s
, Kerrostalo
56 m2
Floor 2/4
Trillakatu 2 D 58
2h+k+s
, Kerrostalo
56 m2
4/4
Trillakatu 2 D 58
2h+k+s
, Kerrostalo
56 m2
Floor 4/4
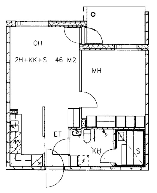
Trillakatu 2 C 38
2h+kk+s
, Kerrostalo
46 m2
3/4
Trillakatu 2 C 38
2h+kk+s
, Kerrostalo
46 m2
Floor 3/4
Trillakatu 2 A 10
2h+kk+s
, Kerrostalo
46 m2
3/4
Trillakatu 2 A 10
2h+kk+s
, Kerrostalo
46 m2
Floor 3/4
Trillakatu 2 B 18
2h+kk+s
, Kerrostalo
46 m2
1/4
Trillakatu 2 B 18
2h+kk+s
, Kerrostalo
46 m2
Floor 1/4
Trillakatu 2 A 15
2h+kk+s
, Kerrostalo
46 m2
4/4
Trillakatu 2 A 15
2h+kk+s
, Kerrostalo
46 m2
Floor 4/4
Trillakatu 2 A 6
2h+kk+s
, Kerrostalo
46 m2
2/4
Trillakatu 2 A 6
2h+kk+s
, Kerrostalo
46 m2
Floor 2/4
Trillakatu 2 A 7
2h+kk+s
, Kerrostalo
46 m2
2/4
Trillakatu 2 A 7
2h+kk+s
, Kerrostalo
46 m2
Floor 2/4
Trillakatu 2 A 2
2h+kk+s
, Kerrostalo
46 m2
1/4
Trillakatu 2 A 2
2h+kk+s
, Kerrostalo
46 m2
Floor 1/4
Trillakatu 2 A 11
2h+kk+s
, Kerrostalo
46 m2
3/4
Trillakatu 2 A 11
2h+kk+s
, Kerrostalo
46 m2
Floor 3/4
Trillakatu 2 D 45
2h+kk+s
, Kerrostalo
46 m2
1/4
Trillakatu 2 D 45
2h+kk+s
, Kerrostalo
46 m2
Floor 1/4
Trillakatu 2 D 56
2h+kk+s
, Kerrostalo
46 m2
4/4
Trillakatu 2 D 56
2h+kk+s
, Kerrostalo
46 m2
Floor 4/4
Trillakatu 2 B 24
2h+kk+s
, Kerrostalo
46 m2
3/4
Trillakatu 2 B 24
2h+kk+s
, Kerrostalo
46 m2
Floor 3/4
Trillakatu 2 C 30
2h+kk+s
, Kerrostalo
46 m2
1/4
Trillakatu 2 C 30
2h+kk+s
, Kerrostalo
46 m2
Floor 1/4
Trillakatu 2 B 21
2h+kk+s
, Kerrostalo
46 m2
2/4
Trillakatu 2 B 21
2h+kk+s
, Kerrostalo
46 m2
Floor 2/4
Trillakatu 2 D 49
2h+kk+s
, Kerrostalo
46 m2
2/4
Trillakatu 2 D 49
2h+kk+s
, Kerrostalo
46 m2
Floor 2/4
Trillakatu 2 D 52
2h+kk+s
, Kerrostalo
46 m2
3/4
Trillakatu 2 D 52
2h+kk+s
, Kerrostalo
46 m2
Floor 3/4
Trillakatu 2 B 27
2h+kk+s
, Kerrostalo
46 m2
4/4
Trillakatu 2 B 27
2h+kk+s
, Kerrostalo
46 m2
Floor 4/4
Trillakatu 2 D 48
2h+kk+s
, Kerrostalo
46 m2
2/4
Trillakatu 2 D 48
2h+kk+s
, Kerrostalo
46 m2
Floor 2/4
Trillakatu 2 A 3
2h+kk+s
, Kerrostalo
46 m2
1/4
Trillakatu 2 A 3
2h+kk+s
, Kerrostalo
46 m2
Floor 1/4
Trillakatu 2 D 46
2h+kk+s
, Kerrostalo
46 m2
1/4
Trillakatu 2 D 46
2h+kk+s
, Kerrostalo
46 m2
Floor 1/4
Trillakatu 2 C 34
2h+kk+s
, Kerrostalo
46 m2
2/4
Trillakatu 2 C 34
2h+kk+s
, Kerrostalo
46 m2
Floor 2/4
Trillakatu 2 D 57
2h+kk+s
, Kerrostalo
46 m2
4/4
Trillakatu 2 D 57
2h+kk+s
, Kerrostalo
46 m2
Floor 4/4
Trillakatu 2 A 14
2h+kk+s
, Kerrostalo
46 m2
4/4
Trillakatu 2 A 14
2h+kk+s
, Kerrostalo
46 m2
Floor 4/4
Trillakatu 2 D 53
2h+kk+s
, Kerrostalo
46 m2
3/4
Trillakatu 2 D 53
2h+kk+s
, Kerrostalo
46 m2
Floor 3/4
Trillakatu 2 B 19
3h+k+s
, Kerrostalo
75 m2
1/4
Trillakatu 2 B 19
3h+k+s
, Kerrostalo
75 m2
Floor 1/4
Trillakatu 2 C 40
3h+k+s
, Kerrostalo
75 m2
4/4
Trillakatu 2 C 40
3h+k+s
, Kerrostalo
75 m2
Floor 4/4
Trillakatu 2 B 20
3h+k+s
, Kerrostalo
75 m2
2/4
Trillakatu 2 B 20
3h+k+s
, Kerrostalo
75 m2
Floor 2/4
Trillakatu 2 B 26
3h+k+s
, Kerrostalo
75 m2
4/4
Trillakatu 2 B 26
3h+k+s
, Kerrostalo
75 m2
Floor 4/4
Trillakatu 2 C 35
3h+k+s
, Kerrostalo
75 m2
2/4
Trillakatu 2 C 35
3h+k+s
, Kerrostalo
75 m2
Floor 2/4
Trillakatu 2 B 23
3h+k+s
, Kerrostalo
75 m2
3/4
Trillakatu 2 B 23
3h+k+s
, Kerrostalo
75 m2
Floor 3/4
Trillakatu 2 C 36
3h+k+s
, Kerrostalo
75 m2
3/4
Trillakatu 2 C 36
3h+k+s
, Kerrostalo
75 m2
Floor 3/4
Trillakatu 2 D 55
3h+k+s
, Kerrostalo
75 m2
4/4
Trillakatu 2 D 55
3h+k+s
, Kerrostalo
75 m2
Floor 4/4
Trillakatu 2 D 47
3h+k+s
, Kerrostalo
75 m2
2/4
Trillakatu 2 D 47
3h+k+s
, Kerrostalo
75 m2
Floor 2/4
Trillakatu 2 C 43
3h+k+s
, Kerrostalo
75 m2
4/4
Trillakatu 2 C 43
3h+k+s
, Kerrostalo
75 m2
Floor 4/4
Trillakatu 2 D 51
3h+k+s
, Kerrostalo
75 m2
3/4
Trillakatu 2 D 51
3h+k+s
, Kerrostalo
75 m2
Floor 3/4
Trillakatu 2 C 32
3h+k+s
, Kerrostalo
75 m2
2/4
Trillakatu 2 C 32
3h+k+s
, Kerrostalo
75 m2
Floor 2/4
Trillakatu 2 D 44
3h+k+s
, Kerrostalo
75 m2
1/4
Trillakatu 2 D 44
3h+k+s
, Kerrostalo
75 m2
Floor 1/4
Trillakatu 2 B 28
4h+k+s
, Kerrostalo
88.5 m2
4/4
Trillakatu 2 B 28
4h+k+s
, Kerrostalo
88.5 m2
Floor 4/4
Trillakatu 2 B 22
4h+k+s
, Kerrostalo
88.5 m2
2/4
Trillakatu 2 B 22
4h+k+s
, Kerrostalo
88.5 m2
Floor 2/4
Trillakatu 2 A 16
4h+k+s
, Kerrostalo
88.5 m2
4/4
Trillakatu 2 A 16
4h+k+s
, Kerrostalo
88.5 m2
Floor 4/4
Trillakatu 2 A 8
4h+k+s
, Kerrostalo
88.5 m2
2/4
Trillakatu 2 A 8
4h+k+s
, Kerrostalo
88.5 m2
Floor 2/4
Trillakatu 2 B 25
4h+k+s
, Kerrostalo
88.5 m2
3/4
Trillakatu 2 B 25
4h+k+s
, Kerrostalo
88.5 m2
Floor 3/4
Trillakatu 2 A 12
4h+k+s
, Kerrostalo
88.5 m2
3/4
Trillakatu 2 A 12
4h+k+s
, Kerrostalo
88.5 m2
Floor 3/4

