Property Introduction
Sinettikuja 4 on Espoon Kiltakallion alueella omassa kulmauksessaan sijaitseva kolmikerroksinen kerrostalokohde. Talossa on 37 huoneistoa yksiöistä kolmioihin, ja osassa asunnoista on myös oma piha. Asukkailla on käytössään oma kuntosali talon kellarikerroksessa. Kohteessa on tupakointikielto sekä parvekkeilla että asukaspihoilla.
Kiltakallion alue sijaitsee kävelymatkan päässä Espoon keskuksen palveluista. Alueella lähellä ovat myös terveysasema sekä Saarnimäen puistoalue. Alle kahden kilometrin päässä virtaa Espoonjoki, jonka ympäristö tarjoaa hyvät mahdollisuudet ulkoiluun.
Why Asuntosäätiö?
We believe that a happy home and quality living are for everyone. We do not seek immediate profit or financial benefit. We use the assets gained from our operations to develop our real estate. Over 33,000 Finns have already chosen a home offered by Asuntosäätiö. Pets are also welcome in all our homes.
Basic house info
- Form of housing Right-of-occupancy
- Average right-of-occupancy payment / jm² 222,89€
- Elevators No
- House sauna No
- Drying room Yes
- Apartment count 37
- Building count 1
- Residence charge / month / jm² 13,83€
- Construction year 1993
- Renovated 2023
- Staircases 4
- Energy class D
- Heating Kauko
- Parking spaces 38
- Broadband DNA Welho
- TV-antenna system Kaapeli
- CableTV DNA
- Roof material Huopa
- House frame material Betoni
- Pets Allowed
Apartments and floor plans: Sinettikuja 4, Kerrostalo,
Add all the apartment types you want to your application. Your opportunity to get an apartment increases when we are able to offer you all of the apartment types that may be available later on in this property. You are automatically in queue for these apartment types.
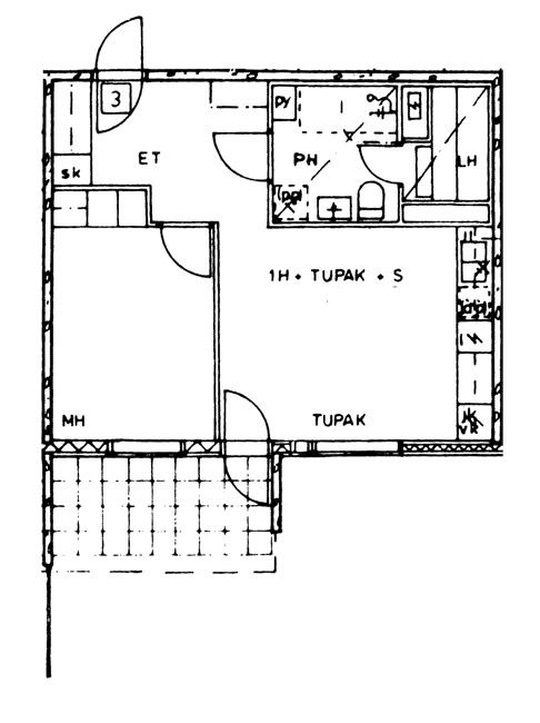
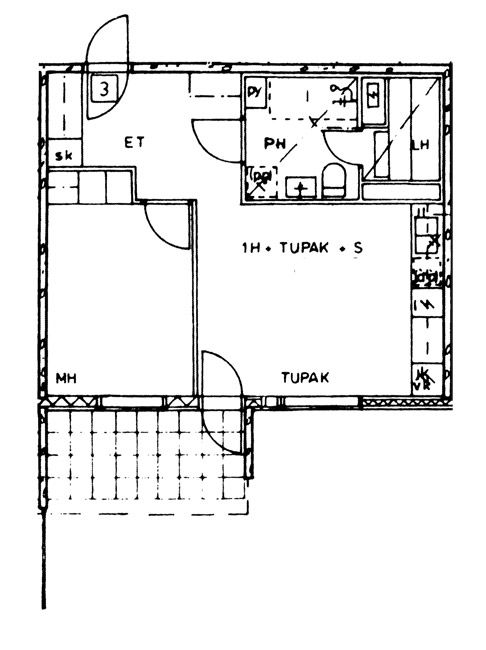
Sinettikuja 4 A 6
1h+tk+s
, Kerrostalo
43 m2
1/3
Sinettikuja 4 A 6
1h+tk+s
, Kerrostalo
43 m2
Floor 1/3
Sinettikuja 4 A 2
1h+tk+s
, Kerrostalo
43 m2
p/3
Sinettikuja 4 A 2
1h+tk+s
, Kerrostalo
43 m2
Floor p/3
Sinettikuja 4 C 23
1h+tk+s
, Kerrostalo
43 m2
1/3
Sinettikuja 4 C 23
1h+tk+s
, Kerrostalo
43 m2
Floor 1/3
Sinettikuja 4 A 7
1h+tk+s
, Kerrostalo
43 m2
1/3
Sinettikuja 4 A 7
1h+tk+s
, Kerrostalo
43 m2
Floor 1/3
Sinettikuja 4 A 3
1h+tk+s
, Kerrostalo
43 m2
p/3
Sinettikuja 4 A 3
1h+tk+s
, Kerrostalo
43 m2
Floor p/3
Sinettikuja 4 B 17
1h+tk+s
, Kerrostalo
43 m2
1/3
Sinettikuja 4 B 17
1h+tk+s
, Kerrostalo
43 m2
Floor 1/3
Sinettikuja 4 A 11
1h+tk+s
, Kerrostalo
43 m2
3/3
Sinettikuja 4 A 11
1h+tk+s
, Kerrostalo
43 m2
Floor 3/3
Sinettikuja 4 C 26
1h+tk+s
, Kerrostalo
43 m2
2/3
Sinettikuja 4 C 26
1h+tk+s
, Kerrostalo
43 m2
Floor 2/3
Sinettikuja 4 B 20
1h+tk+s
, Kerrostalo
43 m2
2/3
Sinettikuja 4 B 20
1h+tk+s
, Kerrostalo
43 m2
Floor 2/3
Sinettikuja 4 A 10
1h+tk+s
, Kerrostalo
43 m2
2/3
Sinettikuja 4 A 10
1h+tk+s
, Kerrostalo
43 m2
Floor 2/3
Sinettikuja 4 B 14
1h+tk+s
, Kerrostalo
43 m2
p/3
Sinettikuja 4 B 14
1h+tk+s
, Kerrostalo
43 m2
Floor p/3
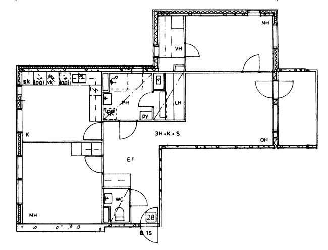
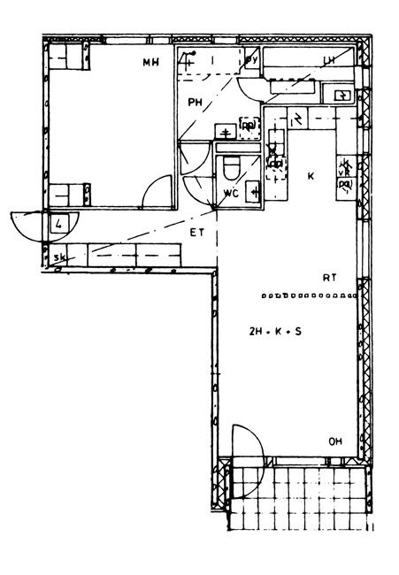
Sinettikuja 4 C 25
2h+k+s
, Kerrostalo
65.5 m2
2/3
Sinettikuja 4 C 25
2h+k+s
, Kerrostalo
65.5 m2
Floor 2/3
Sinettikuja 4 B 13
2h+k+s
, Kerrostalo
65.5 m2
p/3
Sinettikuja 4 B 13
2h+k+s
, Kerrostalo
65.5 m2
Floor p/3
Sinettikuja 4 B 19
2h+k+s
, Kerrostalo
65.5 m2
2/3
Sinettikuja 4 B 19
2h+k+s
, Kerrostalo
65.5 m2
Floor 2/3
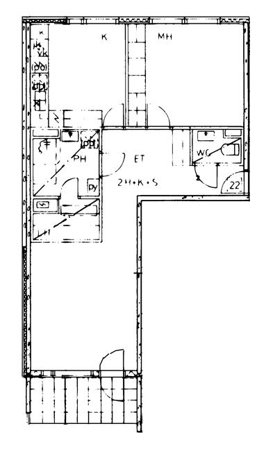
Sinettikuja 4 C 22
2h+k+s
, Kerrostalo
65.5 m2
1/3
Sinettikuja 4 C 22
2h+k+s
, Kerrostalo
65.5 m2
Floor 1/3
Sinettikuja 4 A 4
2h+k+s
, Kerrostalo
65.5 m2
p/3
Sinettikuja 4 A 4
2h+k+s
, Kerrostalo
65.5 m2
Floor p/3
Sinettikuja 4 B 15
2h+k+s
, Kerrostalo
66.5 m2
p/3
Sinettikuja 4 B 15
2h+k+s
, Kerrostalo
66.5 m2
Floor p/3
Sinettikuja 4 D 33
2h+kk+s
, Kerrostalo
48 m2
1/3
Sinettikuja 4 D 33
2h+kk+s
, Kerrostalo
48 m2
Floor 1/3
Sinettikuja 4 D 29
2h+kk+s
, Kerrostalo
48 m2
p/3
Sinettikuja 4 D 29
2h+kk+s
, Kerrostalo
48 m2
Floor p/3
Sinettikuja 4 D 37
2h+kk+s
, Kerrostalo
48 m2
2/3
Sinettikuja 4 D 37
2h+kk+s
, Kerrostalo
48 m2
Floor 2/3
Sinettikuja 4 D 30
2h+kk+s
, Kerrostalo
48.5 m2
1/3
Sinettikuja 4 D 30
2h+kk+s
, Kerrostalo
48.5 m2
Floor 1/3
Sinettikuja 4 D 34
2h+kk+s
, Kerrostalo
48.5 m2
2/3
Sinettikuja 4 D 34
2h+kk+s
, Kerrostalo
48.5 m2
Floor 2/3
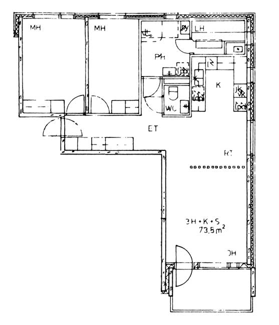
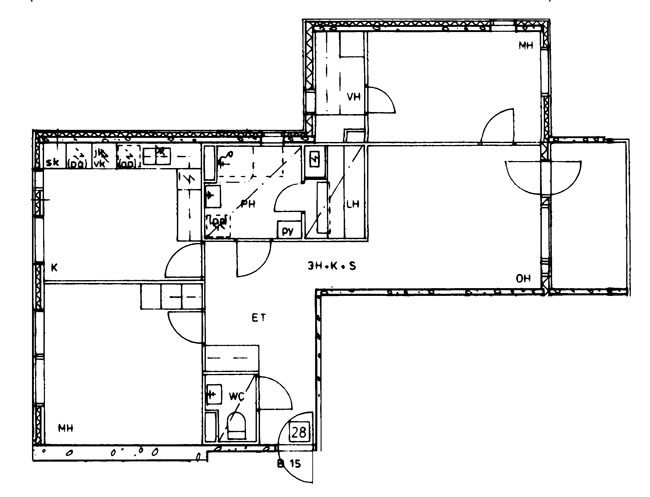
Sinettikuja 4 A 8
3h+k+s
, Kerrostalo
73.5 m2
1/3
Sinettikuja 4 A 8
3h+k+s
, Kerrostalo
73.5 m2
Floor 1/3
Sinettikuja 4 A 12
3h+k+s
, Kerrostalo
73.5 m2
3/3
Sinettikuja 4 A 12
3h+k+s
, Kerrostalo
73.5 m2
Floor 3/3
Sinettikuja 4 C 24
3h+k+s
, Kerrostalo
82 m2
1/3
Sinettikuja 4 C 24
3h+k+s
, Kerrostalo
82 m2
Floor 1/3
Sinettikuja 4 B 18
3h+k+s
, Kerrostalo
82 m2
1/3
Sinettikuja 4 B 18
3h+k+s
, Kerrostalo
82 m2
Floor 1/3
Sinettikuja 4 D 28
3h+k+s
, Kerrostalo
82 m2
p/3
Sinettikuja 4 D 28
3h+k+s
, Kerrostalo
82 m2
Floor p/3
Sinettikuja 4 C 27
3h+k+s
, Kerrostalo
82 m2
2/3
Sinettikuja 4 C 27
3h+k+s
, Kerrostalo
82 m2
Floor 2/3
Sinettikuja 4 B 21
3h+k+s
, Kerrostalo
82 m2
2/3
Sinettikuja 4 B 21
3h+k+s
, Kerrostalo
82 m2
Floor 2/3
Sinettikuja 4 D 32
3h+k+s
, Kerrostalo
82 m2
1/3
Sinettikuja 4 D 32
3h+k+s
, Kerrostalo
82 m2
Floor 1/3
Sinettikuja 4 D 36
3h+k+s
, Kerrostalo
82 m2
2/3
Sinettikuja 4 D 36
3h+k+s
, Kerrostalo
82 m2
Floor 2/3
Sinettikuja 4 A 1
3h+k+s
, Kerrostalo
84 m2
p/3
Sinettikuja 4 A 1
3h+k+s
, Kerrostalo
84 m2
Floor p/3
Sinettikuja 4 D 31
3h+k+s
, Kerrostalo
84 m2
1/3
Sinettikuja 4 D 31
3h+k+s
, Kerrostalo
84 m2
Floor 1/3
Sinettikuja 4 D 35
3h+k+s
, Kerrostalo
84 m2
2/3
Sinettikuja 4 D 35
3h+k+s
, Kerrostalo
84 m2
Floor 2/3
Sinettikuja 4 A 9
3h+k+s
, Kerrostalo
84 m2
2/3
Sinettikuja 4 A 9
3h+k+s
, Kerrostalo
84 m2
Floor 2/3

