Property Introduction
Päättyvän kadun varrella, puistoon rajoittuvalla metsäisellä tontilla sijaitseva kerrostalokohde. Kaikissa asunnoissa on oma sauna ja osassa myös parveke. Hissi ainoastaan A-rapussa.
Lähellä on useampi päiväkoti, koulu, ruokakauppa, Angry Birds-leikkipuisto ja uimahalli sekä maauimala. Monikonpuron luonnonsuojelualue ja alueen useat puistot kutsuvat ulkoilemaan. Lisää palveluita löytyy alle kilometrin päässä olevasta Sellon kauppakeskuksesta.
Why Asuntosäätiö?
We believe that a happy home and quality living are for everyone. We do not seek immediate profit or financial benefit. We use the assets gained from our operations to develop our real estate. Over 33,000 Finns have already chosen a home offered by Asuntosäätiö. Pets are also welcome in all our homes.
Basic house info
- Form of housing Right-of-occupancy
- Average right-of-occupancy payment / jm² 236,37€
- Elevators 1
- House sauna No
- Drying room Yes
- Apartment count 28
- Building count 1
- Residence charge / month / jm² 16,33€
- Construction year 1993
- Renovated 2023
- Staircases 2
- Energy class D
- Heating Kauko
- Parking spaces 28
- Broadband DNA Welho
- TV-antenna system Kaapeli
- CableTV DNA
- Roof material Huopa
- House frame material Betoni
- Pets Allowed
Apartments and floor plans: Kyyhkysmäki 12, Piharakennus, Kerrostalo
Add all the apartment types you want to your application. Your opportunity to get an apartment increases when we are able to offer you all of the apartment types that may be available later on in this property. You are automatically in queue for these apartment types.
Kyyhkysmäki 12 A 2
2h+k+s
, Kerrostalo
48.5 m2
1/5
Kyyhkysmäki 12 A 2
2h+k+s
, Kerrostalo
48.5 m2
Floor 1/5
Kyyhkysmäki 12 B 20
2h+k+s
, Kerrostalo
51.5 m2
1/5
Kyyhkysmäki 12 B 20
2h+k+s
, Kerrostalo
51.5 m2
Floor 1/5
Kyyhkysmäki 12 B 21
2h+k+s
, Kerrostalo
55.5 m2
1/5
Kyyhkysmäki 12 B 21
2h+k+s
, Kerrostalo
55.5 m2
Floor 1/5
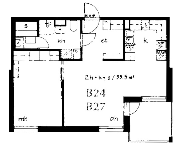
Kyyhkysmäki 12 B 24
2h+k+s
, Kerrostalo
55.5 m2
2/5
Kyyhkysmäki 12 B 24
2h+k+s
, Kerrostalo
55.5 m2
Floor 2/5
Kyyhkysmäki 12 B 27
2h+k+s
, Kerrostalo
55.5 m2
3/5
Kyyhkysmäki 12 B 27
2h+k+s
, Kerrostalo
55.5 m2
Floor 3/5
Kyyhkysmäki 12 A 1
2h+k+s
, Kerrostalo
56 m2
1/5
Kyyhkysmäki 12 A 1
2h+k+s
, Kerrostalo
56 m2
Floor 1/5
Kyyhkysmäki 12 A 16
2h+k+s
, Kerrostalo
58.5 m2
4/5
Kyyhkysmäki 12 A 16
2h+k+s
, Kerrostalo
58.5 m2
Floor 4/5
Kyyhkysmäki 12 A 12
2h+k+s
, Kerrostalo
58.5 m2
3/5
Kyyhkysmäki 12 A 12
2h+k+s
, Kerrostalo
58.5 m2
Floor 3/5
Kyyhkysmäki 12 A 8
2h+k+s
, Kerrostalo
58.5 m2
2/5
Kyyhkysmäki 12 A 8
2h+k+s
, Kerrostalo
58.5 m2
Floor 2/5
Kyyhkysmäki 12 A 4
2h+k+s
, Kerrostalo
58.5 m2
1/5
Kyyhkysmäki 12 A 4
2h+k+s
, Kerrostalo
58.5 m2
Floor 1/5
Kyyhkysmäki 12 B 26
2h+k+s
, Kerrostalo
59 m2
3/5
Kyyhkysmäki 12 B 26
2h+k+s
, Kerrostalo
59 m2
Floor 3/5
Kyyhkysmäki 12 B 23
2h+k+s
, Kerrostalo
59 m2
2/5
Kyyhkysmäki 12 B 23
2h+k+s
, Kerrostalo
59 m2
Floor 2/5
Kyyhkysmäki 12 A 18
2h+kk+s
, Kerrostalo
48.5 m2
5/5
Kyyhkysmäki 12 A 18
2h+kk+s
, Kerrostalo
48.5 m2
Floor 5/5
Kyyhkysmäki 12 A 15
2h+kk+s
, Kerrostalo
48.5 m2
4/5
Kyyhkysmäki 12 A 15
2h+kk+s
, Kerrostalo
48.5 m2
Floor 4/5
Kyyhkysmäki 12 A 11
2h+kk+s
, Kerrostalo
48.5 m2
3/5
Kyyhkysmäki 12 A 11
2h+kk+s
, Kerrostalo
48.5 m2
Floor 3/5
Kyyhkysmäki 12 A 19
2h+kk+s
, Kerrostalo
48.5 m2
5/5
Kyyhkysmäki 12 A 19
2h+kk+s
, Kerrostalo
48.5 m2
Floor 5/5
Kyyhkysmäki 12 A 10
2h+kk+s
, Kerrostalo
48.5 m2
3/5
Kyyhkysmäki 12 A 10
2h+kk+s
, Kerrostalo
48.5 m2
Floor 3/5
Kyyhkysmäki 12 A 14
2h+kk+s
, Kerrostalo
48.5 m2
4/5
Kyyhkysmäki 12 A 14
2h+kk+s
, Kerrostalo
48.5 m2
Floor 4/5
Kyyhkysmäki 12 A 3
2h+kk+s
, Kerrostalo
48.5 m2
1/5
Kyyhkysmäki 12 A 3
2h+kk+s
, Kerrostalo
48.5 m2
Floor 1/5
Kyyhkysmäki 12 A 7
2h+kk+s
, Kerrostalo
48.5 m2
2/5
Kyyhkysmäki 12 A 7
2h+kk+s
, Kerrostalo
48.5 m2
Floor 2/5
Kyyhkysmäki 12 B 28
3h+k+s
, Kerrostalo
69.5 m2
3/5
Kyyhkysmäki 12 B 28
3h+k+s
, Kerrostalo
69.5 m2
Floor 3/5
Kyyhkysmäki 12 B 25
3h+k+s
, Kerrostalo
69.5 m2
2/5
Kyyhkysmäki 12 B 25
3h+k+s
, Kerrostalo
69.5 m2
Floor 2/5
Kyyhkysmäki 12 B 22
3h+k+s
, Kerrostalo
69.5 m2
1/5
Kyyhkysmäki 12 B 22
3h+k+s
, Kerrostalo
69.5 m2
Floor 1/5
Kyyhkysmäki 12 A 5
4h+k+s
, Kerrostalo
79.5 m2
2/5
Kyyhkysmäki 12 A 5
4h+k+s
, Kerrostalo
79.5 m2
Floor 2/5
Kyyhkysmäki 12 A 17
4h+k+s
, Kerrostalo
79.5 m2
5/5
Kyyhkysmäki 12 A 17
4h+k+s
, Kerrostalo
79.5 m2
Floor 5/5
Kyyhkysmäki 12 A 9
4h+k+s
, Kerrostalo
79.5 m2
3/5
Kyyhkysmäki 12 A 9
4h+k+s
, Kerrostalo
79.5 m2
Floor 3/5
Kyyhkysmäki 12 A 13
4h+k+s
, Kerrostalo
79.5 m2
4/5
Kyyhkysmäki 12 A 13
4h+k+s
, Kerrostalo
79.5 m2
Floor 4/5
