Property Introduction
Puiston vieressä sijaitseva kerrostalokohde Leppävaarassa. Suojaisa sisäpiha. Kaikissa asunnoissa on oma sauna ja osassa asuntoja myös parveke.
Lähellä on neuvola, useampi päiväkoti, koulu ja kaikki kauppakeskus Sellon palvelut. Ulkoilemaan kutsuu lähellä olevat Albergan kartanon puistoalueet leikkipaikkoineen, Säterinmetsä ja Säterinniityn urheilupaikat. Kesällä uimaan pääsee Leppävaaran maauimalaan. Erinomaiset liikenneyhteydet: Bussipysäkki on lähellä ja Sellon toiselta puolelta olevalta Leppävaaran asemalta kulkee junia lyhyillä vuoroväleillä. Nopeat kulkuyhteydet myös omalla autolla.
Why Asuntosäätiö?
We believe that a happy home and quality living are for everyone. We do not seek immediate profit or financial benefit. We use the assets gained from our operations to develop our real estate. Over 33,000 Finns have already chosen a home offered by Asuntosäätiö. Pets are also welcome in all our homes.
Basic house info
- Form of housing Right-of-occupancy
- Average right-of-occupancy payment / jm² 420,64€
- Elevators 2
- House sauna No
- Drying room Yes
- Apartment count 45
- Building count 1
- Residence charge / month / jm² 15,27€
- Construction year 1998
- Staircases 2
- Energy class F
- Heating Kauko
- Parking spaces 33
- Broadband DNA Welho
- TV-antenna system Kaapeli
- CableTV DNA
- Roof material Huopa
- House frame material Betoni
- Pets Allowed
Apartments and floor plans: Sokerilinnantie 2, Piharakennus, Kerrostalo
Add all the apartment types you want to your application. Your opportunity to get an apartment increases when we are able to offer you all of the apartment types that may be available later on in this property. You are automatically in queue for these apartment types.
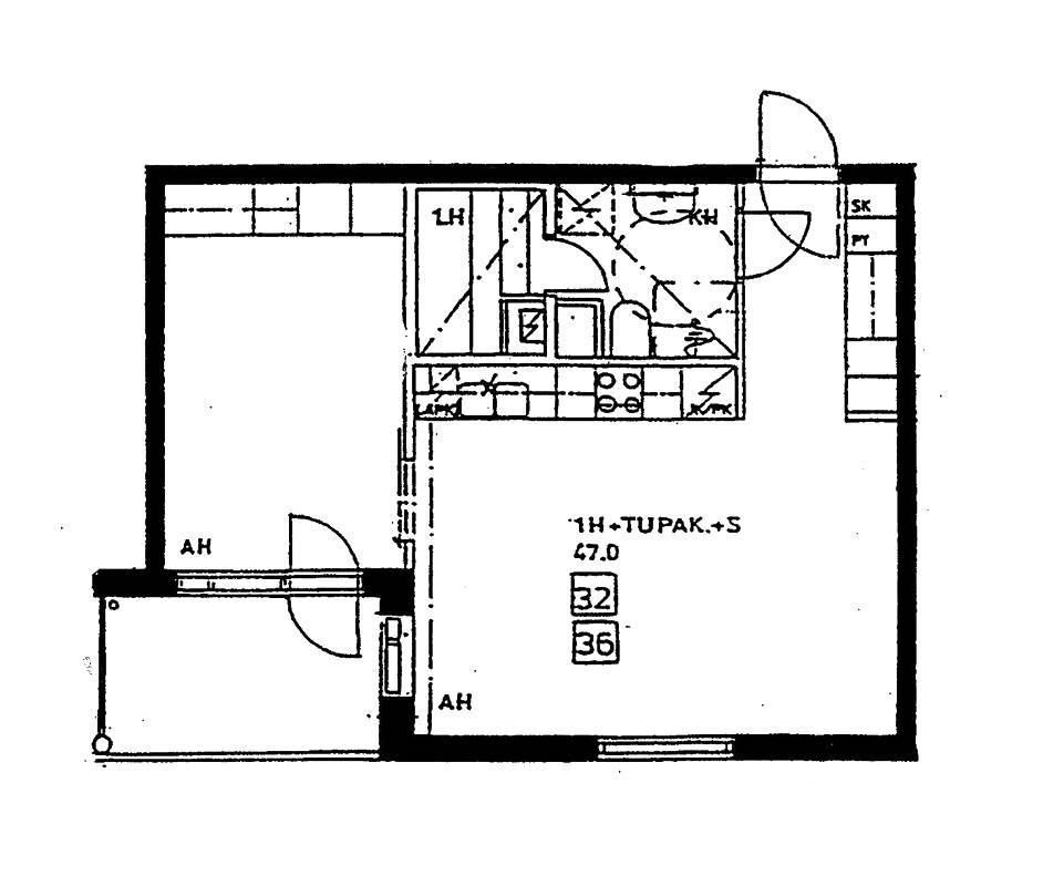
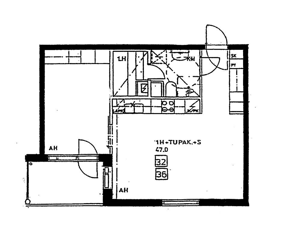
Sokerilinnantie 2 B 43
1h+tk+s
, Kerrostalo
47 m2
5/7
Sokerilinnantie 2 B 43
1h+tk+s
, Kerrostalo
47 m2
Floor 5/7
Sokerilinnantie 2 B 40
1h+tk+s
, Kerrostalo
47 m2
4/7
Sokerilinnantie 2 B 40
1h+tk+s
, Kerrostalo
47 m2
Floor 4/7
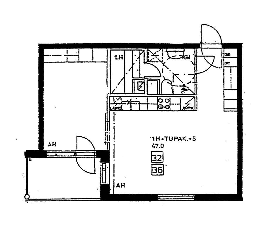
Sokerilinnantie 2 B 32
1h+tk+s
, Kerrostalo
47 m2
2/7
Sokerilinnantie 2 B 32
1h+tk+s
, Kerrostalo
47 m2
Floor 2/7
Sokerilinnantie 2 B 31
1h+tk+s
, Kerrostalo
47 m2
2/7
Sokerilinnantie 2 B 31
1h+tk+s
, Kerrostalo
47 m2
Floor 2/7
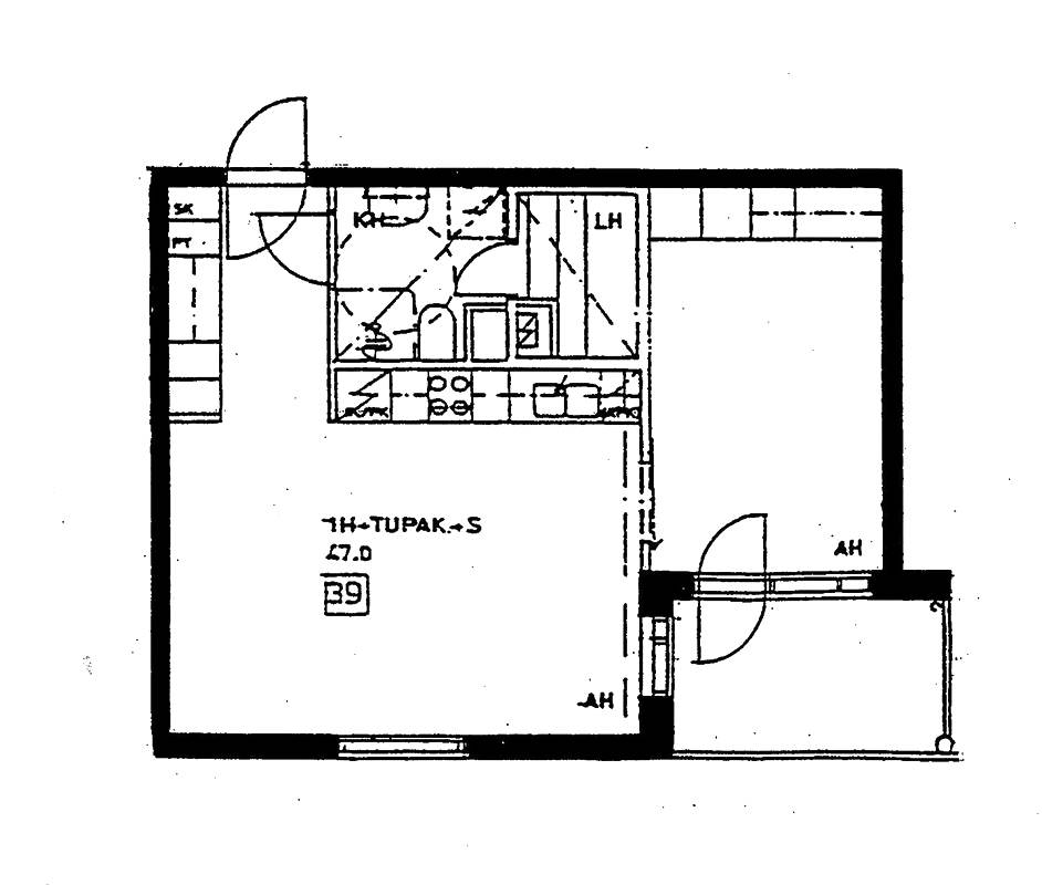
Sokerilinnantie 2 B 39
1h+tk+s
, Kerrostalo
47 m2
4/7
Sokerilinnantie 2 B 39
1h+tk+s
, Kerrostalo
47 m2
Floor 4/7
Sokerilinnantie 2 B 35
1h+tk+s
, Kerrostalo
47 m2
3/7
Sokerilinnantie 2 B 35
1h+tk+s
, Kerrostalo
47 m2
Floor 3/7
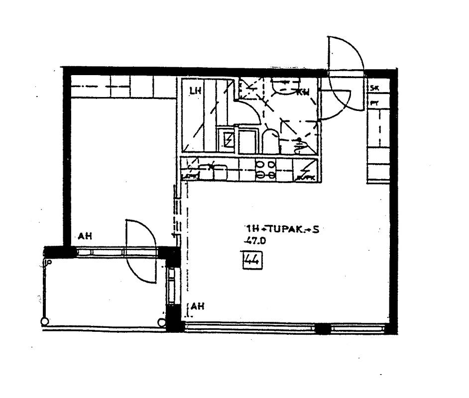
Sokerilinnantie 2 B 44
1h+tk+s
, Kerrostalo
47 m2
5/7
Sokerilinnantie 2 B 44
1h+tk+s
, Kerrostalo
47 m2
Floor 5/7
Sokerilinnantie 2 B 36
1h+tk+s
, Kerrostalo
47 m2
3/7
Sokerilinnantie 2 B 36
1h+tk+s
, Kerrostalo
47 m2
Floor 3/7
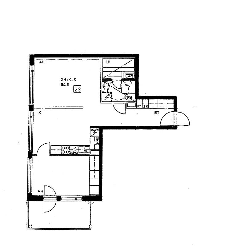
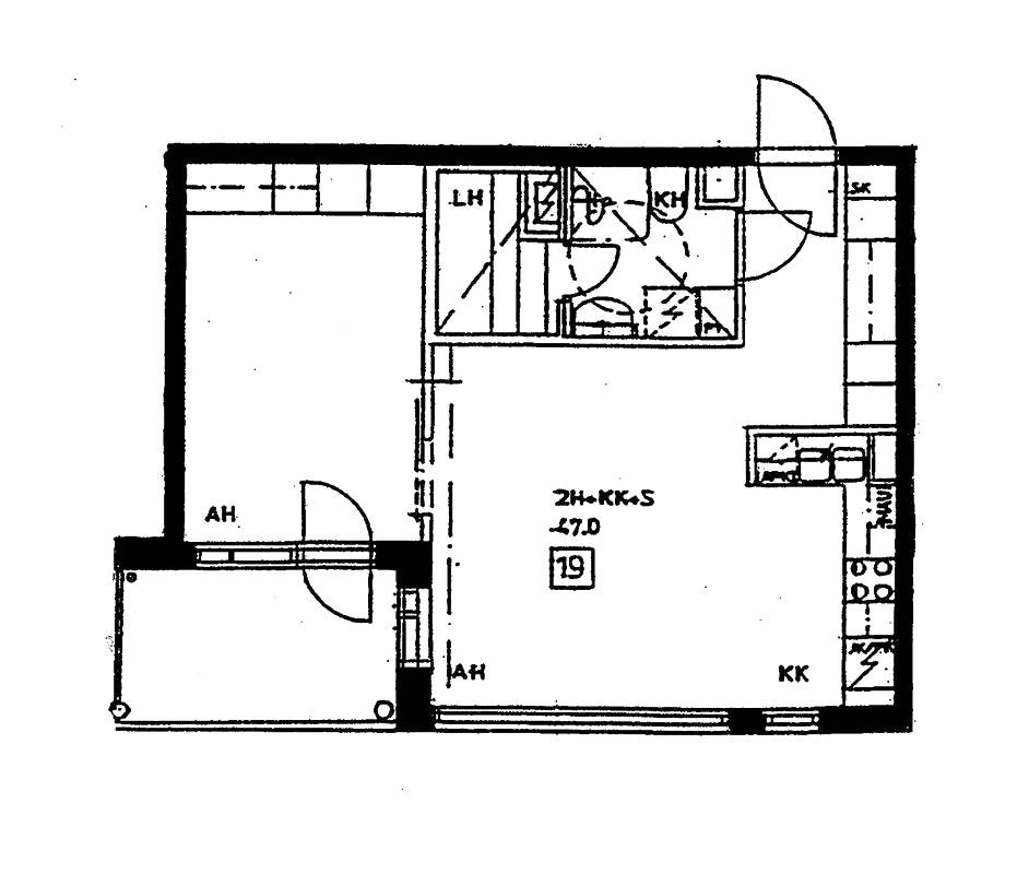
Sokerilinnantie 2 A 18
2h+k+s
, Kerrostalo
54.5 m2
5/7
Sokerilinnantie 2 A 18
2h+k+s
, Kerrostalo
54.5 m2
Floor 5/7
Sokerilinnantie 2 A 26
2h+k+s
, Kerrostalo
54.5 m2
7/7
Sokerilinnantie 2 A 26
2h+k+s
, Kerrostalo
54.5 m2
Floor 7/7
Sokerilinnantie 2 A 13
2h+k+s
, Kerrostalo
54.5 m2
4/7
Sokerilinnantie 2 A 13
2h+k+s
, Kerrostalo
54.5 m2
Floor 4/7
Sokerilinnantie 2 A 3
2h+k+s
, Kerrostalo
54.5 m2
2/7
Sokerilinnantie 2 A 3
2h+k+s
, Kerrostalo
54.5 m2
Floor 2/7
Sokerilinnantie 2 A 23
2h+k+s
, Kerrostalo
54.5 m2
6/7
Sokerilinnantie 2 A 23
2h+k+s
, Kerrostalo
54.5 m2
Floor 6/7
Sokerilinnantie 2 A 8
2h+k+s
, Kerrostalo
54.5 m2
3/7
Sokerilinnantie 2 A 8
2h+k+s
, Kerrostalo
54.5 m2
Floor 3/7
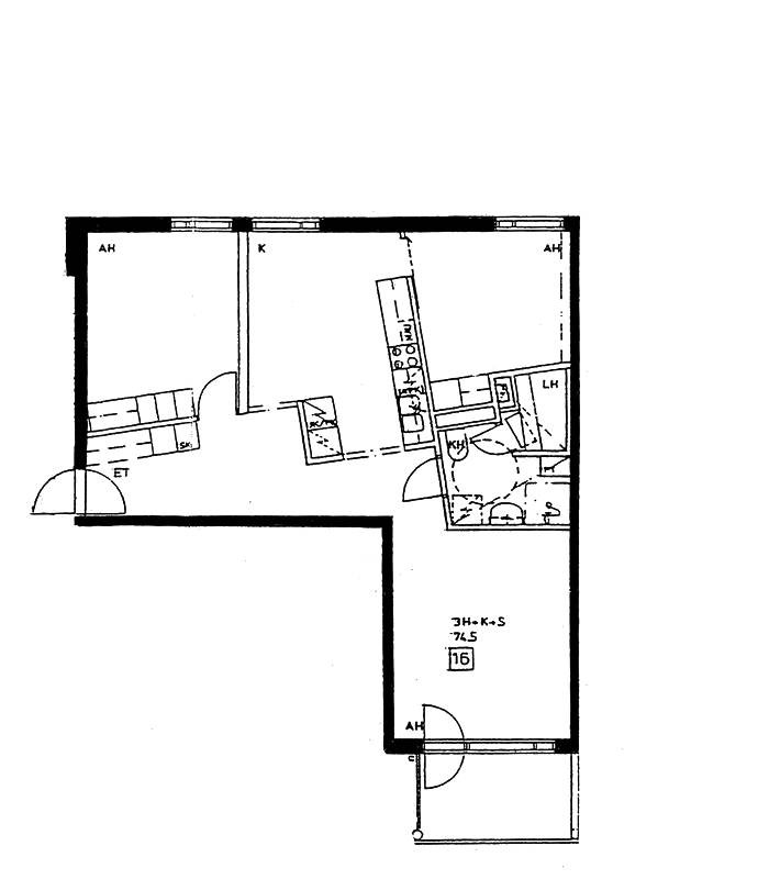
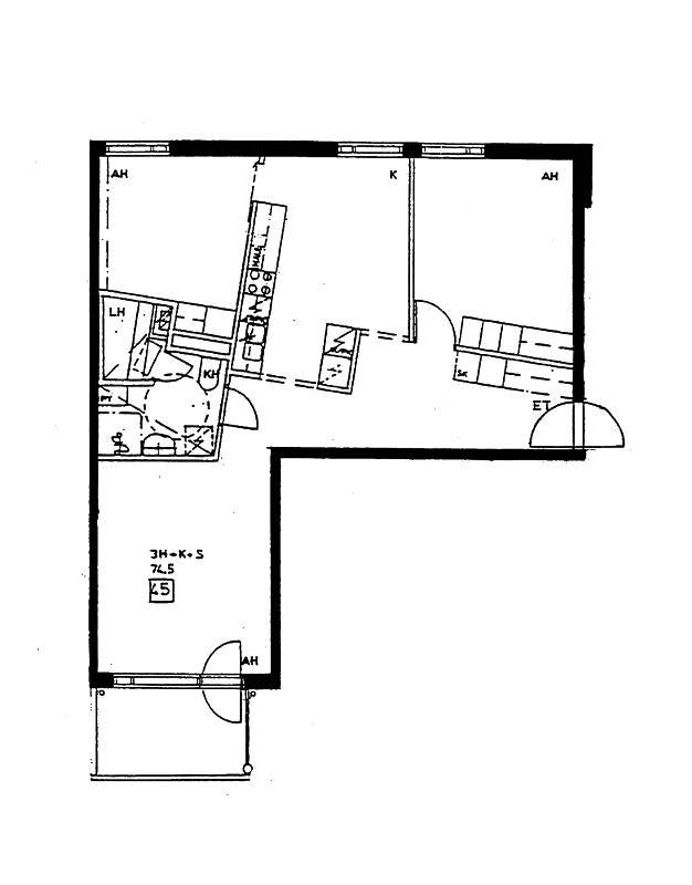
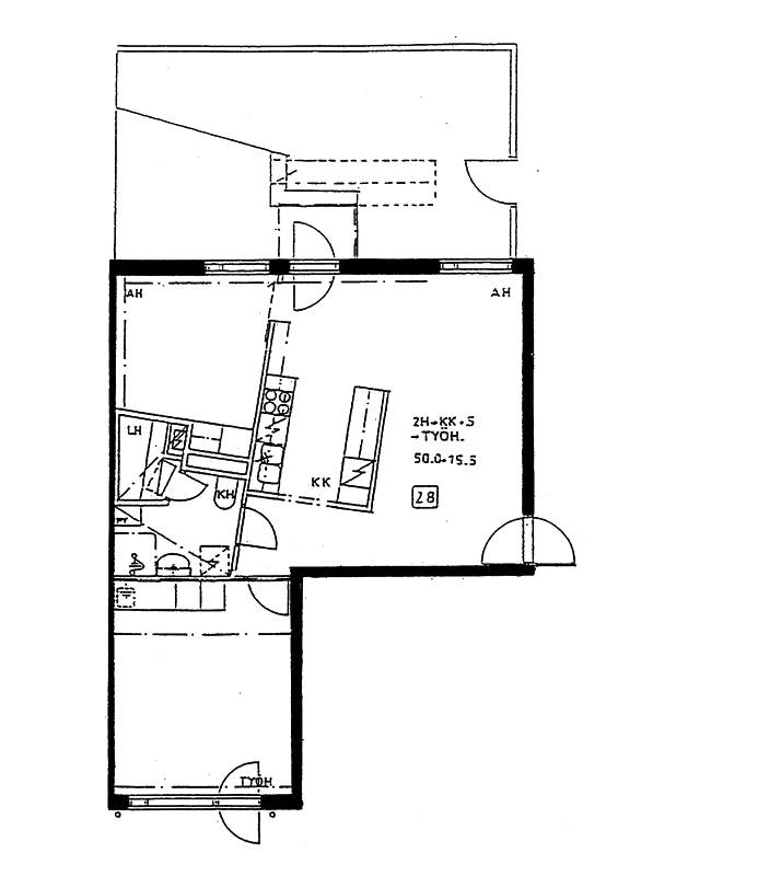
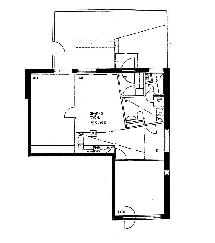
Sokerilinnantie 2 B 29
2h+k+s+th
, Kerrostalo
74.5 m2
1/7
Sokerilinnantie 2 B 29
2h+k+s+th
, Kerrostalo
74.5 m2
Floor 1/7
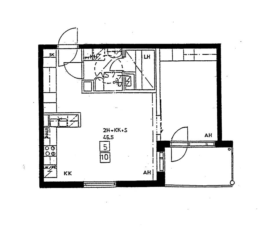
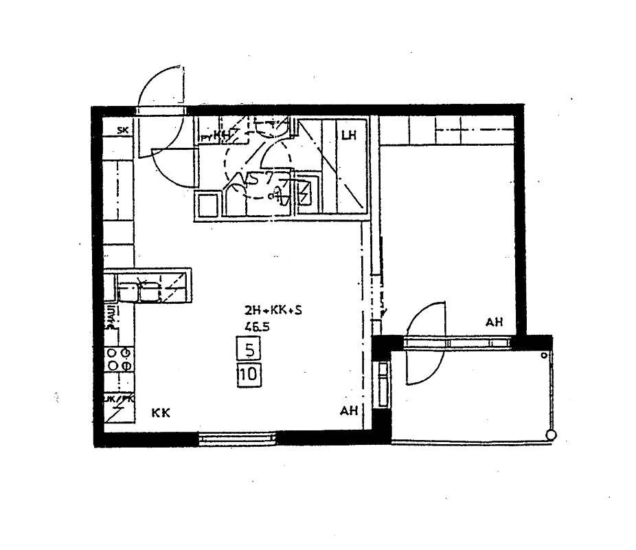
Sokerilinnantie 2 A 5
2h+kk+s
, Kerrostalo
46.5 m2
2/7
Sokerilinnantie 2 A 5
2h+kk+s
, Kerrostalo
46.5 m2
Floor 2/7
Sokerilinnantie 2 A 10
2h+kk+s
, Kerrostalo
46.5 m2
3/7
Sokerilinnantie 2 A 10
2h+kk+s
, Kerrostalo
46.5 m2
Floor 3/7
Sokerilinnantie 2 A 20
2h+kk+s
, Kerrostalo
46.5 m2
5/7
Sokerilinnantie 2 A 20
2h+kk+s
, Kerrostalo
46.5 m2
Floor 5/7
Sokerilinnantie 2 A 15
2h+kk+s
, Kerrostalo
46.5 m2
4/7
Sokerilinnantie 2 A 15
2h+kk+s
, Kerrostalo
46.5 m2
Floor 4/7
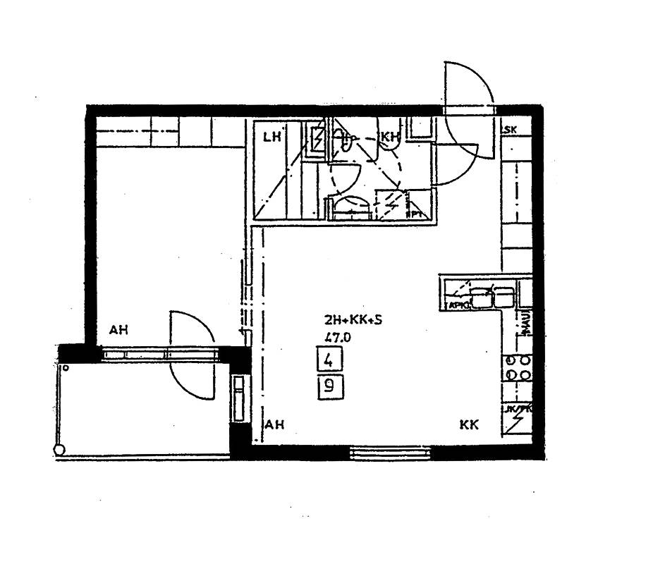
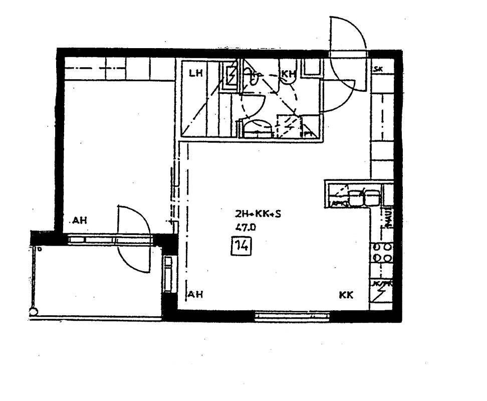
Sokerilinnantie 2 A 14
2h+kk+s
, Kerrostalo
47 m2
4/7
Sokerilinnantie 2 A 14
2h+kk+s
, Kerrostalo
47 m2
Floor 4/7
Sokerilinnantie 2 A 4
2h+kk+s
, Kerrostalo
47 m2
2/7
Sokerilinnantie 2 A 4
2h+kk+s
, Kerrostalo
47 m2
Floor 2/7
Sokerilinnantie 2 A 19
2h+kk+s
, Kerrostalo
47 m2
5/7
Sokerilinnantie 2 A 19
2h+kk+s
, Kerrostalo
47 m2
Floor 5/7
Sokerilinnantie 2 A 9
2h+kk+s
, Kerrostalo
47 m2
3/7
Sokerilinnantie 2 A 9
2h+kk+s
, Kerrostalo
47 m2
Floor 3/7
Sokerilinnantie 2 B 28
2h+kk+s+th
, Kerrostalo
65.5 m2
1/7
Sokerilinnantie 2 B 28
2h+kk+s+th
, Kerrostalo
65.5 m2
Floor 1/7
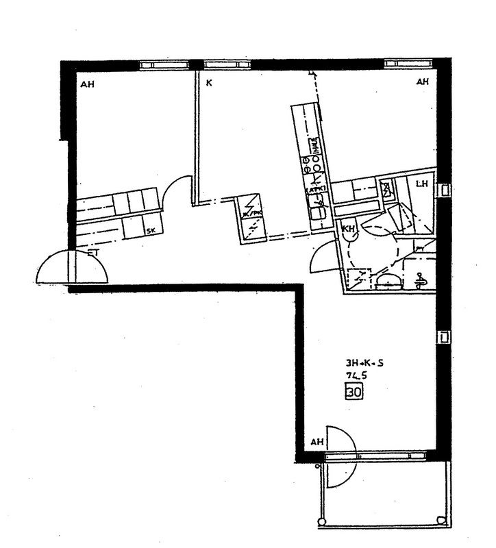
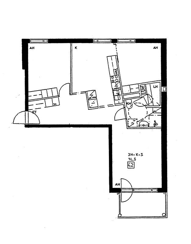
Sokerilinnantie 2 B 42
3h+k+s
, Kerrostalo
74.5 m2
5/7
Sokerilinnantie 2 B 42
3h+k+s
, Kerrostalo
74.5 m2
Floor 5/7
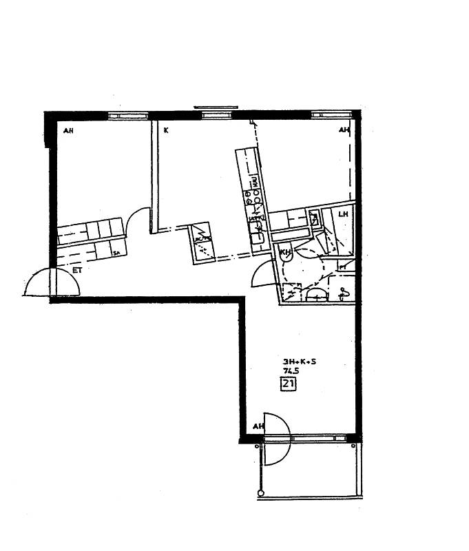
Sokerilinnantie 2 B 33
3h+k+s
, Kerrostalo
74.5 m2
2/7
Sokerilinnantie 2 B 33
3h+k+s
, Kerrostalo
74.5 m2
Floor 2/7
Sokerilinnantie 2 A 6
3h+k+s
, Kerrostalo
74.5 m2
2/7
Sokerilinnantie 2 A 6
3h+k+s
, Kerrostalo
74.5 m2
Floor 2/7
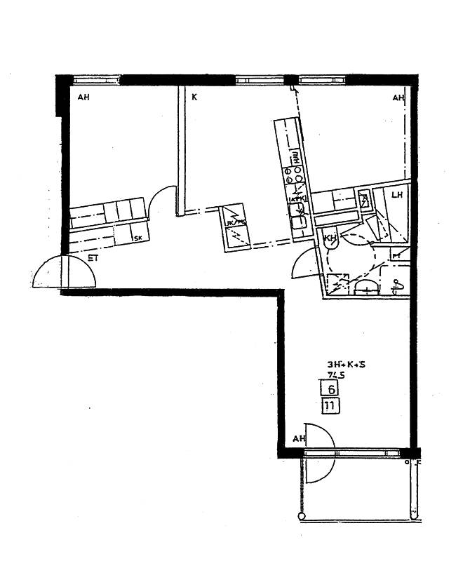
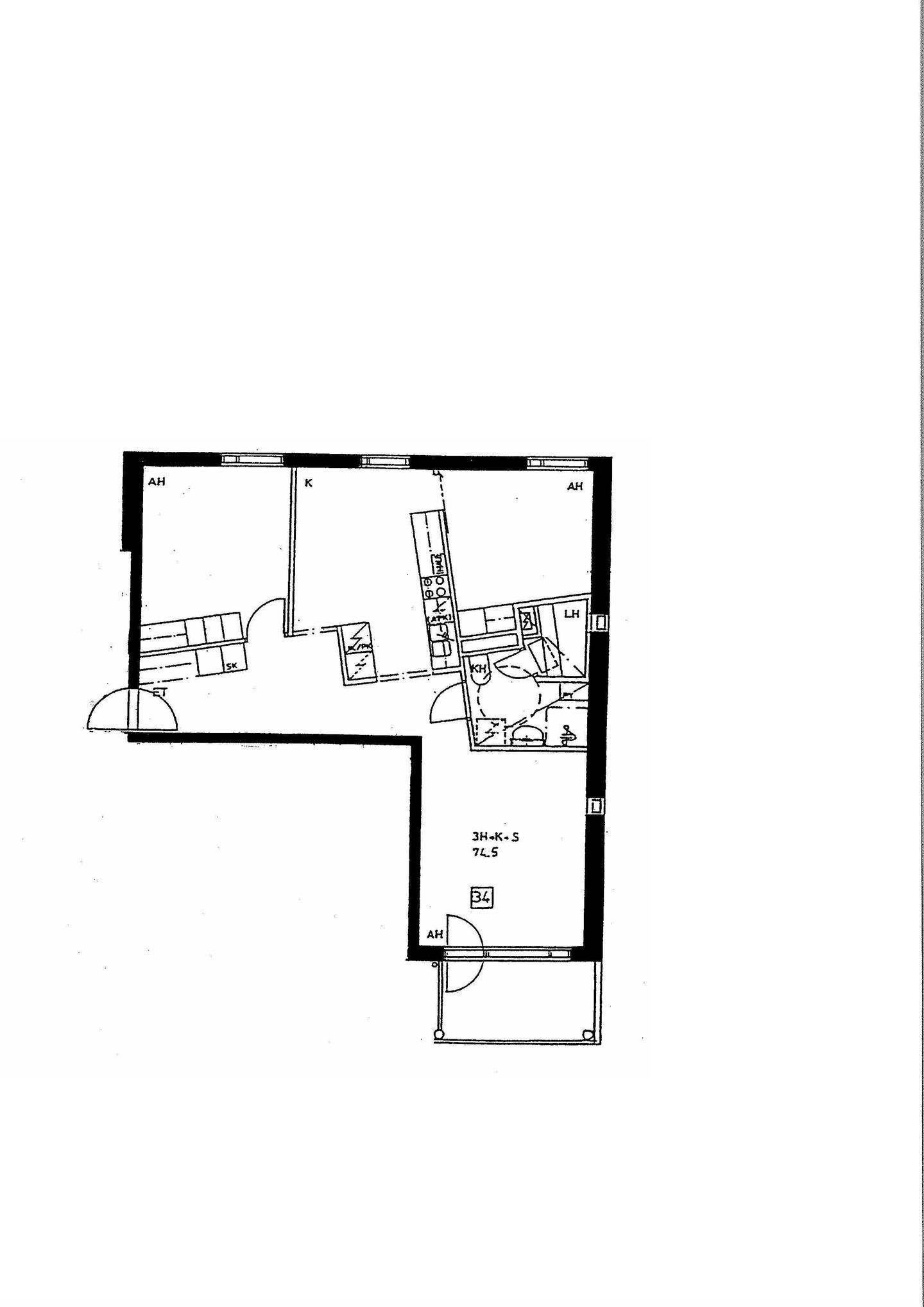
Sokerilinnantie 2 B 34
3h+k+s
, Kerrostalo
74.5 m2
3/7
Sokerilinnantie 2 B 34
3h+k+s
, Kerrostalo
74.5 m2
Floor 3/7
Sokerilinnantie 2 B 37
3h+k+s
, Kerrostalo
74.5 m2
3/7
Sokerilinnantie 2 B 37
3h+k+s
, Kerrostalo
74.5 m2
Floor 3/7
Sokerilinnantie 2 B 45
3h+k+s
, Kerrostalo
74.5 m2
5/7
Sokerilinnantie 2 B 45
3h+k+s
, Kerrostalo
74.5 m2
Floor 5/7
Sokerilinnantie 2 A 16
3h+k+s
, Kerrostalo
74.5 m2
4/7
Sokerilinnantie 2 A 16
3h+k+s
, Kerrostalo
74.5 m2
Floor 4/7
Sokerilinnantie 2 A 11
3h+k+s
, Kerrostalo
74.5 m2
3/7
Sokerilinnantie 2 A 11
3h+k+s
, Kerrostalo
74.5 m2
Floor 3/7
Sokerilinnantie 2 A 21
3h+k+s
, Kerrostalo
74.5 m2
5/7
Sokerilinnantie 2 A 21
3h+k+s
, Kerrostalo
74.5 m2
Floor 5/7
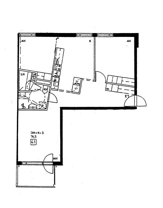
Sokerilinnantie 2 B 41
3h+k+s
, Kerrostalo
74.5 m2
4/7
Sokerilinnantie 2 B 41
3h+k+s
, Kerrostalo
74.5 m2
Floor 4/7
Sokerilinnantie 2 B 30
3h+k+s
, Kerrostalo
74.5 m2
2/7
Sokerilinnantie 2 B 30
3h+k+s
, Kerrostalo
74.5 m2
Floor 2/7
Sokerilinnantie 2 B 38
3h+k+s
, Kerrostalo
74.5 m2
4/7
Sokerilinnantie 2 B 38
3h+k+s
, Kerrostalo
74.5 m2
Floor 4/7
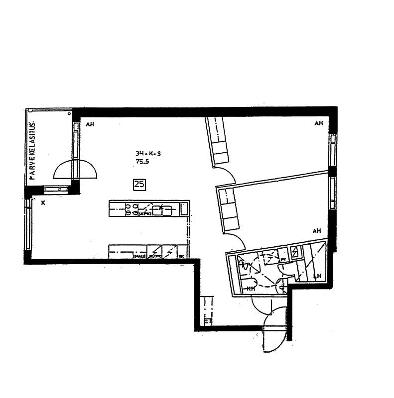
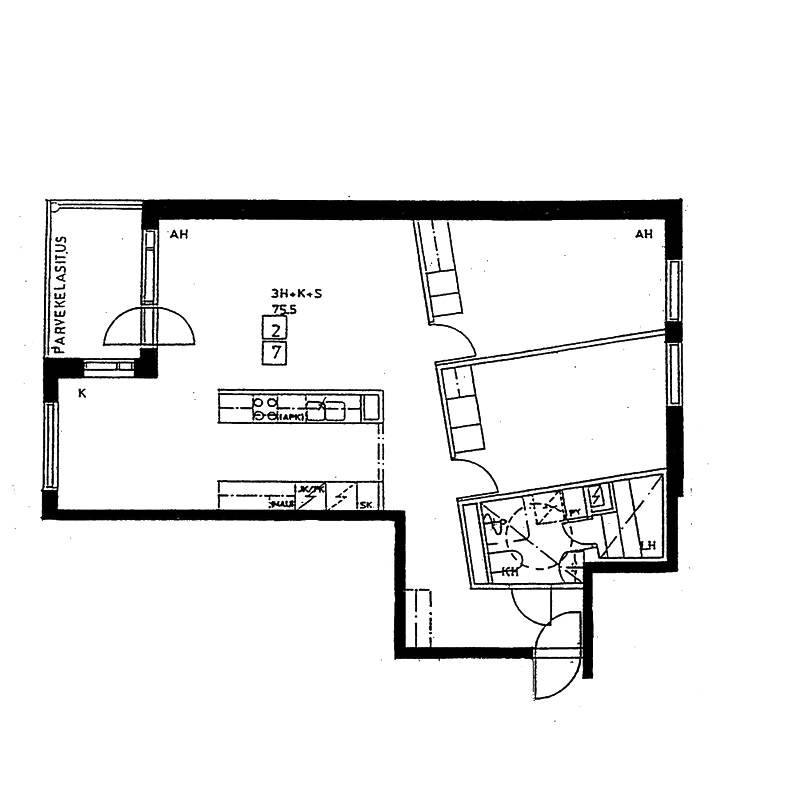
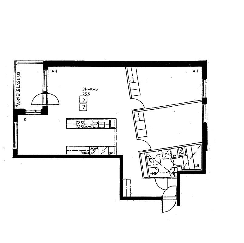
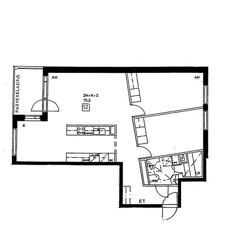
Sokerilinnantie 2 A 25
3h+k+s
, Kerrostalo
75.5 m2
7/7
Sokerilinnantie 2 A 25
3h+k+s
, Kerrostalo
75.5 m2
Floor 7/7
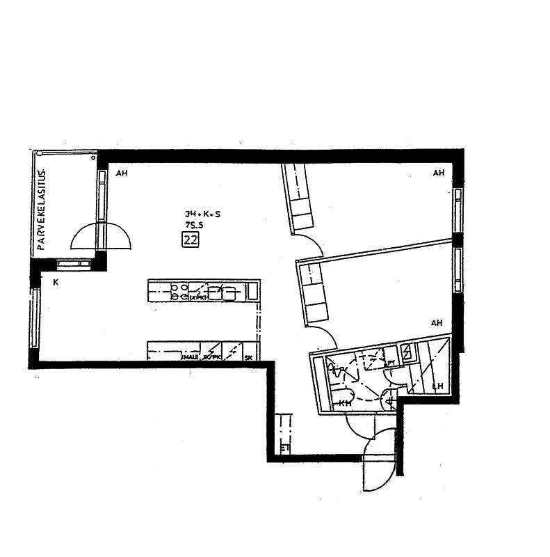
Sokerilinnantie 2 A 22
3h+k+s
, Kerrostalo
75.5 m2
6/7
Sokerilinnantie 2 A 22
3h+k+s
, Kerrostalo
75.5 m2
Floor 6/7
Sokerilinnantie 2 A 17
3h+k+s
, Kerrostalo
75.5 m2
5/7
Sokerilinnantie 2 A 17
3h+k+s
, Kerrostalo
75.5 m2
Floor 5/7
Sokerilinnantie 2 A 7
3h+k+s
, Kerrostalo
75.5 m2
3/7
Sokerilinnantie 2 A 7
3h+k+s
, Kerrostalo
75.5 m2
Floor 3/7
Sokerilinnantie 2 A 12
3h+k+s
, Kerrostalo
75.5 m2
4/7
Sokerilinnantie 2 A 12
3h+k+s
, Kerrostalo
75.5 m2
Floor 4/7
Sokerilinnantie 2 A 2
3h+k+s
, Kerrostalo
75.5 m2
2/7
Sokerilinnantie 2 A 2
3h+k+s
, Kerrostalo
75.5 m2
Floor 2/7
Sokerilinnantie 2 A 1
3h+kk+s+th
, Kerrostalo
77.5 m2
1/7
Sokerilinnantie 2 A 1
3h+kk+s+th
, Kerrostalo
77.5 m2
Floor 1/7
Sokerilinnantie 2 A 24
4h+k+s
, Kerrostalo
91.5 m2
6/7
Sokerilinnantie 2 A 24
4h+k+s
, Kerrostalo
91.5 m2
Floor 6/7
Sokerilinnantie 2 A 27
4h+k+s
, Kerrostalo
93.5 m2
Floor 7/7
