Property Introduction
Rivitalokohde Mankkaan pientaloalueella. Kaukolämmitys. Kohde on peruskorjattu vuonna 2021.
Luonnonläheinen sijainti puistojen ja ulkoilureittien lähellä. Lyhyt kävelymatka ruokakauppaan. Alueella on myös päiväkoti ja koulu. Hyvät yhteydet kehä kakkosta ja Turunväylää pitkin.
Why Asuntosäätiö?
We believe that a happy home and quality living are for everyone. We do not seek immediate profit or financial benefit. We use the assets gained from our operations to develop our real estate. Over 33,000 Finns have already chosen a home offered by Asuntosäätiö. Pets are also welcome in all our homes.
Basic house info
- Form of housing Right-of-occupancy
- Average right-of-occupancy payment / jm² 329,38€
- Elevators No
- House sauna No
- Apartment count 3
- Building count 2
- Residence charge / month / jm² 16,88€
- Construction year 1994
- Renovated 2021
- Energy class D
- Heating Kauko
- Parking spaces 6
- Broadband DNA Welho
- TV-antenna system Kaapeli
- CableTV DNA
- Roof material Tiili
- House frame material Puu
- Pets Allowed
Apartments and floor plans: Nygrannaksentie 2, Rivitalo, Piharakennus
Add all the apartment types you want to your application. Your opportunity to get an apartment increases when we are able to offer you all of the apartment types that may be available later on in this property. You are automatically in queue for these apartment types.
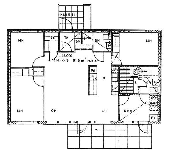
Nygrannaksentie 2 A 1
4h+k+s
, Rivitalo
91.5 m2
1/1
Nygrannaksentie 2 A 1
4h+k+s
, Rivitalo
91.5 m2
Floor 1/1
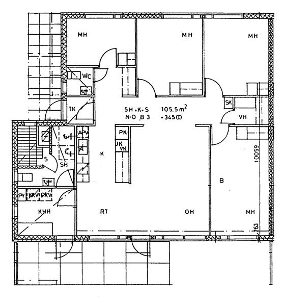
Nygrannaksentie 2 B 3
5h+k+s
, Rivitalo
105.5 m2
1/1
Nygrannaksentie 2 B 3
5h+k+s
, Rivitalo
105.5 m2
Floor 1/1
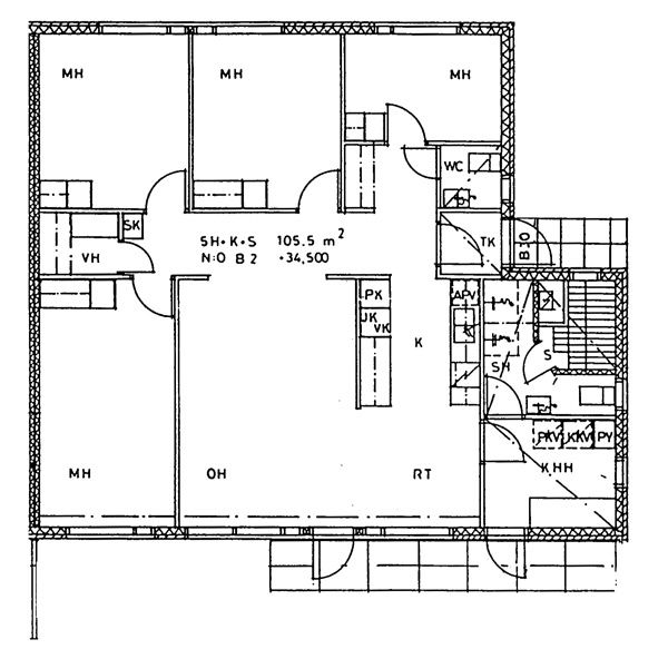
Nygrannaksentie 2 B 2
5h+k+s
, Rivitalo
105.5 m2
1/1
Nygrannaksentie 2 B 2
5h+k+s
, Rivitalo
105.5 m2
Floor 1/1