Property Introduction
Kaukolämmöllä lämpenevä kerrostalokohde rauhallisella sijainnilla Suurpellossa. Talossa on viihtyisiä asuntoja yksiöistä kaksioihin ja kolmioihin sekä viiden huoneen asuntoja. Kohteessa on talosauna.
Lähellä toimii sekä kansainvälinen että suomalainen koulu. Arjen tärkeimmät palvelut löytyvät kauppakeskus Suuriksesta. Keskuspuiston ulkoilumahdollisuuksien lisäksi alueelta löytyvät muun muassa Angry Birds -leikkipuisto sekä Rakkauden puutarha, jossa mm. kirsikkapuut kukkivat keväisin. Suurpellossa on oma kaupunkipyöräasema ja sieltä kulkee säännöllisesti busseja metrolle.
Why Asuntosäätiö?
We believe that a happy home and quality living are for everyone. We do not seek immediate profit or financial benefit. We use the assets gained from our operations to develop our real estate. Over 33,000 Finns have already chosen a home offered by Asuntosäätiö. Pets are also welcome in all our homes.
Basic house info
- Form of housing Right-of-occupancy
- Average right-of-occupancy payment / jm² 752,3€
- Elevators 2
- House sauna 1
- Drying room Yes
- Apartment count 33
- Building count 2
- Residence charge / month / jm² 14,39€
- Construction year 2013
- Staircases 2
- Energy class E
- Heating Kauko
- Parking spaces 26
- Clubroom 1
- Broadband DNA Welho
- TV-antenna system Kaapeli
- CableTV DNA
- Roof material Huopa
- House frame material Betoni
- Pets Allowed
Apartments and floor plans: Piilipuuntie 3 A-B, Kerrostalo
Add all the apartment types you want to your application. Your opportunity to get an apartment increases when we are able to offer you all of the apartment types that may be available later on in this property. You are automatically in queue for these apartment types.
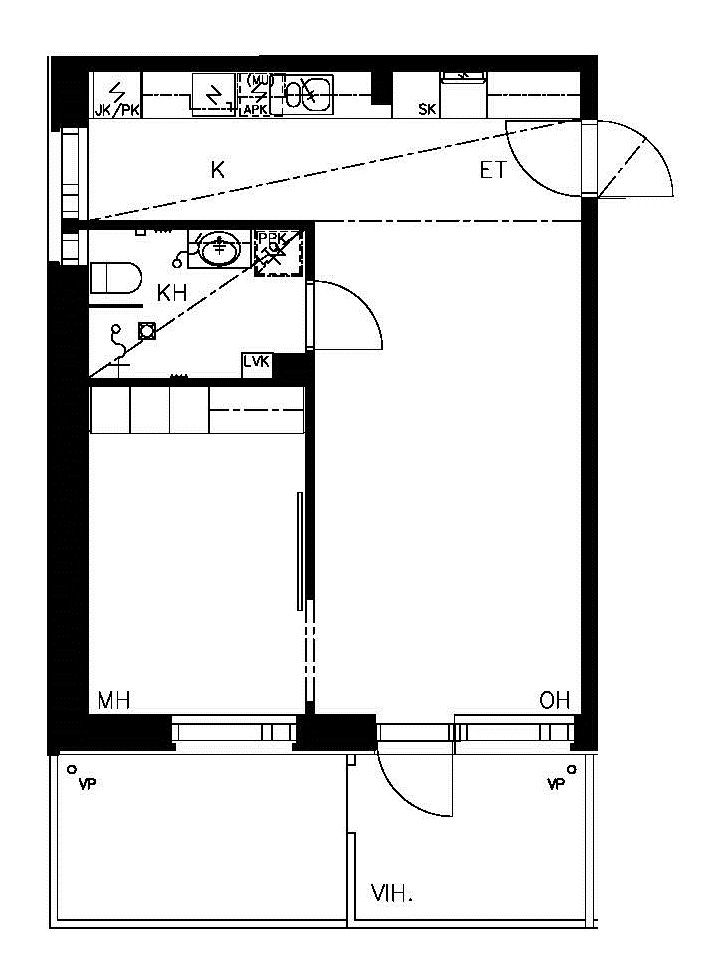
Piilipuuntie 3 B 33
1h+kk
, Kerrostalo
34.5 m2
5/5
Piilipuuntie 3 B 33
1h+kk
, Kerrostalo
34.5 m2
Floor 5/5
Piilipuuntie 3 B 23
1h+kk
, Kerrostalo
34.5 m2
3/5
Piilipuuntie 3 B 23
1h+kk
, Kerrostalo
34.5 m2
Floor 3/5
Piilipuuntie 3 B 18
1h+kk
, Kerrostalo
34.5 m2
2/5
Piilipuuntie 3 B 18
1h+kk
, Kerrostalo
34.5 m2
Floor 2/5
Piilipuuntie 3 B 28
1h+kk
, Kerrostalo
34.5 m2
4/5
Piilipuuntie 3 B 28
1h+kk
, Kerrostalo
34.5 m2
Floor 4/5
Piilipuuntie 3 B 13
1h+kk
, Kerrostalo
37 m2
1/5
Piilipuuntie 3 B 13
1h+kk
, Kerrostalo
37 m2
Floor 1/5
Piilipuuntie 3 A 6
2h+k
, Kerrostalo
51 m2
3/4
Piilipuuntie 3 A 6
2h+k
, Kerrostalo
51 m2
Floor 3/4
Piilipuuntie 3 A 2
2h+k
, Kerrostalo
51 m2
2/4
Piilipuuntie 3 A 2
2h+k
, Kerrostalo
51 m2
Floor 2/4
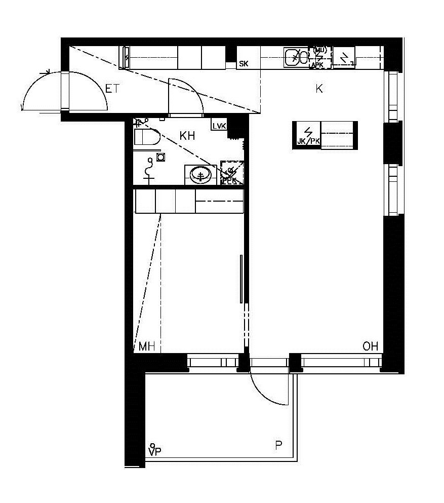
Piilipuuntie 3 B 15
2h+k
, Kerrostalo
51 m2
2/5
Piilipuuntie 3 B 15
2h+k
, Kerrostalo
51 m2
Floor 2/5
Piilipuuntie 3 B 17
2h+k
, Kerrostalo
51 m2
2/5
Piilipuuntie 3 B 17
2h+k
, Kerrostalo
51 m2
Floor 2/5
Piilipuuntie 3 B 27
2h+k
, Kerrostalo
51 m2
4/5
Piilipuuntie 3 B 27
2h+k
, Kerrostalo
51 m2
Floor 4/5
Piilipuuntie 3 B 22
2h+k
, Kerrostalo
51 m2
3/5
Piilipuuntie 3 B 22
2h+k
, Kerrostalo
51 m2
Floor 3/5
Piilipuuntie 3 B 32
2h+k
, Kerrostalo
51 m2
5/5
Piilipuuntie 3 B 32
2h+k
, Kerrostalo
51 m2
Floor 5/5
Piilipuuntie 3 B 30
2h+k
, Kerrostalo
51 m2
5/5
Piilipuuntie 3 B 30
2h+k
, Kerrostalo
51 m2
Floor 5/5
Piilipuuntie 3 B 25
2h+k
, Kerrostalo
51 m2
4/5
Piilipuuntie 3 B 25
2h+k
, Kerrostalo
51 m2
Floor 4/5
Piilipuuntie 3 B 20
2h+k
, Kerrostalo
51 m2
3/5
Piilipuuntie 3 B 20
2h+k
, Kerrostalo
51 m2
Floor 3/5
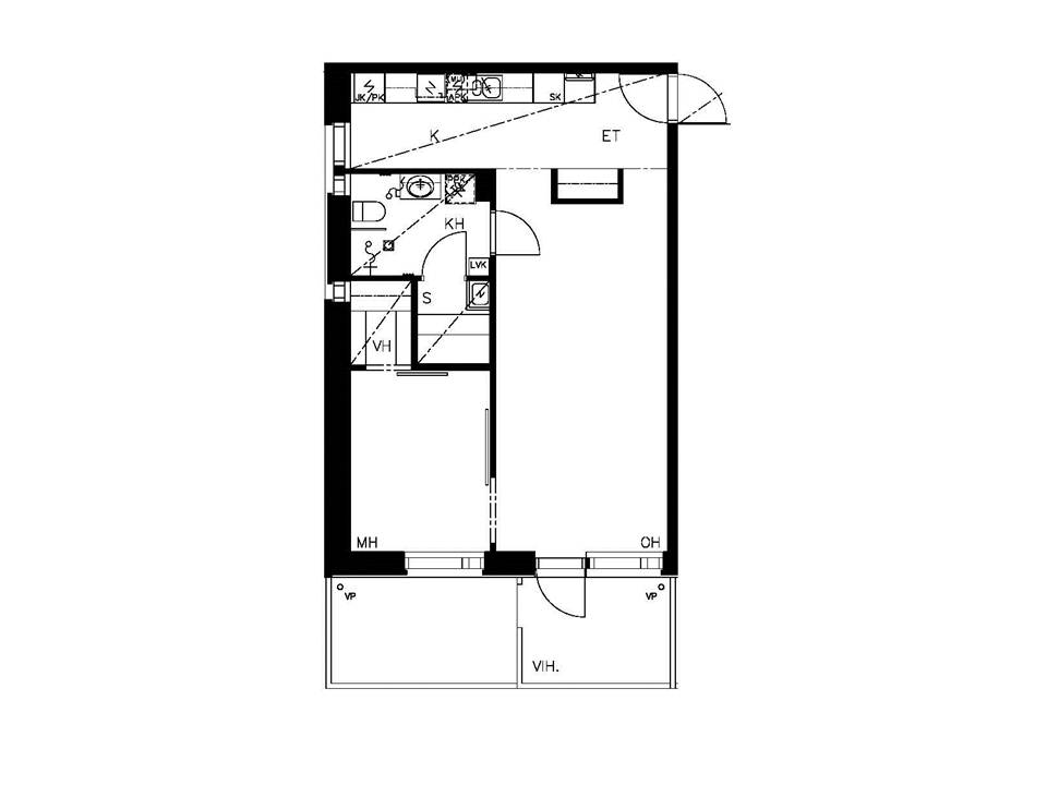
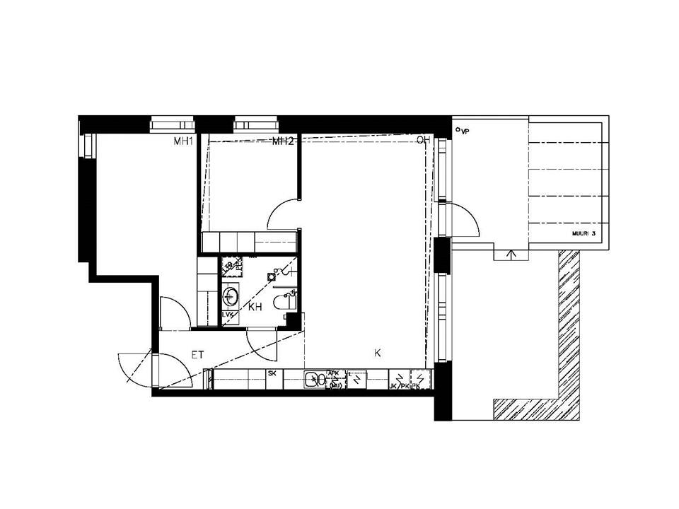
Piilipuuntie 3 A 11
2h+k+s
, Kerrostalo
59.5 m2
4/4
Piilipuuntie 3 A 11
2h+k+s
, Kerrostalo
59.5 m2
Floor 4/4
Piilipuuntie 3 B 31
2h+kk
, Kerrostalo
44.5 m2
5/5
Piilipuuntie 3 B 31
2h+kk
, Kerrostalo
44.5 m2
Floor 5/5
Piilipuuntie 3 B 21
2h+kk
, Kerrostalo
44.5 m2
3/5
Piilipuuntie 3 B 21
2h+kk
, Kerrostalo
44.5 m2
Floor 3/5
Piilipuuntie 3 B 16
2h+kk
, Kerrostalo
44.5 m2
2/5
Piilipuuntie 3 B 16
2h+kk
, Kerrostalo
44.5 m2
Floor 2/5
Piilipuuntie 3 B 26
2h+kk
, Kerrostalo
44.5 m2
4/5
Piilipuuntie 3 B 26
2h+kk
, Kerrostalo
44.5 m2
Floor 4/5
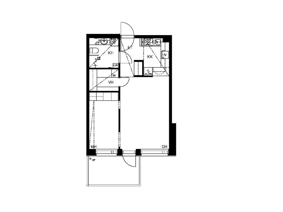
Piilipuuntie 3 A 3
2h+kk
, Kerrostalo
48 m2
2/4
Piilipuuntie 3 A 3
2h+kk
, Kerrostalo
48 m2
Floor 2/4
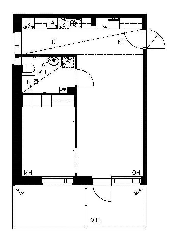
Piilipuuntie 3 A 1
3h+k
, Kerrostalo
65.5 m2
2/4
Piilipuuntie 3 A 1
3h+k
, Kerrostalo
65.5 m2
Floor 2/4
Piilipuuntie 3 A 5
3h+k
, Kerrostalo
65.5 m2
3/4
Piilipuuntie 3 A 5
3h+k
, Kerrostalo
65.5 m2
Floor 3/4
Piilipuuntie 3 B 14
3h+k
, Kerrostalo
65.5 m2
2/5
Piilipuuntie 3 B 14
3h+k
, Kerrostalo
65.5 m2
Floor 2/5
Piilipuuntie 3 B 12
3h+k
, Kerrostalo
65.5 m2
1/5
Piilipuuntie 3 B 12
3h+k
, Kerrostalo
65.5 m2
Floor 1/5
Piilipuuntie 3 B 29
3h+k
, Kerrostalo
65.5 m2
5/5
Piilipuuntie 3 B 29
3h+k
, Kerrostalo
65.5 m2
Floor 5/5
Piilipuuntie 3 B 19
3h+k
, Kerrostalo
65.5 m2
3/5
Piilipuuntie 3 B 19
3h+k
, Kerrostalo
65.5 m2
Floor 3/5
Piilipuuntie 3 B 24
3h+k
, Kerrostalo
65.5 m2
4/5
Piilipuuntie 3 B 24
3h+k
, Kerrostalo
65.5 m2
Floor 4/5
Piilipuuntie 3 A 8
3h+k+s
, Kerrostalo
87 m2
3/4
Piilipuuntie 3 A 8
3h+k+s
, Kerrostalo
87 m2
Floor 3/4
Piilipuuntie 3 A 4
3h+k+s
, Kerrostalo
87 m2
2/4
Piilipuuntie 3 A 4
3h+k+s
, Kerrostalo
87 m2
Floor 2/4
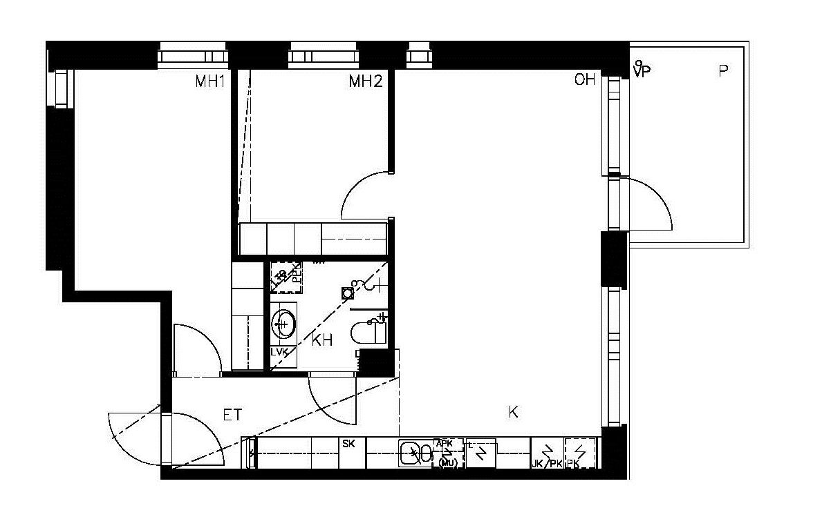
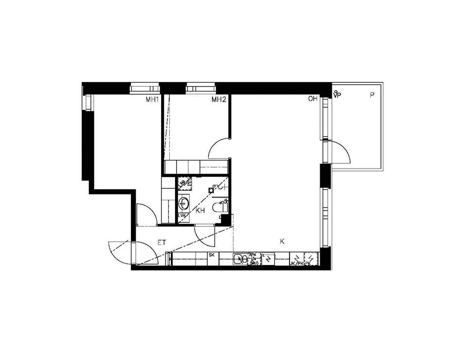
Piilipuuntie 3 A 10
5h+k+s
, Kerrostalo
100.5 m2
4/4
Piilipuuntie 3 A 10
5h+k+s
, Kerrostalo
100.5 m2
Floor 4/4
