Property Introduction
Kodikas kerrostalokohde Helsingin Kivikossa. Kaikissa yksiötä suuremmissa asunnoissa on oma sauna. Osa parvekkeista on lasitettu. Pihalla lasten leikkipaikka kauniiden istutusten ympäröimänä. Rauhallinen sijainti ulkoilualueen vieressä. Autopaikat (avo- ja katospaikat) sijaitsevat Kivikon pysäköinnin tiloissa, varaus Kotikulman tai palvelukeskuksen kautta.
Alueella on päiväkodit ja koulut. Harrastamiseen on koirapuistoja ja Kivikon liikuntapuisto, jossa on mm. frisbeegolfrata, BMX-pyöräilyrata ja jalkapallokenttä sekä Kivikon hallilla kuntosali. Lyhyt kävelymatka metrolle ja ruokakauppoihin. Hyvät kulkuyhteydet myös omalla autolla.
Why Asuntosäätiö?
We believe that a happy home and quality living are for everyone. We do not seek immediate profit or financial benefit. We use the assets gained from our operations to develop our real estate. Over 33,000 Finns have already chosen a home offered by Asuntosäätiö. Pets are also welcome in all our homes.
Basic house info
- Form of housing Right-of-occupancy
- Average right-of-occupancy payment / jm² 336,95€
- Elevators 3
- House sauna No
- Laundry room Yes
- Drying room Yes
- Apartment count 54
- Building count 3
- Residence charge / month / jm² 13,93€
- Construction year 1996
- Staircases 3
- Energy class E
- Heating Kauko
- Parking spaces 43
- Clubroom 2
- Broadband DNA Welho
- TV-antenna system Kaapeli
- CableTV DNA
- Roof material Pelti
- House frame material Betoni
- Pets Allowed
Apartments and floor plans: Kivikonkaari 7, Kerrostalo
Add all the apartment types you want to your application. Your opportunity to get an apartment increases when we are able to offer you all of the apartment types that may be available later on in this property. You are automatically in queue for these apartment types.
Kivikonkaari 7 B 24
1h+kk
, Kerrostalo
27 m2
3/5
Kivikonkaari 7 B 24
1h+kk
, Kerrostalo
27 m2
Floor 3/5
Kivikonkaari 7 B 29
1h+kk
, Kerrostalo
27 m2
4/5
Kivikonkaari 7 B 29
1h+kk
, Kerrostalo
27 m2
Floor 4/5
Kivikonkaari 7 B 19
1h+kk
, Kerrostalo
27 m2
2/5
Kivikonkaari 7 B 19
1h+kk
, Kerrostalo
27 m2
Floor 2/5
Kivikonkaari 7 C 50
1h+kk
, Kerrostalo
27 m2
4/5
Kivikonkaari 7 C 50
1h+kk
, Kerrostalo
27 m2
Floor 4/5
Kivikonkaari 7 C 34
1h+kk
, Kerrostalo
27 m2
1/5
Kivikonkaari 7 C 34
1h+kk
, Kerrostalo
27 m2
Floor 1/5
Kivikonkaari 7 C 45
1h+kk
, Kerrostalo
27 m2
3/5
Kivikonkaari 7 C 45
1h+kk
, Kerrostalo
27 m2
Floor 3/5
Kivikonkaari 7 C 40
1h+kk
, Kerrostalo
27 m2
2/5
Kivikonkaari 7 C 40
1h+kk
, Kerrostalo
27 m2
Floor 2/5
Kivikonkaari 7 B 18
2h+k+s
, Kerrostalo
55.5 m2
2/5
Kivikonkaari 7 B 18
2h+k+s
, Kerrostalo
55.5 m2
Floor 2/5
Kivikonkaari 7 B 28
2h+k+s
, Kerrostalo
55.5 m2
4/5
Kivikonkaari 7 B 28
2h+k+s
, Kerrostalo
55.5 m2
Floor 4/5
Kivikonkaari 7 B 23
2h+k+s
, Kerrostalo
55.5 m2
3/5
Kivikonkaari 7 B 23
2h+k+s
, Kerrostalo
55.5 m2
Floor 3/5
Kivikonkaari 7 C 44
2h+k+s
, Kerrostalo
55.5 m2
3/5
Kivikonkaari 7 C 44
2h+k+s
, Kerrostalo
55.5 m2
Floor 3/5
Kivikonkaari 7 C 39
2h+k+s
, Kerrostalo
55.5 m2
2/5
Kivikonkaari 7 C 39
2h+k+s
, Kerrostalo
55.5 m2
Floor 2/5
Kivikonkaari 7 C 49
2h+k+s
, Kerrostalo
55.5 m2
4/5
Kivikonkaari 7 C 49
2h+k+s
, Kerrostalo
55.5 m2
Floor 4/5
Kivikonkaari 7 B 31
2h+k+s
, Kerrostalo
57 m2
5/5
Kivikonkaari 7 B 31
2h+k+s
, Kerrostalo
57 m2
Floor 5/5
Kivikonkaari 7 B 27
2h+k+s
, Kerrostalo
57 m2
4/5
Kivikonkaari 7 B 27
2h+k+s
, Kerrostalo
57 m2
Floor 4/5
Kivikonkaari 7 B 17
2h+k+s
, Kerrostalo
57 m2
2/5
Kivikonkaari 7 B 17
2h+k+s
, Kerrostalo
57 m2
Floor 2/5
Kivikonkaari 7 B 22
2h+k+s
, Kerrostalo
57 m2
3/5
Kivikonkaari 7 B 22
2h+k+s
, Kerrostalo
57 m2
Floor 3/5
Kivikonkaari 7 C 38
2h+k+s
, Kerrostalo
57 m2
2/5
Kivikonkaari 7 C 38
2h+k+s
, Kerrostalo
57 m2
Floor 2/5
Kivikonkaari 7 C 53
2h+k+s
, Kerrostalo
57 m2
5/5
Kivikonkaari 7 C 53
2h+k+s
, Kerrostalo
57 m2
Floor 5/5
Kivikonkaari 7 C 43
2h+k+s
, Kerrostalo
57 m2
3/5
Kivikonkaari 7 C 43
2h+k+s
, Kerrostalo
57 m2
Floor 3/5
Kivikonkaari 7 C 48
2h+k+s
, Kerrostalo
57 m2
4/5
Kivikonkaari 7 C 48
2h+k+s
, Kerrostalo
57 m2
Floor 4/5
Kivikonkaari 7 A 12
2h+k+s
, Kerrostalo
59 m2
4/5
Kivikonkaari 7 A 12
2h+k+s
, Kerrostalo
59 m2
Floor 4/5
Kivikonkaari 7 A 8
2h+k+s
, Kerrostalo
59 m2
3/5
Kivikonkaari 7 A 8
2h+k+s
, Kerrostalo
59 m2
Floor 3/5
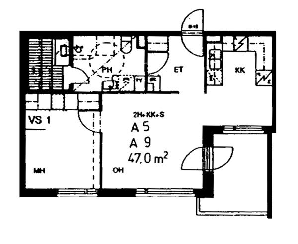
Kivikonkaari 7 A 6
2h+kk+s
, Kerrostalo
47 m2
2/5
Kivikonkaari 7 A 6
2h+kk+s
, Kerrostalo
47 m2
Floor 2/5
Kivikonkaari 7 A 2
2h+kk+s
, Kerrostalo
47 m2
1/5
Kivikonkaari 7 A 2
2h+kk+s
, Kerrostalo
47 m2
Floor 1/5
Kivikonkaari 7 A 1
2h+kk+s
, Kerrostalo
47 m2
1/5
Kivikonkaari 7 A 1
2h+kk+s
, Kerrostalo
47 m2
Floor 1/5
Kivikonkaari 7 A 9
2h+kk+s
, Kerrostalo
47 m2
3/5
Kivikonkaari 7 A 9
2h+kk+s
, Kerrostalo
47 m2
Floor 3/5
Kivikonkaari 7 A 5
2h+kk+s
, Kerrostalo
47 m2
2/5
Kivikonkaari 7 A 5
2h+kk+s
, Kerrostalo
47 m2
Floor 2/5
Kivikonkaari 7 A 10
2h+kk+s
, Kerrostalo
47 m2
3/5
Kivikonkaari 7 A 10
2h+kk+s
, Kerrostalo
47 m2
Floor 3/5
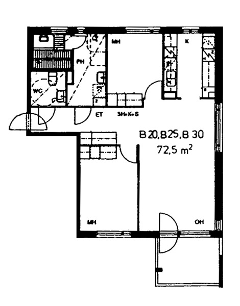
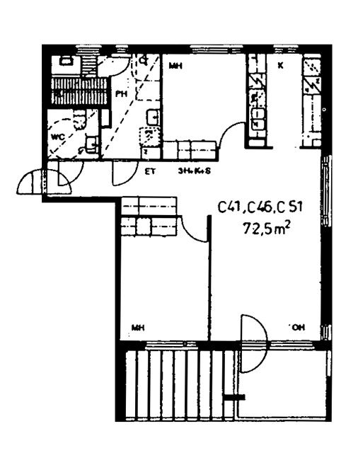
Kivikonkaari 7 B 20
3h+k+s
, Kerrostalo
72.5 m2
2/5
Kivikonkaari 7 B 20
3h+k+s
, Kerrostalo
72.5 m2
Floor 2/5
Kivikonkaari 7 B 30
3h+k+s
, Kerrostalo
72.5 m2
4/5
Kivikonkaari 7 B 30
3h+k+s
, Kerrostalo
72.5 m2
Floor 4/5
Kivikonkaari 7 B 14
3h+k+s
, Kerrostalo
72.5 m2
1/5
Kivikonkaari 7 B 14
3h+k+s
, Kerrostalo
72.5 m2
Floor 1/5
Kivikonkaari 7 B 25
3h+k+s
, Kerrostalo
72.5 m2
3/5
Kivikonkaari 7 B 25
3h+k+s
, Kerrostalo
72.5 m2
Floor 3/5
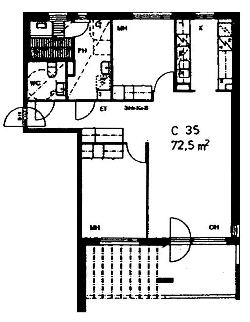
Kivikonkaari 7 C 35
3h+k+s
, Kerrostalo
72.5 m2
1/5
Kivikonkaari 7 C 35
3h+k+s
, Kerrostalo
72.5 m2
Floor 1/5
Kivikonkaari 7 C 54
3h+k+s
, Kerrostalo
72.5 m2
5/5
Kivikonkaari 7 C 54
3h+k+s
, Kerrostalo
72.5 m2
Floor 5/5
Kivikonkaari 7 C 51
3h+k+s
, Kerrostalo
72.5 m2
4/5
Kivikonkaari 7 C 51
3h+k+s
, Kerrostalo
72.5 m2
Floor 4/5
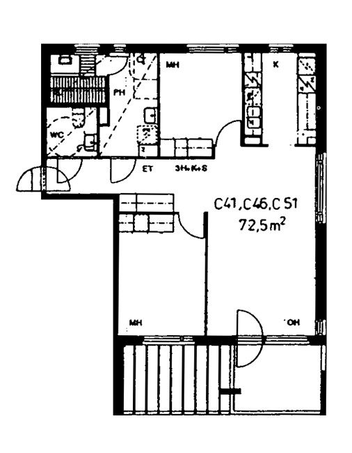
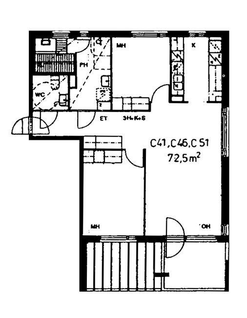
Kivikonkaari 7 C 46
3h+k+s
, Kerrostalo
72.5 m2
3/5
Kivikonkaari 7 C 46
3h+k+s
, Kerrostalo
72.5 m2
Floor 3/5
Kivikonkaari 7 C 41
3h+k+s
, Kerrostalo
72.5 m2
2/5
Kivikonkaari 7 C 41
3h+k+s
, Kerrostalo
72.5 m2
Floor 2/5
Kivikonkaari 7 A 7
3h+k+s
, Kerrostalo
73 m2
2/5
Kivikonkaari 7 A 7
3h+k+s
, Kerrostalo
73 m2
Floor 2/5
Kivikonkaari 7 A 13
3h+k+s
, Kerrostalo
73 m2
4/5
Kivikonkaari 7 A 13
3h+k+s
, Kerrostalo
73 m2
Floor 4/5
Kivikonkaari 7 A 11
3h+k+s
, Kerrostalo
73 m2
3/5
Kivikonkaari 7 A 11
3h+k+s
, Kerrostalo
73 m2
Floor 3/5
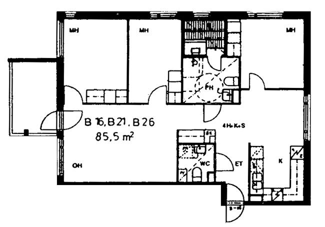
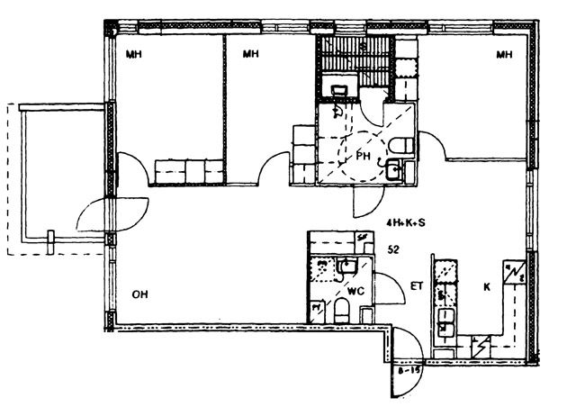
Kivikonkaari 7 B 15
4h+k+s
, Kerrostalo
85.5 m2
1/5
Kivikonkaari 7 B 15
4h+k+s
, Kerrostalo
85.5 m2
Floor 1/5
Kivikonkaari 7 B 16
4h+k+s
, Kerrostalo
85.5 m2
2/5
Kivikonkaari 7 B 16
4h+k+s
, Kerrostalo
85.5 m2
Floor 2/5
Kivikonkaari 7 B 21
4h+k+s
, Kerrostalo
85.5 m2
3/5
Kivikonkaari 7 B 21
4h+k+s
, Kerrostalo
85.5 m2
Floor 3/5
Kivikonkaari 7 B 26
4h+k+s
, Kerrostalo
85.5 m2
4/5
Kivikonkaari 7 B 26
4h+k+s
, Kerrostalo
85.5 m2
Floor 4/5
Kivikonkaari 7 C 42
4h+k+s
, Kerrostalo
85.5 m2
3/5
Kivikonkaari 7 C 42
4h+k+s
, Kerrostalo
85.5 m2
Floor 3/5
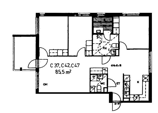
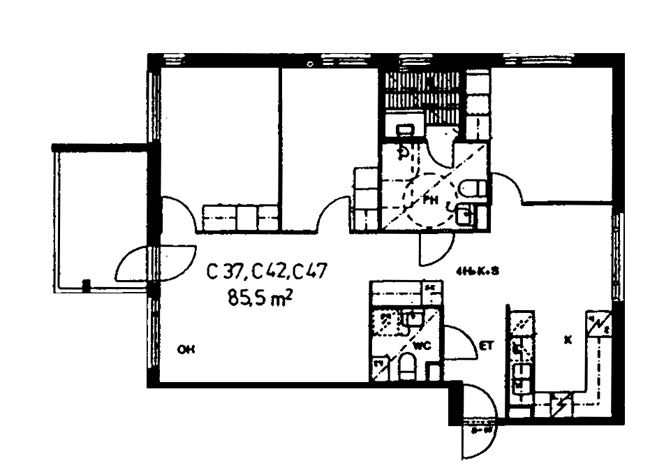
Kivikonkaari 7 C 37
4h+k+s
, Kerrostalo
85.5 m2
2/5
Kivikonkaari 7 C 37
4h+k+s
, Kerrostalo
85.5 m2
Floor 2/5
Kivikonkaari 7 C 52
4h+k+s
, Kerrostalo
85.5 m2
5/5
Kivikonkaari 7 C 52
4h+k+s
, Kerrostalo
85.5 m2
Floor 5/5
Kivikonkaari 7 C 36
4h+k+s
, Kerrostalo
85.5 m2
1/5
Kivikonkaari 7 C 36
4h+k+s
, Kerrostalo
85.5 m2
Floor 1/5
Kivikonkaari 7 C 47
4h+k+s
, Kerrostalo
85.5 m2
4/5
Kivikonkaari 7 C 47
4h+k+s
, Kerrostalo
85.5 m2
Floor 4/5
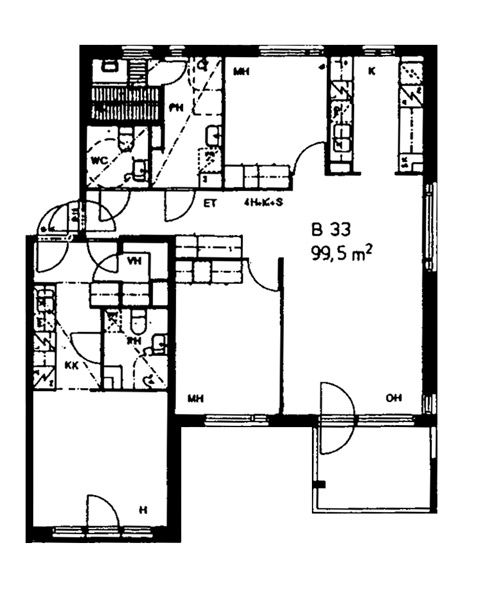
Kivikonkaari 7 B 33
4h+k+s
, Kerrostalo
99.5 m2
5/5
Kivikonkaari 7 B 33
4h+k+s
, Kerrostalo
99.5 m2
Floor 5/5


