Property Introduction
Kolmikerroksinen luhtikäytävätalo Viikin puutarhakaupunginosassa. Vehreä yhteinen piha-alue, jossa asukkaiden omat viljelypalstat. Alimmassa kerroksessa pienet omat pihat. Kaukolämpö.
Alueella päiväkoti, koulut peruskoulusta yliopistoon asti ja urheilupuisto, jossa mm. ilmaisia tenniskenttiä. Ulkoilijalle ihanteelliset reitit Viikin pelloista yliopiston upeaan puupuistoon ja lintutorneista Lammassaareen saakka.
Why Asuntosäätiö?
We believe that a happy home and quality living are for everyone. We do not seek immediate profit or financial benefit. We use the assets gained from our operations to develop our real estate. Over 33,000 Finns have already chosen a home offered by Asuntosäätiö. Pets are also welcome in all our homes.
Basic house info
- Form of housing Right-of-occupancy
- Average right-of-occupancy payment / jm² 412,61€
- Elevators 2
- House sauna 2
- Laundry room Yes
- Drying room Yes
- Apartment count 68
- Building count 6
- Residence charge / month / jm² 16,87€
- Construction year 2001
- Staircases 6
- Energy class D, E
- Heating Kauko
- Parking spaces 61
- Hobby room 2
- Broadband DNA Welho
- TV-antenna system Kaapeli
- CableTV DNA
- Roof material Pelti
- Pets Allowed
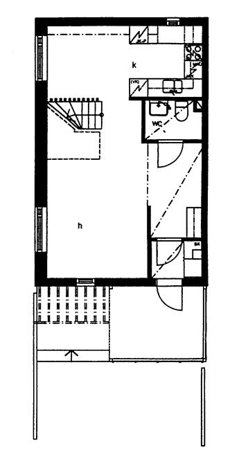
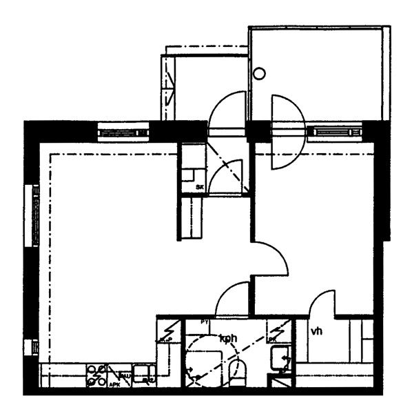
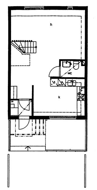
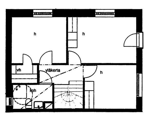
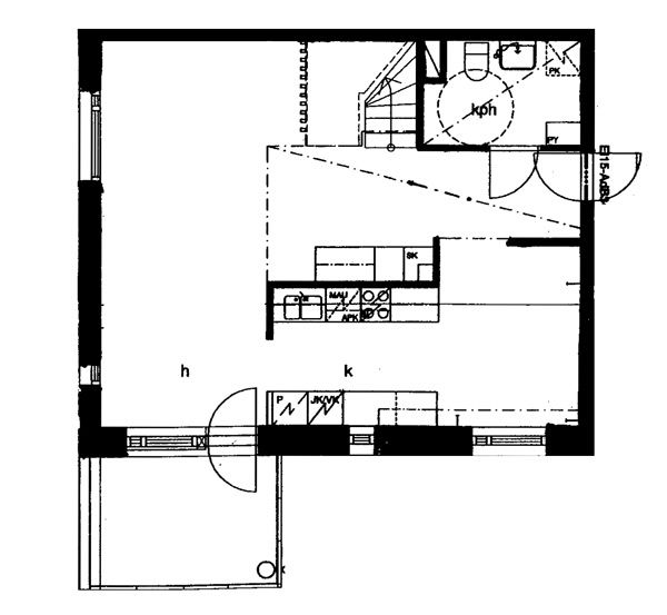
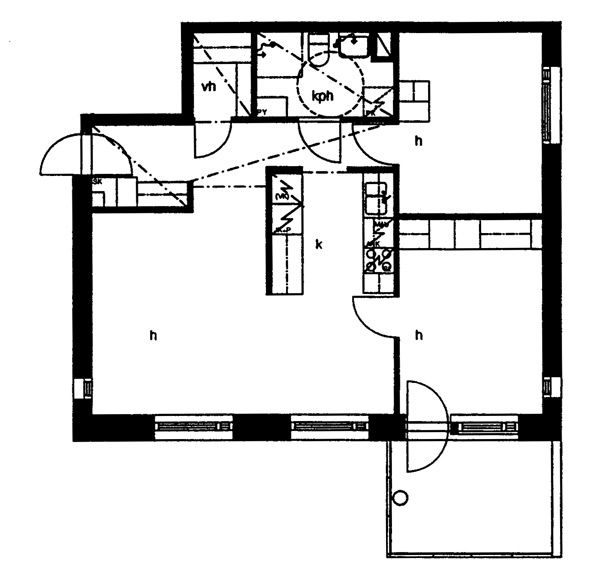
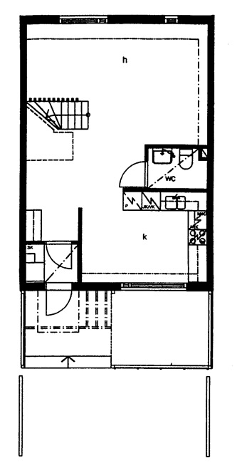
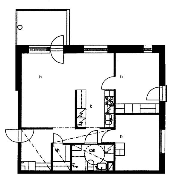
Apartments and floor plans: Norkkokuja 6 ja 7, Rivitalo, Piharakennus, Luhtikäytävätalo
Add all the apartment types you want to your application. Your opportunity to get an apartment increases when we are able to offer you all of the apartment types that may be available later on in this property. You are automatically in queue for these apartment types.
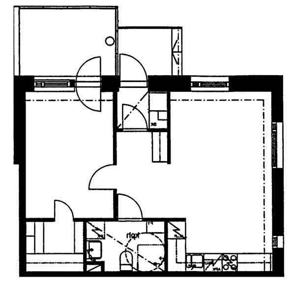
Norkkokuja 6 C 26
2h+k
, Rivitalo
48.5 m2
1/3
Norkkokuja 6 C 26
2h+k
, Rivitalo
48.5 m2
Floor 1/3
Norkkokuja 7 B 17
2h+k
, Rivitalo
48.5 m2
1/3
Norkkokuja 7 B 17
2h+k
, Rivitalo
48.5 m2
Floor 1/3
Norkkokuja 6 B 17
2h+k
, Rivitalo
48.5 m2
1/3
Norkkokuja 6 B 17
2h+k
, Rivitalo
48.5 m2
Floor 1/3
Norkkokuja 7 C 26
2h+k
, Rivitalo
48.5 m2
1/3
Norkkokuja 7 C 26
2h+k
, Rivitalo
48.5 m2
Floor 1/3
Norkkokuja 7 A 5
2h+k
, Luhtikäytävätalo
55 m2
2/3
Norkkokuja 7 A 5
2h+k
, Luhtikäytävätalo
55 m2
Floor 2/3
Norkkokuja 7 A 1
2h+k
, Luhtikäytävätalo
55 m2
1/3
Norkkokuja 7 A 1
2h+k
, Luhtikäytävätalo
55 m2
Floor 1/3
Norkkokuja 7 A 11
2h+k
, Luhtikäytävätalo
55 m2
3/3
Norkkokuja 7 A 11
2h+k
, Luhtikäytävätalo
55 m2
Floor 3/3
Norkkokuja 6 A 6
2h+k
, Luhtikäytävätalo
56.5 m2
2/3
Norkkokuja 6 A 6
2h+k
, Luhtikäytävätalo
56.5 m2
Floor 2/3
Norkkokuja 6 A 14
2h+k
, Luhtikäytävätalo
56.5 m2
3/3
Norkkokuja 6 A 14
2h+k
, Luhtikäytävätalo
56.5 m2
Floor 3/3
Norkkokuja 6 A 13
2h+k
, Luhtikäytävätalo
56.5 m2
3/3
Norkkokuja 6 A 13
2h+k
, Luhtikäytävätalo
56.5 m2
Floor 3/3
Norkkokuja 6 A 12
2h+k
, Luhtikäytävätalo
56.5 m2
3/3
Norkkokuja 6 A 12
2h+k
, Luhtikäytävätalo
56.5 m2
Floor 3/3
Norkkokuja 6 A 7
2h+k
, Luhtikäytävätalo
56.5 m2
2/3
Norkkokuja 6 A 7
2h+k
, Luhtikäytävätalo
56.5 m2
Floor 2/3
Norkkokuja 7 A 8
2h+k
, Luhtikäytävätalo
56.5 m2
2/3
Norkkokuja 7 A 8
2h+k
, Luhtikäytävätalo
56.5 m2
Floor 2/3
Norkkokuja 7 A 14
2h+k
, Luhtikäytävätalo
56.5 m2
3/3
Norkkokuja 7 A 14
2h+k
, Luhtikäytävätalo
56.5 m2
Floor 3/3
Norkkokuja 7 A 13
2h+k
, Luhtikäytävätalo
56.5 m2
3/3
Norkkokuja 7 A 13
2h+k
, Luhtikäytävätalo
56.5 m2
Floor 3/3
Norkkokuja 7 A 7
2h+k
, Luhtikäytävätalo
56.5 m2
2/3
Norkkokuja 7 A 7
2h+k
, Luhtikäytävätalo
56.5 m2
Floor 2/3
Norkkokuja 7 A 12
2h+k
, Luhtikäytävätalo
56.5 m2
3/3
Norkkokuja 7 A 12
2h+k
, Luhtikäytävätalo
56.5 m2
Floor 3/3
Norkkokuja 6 A 4
2h+k
, Luhtikäytävätalo
57 m2
1/3
Norkkokuja 6 A 4
2h+k
, Luhtikäytävätalo
57 m2
Floor 1/3
Norkkokuja 6 A 2
2h+k
, Luhtikäytävätalo
57 m2
1/3
Norkkokuja 6 A 2
2h+k
, Luhtikäytävätalo
57 m2
Floor 1/3
Norkkokuja 6 A 3
2h+k
, Luhtikäytävätalo
57 m2
1/3
Norkkokuja 6 A 3
2h+k
, Luhtikäytävätalo
57 m2
Floor 1/3
Norkkokuja 7 A 2
2h+k
, Luhtikäytävätalo
57 m2
1/3
Norkkokuja 7 A 2
2h+k
, Luhtikäytävätalo
57 m2
Floor 1/3
Norkkokuja 7 A 4
2h+k
, Luhtikäytävätalo
57 m2
1/3
Norkkokuja 7 A 4
2h+k
, Luhtikäytävätalo
57 m2
Floor 1/3
Norkkokuja 7 A 3
2h+k
, Luhtikäytävätalo
57 m2
1/3
Norkkokuja 7 A 3
2h+k
, Luhtikäytävätalo
57 m2
Floor 1/3
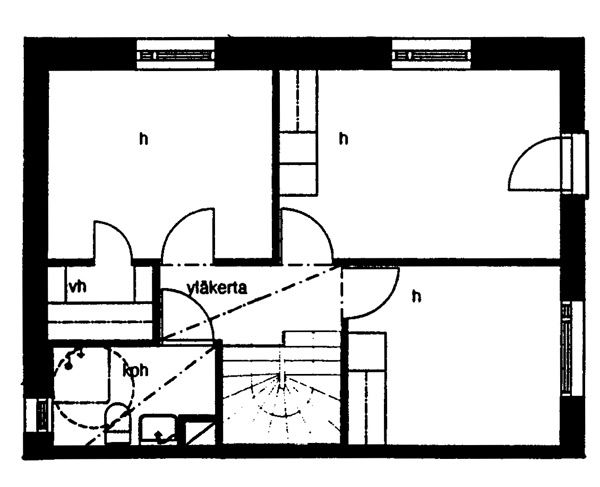
Norkkokuja 6 A 16
3h+k
, Luhtikäytävätalo
63 m2
3/3
Norkkokuja 6 A 16
3h+k
, Luhtikäytävätalo
63 m2
Floor 3/3
Norkkokuja 6 A 10
3h+k
, Luhtikäytävätalo
63 m2
2/3
Norkkokuja 6 A 10
3h+k
, Luhtikäytävätalo
63 m2
Floor 2/3
Norkkokuja 7 B 23
3h+k
, Rivitalo
63 m2
2/3
Norkkokuja 7 B 23
3h+k
, Rivitalo
63 m2
Floor 2/3
Norkkokuja 6 B 23
3h+k
, Rivitalo
63 m2
2/3
Norkkokuja 6 B 23
3h+k
, Rivitalo
63 m2
Floor 2/3
Norkkokuja 7 C 32
3h+k
, Rivitalo
63 m2
2/3
Norkkokuja 7 C 32
3h+k
, Rivitalo
63 m2
Floor 2/3
Norkkokuja 7 A 10
3h+k
, Luhtikäytävätalo
63 m2
2/3
Norkkokuja 7 A 10
3h+k
, Luhtikäytävätalo
63 m2
Floor 2/3
Norkkokuja 7 A 16
3h+k
, Luhtikäytävätalo
63 m2
3/3
Norkkokuja 7 A 16
3h+k
, Luhtikäytävätalo
63 m2
Floor 3/3
Norkkokuja 7 A 15
3h+k
, Luhtikäytävätalo
66.5 m2
3/3
Norkkokuja 7 A 15
3h+k
, Luhtikäytävätalo
66.5 m2
Floor 3/3
Norkkokuja 7 A 9
3h+k
, Luhtikäytävätalo
67 m2
2/3
Norkkokuja 7 A 9
3h+k
, Luhtikäytävätalo
67 m2
Floor 2/3
Norkkokuja 6 C 31
3h+k
, Rivitalo
73.5 m2
1/3
Norkkokuja 6 C 31
3h+k
, Rivitalo
73.5 m2
Floor 1/3
Norkkokuja 7 B 22
3h+k
, Rivitalo
73.5 m2
1/3
Norkkokuja 7 B 22
3h+k
, Rivitalo
73.5 m2
Floor 1/3
Norkkokuja 6 B 22
3h+k
, Rivitalo
73.5 m2
Floor 1/3
Norkkokuja 7 C 31
3h+k
, Rivitalo
73.5 m2
1/3
Norkkokuja 7 C 31
3h+k
, Rivitalo
73.5 m2
Floor 1/3
Norkkokuja 6 A 11
3h+k
, Luhtikäytävätalo
74 m2
3/3
Norkkokuja 6 A 11
3h+k
, Luhtikäytävätalo
74 m2
Floor 3/3
Norkkokuja 6 A 1
3h+k
, Luhtikäytävätalo
74 m2
1/3
Norkkokuja 6 A 1
3h+k
, Luhtikäytävätalo
74 m2
Floor 1/3
Norkkokuja 6 A 5
3h+k
, Luhtikäytävätalo
74 m2
2/3
Norkkokuja 6 A 5
3h+k
, Luhtikäytävätalo
74 m2
Floor 2/3
Norkkokuja 6 C 27
3h+k
, Rivitalo
83 m2
1-2/3
Norkkokuja 6 C 27
3h+k
, Rivitalo
83 m2
Floor 1-2/3
Norkkokuja 7 B 18
3h+k
, Rivitalo
83 m2
1-2/3
Norkkokuja 7 B 18
3h+k
, Rivitalo
83 m2
Floor 1-2/3
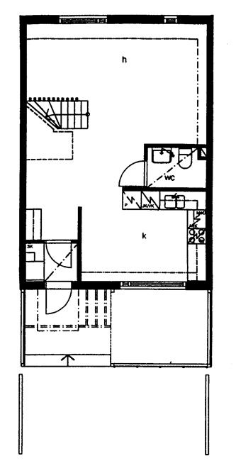
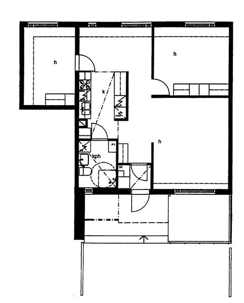
Norkkokuja 6 A 15
4h+k
, Luhtikäytävätalo
87.5 m2
3/3
Norkkokuja 6 A 15
4h+k
, Luhtikäytävätalo
87.5 m2
Floor 3/3
Norkkokuja 6 A 9
4h+k
, Luhtikäytävätalo
87.5 m2
2/3
Norkkokuja 6 A 9
4h+k
, Luhtikäytävätalo
87.5 m2
Floor 2/3
Norkkokuja 6 C 30
4h+k
, Rivitalo
94 m2
1-2/3
Norkkokuja 6 C 30
4h+k
, Rivitalo
94 m2
Floor 1-2/3
Norkkokuja 6 C 28
4h+k
, Rivitalo
94 m2
1-2/3
Norkkokuja 6 C 28
4h+k
, Rivitalo
94 m2
Floor 1-2/3
Norkkokuja 6 C 29
4h+k
, Rivitalo
94 m2
1-2/3
Norkkokuja 6 C 29
4h+k
, Rivitalo
94 m2
Floor 1-2/3
Norkkokuja 7 B 21
4h+k
, Rivitalo
94 m2
1-2/3
Norkkokuja 7 B 21
4h+k
, Rivitalo
94 m2
Floor 1-2/3
Norkkokuja 7 B 20
4h+k
, Rivitalo
94 m2
1-2/3
Norkkokuja 7 B 20
4h+k
, Rivitalo
94 m2
Floor 1-2/3
Norkkokuja 7 B 19
4h+k
, Rivitalo
94 m2
1-2/3
Norkkokuja 7 B 19
4h+k
, Rivitalo
94 m2
Floor 1-2/3
Norkkokuja 6 B 21
4h+k
, Rivitalo
94 m2
1-2/3
Norkkokuja 6 B 21
4h+k
, Rivitalo
94 m2
Floor 1-2/3
Norkkokuja 6 B 19
4h+k
, Rivitalo
94 m2
1-2/3
Norkkokuja 6 B 19
4h+k
, Rivitalo
94 m2
Floor 1-2/3
Norkkokuja 6 B 20
4h+k
, Rivitalo
94 m2
1-2/3
Norkkokuja 6 B 20
4h+k
, Rivitalo
94 m2
Floor 1-2/3
Norkkokuja 7 C 30
4h+k
, Rivitalo
94 m2
1-2/3
Norkkokuja 7 C 30
4h+k
, Rivitalo
94 m2
Floor 1-2/3
Norkkokuja 7 C 28
4h+k
, Rivitalo
94 m2
1-2/3
Norkkokuja 7 C 28
4h+k
, Rivitalo
94 m2
Floor 1-2/3
Norkkokuja 7 C 29
4h+k
, Rivitalo
94 m2
Floor 1-2/3
Norkkokuja 6 C 33
4h+k
, Rivitalo
95 m2
2-3/3
Norkkokuja 6 C 33
4h+k
, Rivitalo
95 m2
Floor 2-3/3
Norkkokuja 7 B 24
4h+k
, Rivitalo
95 m2
Floor 2-3/3
Norkkokuja 6 B 24
4h+k
, Rivitalo
95 m2
Floor 2-3/3
Norkkokuja 7 C 33
4h+k
, Rivitalo
95 m2
2-3/3
Norkkokuja 7 C 33
4h+k
, Rivitalo
95 m2
Floor 2-3/3
Norkkokuja 7 B 25
5h+k
, Rivitalo
105 m2
2-3/3
Norkkokuja 7 B 25
5h+k
, Rivitalo
105 m2
Floor 2-3/3
Norkkokuja 7 C 34
5h+k
, Rivitalo
105 m2
2-3/3
Norkkokuja 7 C 34
5h+k
, Rivitalo
105 m2
Floor 2-3/3
Norkkokuja 6 C 34
5h+k
, Rivitalo
106 m2
2-3/3
Norkkokuja 6 C 34
5h+k
, Rivitalo
106 m2
Floor 2-3/3
Norkkokuja 6 B 18
5h+k
, Rivitalo
106 m2
1-2/3
Norkkokuja 6 B 18
5h+k
, Rivitalo
106 m2
Floor 1-2/3
Norkkokuja 6 B 25
5h+k
, Rivitalo
106 m2
2-3/3
Norkkokuja 6 B 25
5h+k
, Rivitalo
106 m2
Floor 2-3/3
Norkkokuja 7 C 27
5h+k
, Rivitalo
106 m2
1-2/3
Norkkokuja 7 C 27
5h+k
, Rivitalo
106 m2
Floor 1-2/3


