Property Introduction
Mustankivenaukio 3 on keskeisellä paikalla Vuosaaressa sijaitseva kerrostalokohde. Kohde koostuu 69 asunnosta, joiden koot vaihtelevat yksiöistä neljän huoneen asuntoihin, 36,5–114 m². Useissa huoneistoissa ja kohteen yläkerroksissa avautuvat näkymät Mustankivenpuistoon ja jopa merelle asti. Asukkailla on käytössään sauna, pyykkitupa, kuivaushuone sekä kerhotila.
Koulut, päiväkodit ja palvelut ovat kohteessa lähellä. Kauppakeskus Columbuksen päivittäispalvelut sekä Vuosaaren metro sijaitsevat alle kilometrin päässä kohteesta. Alue tarjoaa myös mahdollisuudet ulkoiluun ja liikuntaan, sillä lähettyvillä on useita urheilukenttiä, liikuntahalleja sekä ulkoilureittejä.
Why Asuntosäätiö?
We believe that a happy home and quality living are for everyone. We do not seek immediate profit or financial benefit. We use the assets gained from our operations to develop our real estate. Over 33,000 Finns have already chosen a home offered by Asuntosäätiö. Pets are also welcome in all our homes.
Basic house info
- Form of housing Right-of-occupancy
- Average right-of-occupancy payment / jm² 349,2€
- Elevators 2
- House sauna 1
- Laundry room Yes
- Drying room Yes
- Apartment count 69
- Building count 1
- Residence charge / month / jm² 16,1€
- Construction year 1999
- Staircases 2
- Energy class E
- Heating Kauko
- Parking spaces 51
- Clubroom 1
- Broadband DNA Welho
- TV-antenna system Kaapeli
- CableTV DNA
- Roof material Huopa
- House frame material Betoni
- Pets Allowed
Apartments and floor plans: Mustankivenaukio 3, Kerrostalo
Add all the apartment types you want to your application. Your opportunity to get an apartment increases when we are able to offer you all of the apartment types that may be available later on in this property. You are automatically in queue for these apartment types.
Mustankivenaukio 3 C 49
1h+kk
, Kerrostalo
36.5 m2
3/7
Mustankivenaukio 3 C 49
1h+kk
, Kerrostalo
36.5 m2
Floor 3/7
Mustankivenaukio 3 C 69
1h+kk
, Kerrostalo
36.5 m2
7/7
Mustankivenaukio 3 C 69
1h+kk
, Kerrostalo
36.5 m2
Floor 7/7
Mustankivenaukio 3 C 37
1h+kk
, Kerrostalo
36.5 m2
1/7
Mustankivenaukio 3 C 37
1h+kk
, Kerrostalo
36.5 m2
Floor 1/7
Mustankivenaukio 3 C 54
1h+kk
, Kerrostalo
36.5 m2
4/7
Mustankivenaukio 3 C 54
1h+kk
, Kerrostalo
36.5 m2
Floor 4/7
Mustankivenaukio 3 C 65
1h+kk
, Kerrostalo
36.5 m2
6/7
Mustankivenaukio 3 C 65
1h+kk
, Kerrostalo
36.5 m2
Floor 6/7
Mustankivenaukio 3 C 59
1h+kk
, Kerrostalo
36.5 m2
5/7
Mustankivenaukio 3 C 59
1h+kk
, Kerrostalo
36.5 m2
Floor 5/7
Mustankivenaukio 3 C 43
1h+kk
, Kerrostalo
36.5 m2
2/7
Mustankivenaukio 3 C 43
1h+kk
, Kerrostalo
36.5 m2
Floor 2/7
Mustankivenaukio 3 C 35
2h+k+s
, Kerrostalo
45.5 m2
1/7
Mustankivenaukio 3 C 35
2h+k+s
, Kerrostalo
45.5 m2
Floor 1/7
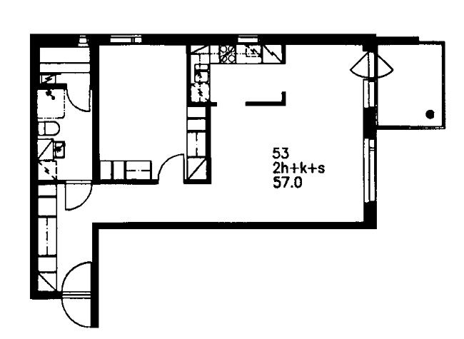
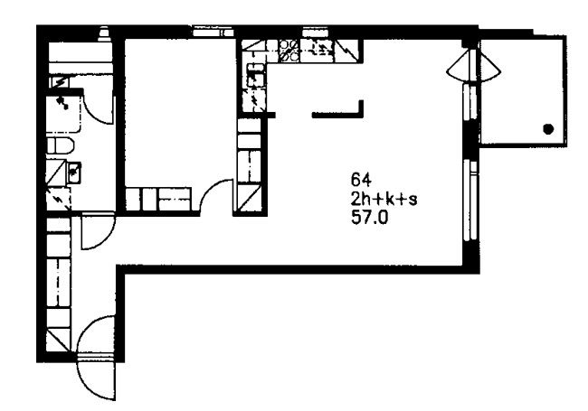
Mustankivenaukio 3 C 53
2h+k+s
, Kerrostalo
57 m2
4/7
Mustankivenaukio 3 C 53
2h+k+s
, Kerrostalo
57 m2
Floor 4/7
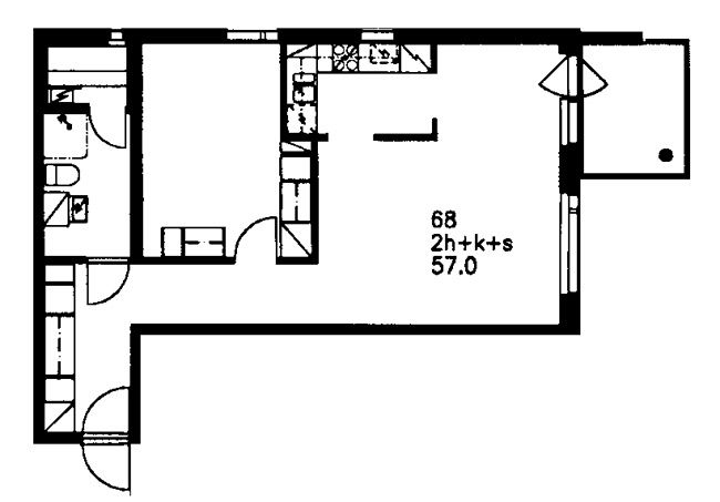
Mustankivenaukio 3 C 68
2h+k+s
, Kerrostalo
57 m2
7/7
Mustankivenaukio 3 C 68
2h+k+s
, Kerrostalo
57 m2
Floor 7/7
Mustankivenaukio 3 C 48
2h+k+s
, Kerrostalo
57 m2
3/7
Mustankivenaukio 3 C 48
2h+k+s
, Kerrostalo
57 m2
Floor 3/7
Mustankivenaukio 3 C 64
2h+k+s
, Kerrostalo
57 m2
6/7
Mustankivenaukio 3 C 64
2h+k+s
, Kerrostalo
57 m2
Floor 6/7
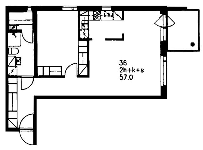
Mustankivenaukio 3 C 36
2h+k+s
, Kerrostalo
57 m2
1/7
Mustankivenaukio 3 C 36
2h+k+s
, Kerrostalo
57 m2
Floor 1/7
Mustankivenaukio 3 C 42
2h+k+s
, Kerrostalo
57 m2
2/7
Mustankivenaukio 3 C 42
2h+k+s
, Kerrostalo
57 m2
Floor 2/7
Mustankivenaukio 3 C 58
2h+k+s
, Kerrostalo
57 m2
Floor 5/7
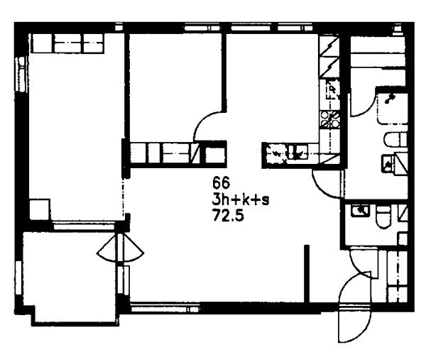
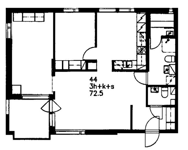
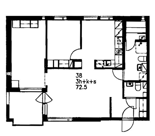
Mustankivenaukio 3 C 60
2h+k+s
, Kerrostalo
72.5 m2
6/7
Mustankivenaukio 3 C 60
2h+k+s
, Kerrostalo
72.5 m2
Floor 6/7
Mustankivenaukio 3 C 52
2h+kk+s
, Kerrostalo
45.5 m2
4/7
Mustankivenaukio 3 C 52
2h+kk+s
, Kerrostalo
45.5 m2
Floor 4/7
Mustankivenaukio 3 C 57
2h+kk+s
, Kerrostalo
45.5 m2
5/7
Mustankivenaukio 3 C 57
2h+kk+s
, Kerrostalo
45.5 m2
Floor 5/7
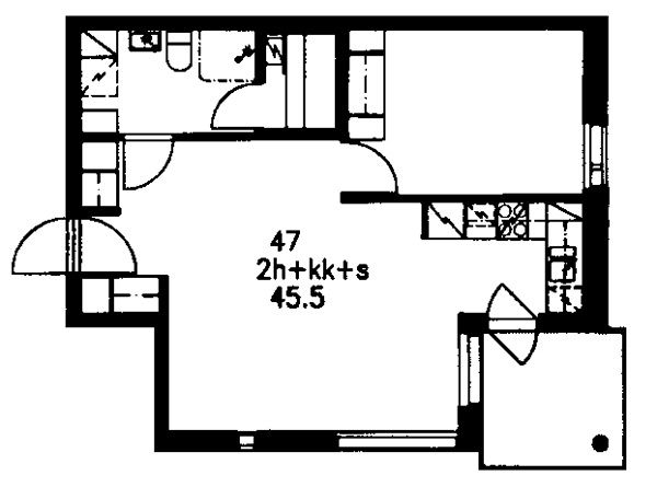
Mustankivenaukio 3 C 47
2h+kk+s
, Kerrostalo
45.5 m2
3/7
Mustankivenaukio 3 C 47
2h+kk+s
, Kerrostalo
45.5 m2
Floor 3/7
Mustankivenaukio 3 C 63
2h+kk+s
, Kerrostalo
45.5 m2
6/7
Mustankivenaukio 3 C 63
2h+kk+s
, Kerrostalo
45.5 m2
Floor 6/7
Mustankivenaukio 3 C 67
2h+kk+s
, Kerrostalo
45.5 m2
7/7
Mustankivenaukio 3 C 67
2h+kk+s
, Kerrostalo
45.5 m2
Floor 7/7
Mustankivenaukio 3 C 41
2h+kk+s
, Kerrostalo
45.5 m2
2/7
Mustankivenaukio 3 C 41
2h+kk+s
, Kerrostalo
45.5 m2
Floor 2/7
Mustankivenaukio 3 B 17
2h+kk+s
, Kerrostalo
47.5 m2
4/7
Mustankivenaukio 3 B 17
2h+kk+s
, Kerrostalo
47.5 m2
Floor 4/7
Mustankivenaukio 3 B 2
2h+kk+s
, Kerrostalo
47.5 m2
1/7
Mustankivenaukio 3 B 2
2h+kk+s
, Kerrostalo
47.5 m2
Floor 1/7
Mustankivenaukio 3 B 22
2h+kk+s
, Kerrostalo
47.5 m2
5/7
Mustankivenaukio 3 B 22
2h+kk+s
, Kerrostalo
47.5 m2
Floor 5/7
Mustankivenaukio 3 B 7
2h+kk+s
, Kerrostalo
47.5 m2
2/7
Mustankivenaukio 3 B 7
2h+kk+s
, Kerrostalo
47.5 m2
Floor 2/7
Mustankivenaukio 3 B 27
2h+kk+s
, Kerrostalo
47.5 m2
6/7
Mustankivenaukio 3 B 27
2h+kk+s
, Kerrostalo
47.5 m2
Floor 6/7
Mustankivenaukio 3 B 12
2h+kk+s
, Kerrostalo
47.5 m2
3/7
Mustankivenaukio 3 B 12
2h+kk+s
, Kerrostalo
47.5 m2
Floor 3/7
Mustankivenaukio 3 C 39
2h+kk+s
, Kerrostalo
47.5 m2
2/7
Mustankivenaukio 3 C 39
2h+kk+s
, Kerrostalo
47.5 m2
Floor 2/7
Mustankivenaukio 3 C 45
2h+kk+s
, Kerrostalo
47.5 m2
3/7
Mustankivenaukio 3 C 45
2h+kk+s
, Kerrostalo
47.5 m2
Floor 3/7
Mustankivenaukio 3 C 61
2h+kk+s
, Kerrostalo
47.5 m2
6/7
Mustankivenaukio 3 C 61
2h+kk+s
, Kerrostalo
47.5 m2
Floor 6/7
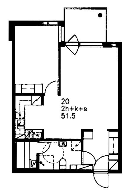
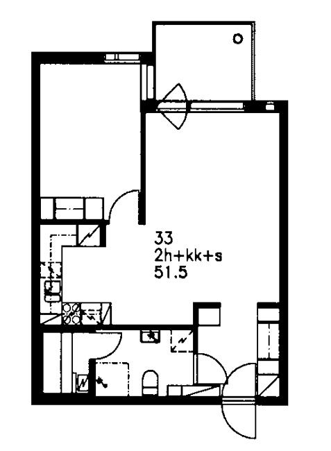
Mustankivenaukio 3 B 25
2h+kk+s
, Kerrostalo
51.5 m2
5/7
Mustankivenaukio 3 B 25
2h+kk+s
, Kerrostalo
51.5 m2
Floor 5/7
Mustankivenaukio 3 B 33
2h+kk+s
, Kerrostalo
51.5 m2
7/7
Mustankivenaukio 3 B 33
2h+kk+s
, Kerrostalo
51.5 m2
Floor 7/7
Mustankivenaukio 3 B 15
2h+kk+s
, Kerrostalo
51.5 m2
3/7
Mustankivenaukio 3 B 15
2h+kk+s
, Kerrostalo
51.5 m2
Floor 3/7
Mustankivenaukio 3 B 30
2h+kk+s
, Kerrostalo
51.5 m2
6/7
Mustankivenaukio 3 B 30
2h+kk+s
, Kerrostalo
51.5 m2
Floor 6/7
Mustankivenaukio 3 B 20
2h+kk+s
, Kerrostalo
51.5 m2
4/7
Mustankivenaukio 3 B 20
2h+kk+s
, Kerrostalo
51.5 m2
Floor 4/7
Mustankivenaukio 3 B 5
2h+kk+s
, Kerrostalo
51.5 m2
1/7
Mustankivenaukio 3 B 5
2h+kk+s
, Kerrostalo
51.5 m2
Floor 1/7
Mustankivenaukio 3 B 10
2h+kk+s
, Kerrostalo
51.5 m2
2/7
Mustankivenaukio 3 B 10
2h+kk+s
, Kerrostalo
51.5 m2
Floor 2/7
Mustankivenaukio 3 C 38
3h+k+s
, Kerrostalo
72.5 m2
2/7
Mustankivenaukio 3 C 38
3h+k+s
, Kerrostalo
72.5 m2
Floor 2/7
Mustankivenaukio 3 C 50
3h+k+s
, Kerrostalo
72.5 m2
4/7
Mustankivenaukio 3 C 50
3h+k+s
, Kerrostalo
72.5 m2
Floor 4/7
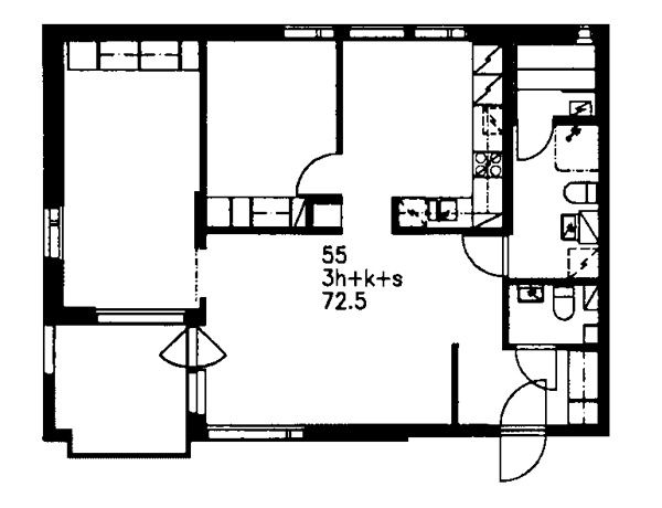
Mustankivenaukio 3 C 55
3h+k+s
, Kerrostalo
72.5 m2
5/7
Mustankivenaukio 3 C 55
3h+k+s
, Kerrostalo
72.5 m2
Floor 5/7
Mustankivenaukio 3 C 66
3h+k+s
, Kerrostalo
72.5 m2
7/7
Mustankivenaukio 3 C 66
3h+k+s
, Kerrostalo
72.5 m2
Floor 7/7
Mustankivenaukio 3 C 44
3h+k+s
, Kerrostalo
72.5 m2
3/7
Mustankivenaukio 3 C 44
3h+k+s
, Kerrostalo
72.5 m2
Floor 3/7
Mustankivenaukio 3 B 18
3h+kk+s
, Kerrostalo
66 m2
4/7
Mustankivenaukio 3 B 18
3h+kk+s
, Kerrostalo
66 m2
Floor 4/7
Mustankivenaukio 3 B 13
3h+kk+s
, Kerrostalo
66 m2
3/7
Mustankivenaukio 3 B 13
3h+kk+s
, Kerrostalo
66 m2
Floor 3/7
Mustankivenaukio 3 B 3
3h+kk+s
, Kerrostalo
66 m2
1/7
Mustankivenaukio 3 B 3
3h+kk+s
, Kerrostalo
66 m2
Floor 1/7
Mustankivenaukio 3 B 23
3h+kk+s
, Kerrostalo
66 m2
5/7
Mustankivenaukio 3 B 23
3h+kk+s
, Kerrostalo
66 m2
Floor 5/7
Mustankivenaukio 3 B 8
3h+kk+s
, Kerrostalo
66 m2
2/7
Mustankivenaukio 3 B 8
3h+kk+s
, Kerrostalo
66 m2
Floor 2/7
Mustankivenaukio 3 C 40
3h+kk+s
, Kerrostalo
66 m2
Floor 2/7
Mustankivenaukio 3 C 34
3h+kk+s
, Kerrostalo
66 m2
1/7
Mustankivenaukio 3 C 34
3h+kk+s
, Kerrostalo
66 m2
Floor 1/7
Mustankivenaukio 3 C 46
3h+kk+s
, Kerrostalo
66 m2
3/7
Mustankivenaukio 3 C 46
3h+kk+s
, Kerrostalo
66 m2
Floor 3/7
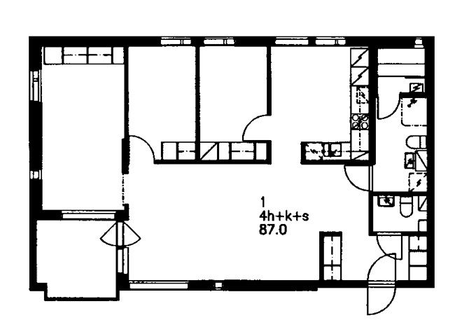
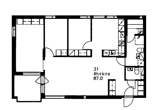
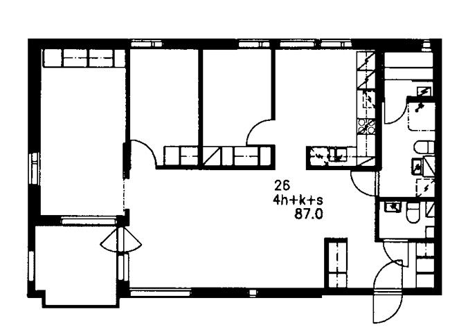
Mustankivenaukio 3 B 6
4h+k+s
, Kerrostalo
87 m2
2/7
Mustankivenaukio 3 B 6
4h+k+s
, Kerrostalo
87 m2
Floor 2/7
Mustankivenaukio 3 B 26
4h+k+s
, Kerrostalo
87 m2
6/7
Mustankivenaukio 3 B 26
4h+k+s
, Kerrostalo
87 m2
Floor 6/7
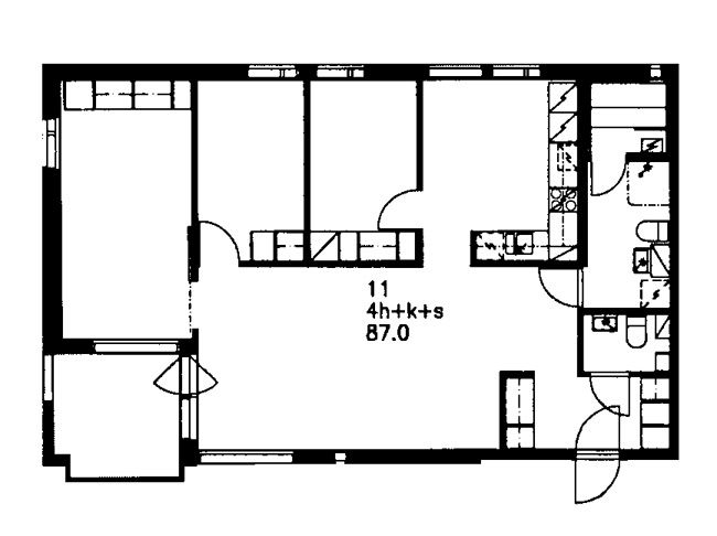
Mustankivenaukio 3 B 11
4h+k+s
, Kerrostalo
87 m2
3/7
Mustankivenaukio 3 B 11
4h+k+s
, Kerrostalo
87 m2
Floor 3/7
Mustankivenaukio 3 B 1
4h+k+s
, Kerrostalo
87 m2
1/7
Mustankivenaukio 3 B 1
4h+k+s
, Kerrostalo
87 m2
Floor 1/7
Mustankivenaukio 3 B 16
4h+k+s
, Kerrostalo
87 m2
4/7
Mustankivenaukio 3 B 16
4h+k+s
, Kerrostalo
87 m2
Floor 4/7
Mustankivenaukio 3 B 21
4h+k+s
, Kerrostalo
87 m2
Floor 5/7
Mustankivenaukio 3 B 31
4h+k+s
, Kerrostalo
87 m2
7/7
Mustankivenaukio 3 B 31
4h+k+s
, Kerrostalo
87 m2
Floor 7/7
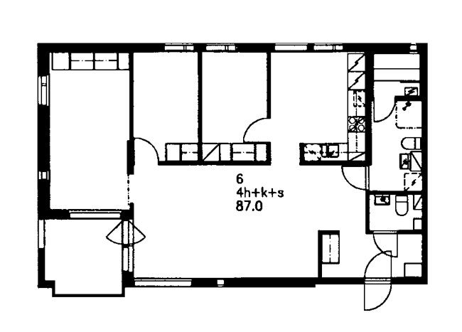
Mustankivenaukio 3 B 24
4h+k+s
, Kerrostalo
89 m2
5/7
Mustankivenaukio 3 B 24
4h+k+s
, Kerrostalo
89 m2
Floor 5/7
Mustankivenaukio 3 B 29
4h+k+s
, Kerrostalo
89 m2
6/7
Mustankivenaukio 3 B 29
4h+k+s
, Kerrostalo
89 m2
Floor 6/7
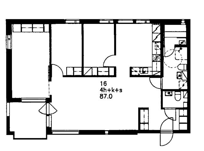
Mustankivenaukio 3 B 19
4h+k+s
, Kerrostalo
89 m2
4/7
Mustankivenaukio 3 B 19
4h+k+s
, Kerrostalo
89 m2
Floor 4/7
Mustankivenaukio 3 B 32
4h+k+s
, Kerrostalo
89 m2
7/7
Mustankivenaukio 3 B 32
4h+k+s
, Kerrostalo
89 m2
Floor 7/7
Mustankivenaukio 3 B 9
4h+k+s
, Kerrostalo
89 m2
2/7
Mustankivenaukio 3 B 9
4h+k+s
, Kerrostalo
89 m2
Floor 2/7
Mustankivenaukio 3 B 14
4h+k+s
, Kerrostalo
89 m2
3/7
Mustankivenaukio 3 B 14
4h+k+s
, Kerrostalo
89 m2
Floor 3/7
Mustankivenaukio 3 B 4
4h+k+s
, Kerrostalo
89 m2
1/7
Mustankivenaukio 3 B 4
4h+k+s
, Kerrostalo
89 m2
Floor 1/7
Mustankivenaukio 3 B 28
4h+k+s
, Kerrostalo
114 m2
6-7/7
Mustankivenaukio 3 B 28
4h+k+s
, Kerrostalo
114 m2
Floor 6-7/7
Mustankivenaukio 3 C 56
4h+k+s
, Kerrostalo
114 m2
5/7
Mustankivenaukio 3 C 56
4h+k+s
, Kerrostalo
114 m2
Floor 5/7
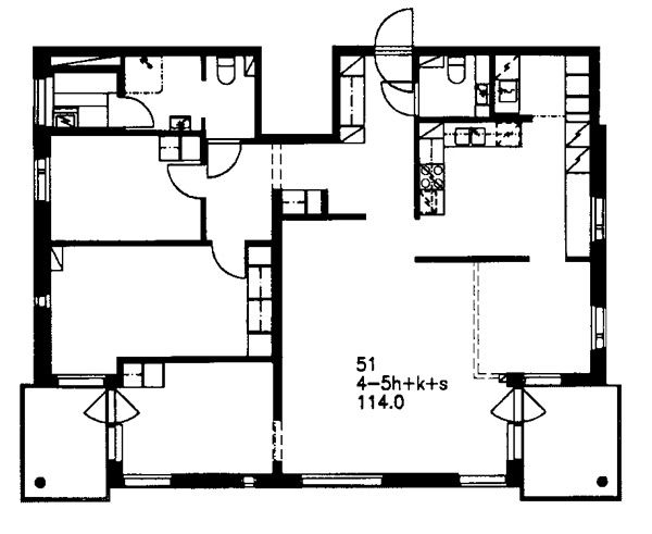
Mustankivenaukio 3 C 51
4h+k+s
, Kerrostalo
114 m2
4/7
Mustankivenaukio 3 C 51
4h+k+s
, Kerrostalo
114 m2
Floor 4/7
Mustankivenaukio 3 C 62
4h+k+s
, Kerrostalo
114 m2
6-7/7
Mustankivenaukio 3 C 62
4h+k+s
, Kerrostalo
114 m2
Floor 6-7/7


