Property Introduction
Ramsinniementie 7 on luhti- ja kerrostaloista muodostuva luonnonläheinen kohde Helsingin Vuosaaressa. Viihtyisään pihapiiriin sijoittuva kohde koostuu 9 asuinrakennuksesta, joiden asuntojen koot vaihtelevat yksiöistä neljän huoneen asuntoihin, 39–89,5 m². Osassa asuntoja on parveke tai pieni piha. Asukkailla on käytössään talosauna, pyykkitupa, kuivaushuone sekä kerhotila. Kohteeseen on tehty peruskorjaus 2022.
Kohde sijaitsee Ramsinniemen ja Kallahdenniemen merellisten ulkoilureittien lähettyvillä. Kohteen kupeessa on myös niin läheinen Kallahden, kuin noin kilometrin päässä sijaitseva Aurinkolahden uimaranta. Rastilan metroasema ja sen läheltä löytyvät kaupat ovat niin ikään noin kilometrin päässä.
Why Asuntosäätiö?
We believe that a happy home and quality living are for everyone. We do not seek immediate profit or financial benefit. We use the assets gained from our operations to develop our real estate. Over 33,000 Finns have already chosen a home offered by Asuntosäätiö. Pets are also welcome in all our homes.
Basic house info
- Form of housing Right-of-occupancy
- Average right-of-occupancy payment / jm² 169,88€
- Elevators 1
- House sauna 5
- Laundry room Yes
- Drying room Yes
- Apartment count 101
- Building count 9
- Residence charge / month / jm² 14,78€
- Construction year 1993
- Renovated 2024
- Staircases 1
- Energy class D, C
- Heating Kauko
- Parking spaces 77
- Clubroom 2
- Hobby room 1
- Broadband DNA Welho
- TV-antenna system Kaapeli
- CableTV DNA
- Roof material Pelti
- House frame material Betoni
- Pets Allowed
Apartments and floor plans: Ramsinniementie 7, Pienkerrostalo, Kerrostalo
Add all the apartment types you want to your application. Your opportunity to get an apartment increases when we are able to offer you all of the apartment types that may be available later on in this property. You are automatically in queue for these apartment types.
Ramsinniementie 7 L 82
1h+tk
, Pienkerrostalo
39 m2
1/2
Ramsinniementie 7 L 82
1h+tk
, Pienkerrostalo
39 m2
Floor 1/2
Ramsinniementie 7 M 88
1h+tk
, Pienkerrostalo
39 m2
1/2
Ramsinniementie 7 M 88
1h+tk
, Pienkerrostalo
39 m2
Floor 1/2
Ramsinniementie 7 M 91
1h+tk
, Pienkerrostalo
39 m2
2/2
Ramsinniementie 7 M 91
1h+tk
, Pienkerrostalo
39 m2
Floor 2/2
Ramsinniementie 7 L 85
1h+tk
, Pienkerrostalo
39 m2
2/2
Ramsinniementie 7 L 85
1h+tk
, Pienkerrostalo
39 m2
Floor 2/2
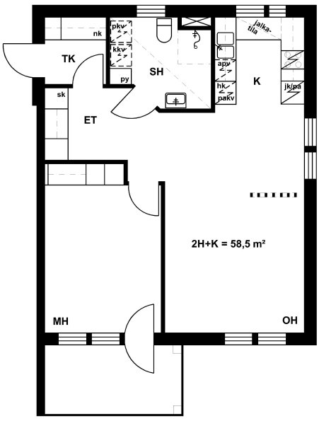
Ramsinniementie 7 K 66
2h+k
, Kerrostalo
58 m2
2/3
Ramsinniementie 7 K 66
2h+k
, Kerrostalo
58 m2
Floor 2/3
Ramsinniementie 7 K 72
2h+k
, Kerrostalo
58 m2
3/3
Ramsinniementie 7 K 72
2h+k
, Kerrostalo
58 m2
Floor 3/3
Ramsinniementie 7 K 60
2h+k
, Kerrostalo
58 m2
1/3
Ramsinniementie 7 K 60
2h+k
, Kerrostalo
58 m2
Floor 1/3
Ramsinniementie 7 B 10
2h+k
, Pienkerrostalo
58.5 m2
2/2
Ramsinniementie 7 B 10
2h+k
, Pienkerrostalo
58.5 m2
Floor 2/2
Ramsinniementie 7 A 1
2h+k
, Pienkerrostalo
58.5 m2
1/2
Ramsinniementie 7 A 1
2h+k
, Pienkerrostalo
58.5 m2
Floor 1/2
Ramsinniementie 7 A 4
2h+k
, Pienkerrostalo
58.5 m2
2/2
Ramsinniementie 7 A 4
2h+k
, Pienkerrostalo
58.5 m2
Floor 2/2
Ramsinniementie 7 B 7
2h+k
, Pienkerrostalo
58.5 m2
1/2
Ramsinniementie 7 B 7
2h+k
, Pienkerrostalo
58.5 m2
Floor 1/2
Ramsinniementie 7 J 54
2h+k
, Pienkerrostalo
58.5 m2
1/2
Ramsinniementie 7 J 54
2h+k
, Pienkerrostalo
58.5 m2
Floor 1/2
Ramsinniementie 7 I 48
2h+k
, Pienkerrostalo
58.5 m2
1/2
Ramsinniementie 7 I 48
2h+k
, Pienkerrostalo
58.5 m2
Floor 1/2
Ramsinniementie 7 I 51
2h+k
, Pienkerrostalo
58.5 m2
2/2
Ramsinniementie 7 I 51
2h+k
, Pienkerrostalo
58.5 m2
Floor 2/2
Ramsinniementie 7 J 57
2h+k
, Pienkerrostalo
58.5 m2
2/2
Ramsinniementie 7 J 57
2h+k
, Pienkerrostalo
58.5 m2
Floor 2/2
Ramsinniementie 7 H 42
2h+k
, Pienkerrostalo
58.5 m2
1/2
Ramsinniementie 7 H 42
2h+k
, Pienkerrostalo
58.5 m2
Floor 1/2
Ramsinniementie 7 G 39
2h+k
, Pienkerrostalo
58.5 m2
2/2
Ramsinniementie 7 G 39
2h+k
, Pienkerrostalo
58.5 m2
Floor 2/2
Ramsinniementie 7 H 45
2h+k
, Pienkerrostalo
58.5 m2
2/2
Ramsinniementie 7 H 45
2h+k
, Pienkerrostalo
58.5 m2
Floor 2/2
Ramsinniementie 7 G 36
2h+k
, Pienkerrostalo
58.5 m2
1/2
Ramsinniementie 7 G 36
2h+k
, Pienkerrostalo
58.5 m2
Floor 1/2
Ramsinniementie 7 C 13
2h+k
, Pienkerrostalo
58.5 m2
1/2
Ramsinniementie 7 C 13
2h+k
, Pienkerrostalo
58.5 m2
Floor 1/2
Ramsinniementie 7 D 21
2h+k
, Pienkerrostalo
58.5 m2
2/2
Ramsinniementie 7 D 21
2h+k
, Pienkerrostalo
58.5 m2
Floor 2/2
Ramsinniementie 7 C 16
2h+k
, Pienkerrostalo
58.5 m2
2/2
Ramsinniementie 7 C 16
2h+k
, Pienkerrostalo
58.5 m2
Floor 2/2
Ramsinniementie 7 E 24
2h+k
, Pienkerrostalo
58.5 m2
1/2
Ramsinniementie 7 E 24
2h+k
, Pienkerrostalo
58.5 m2
Floor 1/2
Ramsinniementie 7 E 27
2h+k
, Pienkerrostalo
58.5 m2
2/2
Ramsinniementie 7 E 27
2h+k
, Pienkerrostalo
58.5 m2
Floor 2/2
Ramsinniementie 7 F 30
2h+k
, Pienkerrostalo
58.5 m2
1/2
Ramsinniementie 7 F 30
2h+k
, Pienkerrostalo
58.5 m2
Floor 1/2
Ramsinniementie 7 F 33
2h+k
, Pienkerrostalo
58.5 m2
2/2
Ramsinniementie 7 F 33
2h+k
, Pienkerrostalo
58.5 m2
Floor 2/2
Ramsinniementie 7 L 81
2h+k
, Pienkerrostalo
60.5 m2
1/2
Ramsinniementie 7 L 81
2h+k
, Pienkerrostalo
60.5 m2
Floor 1/2
Ramsinniementie 7 M 90
2h+k
, Pienkerrostalo
60.5 m2
2/2
Ramsinniementie 7 M 90
2h+k
, Pienkerrostalo
60.5 m2
Floor 2/2
Ramsinniementie 7 L 84
2h+k
, Pienkerrostalo
60.5 m2
2/2
Ramsinniementie 7 L 84
2h+k
, Pienkerrostalo
60.5 m2
Floor 2/2
Ramsinniementie 7 M 87
2h+k
, Pienkerrostalo
60.5 m2
1/2
Ramsinniementie 7 M 87
2h+k
, Pienkerrostalo
60.5 m2
Floor 1/2
Ramsinniementie 7 K 67
2h+kk
, Kerrostalo
48.5 m2
2/3
Ramsinniementie 7 K 67
2h+kk
, Kerrostalo
48.5 m2
Floor 2/3
Ramsinniementie 7 K 61
2h+kk
, Kerrostalo
48.5 m2
1/3
Ramsinniementie 7 K 61
2h+kk
, Kerrostalo
48.5 m2
Floor 1/3
Ramsinniementie 7 K 73
2h+kk
, Kerrostalo
48.5 m2
3/3
Ramsinniementie 7 K 73
2h+kk
, Kerrostalo
48.5 m2
Floor 3/3
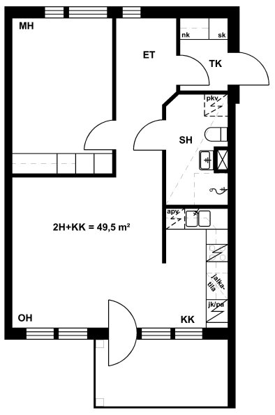
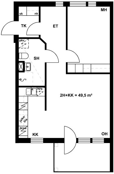
Ramsinniementie 7 C 15
2h+kk
, Pienkerrostalo
49.5 m2
1/2
Ramsinniementie 7 C 15
2h+kk
, Pienkerrostalo
49.5 m2
Floor 1/2
Ramsinniementie 7 B 12
2h+kk
, Pienkerrostalo
49.5 m2
2/2
Ramsinniementie 7 B 12
2h+kk
, Pienkerrostalo
49.5 m2
Floor 2/2
Ramsinniementie 7 B 8
2h+kk
, Pienkerrostalo
49.5 m2
1/2
Ramsinniementie 7 B 8
2h+kk
, Pienkerrostalo
49.5 m2
Floor 1/2
Ramsinniementie 7 A 3
2h+kk
, Pienkerrostalo
49.5 m2
1/2
Ramsinniementie 7 A 3
2h+kk
, Pienkerrostalo
49.5 m2
Floor 1/2
Ramsinniementie 7 A 6
2h+kk
, Pienkerrostalo
49.5 m2
2/2
Ramsinniementie 7 A 6
2h+kk
, Pienkerrostalo
49.5 m2
Floor 2/2
Ramsinniementie 7 B 9
2h+kk
, Pienkerrostalo
49.5 m2
1/2
Ramsinniementie 7 B 9
2h+kk
, Pienkerrostalo
49.5 m2
Floor 1/2
Ramsinniementie 7 I 50
2h+kk
, Pienkerrostalo
49.5 m2
1/2
Ramsinniementie 7 I 50
2h+kk
, Pienkerrostalo
49.5 m2
Floor 1/2
Ramsinniementie 7 J 59
2h+kk
, Pienkerrostalo
49.5 m2
2/2
Ramsinniementie 7 J 59
2h+kk
, Pienkerrostalo
49.5 m2
Floor 2/2
Ramsinniementie 7 I 49
2h+kk
, Pienkerrostalo
49.5 m2
1/2
Ramsinniementie 7 I 49
2h+kk
, Pienkerrostalo
49.5 m2
Floor 1/2
Ramsinniementie 7 I 53
2h+kk
, Pienkerrostalo
49.5 m2
2/2
Ramsinniementie 7 I 53
2h+kk
, Pienkerrostalo
49.5 m2
Floor 2/2
Ramsinniementie 7 J 56
2h+kk
, Pienkerrostalo
49.5 m2
1/2
Ramsinniementie 7 J 56
2h+kk
, Pienkerrostalo
49.5 m2
Floor 1/2
Ramsinniementie 7 K 65
2h+kk
, Kerrostalo
49.5 m2
1/3
Ramsinniementie 7 K 65
2h+kk
, Kerrostalo
49.5 m2
Floor 1/3
Ramsinniementie 7 K 77
2h+kk
, Kerrostalo
49.5 m2
3/3
Ramsinniementie 7 K 77
2h+kk
, Kerrostalo
49.5 m2
Floor 3/3
Ramsinniementie 7 K 71
2h+kk
, Kerrostalo
49.5 m2
2/3
Ramsinniementie 7 K 71
2h+kk
, Kerrostalo
49.5 m2
Floor 2/3
Ramsinniementie 7 H 43
2h+kk
, Pienkerrostalo
49.5 m2
1/2
Ramsinniementie 7 H 43
2h+kk
, Pienkerrostalo
49.5 m2
Floor 1/2
Ramsinniementie 7 H 47
2h+kk
, Pienkerrostalo
49.5 m2
2/2
Ramsinniementie 7 H 47
2h+kk
, Pienkerrostalo
49.5 m2
Floor 2/2
Ramsinniementie 7 G 41
2h+kk
, Pienkerrostalo
49.5 m2
2/2
Ramsinniementie 7 G 41
2h+kk
, Pienkerrostalo
49.5 m2
Floor 2/2
Ramsinniementie 7 G 38
2h+kk
, Pienkerrostalo
49.5 m2
1/2
Ramsinniementie 7 G 38
2h+kk
, Pienkerrostalo
49.5 m2
Floor 1/2
Ramsinniementie 7 H 44
2h+kk
, Pienkerrostalo
49.5 m2
1/2
Ramsinniementie 7 H 44
2h+kk
, Pienkerrostalo
49.5 m2
Floor 1/2
Ramsinniementie 7 D 20
2h+kk
, Pienkerrostalo
49.5 m2
1/2
Ramsinniementie 7 D 20
2h+kk
, Pienkerrostalo
49.5 m2
Floor 1/2
Ramsinniementie 7 D 19
2h+kk
, Pienkerrostalo
49.5 m2
1/2
Ramsinniementie 7 D 19
2h+kk
, Pienkerrostalo
49.5 m2
Floor 1/2
Ramsinniementie 7 D 23
2h+kk
, Pienkerrostalo
49.5 m2
2/2
Ramsinniementie 7 D 23
2h+kk
, Pienkerrostalo
49.5 m2
Floor 2/2
Ramsinniementie 7 C 18
2h+kk
, Pienkerrostalo
49.5 m2
2/2
Ramsinniementie 7 C 18
2h+kk
, Pienkerrostalo
49.5 m2
Floor 2/2
Ramsinniementie 7 E 29
2h+kk
, Pienkerrostalo
49.5 m2
2/2
Ramsinniementie 7 E 29
2h+kk
, Pienkerrostalo
49.5 m2
Floor 2/2
Ramsinniementie 7 F 31
2h+kk
, Pienkerrostalo
49.5 m2
1/2
Ramsinniementie 7 F 31
2h+kk
, Pienkerrostalo
49.5 m2
Floor 1/2
Ramsinniementie 7 F 32
2h+kk
, Pienkerrostalo
49.5 m2
1/2
Ramsinniementie 7 F 32
2h+kk
, Pienkerrostalo
49.5 m2
Floor 1/2
Ramsinniementie 7 E 26
2h+kk
, Pienkerrostalo
49.5 m2
1/2
Ramsinniementie 7 E 26
2h+kk
, Pienkerrostalo
49.5 m2
Floor 1/2
Ramsinniementie 7 F 35
2h+kk
, Pienkerrostalo
49.5 m2
2/2
Ramsinniementie 7 F 35
2h+kk
, Pienkerrostalo
49.5 m2
Floor 2/2
Ramsinniementie 7 B 11
2h+kk
, Pienkerrostalo
50 m2
2/2
Ramsinniementie 7 B 11
2h+kk
, Pienkerrostalo
50 m2
Floor 2/2
Ramsinniementie 7 A 2
2h+kk
, Pienkerrostalo
50 m2
1/2
Ramsinniementie 7 A 2
2h+kk
, Pienkerrostalo
50 m2
Floor 1/2
Ramsinniementie 7 A 5
2h+kk
, Pienkerrostalo
50 m2
2/2
Ramsinniementie 7 A 5
2h+kk
, Pienkerrostalo
50 m2
Floor 2/2
Ramsinniementie 7 I 52
2h+kk
, Pienkerrostalo
50 m2
2/2
Ramsinniementie 7 I 52
2h+kk
, Pienkerrostalo
50 m2
Floor 2/2
Ramsinniementie 7 J 58
2h+kk
, Pienkerrostalo
50 m2
2/2
Ramsinniementie 7 J 58
2h+kk
, Pienkerrostalo
50 m2
Floor 2/2
Ramsinniementie 7 J 55
2h+kk
, Pienkerrostalo
50 m2
1/2
Ramsinniementie 7 J 55
2h+kk
, Pienkerrostalo
50 m2
Floor 1/2
Ramsinniementie 7 K 74
2h+kk
, Kerrostalo
50 m2
3/3
Ramsinniementie 7 K 74
2h+kk
, Kerrostalo
50 m2
Floor 3/3
Ramsinniementie 7 K 68
2h+kk
, Kerrostalo
50 m2
2/3
Ramsinniementie 7 K 68
2h+kk
, Kerrostalo
50 m2
Floor 2/3
Ramsinniementie 7 K 78
2h+kk
, Kerrostalo
50 m2
4/3
Ramsinniementie 7 K 78
2h+kk
, Kerrostalo
50 m2
Floor 4/3
Ramsinniementie 7 K 62
2h+kk
, Kerrostalo
50 m2
1/3
Ramsinniementie 7 K 62
2h+kk
, Kerrostalo
50 m2
Floor 1/3
Ramsinniementie 7 G 37
2h+kk
, Pienkerrostalo
50 m2
1/2
Ramsinniementie 7 G 37
2h+kk
, Pienkerrostalo
50 m2
Floor 1/2
Ramsinniementie 7 H 46
2h+kk
, Pienkerrostalo
50 m2
2/2
Ramsinniementie 7 H 46
2h+kk
, Pienkerrostalo
50 m2
Floor 2/2
Ramsinniementie 7 G 40
2h+kk
, Pienkerrostalo
50 m2
2/2
Ramsinniementie 7 G 40
2h+kk
, Pienkerrostalo
50 m2
Floor 2/2
Ramsinniementie 7 C 17
2h+kk
, Pienkerrostalo
50 m2
2/2
Ramsinniementie 7 C 17
2h+kk
, Pienkerrostalo
50 m2
Floor 2/2
Ramsinniementie 7 D 22
2h+kk
, Pienkerrostalo
50 m2
2/2
Ramsinniementie 7 D 22
2h+kk
, Pienkerrostalo
50 m2
Floor 2/2
Ramsinniementie 7 C 14
2h+kk
, Pienkerrostalo
50 m2
1/2
Ramsinniementie 7 C 14
2h+kk
, Pienkerrostalo
50 m2
Floor 1/2
Ramsinniementie 7 E 28
2h+kk
, Pienkerrostalo
50 m2
2/2
Ramsinniementie 7 E 28
2h+kk
, Pienkerrostalo
50 m2
Floor 2/2
Ramsinniementie 7 E 25
2h+kk
, Pienkerrostalo
50 m2
1/2
Ramsinniementie 7 E 25
2h+kk
, Pienkerrostalo
50 m2
Floor 1/2
Ramsinniementie 7 F 34
2h+kk
, Pienkerrostalo
50 m2
2/2
Ramsinniementie 7 F 34
2h+kk
, Pienkerrostalo
50 m2
Floor 2/2
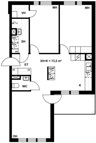
Ramsinniementie 7 M 89
3h+k
, Pienkerrostalo
73.5 m2
1/2
Ramsinniementie 7 M 89
3h+k
, Pienkerrostalo
73.5 m2
Floor 1/2
Ramsinniementie 7 M 92
3h+k
, Pienkerrostalo
73.5 m2
2/2
Ramsinniementie 7 M 92
3h+k
, Pienkerrostalo
73.5 m2
Floor 2/2
Ramsinniementie 7 L 83
3h+k
, Pienkerrostalo
73.5 m2
1/2
Ramsinniementie 7 L 83
3h+k
, Pienkerrostalo
73.5 m2
Floor 1/2
Ramsinniementie 7 L 86
3h+k
, Pienkerrostalo
73.5 m2
2/2
Ramsinniementie 7 L 86
3h+k
, Pienkerrostalo
73.5 m2
Floor 2/2
Ramsinniementie 7 K 76
3h+k
, Kerrostalo
73.5 m2
3/3
Ramsinniementie 7 K 76
3h+k
, Kerrostalo
73.5 m2
Floor 3/3
Ramsinniementie 7 K 70
3h+k
, Kerrostalo
73.5 m2
2/3
Ramsinniementie 7 K 70
3h+k
, Kerrostalo
73.5 m2
Floor 2/3
Ramsinniementie 7 K 64
3h+k
, Kerrostalo
73.5 m2
1/3
Ramsinniementie 7 K 64
3h+k
, Kerrostalo
73.5 m2
Floor 1/3
Ramsinniementie 7 K 80
3h+k
, Kerrostalo
74 m2
4/3
Ramsinniementie 7 K 80
3h+k
, Kerrostalo
74 m2
Floor 4/3
Ramsinniementie 7 K 79
3h+k
, Kerrostalo
75 m2
4/3
Ramsinniementie 7 K 79
3h+k
, Kerrostalo
75 m2
Floor 4/3
Ramsinniementie 7 K 63
3h+k
, Kerrostalo
75 m2
1/3
Ramsinniementie 7 K 63
3h+k
, Kerrostalo
75 m2
Floor 1/3
Ramsinniementie 7 K 69
3h+k
, Kerrostalo
75 m2
2/3
Ramsinniementie 7 K 69
3h+k
, Kerrostalo
75 m2
Floor 2/3
Ramsinniementie 7 K 75
3h+k
, Kerrostalo
75 m2
3/3
Ramsinniementie 7 K 75
3h+k
, Kerrostalo
75 m2
Floor 3/3
Ramsinniementie 7 Hsto 101
4h+k
, Pienkerrostalo
89.5 m2
1 ja 2/2
Ramsinniementie 7 Hsto 101
4h+k
, Pienkerrostalo
89.5 m2
Floor 1 ja 2/2
Ramsinniementie 7 Hsto 100
4h+k
, Pienkerrostalo
89.5 m2
1 ja 2/2
Ramsinniementie 7 Hsto 100
4h+k
, Pienkerrostalo
89.5 m2
Floor 1 ja 2/2
Ramsinniementie 7 O 97
4h+k
, Pienkerrostalo
89.5 m2
1 ja 2/2
Ramsinniementie 7 O 97
4h+k
, Pienkerrostalo
89.5 m2
Floor 1 ja 2/2
Ramsinniementie 7 O 98
4h+k
, Pienkerrostalo
89.5 m2
1 ja 2/2
Ramsinniementie 7 O 98
4h+k
, Pienkerrostalo
89.5 m2
Floor 1 ja 2/2
Ramsinniementie 7 O 99
4h+k
, Pienkerrostalo
89.5 m2
1 ja 2/2
Ramsinniementie 7 O 99
4h+k
, Pienkerrostalo
89.5 m2
Floor 1 ja 2/2
Ramsinniementie 7 N 93
4h+k
, Pienkerrostalo
89.5 m2
1 ja 2/2
Ramsinniementie 7 N 93
4h+k
, Pienkerrostalo
89.5 m2
Floor 1 ja 2/2
Ramsinniementie 7 N 94
4h+k
, Pienkerrostalo
89.5 m2
1 ja 2/2
Ramsinniementie 7 N 94
4h+k
, Pienkerrostalo
89.5 m2
Floor 1 ja 2/2
Ramsinniementie 7 N 96
4h+k
, Pienkerrostalo
89.5 m2
1 ja 2/2
Ramsinniementie 7 N 96
4h+k
, Pienkerrostalo
89.5 m2
Floor 1 ja 2/2
Ramsinniementie 7 N 95
4h+k
, Pienkerrostalo
89.5 m2
1 ja 2/2
Ramsinniementie 7 N 95
4h+k
, Pienkerrostalo
89.5 m2
Floor 1 ja 2/2

