Property Introduction
Nelikerroksinen kerrostalo keskustan tuntumassa, Helsingintien ja Sibeliuksenväylän risteyksessä. Kaikissa asunnoissa on oma sauna ja osassa myös parveke.
Lähellä on koulu, isot ruokakaupat ja kaikki keskustan palvelut. Ulkoilumaastoissa riittää mistä valita: Tuusulanjärven rantaraitti lähtee vierestä ja lisäksi lähialueella on monta kaunista puistoa, lintutorni, uimaranta ja koirapuisto.
Why Asuntosäätiö?
We believe that a happy home and quality living are for everyone. We do not seek immediate profit or financial benefit. We use the assets gained from our operations to develop our real estate. Over 33,000 Finns have already chosen a home offered by Asuntosäätiö. Pets are also welcome in all our homes.
Basic house info
- Form of housing Right-of-occupancy
- Average right-of-occupancy payment / jm² 326,32€
- Elevators 4
- House sauna No
- Drying room Yes
- Apartment count 44
- Building count 2
- Residence charge / month / jm² 18,05€
- Construction year 1997
- Renovated 2025
- Staircases 4
- Energy class D
- Heating Kauko
- Parking spaces 44
- Clubroom 1
- Broadband Elisa
- TV-antenna system Kaapeli
- CableTV Elisa
- Roof material Pelti
- House frame material Betoni
- Pets Allowed
Apartments and floor plans: Kansakoulunkatu 19-21, Piharakennus, Kerrostalo
Add all the apartment types you want to your application. Your opportunity to get an apartment increases when we are able to offer you all of the apartment types that may be available later on in this property. You are automatically in queue for these apartment types.
Kansakoulunkatu 21 C 28
1h+tk+s
, Kerrostalo
36 m2
3/4
Kansakoulunkatu 21 C 28
1h+tk+s
, Kerrostalo
36 m2
Floor 3/4
Kansakoulunkatu 21 C 31
1h+tk+s
, Kerrostalo
36 m2
4/4
Kansakoulunkatu 21 C 31
1h+tk+s
, Kerrostalo
36 m2
Floor 4/4
Kansakoulunkatu 21 C 25
1h+tk+s
, Kerrostalo
36 m2
2/4
Kansakoulunkatu 21 C 25
1h+tk+s
, Kerrostalo
36 m2
Floor 2/4
Kansakoulunkatu 21 C 22
1h+tk+s
, Kerrostalo
36 m2
1/4
Kansakoulunkatu 21 C 22
1h+tk+s
, Kerrostalo
36 m2
Floor 1/4
Kansakoulunkatu 19 B 19
1h+tk+s
, Kerrostalo
37 m2
3/5
Kansakoulunkatu 19 B 19
1h+tk+s
, Kerrostalo
37 m2
Floor 3/5
Kansakoulunkatu 19 B 10
1h+tk+s
, Kerrostalo
37 m2
P/5
Kansakoulunkatu 19 B 10
1h+tk+s
, Kerrostalo
37 m2
Floor P/5
Kansakoulunkatu 19 B 16
1h+tk+s
, Kerrostalo
37 m2
2/5
Kansakoulunkatu 19 B 16
1h+tk+s
, Kerrostalo
37 m2
Floor 2/5
Kansakoulunkatu 19 B 13
1h+tk+s
, Kerrostalo
37 m2
1/5
Kansakoulunkatu 19 B 13
1h+tk+s
, Kerrostalo
37 m2
Floor 1/5
Kansakoulunkatu 19 A 4
2h+k+s
, Kerrostalo
54 m2
2/5
Kansakoulunkatu 19 A 4
2h+k+s
, Kerrostalo
54 m2
Floor 2/5
Kansakoulunkatu 19 A 2
2h+k+s
, Kerrostalo
54 m2
1/5
Kansakoulunkatu 19 A 2
2h+k+s
, Kerrostalo
54 m2
Floor 1/5
Kansakoulunkatu 19 A 6
2h+k+s
, Kerrostalo
54 m2
3/5
Kansakoulunkatu 19 A 6
2h+k+s
, Kerrostalo
54 m2
Floor 3/5
Kansakoulunkatu 19 A 8
2h+k+s
, Kerrostalo
54 m2
4/5
Kansakoulunkatu 19 A 8
2h+k+s
, Kerrostalo
54 m2
Floor 4/5
Kansakoulunkatu 21 D 36
2h+k+s
, Kerrostalo
55 m2
2/4
Kansakoulunkatu 21 D 36
2h+k+s
, Kerrostalo
55 m2
Floor 2/4
Kansakoulunkatu 21 D 42
2h+k+s
, Kerrostalo
55 m2
4/4
Kansakoulunkatu 21 D 42
2h+k+s
, Kerrostalo
55 m2
Floor 4/4
Kansakoulunkatu 21 D 39
2h+k+s
, Kerrostalo
55 m2
3/4
Kansakoulunkatu 21 D 39
2h+k+s
, Kerrostalo
55 m2
Floor 3/4
Kansakoulunkatu 21 D 33
2h+k+s
, Kerrostalo
55 m2
1/4
Kansakoulunkatu 21 D 33
2h+k+s
, Kerrostalo
55 m2
Floor 1/4
Kansakoulunkatu 21 D 35
2h+k+s
, Kerrostalo
61.5 m2
1/4
Kansakoulunkatu 21 D 35
2h+k+s
, Kerrostalo
61.5 m2
Floor 1/4
Kansakoulunkatu 21 D 44
2h+k+s
, Kerrostalo
61.5 m2
4/4
Kansakoulunkatu 21 D 44
2h+k+s
, Kerrostalo
61.5 m2
Floor 4/4
Kansakoulunkatu 21 D 41
2h+k+s
, Kerrostalo
61.5 m2
3/4
Kansakoulunkatu 21 D 41
2h+k+s
, Kerrostalo
61.5 m2
Floor 3/4
Kansakoulunkatu 21 D 38
2h+k+s
, Kerrostalo
61.5 m2
2/4
Kansakoulunkatu 21 D 38
2h+k+s
, Kerrostalo
61.5 m2
Floor 2/4
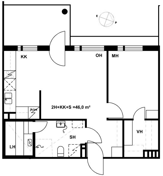
Kansakoulunkatu 21 D 34
2h+kk+s
, Kerrostalo
46 m2
1/4
Kansakoulunkatu 21 D 34
2h+kk+s
, Kerrostalo
46 m2
Floor 1/4
Kansakoulunkatu 21 D 37
2h+kk+s
, Kerrostalo
46 m2
2/4
Kansakoulunkatu 21 D 37
2h+kk+s
, Kerrostalo
46 m2
Floor 2/4
Kansakoulunkatu 21 D 43
2h+kk+s
, Kerrostalo
46 m2
4/4
Kansakoulunkatu 21 D 43
2h+kk+s
, Kerrostalo
46 m2
Floor 4/4
Kansakoulunkatu 21 D 40
2h+kk+s
, Kerrostalo
46 m2
3/4
Kansakoulunkatu 21 D 40
2h+kk+s
, Kerrostalo
46 m2
Floor 3/4
Kansakoulunkatu 19 B 17
2h+kk+s
, Kerrostalo
51 m2
2/5
Kansakoulunkatu 19 B 17
2h+kk+s
, Kerrostalo
51 m2
Floor 2/5
Kansakoulunkatu 19 B 11
2h+kk+s
, Kerrostalo
51 m2
P/5
Kansakoulunkatu 19 B 11
2h+kk+s
, Kerrostalo
51 m2
Floor P/5
Kansakoulunkatu 19 B 20
2h+kk+s
, Kerrostalo
51 m2
3/5
Kansakoulunkatu 19 B 20
2h+kk+s
, Kerrostalo
51 m2
Floor 3/5
Kansakoulunkatu 19 B 14
2h+kk+s
, Kerrostalo
51 m2
1/5
Kansakoulunkatu 19 B 14
2h+kk+s
, Kerrostalo
51 m2
Floor 1/5
Kansakoulunkatu 19 B 15
3h+k+s
, Kerrostalo
74 m2
2/5
Kansakoulunkatu 19 B 15
3h+k+s
, Kerrostalo
74 m2
Floor 2/5
Kansakoulunkatu 19 B 18
3h+k+s
, Kerrostalo
74 m2
3/5
Kansakoulunkatu 19 B 18
3h+k+s
, Kerrostalo
74 m2
Floor 3/5
Kansakoulunkatu 19 B 12
3h+k+s
, Kerrostalo
74 m2
1/5
Kansakoulunkatu 19 B 12
3h+k+s
, Kerrostalo
74 m2
Floor 1/5
Kansakoulunkatu 19 B 9
3h+kk+s
, Kerrostalo
63 m2
P/5
Kansakoulunkatu 19 B 9
3h+kk+s
, Kerrostalo
63 m2
Floor P/5
Kansakoulunkatu 19 A 7
4h+k+s
, Kerrostalo
90 m2
4/5
Kansakoulunkatu 19 A 7
4h+k+s
, Kerrostalo
90 m2
Floor 4/5
Kansakoulunkatu 19 A 1
4h+k+s
, Kerrostalo
90 m2
1/5
Kansakoulunkatu 19 A 1
4h+k+s
, Kerrostalo
90 m2
Floor 1/5
Kansakoulunkatu 19 A 3
4h+k+s
, Kerrostalo
90 m2
2/5
Kansakoulunkatu 19 A 3
4h+k+s
, Kerrostalo
90 m2
Floor 2/5
Kansakoulunkatu 19 A 5
4h+k+s
, Kerrostalo
90 m2
3/5
Kansakoulunkatu 19 A 5
4h+k+s
, Kerrostalo
90 m2
Floor 3/5
Kansakoulunkatu 21 C 26
4h+k+s
, Kerrostalo
95.5 m2
2/4
Kansakoulunkatu 21 C 26
4h+k+s
, Kerrostalo
95.5 m2
Floor 2/4
Kansakoulunkatu 21 C 32
4h+k+s
, Kerrostalo
95.5 m2
4/4
Kansakoulunkatu 21 C 32
4h+k+s
, Kerrostalo
95.5 m2
Floor 4/4
Kansakoulunkatu 21 C 23
4h+k+s
, Kerrostalo
95.5 m2
1/4
Kansakoulunkatu 21 C 23
4h+k+s
, Kerrostalo
95.5 m2
Floor 1/4
Kansakoulunkatu 21 C 29
4h+k+s
, Kerrostalo
95.5 m2
3/4
Kansakoulunkatu 21 C 29
4h+k+s
, Kerrostalo
95.5 m2
Floor 3/4
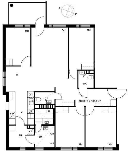
Kansakoulunkatu 21 C 21
5h+k+s
, Kerrostalo
108 m2
1/4
Kansakoulunkatu 21 C 21
5h+k+s
, Kerrostalo
108 m2
Floor 1/4
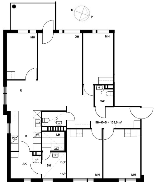
Kansakoulunkatu 21 C 30
5h+k+s
, Kerrostalo
108 m2
4/4
Kansakoulunkatu 21 C 30
5h+k+s
, Kerrostalo
108 m2
Floor 4/4
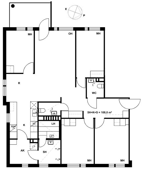
Kansakoulunkatu 21 C 27
5h+k+s
, Kerrostalo
108 m2
3/4
Kansakoulunkatu 21 C 27
5h+k+s
, Kerrostalo
108 m2
Floor 3/4
Kansakoulunkatu 21 C 24
5h+k+s
, Kerrostalo
108 m2
2/4
Kansakoulunkatu 21 C 24
5h+k+s
, Kerrostalo
108 m2
Floor 2/4