Property Introduction
Hyvien kulkuyhteyksien ja palveluiden läheisyydessä sijaitseva rivitalo/luhtitalo alue. Palokan Kauppakeskuksen monipuoliset palvelut, mm. Prisma, Citymarket, K-rauta sekä vaatetuksen ja sisustuksen ja kodintekniikan erikoisliikkeet aivan vieressä. Palokan alueella toimii monipuolinen koulu- ja päiväkotiverkosto.
Why Asuntosäätiö?
We believe that a happy home and quality living are for everyone. We do not seek immediate profit or financial benefit. We use the assets gained from our operations to develop our real estate. Over 33,000 Finns have already chosen a home offered by Asuntosäätiö. Pets are also welcome in all our homes.
Basic house info
- Form of housing Right-of-occupancy
- Average right-of-occupancy payment / jm² 313,89€
- Elevators No
- House sauna No
- Drying room Yes
- Apartment count 33
- Building count 4
- Residence charge / month / jm² 11,48€
- Construction year 1997
- Energy class D
- Heating Kauko
- Parking spaces 38
- Broadband Elisa
- TV-antenna system Kaapeli
- CableTV Elisa
- Roof material Tiili
- House frame material Puu
- Pets Allowed
Apartments and floor plans: Haukkamäentie 4, Luhtikäytävätalo, Piharakennus
Add all the apartment types you want to your application. Your opportunity to get an apartment increases when we are able to offer you all of the apartment types that may be available later on in this property. You are automatically in queue for these apartment types.
Haukkamäentie 4 B 9
1h+kk+s
, Luhtikäytävätalo
32.5 m2
1./2
Haukkamäentie 4 B 9
1h+kk+s
, Luhtikäytävätalo
32.5 m2
Floor 1./2
Haukkamäentie 4 B 12
1h+kk+s
, Luhtikäytävätalo
33.5 m2
/2
Haukkamäentie 4 B 12
1h+kk+s
, Luhtikäytävätalo
33.5 m2
Floor /2
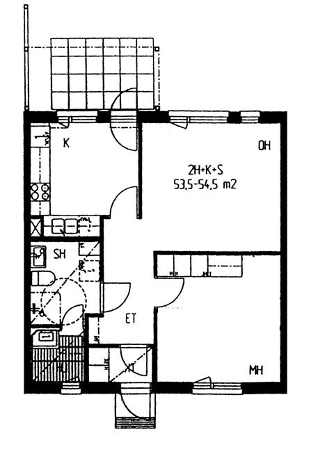
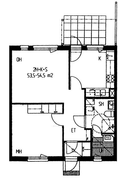
Haukkamäentie 4 C 18
2h+k+s
, Luhtikäytävätalo
53.5 m2
1/2
Haukkamäentie 4 C 18
2h+k+s
, Luhtikäytävätalo
53.5 m2
Floor 1/2
Haukkamäentie 4 C 13
2h+k+s
, Luhtikäytävätalo
53.5 m2
1./2
Haukkamäentie 4 C 13
2h+k+s
, Luhtikäytävätalo
53.5 m2
Floor 1./2
Haukkamäentie 4 C 20
2h+k+s
, Luhtikäytävätalo
53.5 m2
2./2
Haukkamäentie 4 C 20
2h+k+s
, Luhtikäytävätalo
53.5 m2
Floor 2./2
Haukkamäentie 4 D 23
2h+k+s
, Luhtikäytävätalo
53.5 m2
1./2
Haukkamäentie 4 D 23
2h+k+s
, Luhtikäytävätalo
53.5 m2
Floor 1./2
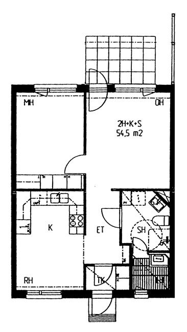
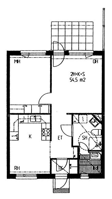
Haukkamäentie 4 C 15
2h+k+s
, Luhtikäytävätalo
54.5 m2
/2
Haukkamäentie 4 C 15
2h+k+s
, Luhtikäytävätalo
54.5 m2
Floor /2
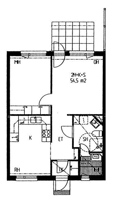
Haukkamäentie 4 D 25
2h+k+s
, Luhtikäytävätalo
54.5 m2
2./2
Haukkamäentie 4 D 25
2h+k+s
, Luhtikäytävätalo
54.5 m2
Floor 2./2
Haukkamäentie 4 D 29
2h+k+s
, Luhtikäytävätalo
54.5 m2
2/2
Haukkamäentie 4 D 29
2h+k+s
, Luhtikäytävätalo
54.5 m2
Floor 2/2
Haukkamäentie 4 D 27
2h+k+s
, Luhtikäytävätalo
54.5 m2
1./2
Haukkamäentie 4 D 27
2h+k+s
, Luhtikäytävätalo
54.5 m2
Floor 1./2
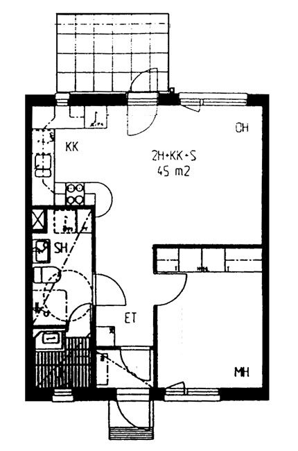
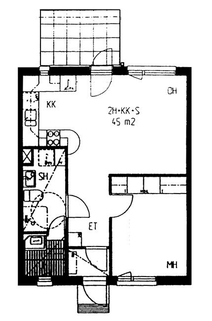
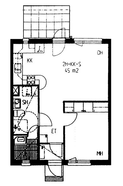
Haukkamäentie 4 C 19
2h+kk+s
, Luhtikäytävätalo
45 m2
2./2
Haukkamäentie 4 C 19
2h+kk+s
, Luhtikäytävätalo
45 m2
Floor 2./2
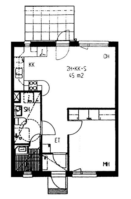
Haukkamäentie 4 C 17
2h+kk+s
, Luhtikäytävätalo
45 m2
/2
Haukkamäentie 4 C 17
2h+kk+s
, Luhtikäytävätalo
45 m2
Floor /2
Haukkamäentie 4 C 16
2h+kk+s
, Luhtikäytävätalo
45 m2
2/2
Haukkamäentie 4 C 16
2h+kk+s
, Luhtikäytävätalo
45 m2
Floor 2/2
Haukkamäentie 4 C 14
2h+kk+s
, Luhtikäytävätalo
45 m2
1./2
Haukkamäentie 4 C 14
2h+kk+s
, Luhtikäytävätalo
45 m2
Floor 1./2
Haukkamäentie 4 D 24
2h+kk+s
, Luhtikäytävätalo
45 m2
1./2
Haukkamäentie 4 D 24
2h+kk+s
, Luhtikäytävätalo
45 m2
Floor 1./2
Haukkamäentie 4 D 26
2h+kk+s
, Luhtikäytävätalo
45 m2
2./2
Haukkamäentie 4 D 26
2h+kk+s
, Luhtikäytävätalo
45 m2
Floor 2./2
Haukkamäentie 4 B 7
2h+kk+s
, Luhtikäytävätalo
46 m2
/2
Haukkamäentie 4 B 7
2h+kk+s
, Luhtikäytävätalo
46 m2
Floor /2
Haukkamäentie 4 B 8
2h+kk+s
, Luhtikäytävätalo
46 m2
/2
Haukkamäentie 4 B 8
2h+kk+s
, Luhtikäytävätalo
46 m2
Floor /2
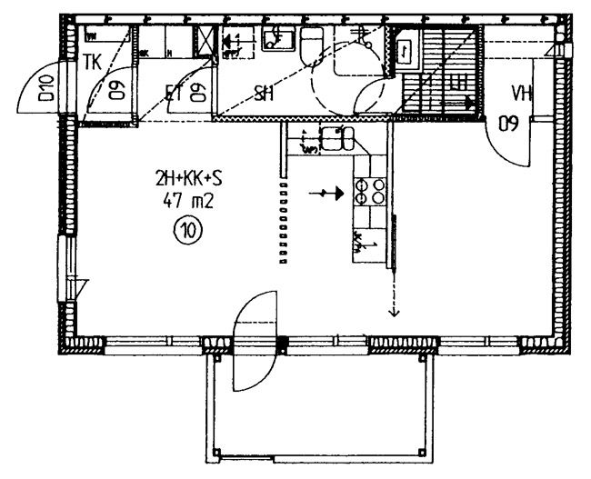
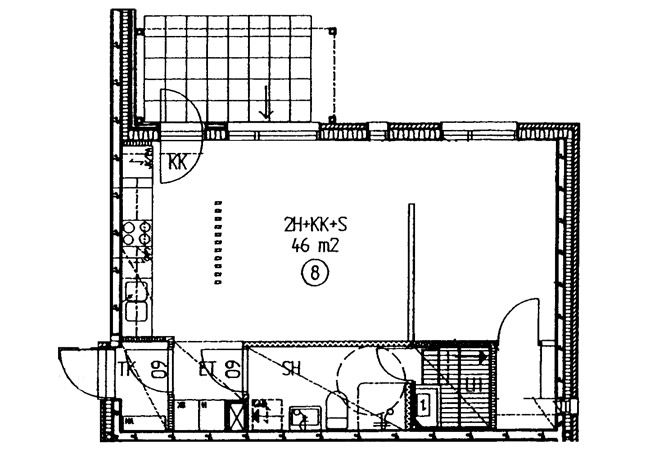
Haukkamäentie 4 B 11
2h+kk+s
, Luhtikäytävätalo
47 m2
Floor 2/2
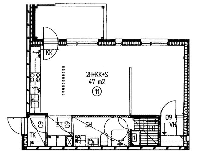
Haukkamäentie 4 B 10
2h+kk+s
, Luhtikäytävätalo
47 m2
2/2
Haukkamäentie 4 B 10
2h+kk+s
, Luhtikäytävätalo
47 m2
Floor 2/2
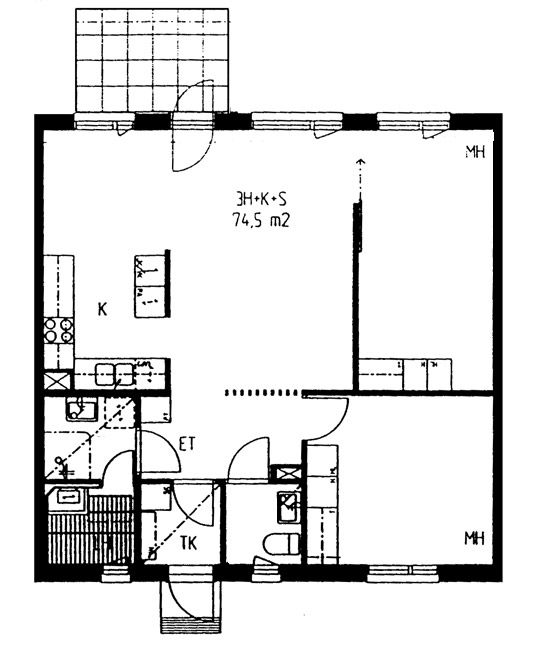
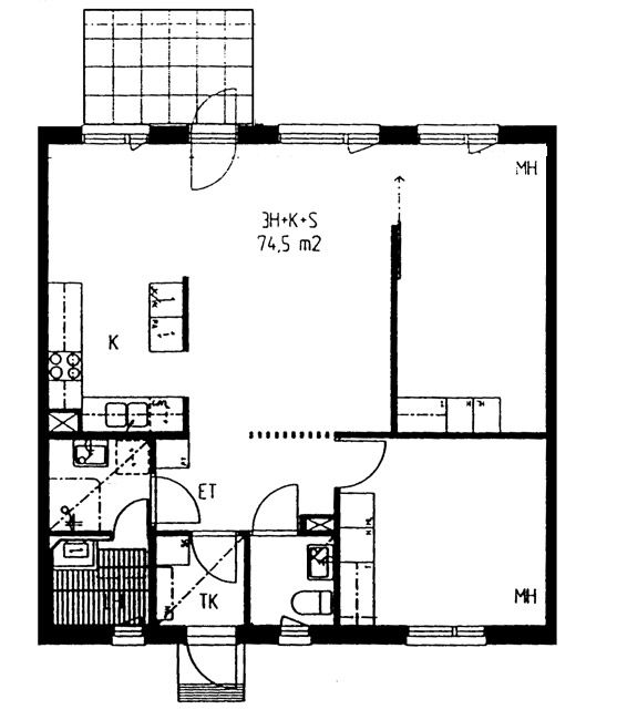
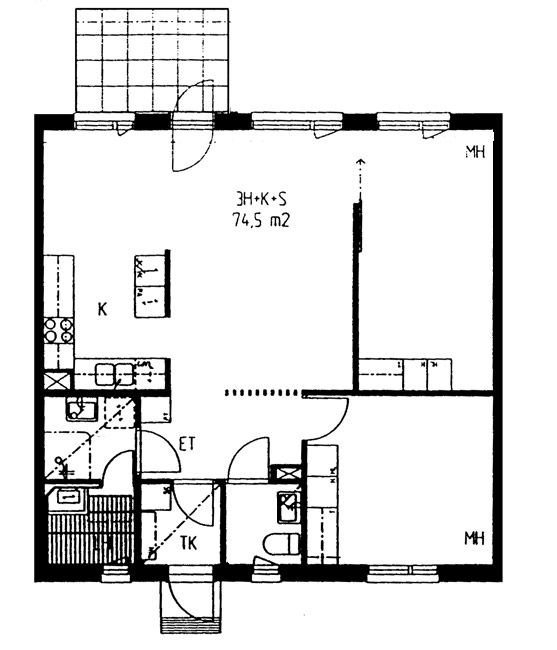
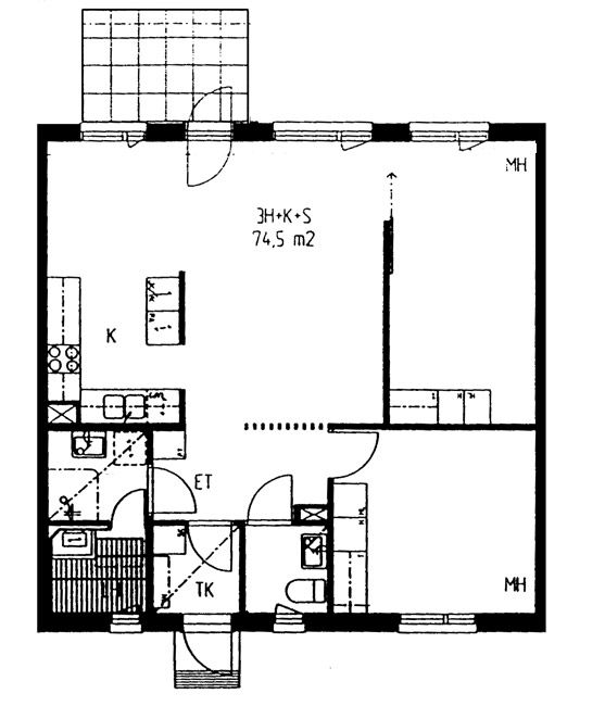
Haukkamäentie 4 D 30
3h+k+s
, Luhtikäytävätalo
74.5 m2
2./2
Haukkamäentie 4 D 30
3h+k+s
, Luhtikäytävätalo
74.5 m2
Floor 2./2
Haukkamäentie 4 D 28
3h+k+s
, Luhtikäytävätalo
74.5 m2
1/2
Haukkamäentie 4 D 28
3h+k+s
, Luhtikäytävätalo
74.5 m2
Floor 1/2
Haukkamäentie 4 A 4
3h+k+s
, Luhtikäytävätalo
75 m2
1./2
Haukkamäentie 4 A 4
3h+k+s
, Luhtikäytävätalo
75 m2
Floor 1./2
Haukkamäentie 4 A 5
3h+k+s
, Luhtikäytävätalo
75 m2
2./2
Haukkamäentie 4 A 5
3h+k+s
, Luhtikäytävätalo
75 m2
Floor 2./2
Haukkamäentie 4 A 3
3h+k+s
, Luhtikäytävätalo
75 m2
/2
Haukkamäentie 4 A 3
3h+k+s
, Luhtikäytävätalo
75 m2
Floor /2
Haukkamäentie 4 A 6
3h+k+s
, Luhtikäytävätalo
76 m2
2./2
Haukkamäentie 4 A 6
3h+k+s
, Luhtikäytävätalo
76 m2
Floor 2./2
Haukkamäentie 4 C 21
4h+k+s
, Luhtikäytävätalo
89 m2
1-2/2
Haukkamäentie 4 C 21
4h+k+s
, Luhtikäytävätalo
89 m2
Floor 1-2/2
Haukkamäentie 4 D 32
4h+k+s
, Luhtikäytävätalo
89 m2
/2
Haukkamäentie 4 D 32
4h+k+s
, Luhtikäytävätalo
89 m2
Floor /2
Haukkamäentie 4 D 31
4h+k+s
, Luhtikäytävätalo
89 m2
1-2./2
Haukkamäentie 4 D 31
4h+k+s
, Luhtikäytävätalo
89 m2
Floor 1-2./2
Haukkamäentie 4 C 22
4h+k+s
, Luhtikäytävätalo
90 m2
/2
Haukkamäentie 4 C 22
4h+k+s
, Luhtikäytävätalo
90 m2
Floor /2
Haukkamäentie 4 D 33
4h+k+s
, Luhtikäytävätalo
90 m2
/2
Haukkamäentie 4 D 33
4h+k+s
, Luhtikäytävätalo
90 m2
Floor /2
Haukkamäentie 4 A 2
4h+k+s
, Luhtikäytävätalo
90.5 m2
/2
Haukkamäentie 4 A 2
4h+k+s
, Luhtikäytävätalo
90.5 m2
Floor /2
Haukkamäentie 4 A 1
4h+k+s
, Luhtikäytävätalo
91.5 m2
1-2./2
Haukkamäentie 4 A 1
4h+k+s
, Luhtikäytävätalo
91.5 m2
Floor 1-2./2

