Property Introduction
Valssikuja 5 on päättyvän kadun päässä omassa rauhassaan, metsän ympäröimänä. Asunnot ovat 2-4 huoneen ja keittiön asuntoja, joissa kaikissa on oma sauna ja parveke. Osassa isoja asuntoja on sekä parveke että oma pikkupiha.
Jyväsjärvi rantaraitteineen muutaman sadan metrin päässä. Läheltä löytyy koulu, perhepuisto, useampi ruokakauppa, liikuntapaikkoja ja koirapuisto.
Why Asuntosäätiö?
We believe that a happy home and quality living are for everyone. We do not seek immediate profit or financial benefit. We use the assets gained from our operations to develop our real estate. Over 33,000 Finns have already chosen a home offered by Asuntosäätiö. Pets are also welcome in all our homes.
Basic house info
- Form of housing Right-of-occupancy
- Average right-of-occupancy payment / jm² 348,42€
- Elevators No
- House sauna No
- Drying room Yes
- Apartment count 23
- Building count 1
- Residence charge / month / jm² 16,21€
- Construction year 2001
- Staircases 2
- Energy class D
- Heating Kauko
- Parking spaces 23
- Broadband Elisa
- TV-antenna system Kaapeli
- CableTV Elisa
- Roof material Pelti
- House frame material Betoni
- Pets Allowed
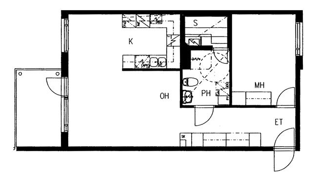
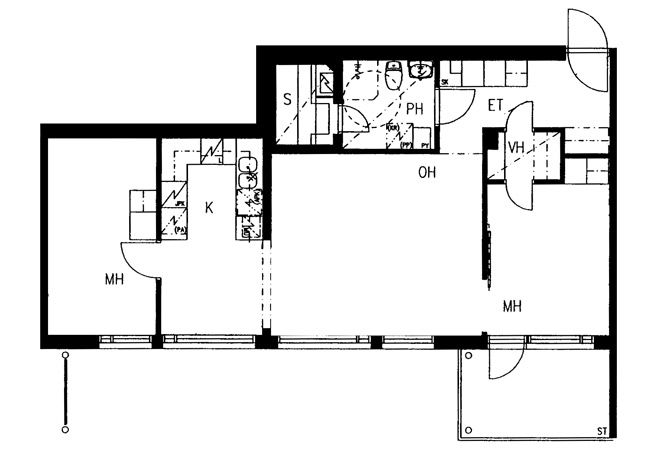
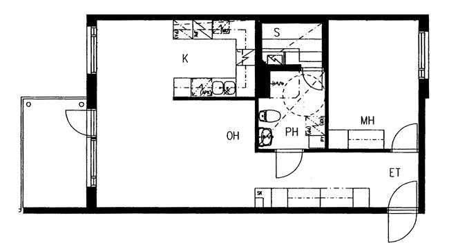
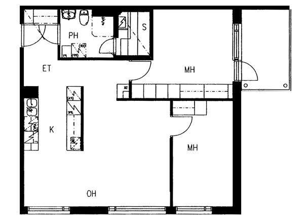
Apartments and floor plans: Valssikuja 5, Kerrostalo, Piharakennus
Add all the apartment types you want to your application. Your opportunity to get an apartment increases when we are able to offer you all of the apartment types that may be available later on in this property. You are automatically in queue for these apartment types.
Valssikuja 5 B 17
2h+k+s
, Kerrostalo
58.5 m2
2/3
Valssikuja 5 B 17
2h+k+s
, Kerrostalo
58.5 m2
Floor 2/3
Valssikuja 5 B 21
2h+k+s
, Kerrostalo
58.5 m2
3/3
Valssikuja 5 B 21
2h+k+s
, Kerrostalo
58.5 m2
Floor 3/3
Valssikuja 5 A 5
2h+kk+s
, Kerrostalo
47.5 m2
2/3
Valssikuja 5 A 5
2h+kk+s
, Kerrostalo
47.5 m2
Floor 2/3
Valssikuja 5 A 9
2h+kk+s
, Kerrostalo
47.5 m2
3/3
Valssikuja 5 A 9
2h+kk+s
, Kerrostalo
47.5 m2
Floor 3/3
Valssikuja 5 A 2
2h+kk+s
, Kerrostalo
47.5 m2
1/3
Valssikuja 5 A 2
2h+kk+s
, Kerrostalo
47.5 m2
Floor 1/3
Valssikuja 5 B 15
2h+kk+s
, Kerrostalo
47.5 m2
2/3
Valssikuja 5 B 15
2h+kk+s
, Kerrostalo
47.5 m2
Floor 2/3
Valssikuja 5 B 12
2h+kk+s
, Kerrostalo
47.5 m2
1/3
Valssikuja 5 B 12
2h+kk+s
, Kerrostalo
47.5 m2
Floor 1/3
Valssikuja 5 B 19
2h+kk+s
, Kerrostalo
47.5 m2
3/3
Valssikuja 5 B 19
2h+kk+s
, Kerrostalo
47.5 m2
Floor 3/3
Valssikuja 5 A 1
3h+k+s
, Kerrostalo
70.5 m2
1/3
Valssikuja 5 A 1
3h+k+s
, Kerrostalo
70.5 m2
Floor 1/3
Valssikuja 5 A 10
3h+k+s
, Kerrostalo
72 m2
3/3
Valssikuja 5 A 10
3h+k+s
, Kerrostalo
72 m2
Floor 3/3
Valssikuja 5 A 6
3h+k+s
, Kerrostalo
72 m2
2/3
Valssikuja 5 A 6
3h+k+s
, Kerrostalo
72 m2
Floor 2/3
Valssikuja 5 A 3
3h+k+s
, Kerrostalo
72 m2
1/3
Valssikuja 5 A 3
3h+k+s
, Kerrostalo
72 m2
Floor 1/3
Valssikuja 5 B 16
3h+k+s
, Kerrostalo
72 m2
2/3
Valssikuja 5 B 16
3h+k+s
, Kerrostalo
72 m2
Floor 2/3
Valssikuja 5 B 13
3h+k+s
, Kerrostalo
74 m2
1/3
Valssikuja 5 B 13
3h+k+s
, Kerrostalo
74 m2
Floor 1/3
Valssikuja 5 A 11
3h+k+s
, Kerrostalo
77 m2
3/3
Valssikuja 5 A 11
3h+k+s
, Kerrostalo
77 m2
Floor 3/3
Valssikuja 5 A 7
3h+k+s
, Kerrostalo
77 m2
2/3
Valssikuja 5 A 7
3h+k+s
, Kerrostalo
77 m2
Floor 2/3
Valssikuja 5 A 4
4h+k+s
, Kerrostalo
85 m2
2/3
Valssikuja 5 A 4
4h+k+s
, Kerrostalo
85 m2
Floor 2/3
Valssikuja 5 A 8
4h+k+s
, Kerrostalo
92 m2
3/3
Valssikuja 5 A 8
4h+k+s
, Kerrostalo
92 m2
Floor 3/3
Valssikuja 5 B 18
4h+k+s
, Kerrostalo
92 m2
3/3
Valssikuja 5 B 18
4h+k+s
, Kerrostalo
92 m2
Floor 3/3
Valssikuja 5 C 22
4h+k+s
, Kerrostalo
95 m2
2-3/3
Valssikuja 5 C 22
4h+k+s
, Kerrostalo
95 m2
Floor 2-3/3
Valssikuja 5 C 23
4h+k+s
, Kerrostalo
95 m2
2-3/3
Valssikuja 5 C 23
4h+k+s
, Kerrostalo
95 m2
Floor 2-3/3

