Property Introduction
Kerrostalokohde vesitornin vieressä, jossa on asuntoja kaksioista jopa kuuden huoneen asuntoon asti. Kaikissa asunnoissa on oma sauna ja kaksitasoisissa asunoissa kaksi parveketta. Pohjakerroksen asunnoissa on terassipiha. Talossa ei ole hissiä.
Talon on peruskorjauksessa vuonna 2025 uusittiin mittavasti asuntojen pintoja, kalusteita ja kodinkoneita. Kaikkiin asuntoihin on asennettu myös astianpesukoneet. Parvekelasitukset ja sälekaihtimet eivät sisältyneet urakkaan, mutta aikaisemmin asennetut on jätetty paikoilleen ja ovat asukkaan kunnossapitovastuulla.
Kohteessa on omatoimiviherhoito.
Why Asuntosäätiö?
We believe that a happy home and quality living are for everyone. We do not seek immediate profit or financial benefit. We use the assets gained from our operations to develop our real estate. Over 33,000 Finns have already chosen a home offered by Asuntosäätiö. Pets are also welcome in all our homes.
Basic house info
- Form of housing Right-of-occupancy
- Average right-of-occupancy payment / jm² 354,04€
- Elevators No
- House sauna No
- Drying room Yes
- Apartment count 22
- Building count 1
- Residence charge / month / jm² 14,15€
- Construction year 1997
- Renovated 2025
- Staircases 2
- Energy class E
- Heating Kauko
- Parking spaces 22
- Hobby room 1
- Broadband Elisa
- TV-antenna system Kaapeli
- CableTV Elisa
- Roof material Tiili
- House frame material Betoni
- Pets Allowed
Apartments and floor plans: Iso-Hollonkuja 8, Kerrostalo, Piharakennus
Add all the apartment types you want to your application. Your opportunity to get an apartment increases when we are able to offer you all of the apartment types that may be available later on in this property. You are automatically in queue for these apartment types.
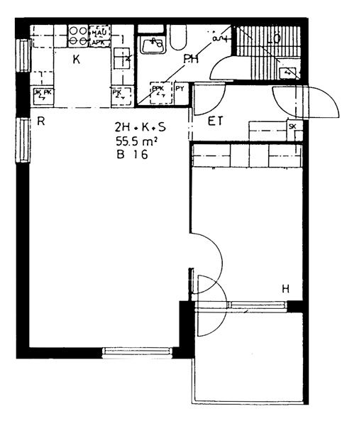
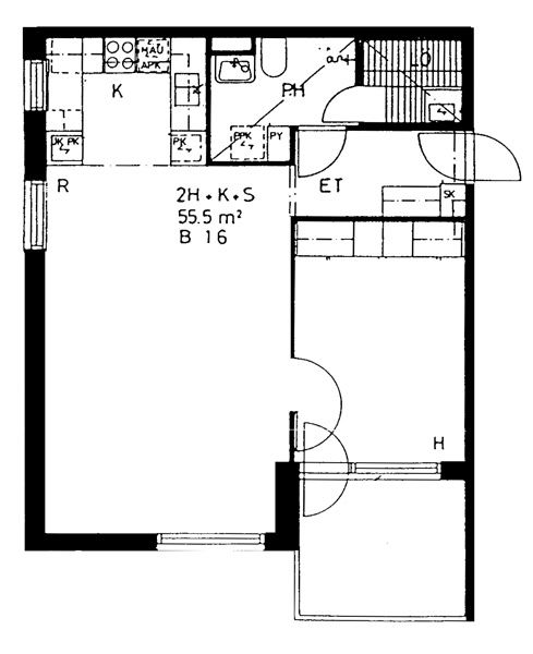
Iso-Hollonkuja 8 B 16
2h+k+s
, Kerrostalo
55.5 m2
2/5
Iso-Hollonkuja 8 B 16
2h+k+s
, Kerrostalo
55.5 m2
Floor 2/5
Iso-Hollonkuja 8 B 13
2h+k+s
, Kerrostalo
55.5 m2
Floor 1/5
Iso-Hollonkuja 8 B 20
2h+k+s
, Kerrostalo
55.5 m2
3/5
Iso-Hollonkuja 8 B 20
2h+k+s
, Kerrostalo
55.5 m2
Floor 3/5
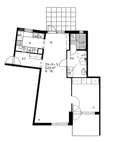
Iso-Hollonkuja 8 B 18
2h+k+s
, Kerrostalo
62.5 m2
2/5
Iso-Hollonkuja 8 B 18
2h+k+s
, Kerrostalo
62.5 m2
Floor 2/5
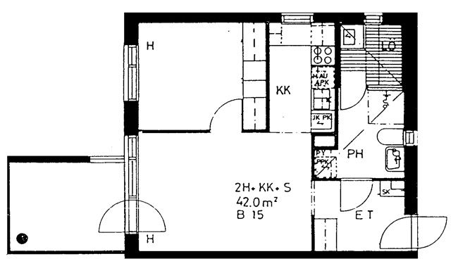
Iso-Hollonkuja 8 B 12
2h+kk+s
, Kerrostalo
42 m2
1/5
Iso-Hollonkuja 8 B 12
2h+kk+s
, Kerrostalo
42 m2
Floor 1/5
Iso-Hollonkuja 8 B 19
2h+kk+s
, Kerrostalo
42 m2
3/5
Iso-Hollonkuja 8 B 19
2h+kk+s
, Kerrostalo
42 m2
Floor 3/5
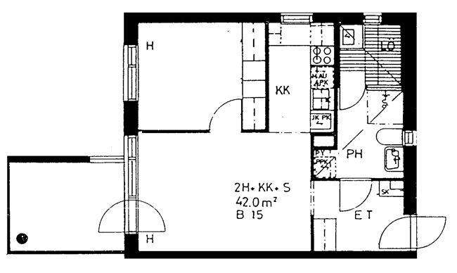
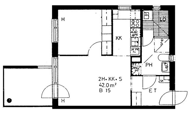
Iso-Hollonkuja 8 B 15
2h+kk+s
, Kerrostalo
42 m2
2/5
Iso-Hollonkuja 8 B 15
2h+kk+s
, Kerrostalo
42 m2
Floor 2/5
Iso-Hollonkuja 8 B 17
2h+kk+s
, Kerrostalo
43 m2
2/5
Iso-Hollonkuja 8 B 17
2h+kk+s
, Kerrostalo
43 m2
Floor 2/5
Iso-Hollonkuja 8 B 21
2h+kk+s
, Kerrostalo
43 m2
3/5
Iso-Hollonkuja 8 B 21
2h+kk+s
, Kerrostalo
43 m2
Floor 3/5
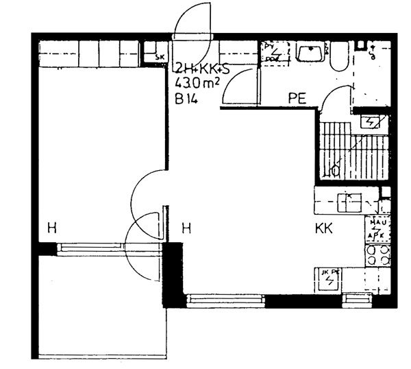
Iso-Hollonkuja 8 B 14
2h+kk+s
, Kerrostalo
43 m2
1/5
Iso-Hollonkuja 8 B 14
2h+kk+s
, Kerrostalo
43 m2
Floor 1/5
Iso-Hollonkuja 8 A 2
2h+kk+s
, Kerrostalo
43 m2
1/5
Iso-Hollonkuja 8 A 2
2h+kk+s
, Kerrostalo
43 m2
Floor 1/5
Iso-Hollonkuja 8 A 6
2h+kk+s
, Kerrostalo
43 m2
2/5
Iso-Hollonkuja 8 A 6
2h+kk+s
, Kerrostalo
43 m2
Floor 2/5
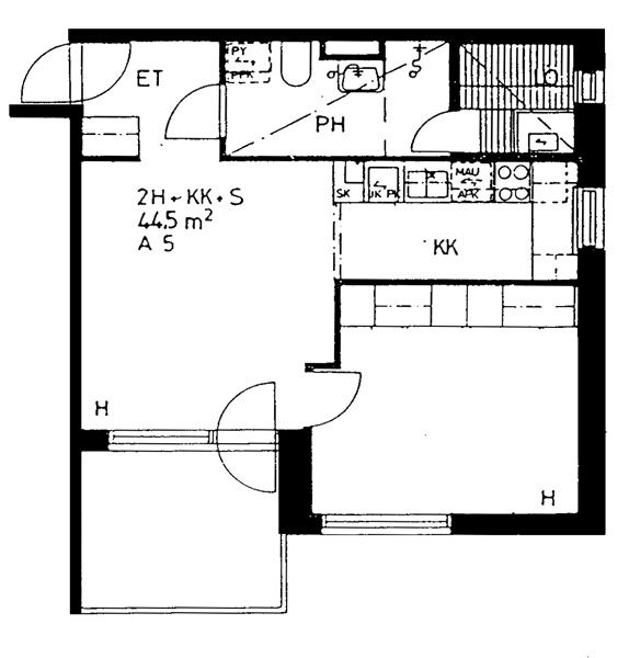
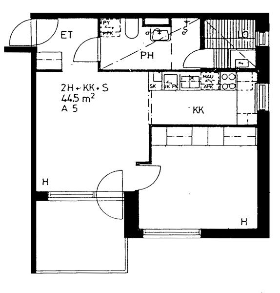
Iso-Hollonkuja 8 A 5
2h+kk+s
, Kerrostalo
44.5 m2
2/5
Iso-Hollonkuja 8 A 5
2h+kk+s
, Kerrostalo
44.5 m2
Floor 2/5
Iso-Hollonkuja 8 A 1
2h+kk+s
, Kerrostalo
44.5 m2
1/5
Iso-Hollonkuja 8 A 1
2h+kk+s
, Kerrostalo
44.5 m2
Floor 1/5
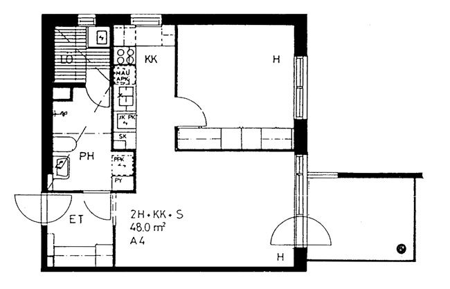
Iso-Hollonkuja 8 A 4
2h+kk+s
, Kerrostalo
48 m2
2/5
Iso-Hollonkuja 8 A 4
2h+kk+s
, Kerrostalo
48 m2
Floor 2/5
Iso-Hollonkuja 8 A 7
3h+k+s
, Kerrostalo
75 m2
2/5
Iso-Hollonkuja 8 A 7
3h+k+s
, Kerrostalo
75 m2
Floor 2/5
Iso-Hollonkuja 8 A 3
3h+k+s
, Kerrostalo
75 m2
1/5
Iso-Hollonkuja 8 A 3
3h+k+s
, Kerrostalo
75 m2
Floor 1/5
Iso-Hollonkuja 8 A 11
3h+k+s
, Kerrostalo
75 m2
3/5
Iso-Hollonkuja 8 A 11
3h+k+s
, Kerrostalo
75 m2
Floor 3/5
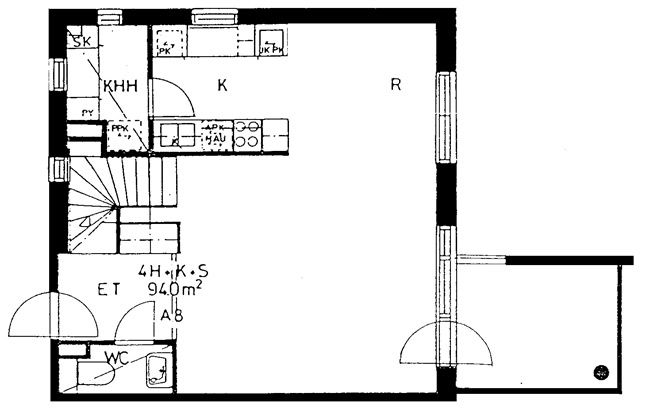
Iso-Hollonkuja 8 A 8
4h+k+s
, Kerrostalo
94 m2
3-4/5
Iso-Hollonkuja 8 A 8
4h+k+s
, Kerrostalo
94 m2
Floor 3-4/5
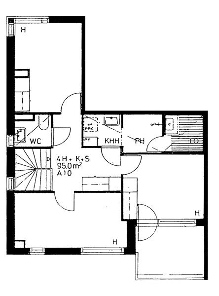
Iso-Hollonkuja 8 A 10
4h+k+s
, Kerrostalo
95 m2
3-4/5
Iso-Hollonkuja 8 A 10
4h+k+s
, Kerrostalo
95 m2
Floor 3-4/5
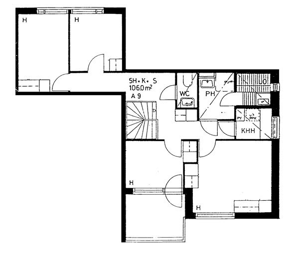
Iso-Hollonkuja 8 A 9
5h+k+s
, Kerrostalo
106 m2
3-4/5
Iso-Hollonkuja 8 A 9
5h+k+s
, Kerrostalo
106 m2
Floor 3-4/5
Iso-Hollonkuja 8 B 22
6h+k+s
, Kerrostalo
110 m2
3-4/5
Iso-Hollonkuja 8 B 22
6h+k+s
, Kerrostalo
110 m2
Floor 3-4/5
