Property Introduction
Pienkerrostalokohde viihtyisällä ja rauhallisella Kalevan alueella, parin kilometrin etäisyydellä Keravan keskustasta. Tästä yhtiöstä löytyy asuntoja kaksioista rivitalonomaisiin neliöihin. Asuntoa kohden on saatavilla ainakin yksi autopaikka. Talossa ei ole hissiä.
Koulut ja päiväkodit sekä Keravan Urheilupuisto ovat lähellä.
Why Asuntosäätiö?
We believe that a happy home and quality living are for everyone. We do not seek immediate profit or financial benefit. We use the assets gained from our operations to develop our real estate. Over 33,000 Finns have already chosen a home offered by Asuntosäätiö. Pets are also welcome in all our homes.
Basic house info
- Form of housing Right-of-occupancy
- Average right-of-occupancy payment / jm² 393,92€
- Elevators No
- House sauna No
- Drying room Yes
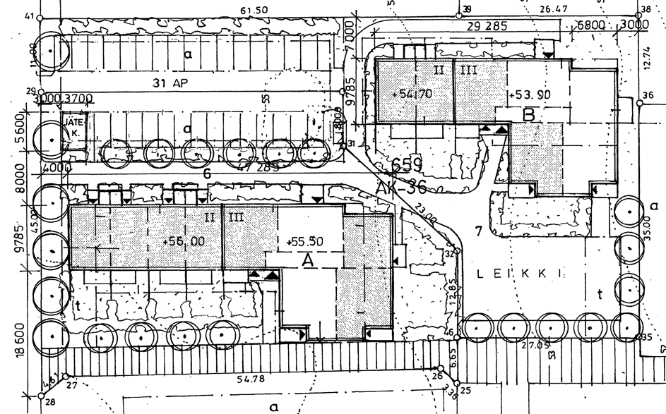
- Apartment count 31
- Building count 2
- Residence charge / month / jm² 12,57€
- Construction year 2001
- Staircases 3
- Energy class E
- Heating Kauko
- Parking spaces 31
- Clubroom 1
- Broadband Elisa
- TV-antenna system Kaapeli
- CableTV Elisa
- Roof material Tiili
- House frame material Betoni
- Pets Allowed
Apartments and floor plans: Vasamakatu 5-7, Kerrostalo, Piharakennus
Add all the apartment types you want to your application. Your opportunity to get an apartment increases when we are able to offer you all of the apartment types that may be available later on in this property. You are automatically in queue for these apartment types.
Vasamakatu 5-7 A 13
2h+k+s
, Kerrostalo
57.5 m2
3/3
Vasamakatu 5-7 A 13
2h+k+s
, Kerrostalo
57.5 m2
Floor 3/3
Vasamakatu 5-7 A 8
2h+k+s
, Kerrostalo
57.5 m2
2/3
Vasamakatu 5-7 A 8
2h+k+s
, Kerrostalo
57.5 m2
Floor 2/3
Vasamakatu 5-7 B 22
2h+k+s
, Kerrostalo
57.5 m2
2/3
Vasamakatu 5-7 B 22
2h+k+s
, Kerrostalo
57.5 m2
Floor 2/3
Vasamakatu 5-7 B 27
2h+k+s
, Kerrostalo
57.5 m2
3/3
Vasamakatu 5-7 B 27
2h+k+s
, Kerrostalo
57.5 m2
Floor 3/3
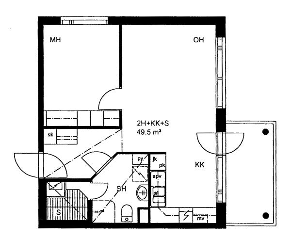
Vasamakatu 5-7 A 6
2h+kk+s
, Kerrostalo
49.5 m2
1/3
Vasamakatu 5-7 A 6
2h+kk+s
, Kerrostalo
49.5 m2
Floor 1/3
Vasamakatu 5-7 A 14
2h+kk+s
, Kerrostalo
49.5 m2
3/3
Vasamakatu 5-7 A 14
2h+kk+s
, Kerrostalo
49.5 m2
Floor 3/3
Vasamakatu 5-7 A 9
2h+kk+s
, Kerrostalo
49.5 m2
2/3
Vasamakatu 5-7 A 9
2h+kk+s
, Kerrostalo
49.5 m2
Floor 2/3
Vasamakatu 5-7 B 28
2h+kk+s
, Kerrostalo
49.5 m2
3/3
Vasamakatu 5-7 B 28
2h+kk+s
, Kerrostalo
49.5 m2
Floor 3/3
Vasamakatu 5-7 B 23
2h+kk+s
, Kerrostalo
49.5 m2
2/3
Vasamakatu 5-7 B 23
2h+kk+s
, Kerrostalo
49.5 m2
Floor 2/3
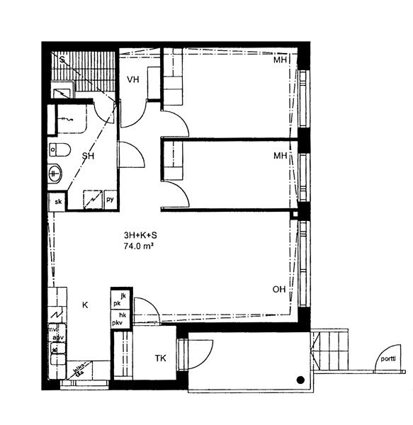
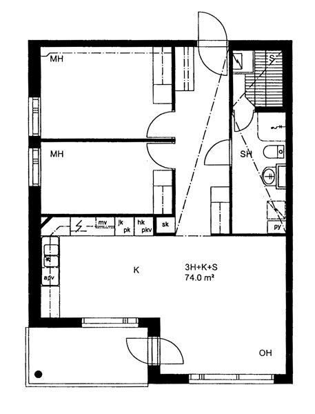
Vasamakatu 5-7 A 16
3h+k+s
, Kerrostalo
74 m2
3/3
Vasamakatu 5-7 A 16
3h+k+s
, Kerrostalo
74 m2
Floor 3/3
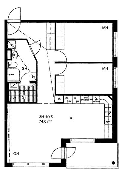
Vasamakatu 5-7 A 15
3h+k+s
, Kerrostalo
74 m2
3/3
Vasamakatu 5-7 A 15
3h+k+s
, Kerrostalo
74 m2
Floor 3/3
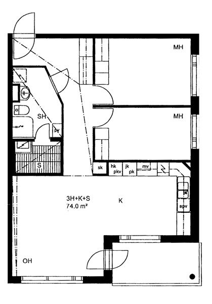
Vasamakatu 5-7 A 11
3h+k+s
, Kerrostalo
74 m2
2/3
Vasamakatu 5-7 A 11
3h+k+s
, Kerrostalo
74 m2
Floor 2/3
Vasamakatu 5-7 A 7
3h+k+s
, Kerrostalo
74 m2
1/3
Vasamakatu 5-7 A 7
3h+k+s
, Kerrostalo
74 m2
Floor 1/3
Vasamakatu 5-7 B 21
3h+k+s
, Kerrostalo
74 m2
1/3
Vasamakatu 5-7 B 21
3h+k+s
, Kerrostalo
74 m2
Floor 1/3
Vasamakatu 5-7 B 25
3h+k+s
, Kerrostalo
74 m2
2/3
Vasamakatu 5-7 B 25
3h+k+s
, Kerrostalo
74 m2
Floor 2/3
Vasamakatu 5-7 B 29
3h+k+s
, Kerrostalo
74 m2
3/3
Vasamakatu 5-7 B 29
3h+k+s
, Kerrostalo
74 m2
Floor 3/3
Vasamakatu 5-7 B 30
3h+k+s
, Kerrostalo
74 m2
3/3
Vasamakatu 5-7 B 30
3h+k+s
, Kerrostalo
74 m2
Floor 3/3
Vasamakatu 5-7 B 24
3h+k+s
, Kerrostalo
74 m2
2/3
Vasamakatu 5-7 B 24
3h+k+s
, Kerrostalo
74 m2
Floor 2/3
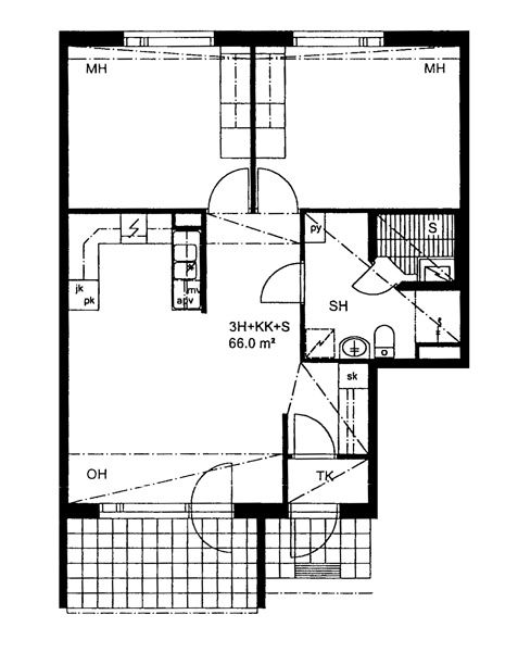
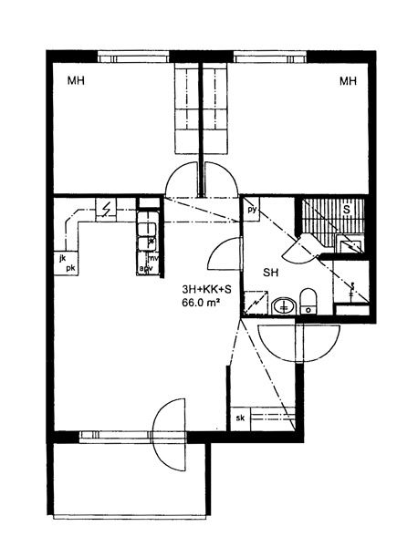
Vasamakatu 5-7 A 5
3h+kk+s
, Kerrostalo
66 m2
1/3
Vasamakatu 5-7 A 5
3h+kk+s
, Kerrostalo
66 m2
Floor 1/3
Vasamakatu 5-7 A 12
3h+kk+s
, Kerrostalo
66 m2
2/3
Vasamakatu 5-7 A 12
3h+kk+s
, Kerrostalo
66 m2
Floor 2/3
Vasamakatu 5-7 A 17
3h+kk+s
, Kerrostalo
66 m2
3/3
Vasamakatu 5-7 A 17
3h+kk+s
, Kerrostalo
66 m2
Floor 3/3
Vasamakatu 5-7 B 31
3h+kk+s
, Kerrostalo
66 m2
3/3
Vasamakatu 5-7 B 31
3h+kk+s
, Kerrostalo
66 m2
Floor 3/3
Vasamakatu 5-7 B 26
3h+kk+s
, Kerrostalo
66 m2
2/3
Vasamakatu 5-7 B 26
3h+kk+s
, Kerrostalo
66 m2
Floor 2/3
Vasamakatu 5-7 A 1
4h+k+s
, Kerrostalo
95.5 m2
1-2/3
Vasamakatu 5-7 A 1
4h+k+s
, Kerrostalo
95.5 m2
Floor 1-2/3
Vasamakatu 5-7 A 3
4h+k+s
, Kerrostalo
95.5 m2
1-2/3
Vasamakatu 5-7 A 3
4h+k+s
, Kerrostalo
95.5 m2
Floor 1-2/3
Vasamakatu 5-7 A 2
4h+k+s
, Kerrostalo
95.5 m2
1-2/3
Vasamakatu 5-7 A 2
4h+k+s
, Kerrostalo
95.5 m2
Floor 1-2/3
Vasamakatu 5-7 A 4
4h+k+s
, Kerrostalo
95.5 m2
1-2/3
Vasamakatu 5-7 A 4
4h+k+s
, Kerrostalo
95.5 m2
Floor 1-2/3
Vasamakatu 5-7 B 18
4h+k+s
, Kerrostalo
95.5 m2
1-2/3
Vasamakatu 5-7 B 18
4h+k+s
, Kerrostalo
95.5 m2
Floor 1-2/3
Vasamakatu 5-7 B 19
4h+k+s
, Kerrostalo
95.5 m2
1-2/3
Vasamakatu 5-7 B 19
4h+k+s
, Kerrostalo
95.5 m2
Floor 1-2/3

