Property Introduction
Lavansaarentie 3-5 valmistui Kotkan asuntomessuille, merelliseen Hirssaareen, parin kilometrin päähän keskustasta.
Lapsiystävällisellä alueella sijaitsee päiväkoti, lähiliikuntapaikka ja kauppa. Hirssaaressa on mukava lenkkeillä luonnossa tai istua veden äärellä veneitä ja alati vaihtuvaa maisemaa katsellen.
Why Asuntosäätiö?
We believe that a happy home and quality living are for everyone. We do not seek immediate profit or financial benefit. We use the assets gained from our operations to develop our real estate. Over 33,000 Finns have already chosen a home offered by Asuntosäätiö. Pets are also welcome in all our homes.
Basic house info
- Form of housing Right-of-occupancy
- Average right-of-occupancy payment / jm² 380,06€
- Elevators No
- House sauna No
- Apartment count 18
- Building count 2
- Residence charge / month / jm² 11,92€
- Construction year 2002
- Energy class D
- Heating Kauko
- Parking spaces 18
- Broadband Elisa
- TV-antenna system Kaapeli
- CableTV Elisa
- Roof material Huopa
- House frame material Betoni
- Pets Allowed
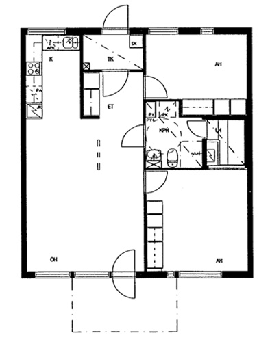
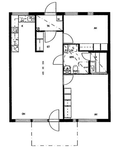
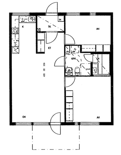
Apartments and floor plans: Lavansaarentie 3, Pienkerrostalo, Piharakennus
Add all the apartment types you want to your application. Your opportunity to get an apartment increases when we are able to offer you all of the apartment types that may be available later on in this property. You are automatically in queue for these apartment types.
Lavansaarentie 3-5 B 13
2h+k+s
, Pienkerrostalo
54 m2
I/2
Lavansaarentie 3-5 B 13
2h+k+s
, Pienkerrostalo
54 m2
Floor I/2
Lavansaarentie 3-5 A 4
2h+k+s
, Pienkerrostalo
54 m2
I/2
Lavansaarentie 3-5 A 4
2h+k+s
, Pienkerrostalo
54 m2
Floor I/2
Lavansaarentie 3-5 A 8
2h+k+s
, Pienkerrostalo
54 m2
I/2
Lavansaarentie 3-5 A 8
2h+k+s
, Pienkerrostalo
54 m2
Floor I/2
Lavansaarentie 3-5 A 5
2h+k+s
, Pienkerrostalo
54 m2
II/2
Lavansaarentie 3-5 A 5
2h+k+s
, Pienkerrostalo
54 m2
Floor II/2
Lavansaarentie 3-5 B 17
2h+k+s
, Pienkerrostalo
54 m2
I/2
Lavansaarentie 3-5 B 17
2h+k+s
, Pienkerrostalo
54 m2
Floor I/2
Lavansaarentie 3-5 B 14
2h+k+s
, Pienkerrostalo
54 m2
II/2
Lavansaarentie 3-5 B 14
2h+k+s
, Pienkerrostalo
54 m2
Floor II/2
Lavansaarentie 3-5 B 18
2h+k+s
, Pienkerrostalo
55 m2
II/2
Lavansaarentie 3-5 B 18
2h+k+s
, Pienkerrostalo
55 m2
Floor II/2
Lavansaarentie 3-5 A 9
2h+k+s
, Pienkerrostalo
55 m2
II/2
Lavansaarentie 3-5 A 9
2h+k+s
, Pienkerrostalo
55 m2
Floor II/2
Lavansaarentie 3-5 A 2
3h+k+s
, Pienkerrostalo
70.5 m2
1/2
Lavansaarentie 3-5 A 2
3h+k+s
, Pienkerrostalo
70.5 m2
Floor 1/2
Lavansaarentie 3-5 B 11
3h+k+s
, Pienkerrostalo
70.5 m2
I/2
Lavansaarentie 3-5 B 11
3h+k+s
, Pienkerrostalo
70.5 m2
Floor I/2
Lavansaarentie 3-5 B 16
3h+k+s
, Pienkerrostalo
70.5 m2
II/2
Lavansaarentie 3-5 B 16
3h+k+s
, Pienkerrostalo
70.5 m2
Floor II/2
Lavansaarentie 3-5 B 12
3h+k+s
, Pienkerrostalo
70.5 m2
II/2
Lavansaarentie 3-5 B 12
3h+k+s
, Pienkerrostalo
70.5 m2
Floor II/2
Lavansaarentie 3-5 A 3
3h+k+s
, Pienkerrostalo
70.5 m2
II/2
Lavansaarentie 3-5 A 3
3h+k+s
, Pienkerrostalo
70.5 m2
Floor II/2
Lavansaarentie 3-5 A 6
3h+k+s
, Pienkerrostalo
70.5 m2
I/2
Lavansaarentie 3-5 A 6
3h+k+s
, Pienkerrostalo
70.5 m2
Floor I/2
Lavansaarentie 3-5 A 7
3h+k+s
, Pienkerrostalo
70.5 m2
II/2
Lavansaarentie 3-5 A 7
3h+k+s
, Pienkerrostalo
70.5 m2
Floor II/2
Lavansaarentie 3-5 B 15
3h+k+s
, Pienkerrostalo
70.5 m2
I/2
Lavansaarentie 3-5 B 15
3h+k+s
, Pienkerrostalo
70.5 m2
Floor I/2
Lavansaarentie 3-5 B 10
4h+k+s
, Pienkerrostalo
95 m2
I-II/2
Lavansaarentie 3-5 B 10
4h+k+s
, Pienkerrostalo
95 m2
Floor I-II/2
Lavansaarentie 3-5 A 1
4h+k+s
, Pienkerrostalo
95 m2
I-II/2
Lavansaarentie 3-5 A 1
4h+k+s
, Pienkerrostalo
95 m2
Floor I-II/2