Property Introduction
Päivärannassa rivitalokohde. Isot asunnot kahdessa tasossa. Kaikkiin asuntoihin kuuluu varastokopit. Talossa 10M kiinteistölaajakaista. Huoneistokohtaiset vesimittarit.
Hyvät Puijon ulkoilumaastot tien toisella puolen, marketit lähellä ja bussiyhteydet keskustaan lähtee talon vierestä. Lapsiperheille päiväkoti ja koulut lähellä.
Why Asuntosäätiö?
We believe that a happy home and quality living are for everyone. We do not seek immediate profit or financial benefit. We use the assets gained from our operations to develop our real estate. Over 33,000 Finns have already chosen a home offered by Asuntosäätiö. Pets are also welcome in all our homes.
Basic house info
- Form of housing Right-of-occupancy
- Average right-of-occupancy payment / jm² 271,14€
- Elevators No
- House sauna No
- Drying room Yes
- Apartment count 17
- Building count 4
- Residence charge / month / jm² 11,66€
- Construction year 1994
- Energy class D
- Heating Kauko
- Parking spaces 20
- Broadband DNA Welho
- TV-antenna system Kaapeli
- CableTV DNA
- Roof material Pelti
- House frame material Puu
- Pets Allowed
Apartments and floor plans: Kelokuja 2, Piharakennus, Rivitalo
Add all the apartment types you want to your application. Your opportunity to get an apartment increases when we are able to offer you all of the apartment types that may be available later on in this property. You are automatically in queue for these apartment types.
Kelokuja 2 A 4
2h+k+s
, Rivitalo
66.5 m2
1/1
Kelokuja 2 A 4
2h+k+s
, Rivitalo
66.5 m2
Floor 1/1
Kelokuja 2 A 1
2h+k+s
, Rivitalo
66.5 m2
1/1
Kelokuja 2 A 1
2h+k+s
, Rivitalo
66.5 m2
Floor 1/1
Kelokuja 2 A 2
2h+k+s
, Rivitalo
66.5 m2
1/1
Kelokuja 2 A 2
2h+k+s
, Rivitalo
66.5 m2
Floor 1/1
Kelokuja 2 A 3
2h+k+s
, Rivitalo
66.5 m2
1/1
Kelokuja 2 A 3
2h+k+s
, Rivitalo
66.5 m2
Floor 1/1
Kelokuja 2 B 5
3h+k+s
, Rivitalo
78 m2
1/2
Kelokuja 2 B 5
3h+k+s
, Rivitalo
78 m2
Floor 1/2
Kelokuja 2 B 10
3h+k+s
, Rivitalo
78 m2
1/2
Kelokuja 2 B 10
3h+k+s
, Rivitalo
78 m2
Floor 1/2
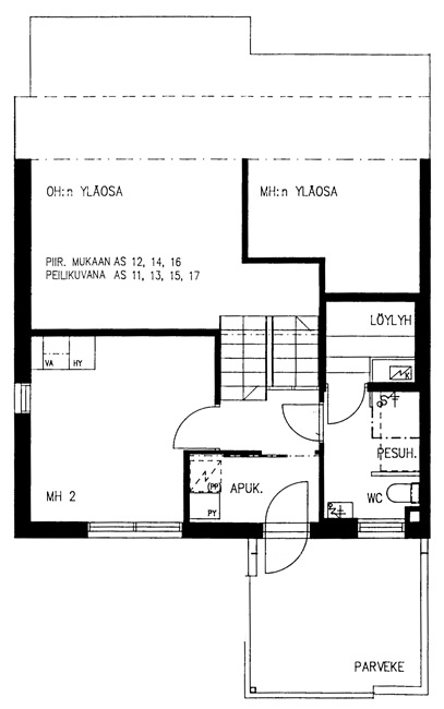
Kelokuja 2 D 16
3h+k+s
, Rivitalo
82.5 m2
1/2
Kelokuja 2 D 16
3h+k+s
, Rivitalo
82.5 m2
Floor 1/2
Kelokuja 2 C 13
3h+k+s
, Rivitalo
82.5 m2
1/2
Kelokuja 2 C 13
3h+k+s
, Rivitalo
82.5 m2
Floor 1/2
Kelokuja 2 C 12
3h+k+s
, Rivitalo
82.5 m2
1/2
Kelokuja 2 C 12
3h+k+s
, Rivitalo
82.5 m2
Floor 1/2
Kelokuja 2 D 17
3h+k+s
, Rivitalo
83 m2
1/2
Kelokuja 2 D 17
3h+k+s
, Rivitalo
83 m2
Floor 1/2
Kelokuja 2 C 11
3h+k+s
, Rivitalo
83 m2
1/2
Kelokuja 2 C 11
3h+k+s
, Rivitalo
83 m2
Floor 1/2
Kelokuja 2 D 15
3h+k+s
, Rivitalo
83 m2
1/2
Kelokuja 2 D 15
3h+k+s
, Rivitalo
83 m2
Floor 1/2
Kelokuja 2 C 14
3h+k+s
, Rivitalo
83 m2
1/2
Kelokuja 2 C 14
3h+k+s
, Rivitalo
83 m2
Floor 1/2
Kelokuja 2 B 7
4h+k+s
, Rivitalo
98.5 m2
1/2
Kelokuja 2 B 7
4h+k+s
, Rivitalo
98.5 m2
Floor 1/2
Kelokuja 2 B 8
4h+k+s
, Rivitalo
98.5 m2
1/2
Kelokuja 2 B 8
4h+k+s
, Rivitalo
98.5 m2
Floor 1/2
Kelokuja 2 B 6
4h+k+s
, Rivitalo
98.5 m2
1/2
Kelokuja 2 B 6
4h+k+s
, Rivitalo
98.5 m2
Floor 1/2
Kelokuja 2 B 9
4h+k+s
, Rivitalo
98.5 m2
1/2
Kelokuja 2 B 9
4h+k+s
, Rivitalo
98.5 m2
Floor 1/2