Property Introduction
Seitsemänkerroksinen kerrostalo Ankkurissa päättyvällä kadulla. Valoisien kotien koko vaihtelee 42 m2 kaksioista aina 91 m2 neljään huoneeseen ja keittiöön. Suojaisa piha-alue kesällä kukkivine puine ja pensaineen kutsuu viettämään aikaa ulkona.
Lyhyt kävelymatka Vesijärven rantaan vuodenaikoja ihailemaan, Sibeliustalolle kulttuuria harrastamaan ja vehreään Lanupuistoon ulkoilemaan. Lähellä myös ruokakauppa ja uimahalli. Keskustan palvelut pyörämatkan päässä. Noin kilometrin säteellä myös koulut alakoulusta aina lukioon saakka.
Why Asuntosäätiö?
We believe that a happy home and quality living are for everyone. We do not seek immediate profit or financial benefit. We use the assets gained from our operations to develop our real estate. Over 33,000 Finns have already chosen a home offered by Asuntosäätiö. Pets are also welcome in all our homes.
Basic house info
- Form of housing Right-of-occupancy
- Average right-of-occupancy payment / jm² 341,96€
- Elevators 1
- House sauna No
- Laundry room Yes
- Drying room Yes
- Apartment count 36
- Building count 1
- Residence charge / month / jm² 12,74€
- Construction year 1998
- Staircases 1
- Energy class E
- Heating Kauko
- Parking spaces 41
- Broadband DNA Welho
- TV-antenna system Kaapeli
- CableTV DNA
- Roof material Huopa
- House frame material Betoni
- Pets Allowed
Apartments and floor plans: Taapelikatu 6, Kerrostalo
Add all the apartment types you want to your application. Your opportunity to get an apartment increases when we are able to offer you all of the apartment types that may be available later on in this property. You are automatically in queue for these apartment types.
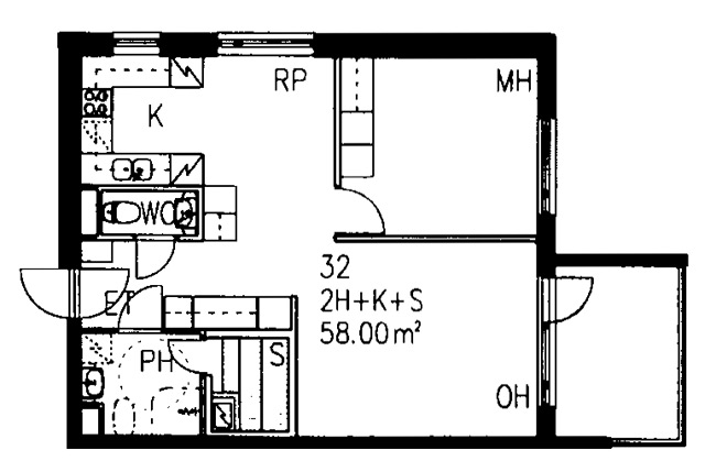
Taapelikatu 6 A 26
2h+k+s
, Kerrostalo
58 m2
6/7
Taapelikatu 6 A 26
2h+k+s
, Kerrostalo
58 m2
Floor 6/7
Taapelikatu 6 A 14
2h+k+s
, Kerrostalo
58 m2
4/7
Taapelikatu 6 A 14
2h+k+s
, Kerrostalo
58 m2
Floor 4/7
Taapelikatu 6 A 8
2h+k+s
, Kerrostalo
58 m2
3/7
Taapelikatu 6 A 8
2h+k+s
, Kerrostalo
58 m2
Floor 3/7
Taapelikatu 6 A 32
2h+k+s
, Kerrostalo
58 m2
7/7
Taapelikatu 6 A 32
2h+k+s
, Kerrostalo
58 m2
Floor 7/7
Taapelikatu 6 A 2
2h+k+s
, Kerrostalo
58 m2
2/7
Taapelikatu 6 A 2
2h+k+s
, Kerrostalo
58 m2
Floor 2/7
Taapelikatu 6 A 20
2h+k+s
, Kerrostalo
58 m2
5/7
Taapelikatu 6 A 20
2h+k+s
, Kerrostalo
58 m2
Floor 5/7
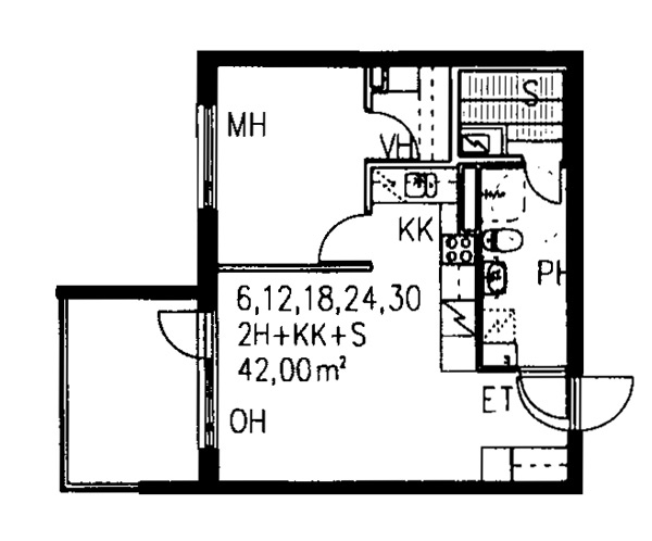
Taapelikatu 6 A 12
2h+kk+s
, Kerrostalo
42 m2
3/7
Taapelikatu 6 A 12
2h+kk+s
, Kerrostalo
42 m2
Floor 3/7
Taapelikatu 6 A 18
2h+kk+s
, Kerrostalo
42 m2
4/7
Taapelikatu 6 A 18
2h+kk+s
, Kerrostalo
42 m2
Floor 4/7
Taapelikatu 6 A 30
2h+kk+s
, Kerrostalo
42 m2
6/7
Taapelikatu 6 A 30
2h+kk+s
, Kerrostalo
42 m2
Floor 6/7
Taapelikatu 6 A 36
2h+kk+s
, Kerrostalo
42 m2
7/7
Taapelikatu 6 A 36
2h+kk+s
, Kerrostalo
42 m2
Floor 7/7
Taapelikatu 6 A 24
2h+kk+s
, Kerrostalo
42 m2
5/7
Taapelikatu 6 A 24
2h+kk+s
, Kerrostalo
42 m2
Floor 5/7
Taapelikatu 6 A 28
2h+kk+s
, Kerrostalo
43 m2
6/7
Taapelikatu 6 A 28
2h+kk+s
, Kerrostalo
43 m2
Floor 6/7
Taapelikatu 6 A 16
2h+kk+s
, Kerrostalo
43 m2
4/7
Taapelikatu 6 A 16
2h+kk+s
, Kerrostalo
43 m2
Floor 4/7
Taapelikatu 6 A 22
2h+kk+s
, Kerrostalo
43 m2
5/7
Taapelikatu 6 A 22
2h+kk+s
, Kerrostalo
43 m2
Floor 5/7
Taapelikatu 6 A 4
2h+kk+s
, Kerrostalo
43 m2
2/7
Taapelikatu 6 A 4
2h+kk+s
, Kerrostalo
43 m2
Floor 2/7
Taapelikatu 6 A 10
2h+kk+s
, Kerrostalo
43 m2
3/7
Taapelikatu 6 A 10
2h+kk+s
, Kerrostalo
43 m2
Floor 3/7
Taapelikatu 6 A 34
2h+kk+s
, Kerrostalo
43 m2
7/7
Taapelikatu 6 A 34
2h+kk+s
, Kerrostalo
43 m2
Floor 7/7
Taapelikatu 6 A 17
2h+kk+s
, Kerrostalo
47 m2
4/7
Taapelikatu 6 A 17
2h+kk+s
, Kerrostalo
47 m2
Floor 4/7
Taapelikatu 6 A 11
2h+kk+s
, Kerrostalo
47 m2
3/7
Taapelikatu 6 A 11
2h+kk+s
, Kerrostalo
47 m2
Floor 3/7
Taapelikatu 6 A 29
2h+kk+s
, Kerrostalo
47 m2
6/7
Taapelikatu 6 A 29
2h+kk+s
, Kerrostalo
47 m2
Floor 6/7
Taapelikatu 6 A 5
2h+kk+s
, Kerrostalo
47 m2
2/7
Taapelikatu 6 A 5
2h+kk+s
, Kerrostalo
47 m2
Floor 2/7
Taapelikatu 6 A 23
2h+kk+s
, Kerrostalo
47 m2
5/7
Taapelikatu 6 A 23
2h+kk+s
, Kerrostalo
47 m2
Floor 5/7
Taapelikatu 6 A 35
2h+kk+s
, Kerrostalo
47 m2
7/7
Taapelikatu 6 A 35
2h+kk+s
, Kerrostalo
47 m2
Floor 7/7
Taapelikatu 6 A 15
2h+kk+s
, Kerrostalo
48 m2
4/7
Taapelikatu 6 A 15
2h+kk+s
, Kerrostalo
48 m2
Floor 4/7
Taapelikatu 6 A 3
2h+kk+s
, Kerrostalo
48 m2
2/7
Taapelikatu 6 A 3
2h+kk+s
, Kerrostalo
48 m2
Floor 2/7
Taapelikatu 6 A 9
2h+kk+s
, Kerrostalo
48 m2
3/7
Taapelikatu 6 A 9
2h+kk+s
, Kerrostalo
48 m2
Floor 3/7
Taapelikatu 6 A 33
2h+kk+s
, Kerrostalo
48 m2
7/7
Taapelikatu 6 A 33
2h+kk+s
, Kerrostalo
48 m2
Floor 7/7
Taapelikatu 6 A 27
2h+kk+s
, Kerrostalo
48 m2
6/7
Taapelikatu 6 A 27
2h+kk+s
, Kerrostalo
48 m2
Floor 6/7
Taapelikatu 6 A 21
2h+kk+s
, Kerrostalo
48 m2
5/7
Taapelikatu 6 A 21
2h+kk+s
, Kerrostalo
48 m2
Floor 5/7
Taapelikatu 6 A 25
3h+k+s
, Kerrostalo
75.5 m2
5/7
Taapelikatu 6 A 25
3h+k+s
, Kerrostalo
75.5 m2
Floor 5/7
Taapelikatu 6 A 31
3h+k+s
, Kerrostalo
75.5 m2
6/7
Taapelikatu 6 A 31
3h+k+s
, Kerrostalo
75.5 m2
Floor 6/7
Taapelikatu 6 A 13
3h+k+s
, Kerrostalo
75.5 m2
3/7
Taapelikatu 6 A 13
3h+k+s
, Kerrostalo
75.5 m2
Floor 3/7
Taapelikatu 6 A 7
3h+k+s
, Kerrostalo
75.5 m2
2/7
Taapelikatu 6 A 7
3h+k+s
, Kerrostalo
75.5 m2
Floor 2/7
Taapelikatu 6 A 19
3h+k+s
, Kerrostalo
75.5 m2
4/7
Taapelikatu 6 A 19
3h+k+s
, Kerrostalo
75.5 m2
Floor 4/7
Taapelikatu 6 A 1
4h+k+s
, Kerrostalo
91 m2
1/7
Taapelikatu 6 A 1
4h+k+s
, Kerrostalo
91 m2
Floor 1/7
