Kohteen esittely
Seitsemänkerroksinen kerrostalo Ankkurissa päättyvällä kadulla. Valoisien kotien koko vaihtelee 42 m2 kaksioista aina 91 m2 neljään huoneeseen ja keittiöön. Suojaisa piha-alue kesällä kukkivine puine ja pensaineen kutsuu viettämään aikaa ulkona.
Lyhyt kävelymatka Vesijärven rantaan vuodenaikoja ihailemaan, Sibeliustalolle kulttuuria harrastamaan ja vehreään Lanupuistoon ulkoilemaan. Lähellä myös ruokakauppa ja uimahalli. Keskustan palvelut pyörämatkan päässä. Noin kilometrin säteellä myös koulut alakoulusta aina lukioon saakka.
Miksi Asuntosäätiö?
Me uskomme, että onnellinen koti ja laadukas asuminen kuuluvat kaikille. Emme tavoittele voittoa, vaan käytämme kaikki vastikkeista ja vuokrista saadut tulot toimintamme kehittämiseen. Jo yli 33 000 suomalaista on valinnut Asuntosäätiön tarjoaman kodin. Tiesithän, että myös lemmikit ovat tervetulleita kaikkiin koteihimme!
Rakennuksen tiedot
- Asumismuoto Asokoti
- Keskimääräinen asumisoikeusmaksu / jm² 341,96€
- Hissit 1
- Talosauna Ei
- Pyykkitupa Kyllä
- Kuivaushuone Kyllä
- Asuntoja 36
- Asuinrakennuksia 1
- Käyttövastike / kk / jm² 13,36€
- Valmistumisvuosi 1998
- Porrashuoneet 1
- Energialuokka E
- Lämmitysmuoto Kauko
- Autopaikat 41
- Laajakaista DNA Welho
- Antennijärjestelmä Kaapeli
- KaapeliTV DNA
- Kattomateriaali Huopa
- Runkomateriaali Betoni
- Lemmikit Sallittu
Huoneistot ja pohjakuvat: Taapelikatu 6, Kerrostalo
Lisää hakemukselle kaikki haluamasi asuntotyypit. Mahdollisuutesi asunnon saamiseksi paranevat, kun voimme tarjota sinulle kaikkia valitsemasi asuntotyypin asuntoja, jotka mahdollisesti vapautuvat myöhemmin tästä kohteesta. Olet automaattisesti näiden asuntotyyppien hakuprosessissa.
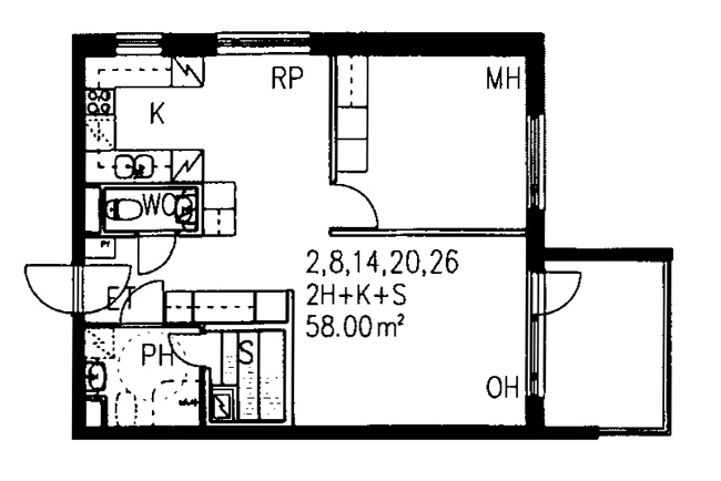
Taapelikatu 6 A 14
2h+k+s
, Kerrostalo
58 m2
4/7
Taapelikatu 6 A 14
2h+k+s
, Kerrostalo
58 m2
Kerros 4/7
Taapelikatu 6 A 8
2h+k+s
, Kerrostalo
58 m2
3/7
Taapelikatu 6 A 8
2h+k+s
, Kerrostalo
58 m2
Kerros 3/7
Taapelikatu 6 A 32
2h+k+s
, Kerrostalo
58 m2
7/7
Taapelikatu 6 A 32
2h+k+s
, Kerrostalo
58 m2
Kerros 7/7
Taapelikatu 6 A 2
2h+k+s
, Kerrostalo
58 m2
2/7
Taapelikatu 6 A 2
2h+k+s
, Kerrostalo
58 m2
Kerros 2/7
Taapelikatu 6 A 12
2h+kk+s
, Kerrostalo
42 m2
3/7
Taapelikatu 6 A 12
2h+kk+s
, Kerrostalo
42 m2
Kerros 3/7
Taapelikatu 6 A 18
2h+kk+s
, Kerrostalo
42 m2
4/7
Taapelikatu 6 A 18
2h+kk+s
, Kerrostalo
42 m2
Kerros 4/7
Taapelikatu 6 A 6
2h+kk+s
, Kerrostalo
42 m2
2/7
Taapelikatu 6 A 6
2h+kk+s
, Kerrostalo
42 m2
Kerros 2/7
Taapelikatu 6 A 30
2h+kk+s
, Kerrostalo
42 m2
6/7
Taapelikatu 6 A 30
2h+kk+s
, Kerrostalo
42 m2
Kerros 6/7
Taapelikatu 6 A 36
2h+kk+s
, Kerrostalo
42 m2
7/7
Taapelikatu 6 A 36
2h+kk+s
, Kerrostalo
42 m2
Kerros 7/7
Taapelikatu 6 A 24
2h+kk+s
, Kerrostalo
42 m2
5/7
Taapelikatu 6 A 24
2h+kk+s
, Kerrostalo
42 m2
Kerros 5/7
Taapelikatu 6 A 28
2h+kk+s
, Kerrostalo
43 m2
6/7
Taapelikatu 6 A 28
2h+kk+s
, Kerrostalo
43 m2
Kerros 6/7
Taapelikatu 6 A 16
2h+kk+s
, Kerrostalo
43 m2
4/7
Taapelikatu 6 A 16
2h+kk+s
, Kerrostalo
43 m2
Kerros 4/7
Taapelikatu 6 A 22
2h+kk+s
, Kerrostalo
43 m2
5/7
Taapelikatu 6 A 22
2h+kk+s
, Kerrostalo
43 m2
Kerros 5/7
Taapelikatu 6 A 4
2h+kk+s
, Kerrostalo
43 m2
2/7
Taapelikatu 6 A 4
2h+kk+s
, Kerrostalo
43 m2
Kerros 2/7
Taapelikatu 6 A 10
2h+kk+s
, Kerrostalo
43 m2
3/7
Taapelikatu 6 A 10
2h+kk+s
, Kerrostalo
43 m2
Kerros 3/7
Taapelikatu 6 A 34
2h+kk+s
, Kerrostalo
43 m2
7/7
Taapelikatu 6 A 34
2h+kk+s
, Kerrostalo
43 m2
Kerros 7/7
Taapelikatu 6 A 17
2h+kk+s
, Kerrostalo
47 m2
4/7
Taapelikatu 6 A 17
2h+kk+s
, Kerrostalo
47 m2
Kerros 4/7
Taapelikatu 6 A 11
2h+kk+s
, Kerrostalo
47 m2
3/7
Taapelikatu 6 A 11
2h+kk+s
, Kerrostalo
47 m2
Kerros 3/7
Taapelikatu 6 A 29
2h+kk+s
, Kerrostalo
47 m2
6/7
Taapelikatu 6 A 29
2h+kk+s
, Kerrostalo
47 m2
Kerros 6/7
Taapelikatu 6 A 5
2h+kk+s
, Kerrostalo
47 m2
2/7
Taapelikatu 6 A 5
2h+kk+s
, Kerrostalo
47 m2
Kerros 2/7
Taapelikatu 6 A 23
2h+kk+s
, Kerrostalo
47 m2
5/7
Taapelikatu 6 A 23
2h+kk+s
, Kerrostalo
47 m2
Kerros 5/7
Taapelikatu 6 A 35
2h+kk+s
, Kerrostalo
47 m2
7/7
Taapelikatu 6 A 35
2h+kk+s
, Kerrostalo
47 m2
Kerros 7/7
Taapelikatu 6 A 15
2h+kk+s
, Kerrostalo
48 m2
4/7
Taapelikatu 6 A 15
2h+kk+s
, Kerrostalo
48 m2
Kerros 4/7
Taapelikatu 6 A 3
2h+kk+s
, Kerrostalo
48 m2
2/7
Taapelikatu 6 A 3
2h+kk+s
, Kerrostalo
48 m2
Kerros 2/7
Taapelikatu 6 A 9
2h+kk+s
, Kerrostalo
48 m2
3/7
Taapelikatu 6 A 9
2h+kk+s
, Kerrostalo
48 m2
Kerros 3/7
Taapelikatu 6 A 33
2h+kk+s
, Kerrostalo
48 m2
7/7
Taapelikatu 6 A 33
2h+kk+s
, Kerrostalo
48 m2
Kerros 7/7
Taapelikatu 6 A 27
2h+kk+s
, Kerrostalo
48 m2
6/7
Taapelikatu 6 A 27
2h+kk+s
, Kerrostalo
48 m2
Kerros 6/7
Taapelikatu 6 A 21
2h+kk+s
, Kerrostalo
48 m2
5/7
Taapelikatu 6 A 21
2h+kk+s
, Kerrostalo
48 m2
Kerros 5/7
Taapelikatu 6 A 25
3h+k+s
, Kerrostalo
75.5 m2
5/7
Taapelikatu 6 A 25
3h+k+s
, Kerrostalo
75.5 m2
Kerros 5/7
Taapelikatu 6 A 31
3h+k+s
, Kerrostalo
75.5 m2
6/7
Taapelikatu 6 A 31
3h+k+s
, Kerrostalo
75.5 m2
Kerros 6/7
Taapelikatu 6 A 19
3h+k+s
, Kerrostalo
75.5 m2
4/7
Taapelikatu 6 A 19
3h+k+s
, Kerrostalo
75.5 m2
Kerros 4/7
Taapelikatu 6 A 1
4h+k+s
, Kerrostalo
91 m2
1/7
Taapelikatu 6 A 1
4h+k+s
, Kerrostalo
91 m2
Kerros 1/7