Property Introduction
Entisellä asuntomessualueella Kanavansuulla kahden rakennuksen kaksikerroksinen luhtitalo. Kaikissa asunnoissa oma sauna ja parveke. Grillikatos asukkaiden käytössä. Kohteessa käytetään hiilineutraalia kaukolämpöä. Kohde on peruskorjattu vuonna 2021.
Lähimmät kaupat, apteekki, uimahalli ym löytyvät Lauritsalan keskustasta muutaman kilometrin päässä, alueella Pontuksen päiväkoti ja koulu sekä kirjasto. Hyvät linja-autoyhteydet keskustaan, noin 8 km.
Why Asuntosäätiö?
We believe that a happy home and quality living are for everyone. We do not seek immediate profit or financial benefit. We use the assets gained from our operations to develop our real estate. Over 33,000 Finns have already chosen a home offered by Asuntosäätiö. Pets are also welcome in all our homes.
Basic house info
- Form of housing Right-of-occupancy
- Average right-of-occupancy payment / jm² 188,92€
- Elevators No
- House sauna No
- Drying room Yes
- Apartment count 28
- Building count 2
- Residence charge / month / jm² 10,98€
- Construction year 1992
- Renovated 2021
- Energy class D
- Heating Kauko
- Parking spaces 30
- Broadband Elisa
- TV-antenna system Kaapeli
- CableTV Elisa
- Roof material Pelti
- House frame material Betoni
- Pets Allowed
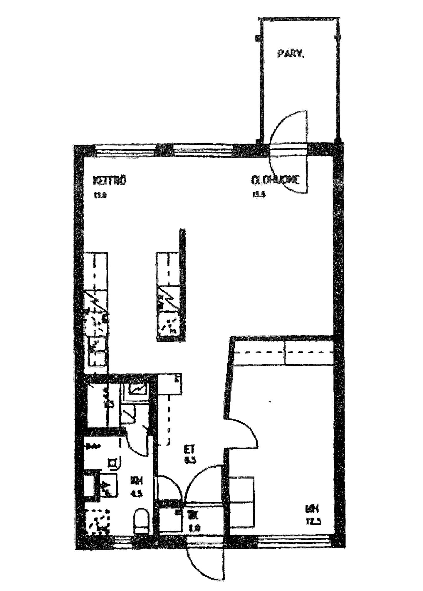
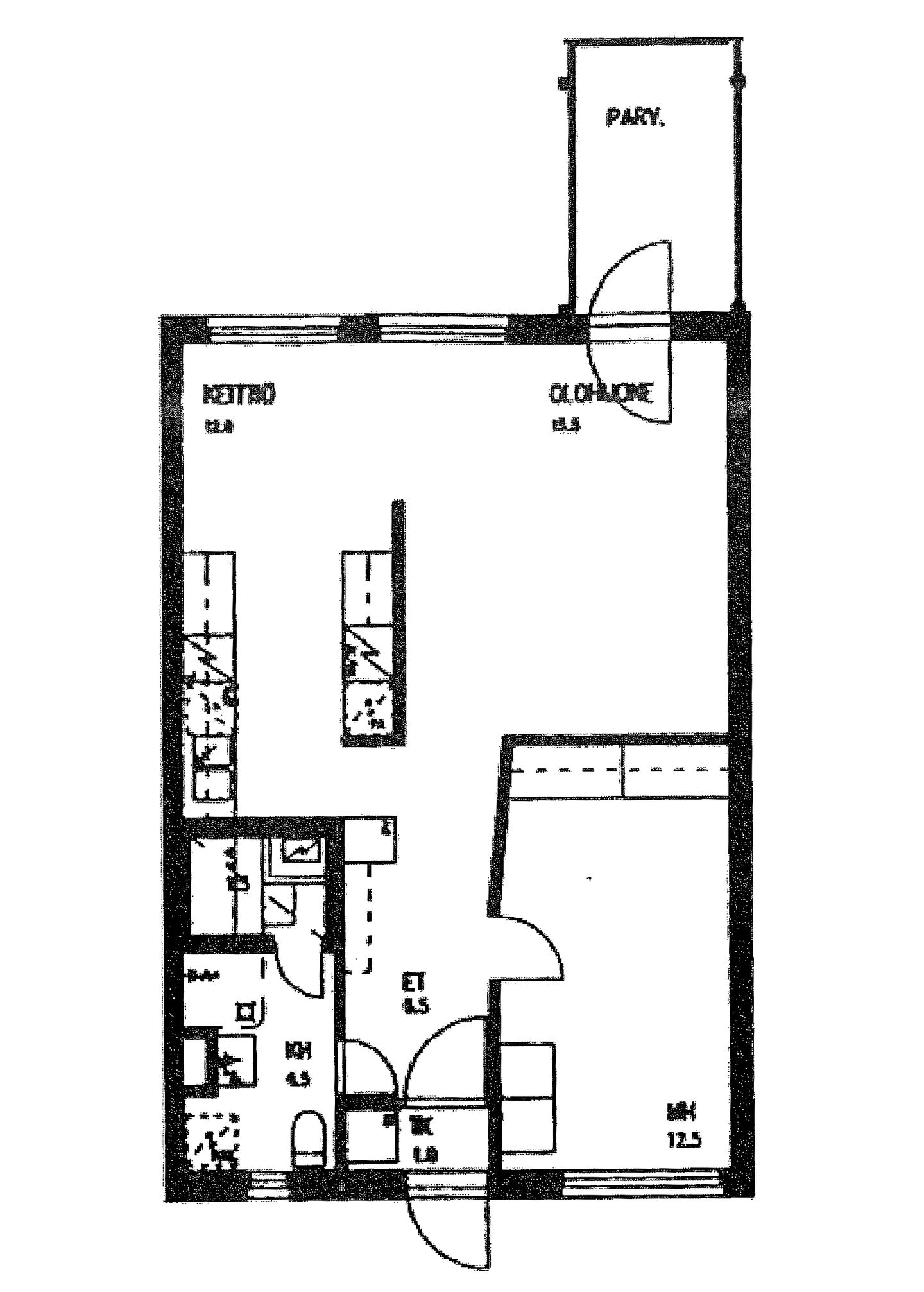
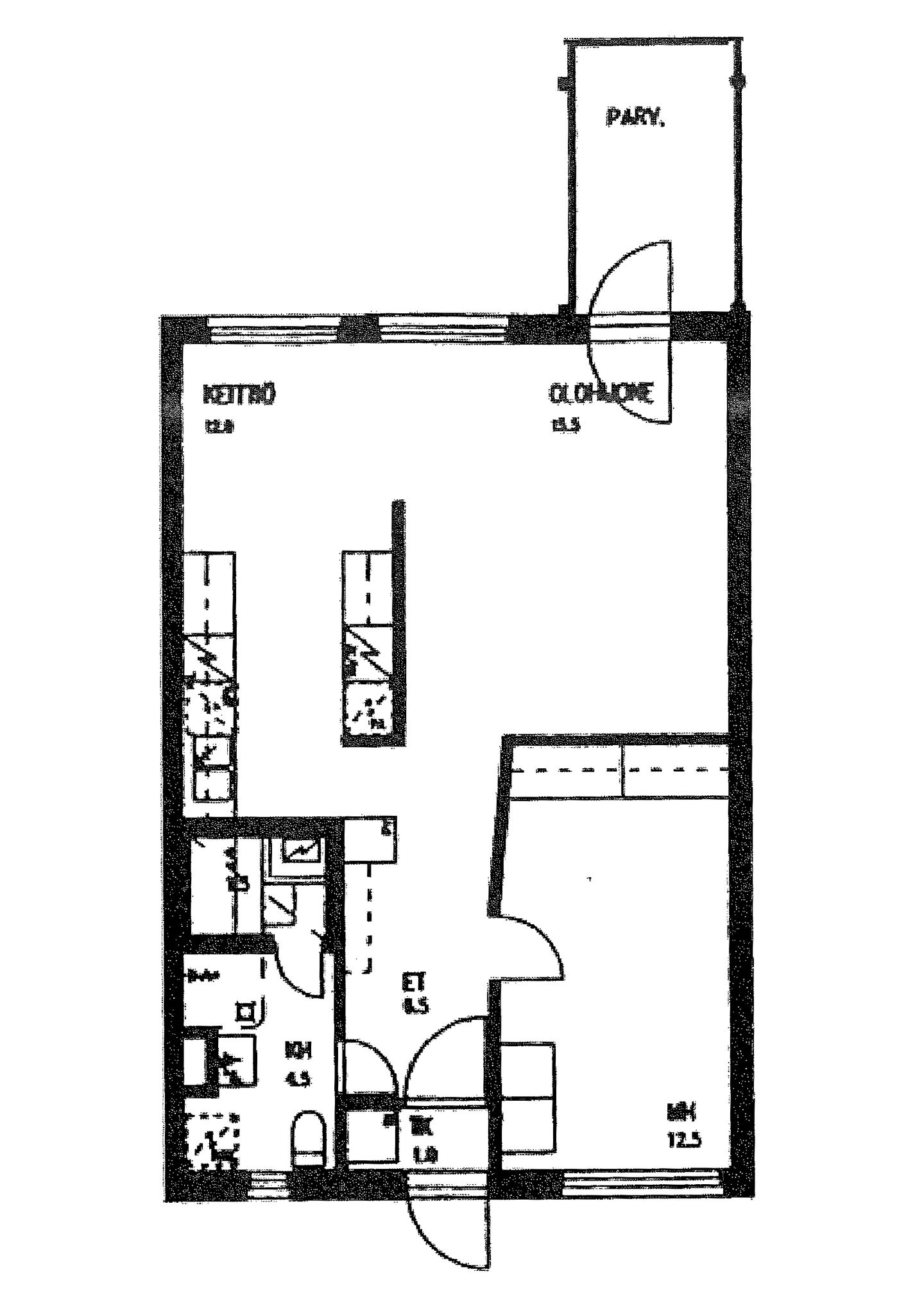
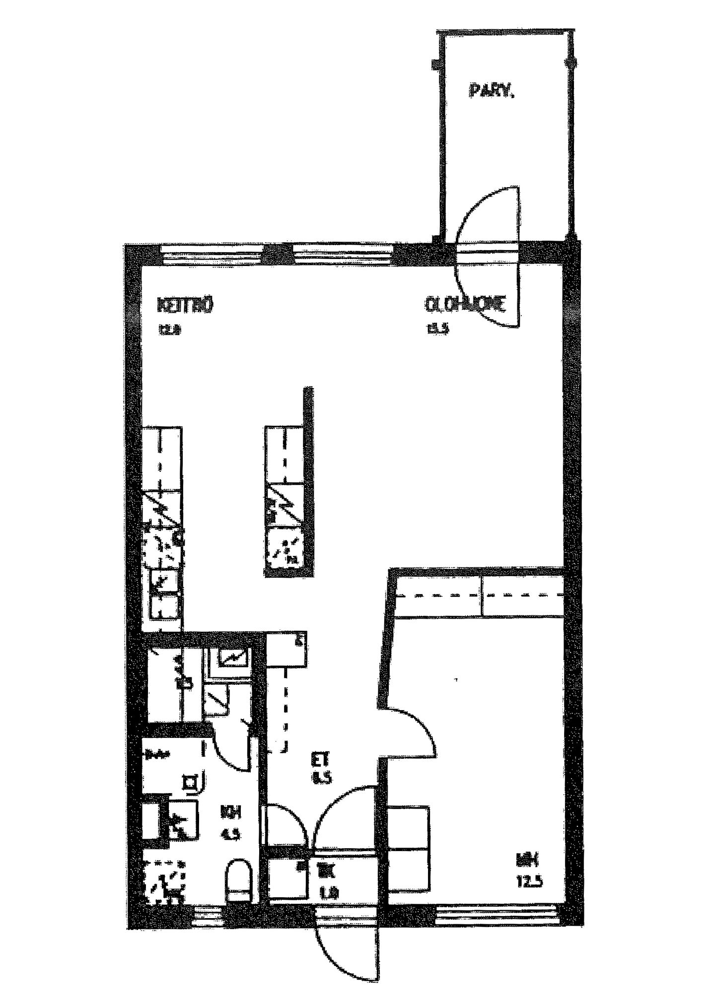
Apartments and floor plans: Taaplaajankatu 2, Piharakennus, Luhtikäytävätalo
Add all the apartment types you want to your application. Your opportunity to get an apartment increases when we are able to offer you all of the apartment types that may be available later on in this property. You are automatically in queue for these apartment types.
Taaplaajankatu 2 A 10
2h+k+s
, Luhtikäytävätalo
55 m2
/2
Taaplaajankatu 2 A 10
2h+k+s
, Luhtikäytävätalo
55 m2
Floor /2
Taaplaajankatu 2 A 2
2h+k+s
, Luhtikäytävätalo
55 m2
/2
Taaplaajankatu 2 A 2
2h+k+s
, Luhtikäytävätalo
55 m2
Floor /2
Taaplaajankatu 2 A 5
2h+k+s
, Luhtikäytävätalo
55 m2
/2
Taaplaajankatu 2 A 5
2h+k+s
, Luhtikäytävätalo
55 m2
Floor /2
Taaplaajankatu 2 A 4
2h+k+s
, Luhtikäytävätalo
55 m2
/2
Taaplaajankatu 2 A 4
2h+k+s
, Luhtikäytävätalo
55 m2
Floor /2
Taaplaajankatu 2 A 13
2h+k+s
, Luhtikäytävätalo
55 m2
Floor /2
Taaplaajankatu 2 A 11
2h+k+s
, Luhtikäytävätalo
55 m2
/2
Taaplaajankatu 2 A 11
2h+k+s
, Luhtikäytävätalo
55 m2
Floor /2
Taaplaajankatu 2 A 12
2h+k+s
, Luhtikäytävätalo
55 m2
/2
Taaplaajankatu 2 A 12
2h+k+s
, Luhtikäytävätalo
55 m2
Floor /2
Taaplaajankatu 2 A 6
2h+k+s
, Luhtikäytävätalo
55 m2
/2
Taaplaajankatu 2 A 6
2h+k+s
, Luhtikäytävätalo
55 m2
Floor /2
Taaplaajankatu 2 A 3
2h+k+s
, Luhtikäytävätalo
55 m2
Floor /2
Taaplaajankatu 2 A 9
2h+k+s
, Luhtikäytävätalo
55 m2
/2
Taaplaajankatu 2 A 9
2h+k+s
, Luhtikäytävätalo
55 m2
Floor /2
Taaplaajankatu 2 B 24
2h+k+s
, Luhtikäytävätalo
55 m2
/2
Taaplaajankatu 2 B 24
2h+k+s
, Luhtikäytävätalo
55 m2
Floor /2
Taaplaajankatu 2 B 26
2h+k+s
, Luhtikäytävätalo
55 m2
/2
Taaplaajankatu 2 B 26
2h+k+s
, Luhtikäytävätalo
55 m2
Floor /2
Taaplaajankatu 2 B 17
2h+k+s
, Luhtikäytävätalo
55 m2
/2
Taaplaajankatu 2 B 17
2h+k+s
, Luhtikäytävätalo
55 m2
Floor /2
Taaplaajankatu 2 B 25
2h+k+s
, Luhtikäytävätalo
55 m2
/2
Taaplaajankatu 2 B 25
2h+k+s
, Luhtikäytävätalo
55 m2
Floor /2
Taaplaajankatu 2 B 18
2h+k+s
, Luhtikäytävätalo
55 m2
/2
Taaplaajankatu 2 B 18
2h+k+s
, Luhtikäytävätalo
55 m2
Floor /2
Taaplaajankatu 2 B 16
2h+k+s
, Luhtikäytävätalo
55 m2
/2
Taaplaajankatu 2 B 16
2h+k+s
, Luhtikäytävätalo
55 m2
Floor /2
Taaplaajankatu 2 B 23
2h+k+s
, Luhtikäytävätalo
55 m2
/2
Taaplaajankatu 2 B 23
2h+k+s
, Luhtikäytävätalo
55 m2
Floor /2
Taaplaajankatu 2 B 19
2h+k+s
, Luhtikäytävätalo
55 m2
/2
Taaplaajankatu 2 B 19
2h+k+s
, Luhtikäytävätalo
55 m2
Floor /2
Taaplaajankatu 2 B 20
2h+k+s
, Luhtikäytävätalo
55 m2
/2
Taaplaajankatu 2 B 20
2h+k+s
, Luhtikäytävätalo
55 m2
Floor /2
Taaplaajankatu 2 B 27
2h+k+s
, Luhtikäytävätalo
55 m2
/2
Taaplaajankatu 2 B 27
2h+k+s
, Luhtikäytävätalo
55 m2
Floor /2
Taaplaajankatu 2 A 7
3h+k+s
, Luhtikäytävätalo
69.5 m2
/2
Taaplaajankatu 2 A 7
3h+k+s
, Luhtikäytävätalo
69.5 m2
Floor /2
Taaplaajankatu 2 A 14
3h+k+s
, Luhtikäytävätalo
69.5 m2
/2
Taaplaajankatu 2 A 14
3h+k+s
, Luhtikäytävätalo
69.5 m2
Floor /2
Taaplaajankatu 2 B 21
3h+k+s
, Luhtikäytävätalo
70 m2
/2
Taaplaajankatu 2 B 21
3h+k+s
, Luhtikäytävätalo
70 m2
Floor /2
Taaplaajankatu 2 B 28
3h+k+s
, Luhtikäytävätalo
70 m2
/2
Taaplaajankatu 2 B 28
3h+k+s
, Luhtikäytävätalo
70 m2
Floor /2
Taaplaajankatu 2 A 8
3h+k+s
, Luhtikäytävätalo
78 m2
/2
Taaplaajankatu 2 A 8
3h+k+s
, Luhtikäytävätalo
78 m2
Floor /2
Taaplaajankatu 2 A 1
3h+k+s
, Luhtikäytävätalo
78 m2
/2
Taaplaajankatu 2 A 1
3h+k+s
, Luhtikäytävätalo
78 m2
Floor /2
Taaplaajankatu 2 B 15
3h+k+s
, Luhtikäytävätalo
78 m2
/2
Taaplaajankatu 2 B 15
3h+k+s
, Luhtikäytävätalo
78 m2
Floor /2
Taaplaajankatu 2 B 22
3h+k+s
, Luhtikäytävätalo
78 m2
/2
Taaplaajankatu 2 B 22
3h+k+s
, Luhtikäytävätalo
78 m2
Floor /2
